1. AnbieterArrow Icon
  2. petershausArrow Icon
  3. petershaus Bungalow 2
Slide 1
Slide 2
Slide 3
no description
petershauspetershaus Bungalow 2
homeBungalow
livingArea203 m²
energyStandardEffizienzhaus 40
Preis anfragen
Katalog bestellen

petershaus Bungalow 2

Barrierefreies Wohlfühlen - für jedes Alter eine gute Wahl

Der praktische und barrierefreie Bungalow fällt optisch durch seine zweigeteilte Fassade ins Auge: Während der Anbau mit Flachdach über eine weiße Putzfassade verfügt, ist das Hauptgebäude mit einer attraktiven Holzfassade und einem Pultdach versehen. Die Fenster- und Türrahmen sind in einem warmen Dunkelrot gehalten. Im Inneren überzeugt der Bungalow mit einem großzügigen Wohn-Essbereich mit Kamin und versprüht insgesamt eine helle, freundliche Atmosphäre durch die rundum großzügige Fenster und Fenstertüren.

Neben dem integrierten Carport mit direktem Zugang zum Hauswirtschaftsraum ist vor allem das große Sitzfenster im Küchenbereich ein echtes Highlight. 

Hausdaten

Hausart Icon
HausartEinfamilienhaus
Bauweise Icon
BauweiseHolz-Tafelbau
Anzahl Räume Icon
Anzahl Räume5
Baustil Icon
BaustilBungalow
Fassade Icon
FassadePutz
Außenmaße Icon
Außenmaße16.6 m x 13.32 m
Wohnfläche Icon
Wohnfläche203 m²
Dachform Icon
DachformPultdach
Etagen Icon
Etagen1
Energiestandard Icon
EnergiestandardEffizienzhaus 40
Immobilientyp Icon
ImmobilientypKundenhaus
Hauseigenschaften Icon
HauseigenschaftenGästezimmer
Hausdämmstoff Icon
HausdämmstoffHolzfaser- und Zellulosedämmstoffe
Heizungsart Icon
HeizungsartWärmepumpe (Luft, Wasser, oder beides)
Pfeil nach unten linksWir schaffen Platz für Ihre Träume

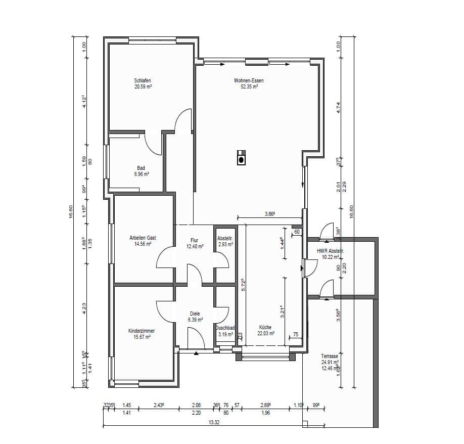
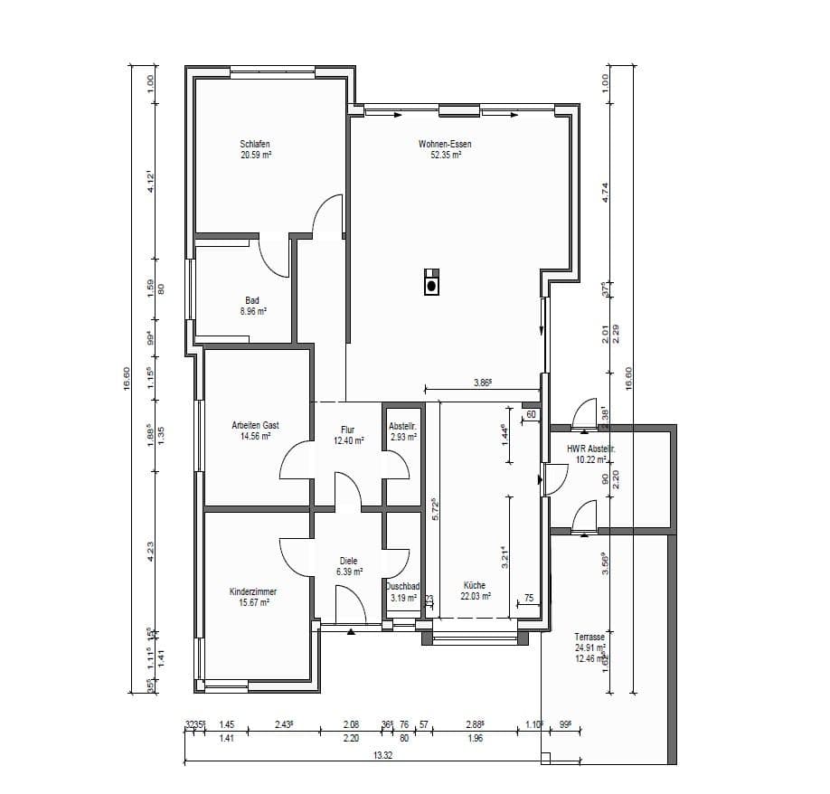
Grundriss

Willems_Grundriss.jpg
petershaus Bungalow 2 Grundriss (EG)Wohnfläche EG: 203 m²

Kataloge

petershaus: Hauskatalog
petershaus GmbH & Co. KG

petershaus: Hauskatalog


House and TreeParksHouse and PinMusterhausHouse on HandAnbieter