1. AnbieterArrow Icon
  2. petershaus GmbH & Co. KGArrow Icon
  3. Jagdhaus der besonderen Art
Slide 1
Slide 2
Slide 3
Slide 4
Slide 5
Slide 6
Slide 7
Slide 8
no description
petershaus GmbH & Co. KGJagdhaus der besonderen Art
homeLandhäuser
livingArea179 m²
energyStandardEffizienzhaus 40
Preis anfragen
Katalog bestellen

Jagdhaus der besonderen Art

Ganz natürlich - mitten in der Natur

Ein echter Hingucker ist dieses außergewöhnliche Jagdhaus, welches freistehend mitten in der Natur errichtet wurde. Das 180 qm große Haupthaus ist durch seine Holzfassade in Lärche sägerauh ein optischer Blickfang, aber auch im Inneren lässt das Haus keine Wünsche offen. Hierbei haben die Hausherren auf einen gekonnten Mix von natürlichen Materialien und Komfort gesetzt, was gut ankommt. Im Inneren bietet das Jagdhaus Platz für eine ganze Jagdgesellschaft mit seinen vier Schlafzimmern im Obergeschoss. Im Untergeschoss sind neben Gemeinschaftsräumen auch ein Büro sowie ein Besprechungsraum eingeplant. 

Im Außenbereich lädt eine überdachte Terrasse zum Ausspannen und Erholen ein. 

Neben dem Haupthaus befindet sich - passend für ein zur Jagd genutztes Objekt - ein entsprechendes Gebäude mit Wild- und Kühlkammer. Somit lässt das Objekt definitiv Jägerherzen höher schlagen.

Hausdaten

Hausart Icon
HausartEinfamilienhaus
Bauweise Icon
BauweiseHolz-Tafelbau
Anzahl Räume Icon
Anzahl Räume9
Baustil Icon
BaustilLandhäuser
Fassade Icon
FassadeHolz
Außenmaße Icon
Außenmaße11.5 m x 10 m
Wohnfläche Icon
Wohnfläche178.78 m²
Dachform Icon
DachformSattel-/Giebeldach
Etagen Icon
Etagen2
Energiestandard Icon
EnergiestandardEffizienzhaus 40
Immobilientyp Icon
ImmobilientypKundenhaus
Hauseigenschaften Icon
HauseigenschaftenGästezimmer
Hausdämmstoff Icon
HausdämmstoffHolzfaser- und Zellulosedämmstoffe
Heizungsart Icon
HeizungsartWärmepumpe (Luft, Wasser, oder beides)
Pfeil nach unten linksWir schaffen Platz für Ihre Träume

Grundriss

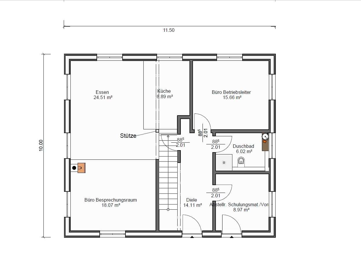
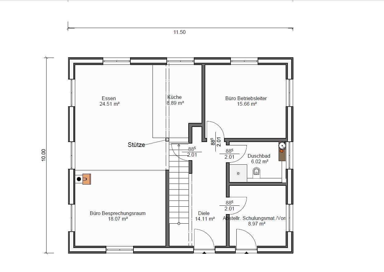
no description
Jagdhaus der besonderen Art Grundriss (EG)Wohnfläche EG: 96,23 m²
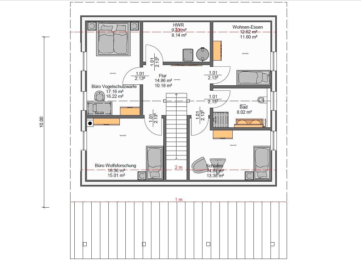
no description
Jagdhaus der besonderen Art Grundriss (OG)Wohnfläche OG: 82,55 m²

Kataloge

petershaus: Hauskatalog
petershaus GmbH & Co. KG

petershaus: Hauskatalog


House and TreeParksHouse and PinMusterhausHouse on HandAnbieter