1. AnbieterArrow Icon
  2. petershaus GmbH & Co. KGArrow Icon
  3. Klassische Stadtvilla mit Stil
Slide 1
Slide 2
Slide 3
Slide 4
Slide 5
Slide 6
Slide 7
Slide 8
Slide 9
Slide 10
no description
petershaus GmbH & Co. KGKlassische Stadtvilla mit Stil
homeKlassische Familienhäuser
livingArea183 m²
energyStandardEffizienzhaus 40
Preis anfragen
Katalog bestellen

Klassische Stadtvilla mit Stil

Klassik meets Stil - bei dieser formschönen Stadtvilla passt das geradlinige Äußere mit weißer Putzfassade und großer Hebeschiebeanlage im Erdgeschoss perfekt zur stilvollen Inneneinrichtung. Auf zwei Etagen haben sich die Bauherren hier verwirklicht und so dominieren warme Holzböden, sichtbare Holzbalken und offene Räume das Wohnkonzept. Im Wohn-Essbereich mit offener Küche sorgt ein Kamin für die Gemütlichkeit. Die offene Treppe ins Obergeschoss ist mit Tritt-und Setzstufen aus Holz bestückt, das Galeriegeländer ist aus Metall gestaltet. Im Badezimmer im Obergeschoss sorgen eine freistehende Badewanne und eine Sauna das Wohlfühlklima.

Hausdaten

Hausart Icon
HausartEinfamilienhaus
Bauweise Icon
BauweiseHolz-Tafelbau
Anzahl Räume Icon
Anzahl Räume5
Baustil Icon
BaustilKlassische Familienhäuser
Fassade Icon
FassadePutz
Außenmaße Icon
Außenmaße13 m x 10.5 m
Wohnfläche Icon
Wohnfläche183.23 m²
Dachform Icon
DachformWalm-/Zeltdach
Etagen Icon
Etagen2
Energiestandard Icon
EnergiestandardEffizienzhaus 40
Immobilientyp Icon
ImmobilientypKundenhaus
Hauseigenschaften Icon
HauseigenschaftenGästezimmer, Terasse
Hausdämmstoff Icon
HausdämmstoffHolzfaser- und Zellulosedämmstoffe
Heizungsart Icon
HeizungsartWärmepumpe (Luft, Wasser, oder beides)
Pfeil nach unten linksWir schaffen Platz für Ihre Träume

Grundriss

no description
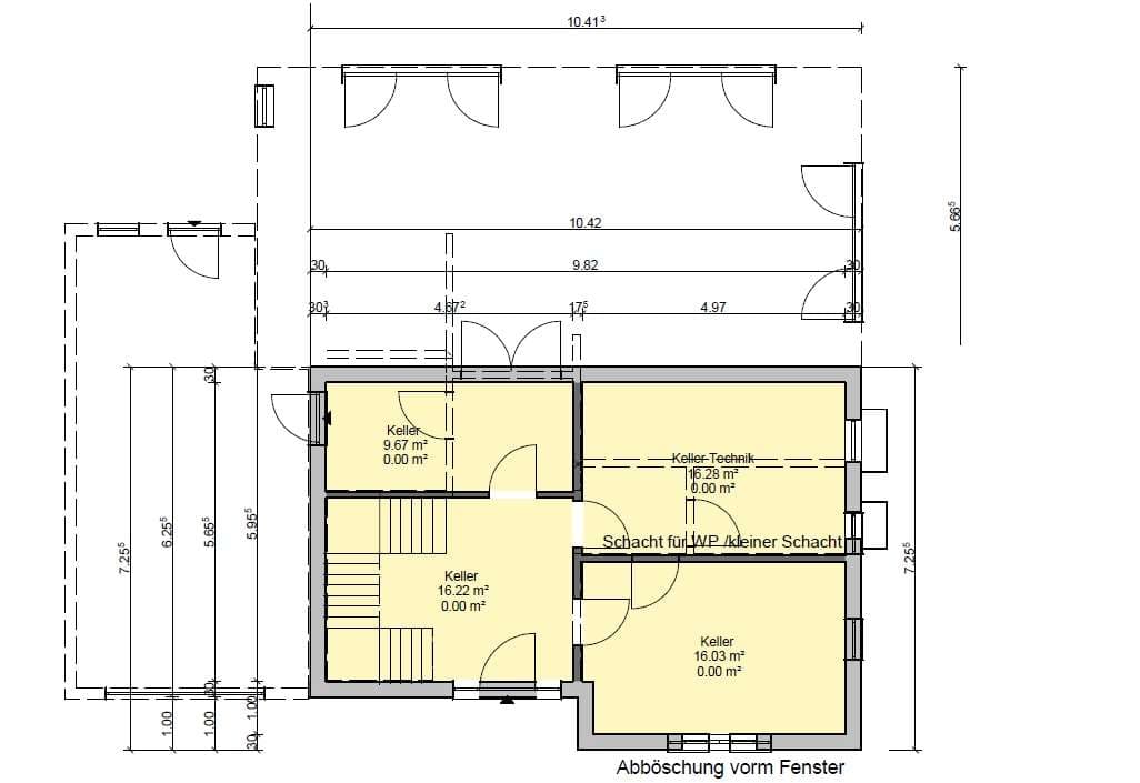
Klassische Stadtvilla mit Stil Grundriss (Keller)Wohnfläche KG: 58,2 m²
no description
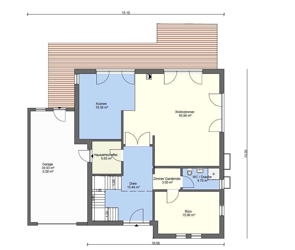
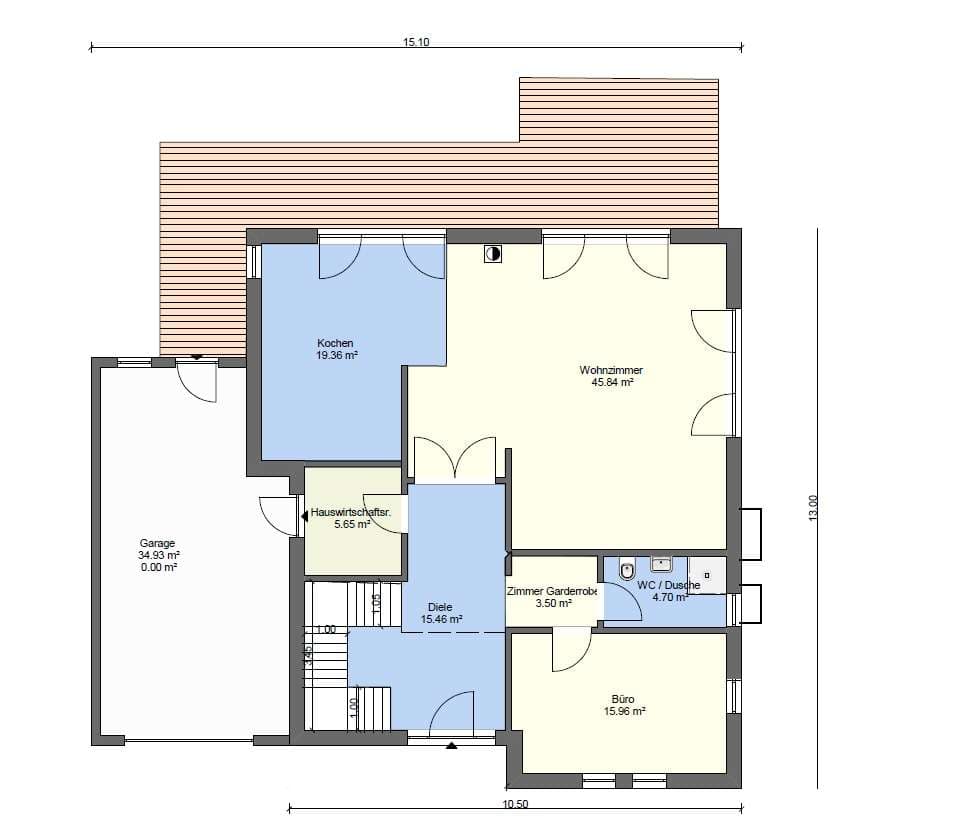
Klassische Stadtvilla mit Stil Grundriss (EG)Wohnfläche EG: 110,47 m²
no description
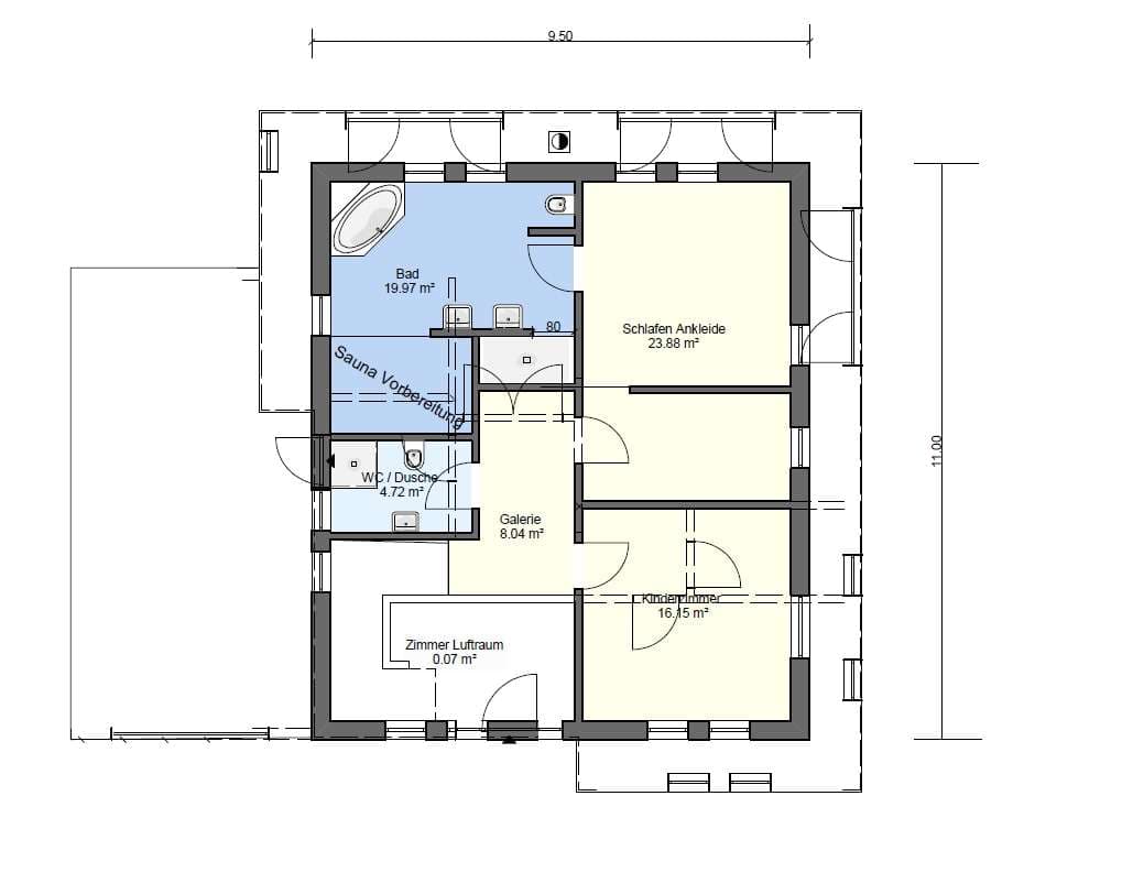
Klassische Stadtvilla mit Stil Grundriss (OG)Wohnfläche OG: 72,76 m²

Kataloge

petershaus: Hauskatalog
petershaus GmbH & Co. KG

petershaus: Hauskatalog


House and TreeParksHouse and PinMusterhausHouse on HandAnbieter