1. AnbieterArrow Icon
  2. Living HausArrow Icon
  3. SUNSHINE 151 V2
Slide 1
Slide 2
Slide 3
Slide 4
Slide 5
favicon.png
Living HausSUNSHINE 151 V2
homeKlassische Familienhäuser
livingArea152 m²
energyStandardEffizienzhaus 55
Preis anfragen
Katalog bestellen

SUNSHINE 151 V2

Komfortables Traumhaus mit Erker, Carport und Indach-Photovoltaik-Anlage

Call me maybe?

Gemeinsam starten wir mit vollem Schub in Richtung Eigenheim. Du willst mit uns sprechen, Fragen stellen, dein Zuhause planen? Dann kontaktiere uns! Ob Beratung in einem unserer Büros vor Ort, digital über Zoom oder doch bei dir Zuhause auf deinem Sofa – du entscheidest! Gib einfach deine Postleitzahl ein und finde deinen Hausberater.
 

SUNSHINE 151 V2

Das SUNSHINE 151 bietet dir die perfekten Lösungen für die unterschiedlichsten Wohnanforderungen. Wenn ihr gerne länger ausgeht oder mit Freunden öfters die Nacht zum Tag macht – am Ende des Tages geht ihr im Erdgeschoss zu Bett, und die Kinder können oben unterm Dach ruhig schlafen. Das Gästezimmer neben den Kinderzimmern lässt sich auch als zusätzliches Spielzimmer nutzen, das das Kinderreich perfekt ergänzt. Dank seiner vier unterschiedlichen Obergeschoss-Varianten eignet sich dieses Haus für große Familien genauso wie für kleine. So könnt ihr auswählen, ob alle Familienmitglieder ihre Schlafzimmer im Obergeschoss haben oder ob ein Teil der Familie unten und der andere oben in bis zu fünf Schlafzimmern wohnt.

Grundrisse und Abbildungen können Extras zeigen. Flächenangaben nach DIN 277.

Wir bei Living Haus sind Zuhauseversteher, Problemlöser, Konzeptdenker, Könner und Macher. Seit 2015 transformieren wir den Hausbaumarkt und bieten unseren Baufamilien Fertighäuser, genau wie sie es wollen. Bei Living Haus, und das sagt schon der Name, geht es um das Leben unserer Baufamilien – denn darauf kommt es an. Wir glauben daran, dass allein die individuellen Träume und Wünsche unserer Baufamilien im Fokus stehen.

Living Haus bietet Fertighäuser nach höchsten Qualitätsstandards, architektonische Vielfalt und Möglichkeit zur Eigeninitiative. Dazu unterstützen wir unsere Baufamilien mit unserer Bandbreite an Inklusivleistungen, wie dem Zuhause-Paket, der Hausbau-App, dem Küchen-Paket, dem DIY Coaching sowie dem Finanzierungs- und Grundstücksservice.

Mehr Infos findest du direkt bei Living Haus

 

Hausdaten

Hausart Icon
HausartEinfamilienhaus
Bauweise Icon
BauweiseHolz-Tafelbau
Anzahl Räume Icon
Anzahl Räume5
Baustil Icon
BaustilKlassische Familienhäuser
Fassade Icon
FassadePutz
Wohnfläche Icon
Wohnfläche152.21 m²
Dachform Icon
DachformSattel-/Giebeldach
Energiestandard Icon
EnergiestandardEffizienzhaus 55
Immobilientyp Icon
ImmobilientypPlanungsidee
Dachneigung Icon
Dachneigung38°
Kniestock Icon
Kniestock1 m
Hauseigenschaften Icon
HauseigenschaftenGästezimmer
Hausdämmstoff Icon
HausdämmstoffMineralfaser (Glaswolle, Steinwolle)
Heizungsart Icon
HeizungsartGas-Brennwertheizung
Pfeil nach unten linksWir schaffen Platz für Ihre Träume

Grundriss

SUN_151_SD_V2_EG[1].jpg
SUNSHINE 151 V2 Grundriss (EG)Wohnfläche EG: 77,67 m²
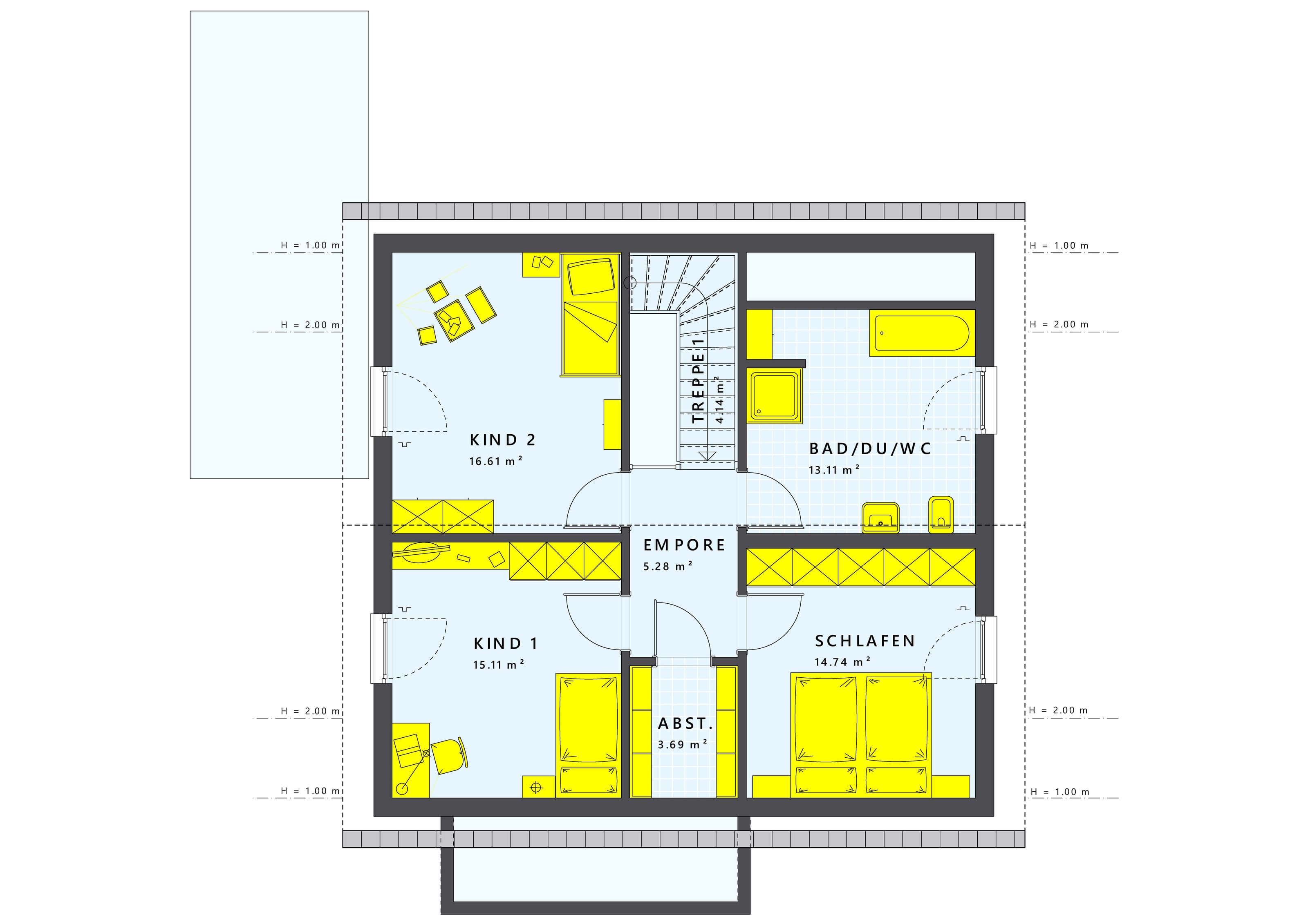
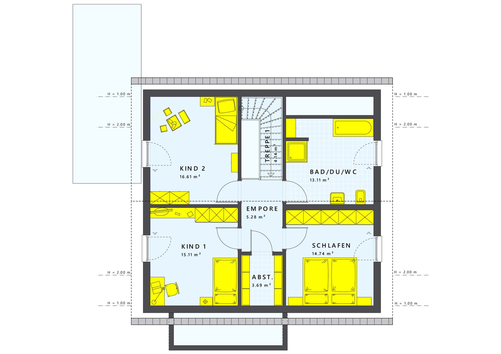
SUN_151_SD_V2_DG[1].jpg
SUNSHINE 151 V2 Grundriss (DG)Wohnfläche DG: 74,54 m²

Unser Team vor Ort

Living HausFachberater*in bei Living Haus
Default Avatar
Wir beraten Sie gerne!Arrow Icon
Living Haus Online-BeratungFachberater*in bei Living Haus
Beratungsbild_LH.png

Kataloge

Living Haus: Hauskatalog
Living Haus

Living Haus: Hauskatalog


House and TreeParksHouse and PinMusterhausHouse on HandAnbieter