1. AnbieterArrow Icon
  2. Living HausArrow Icon
  3. SUNSHINE 112 V2
Slide 1
Slide 2
favicon.png
Living HausSUNSHINE 112 V2
homeKlassische Familienhäuser
livingArea113 m²
energyStandardEffizienzhaus 55
Preis anfragen
Katalog bestellen

SUNSHINE 112 V2

Modernes Einfamilienhaus mit zwei Vollgeschossen, ideal für die Stadt

Call me maybe?
Gemeinsam starten wir mit vollem Schub in Richtung Eigenheim. Du willst mit uns sprechen, Fragen stellen, dein Zuhause planen? Dann kontaktiere uns! Ob Beratung in einem unserer Büros vor Ort, digital über Zoom oder doch bei dir Zuhause auf deinem Sofa – du entscheidest! Gib einfach deine Postleitzahl ein und finde deinen Hausberater.
 

SUNSHINE 112 V2

Mit dem SUNSHINE 112 setzt man ein klares Statement. Dieses kompakte Traumhaus ist ein formschöner Monolith inmitten austauschbarer Häuserarchitektur, der mit einer prägnanten Farbgebung der Fassadenteile die Blicke auf sich zieht. So bestechend die äußere Linienführung wirkt, so kompromisslos ist die Grundrissgestaltung im Haus. Je nach gewählter Aufteilung im Erdgeschoss kommt man beispielsweise zur Seite rein und geht in den befreiend offen konzipierten Wohn-Ess-Kochbereich; oder man biegt gleich rechts ab die Treppe hinauf. Das zweite Vollgeschoss hält jede Menge Wohnraum für eine vierköpfige Familie bereit. Eine grundsätzliche Alternative ist der Hauseingang auf der Giebelseite. Vorbei an der Luxusgarderobe führt der Weg dann geradewegs in die Küche, in der man ganz entspannt am Tresen sitzen kann. Wenn’s noch gemütlicher sein soll, lockt die Sitzecke – oder es folgt der Rückzug ins Obergeschoss. Da gibt’s die Zimmer für Eltern und Kinder und ein Familienbad.

Grundrisse und Abbildungen können Extras zeigen. Flächenangaben nach DIN 277.

Wir bei Living Haus sind Zuhauseversteher, Problemlöser, Konzeptdenker, Könner und Macher. Seit 2015 transformieren wir den Hausbaumarkt und bieten unseren Baufamilien Fertighäuser, genau wie sie es wollen. Bei Living Haus, und das sagt schon der Name, geht es um das Leben unserer Baufamilien – denn darauf kommt es an. Wir glauben daran, dass allein die individuellen Träume und Wünsche unserer Baufamilien im Fokus stehen.

Living Haus bietet Fertighäuser nach höchsten Qualitätsstandards, architektonische Vielfalt und Möglichkeit zur Eigeninitiative. Dazu unterstützen wir unsere Baufamilien mit unserer Bandbreite an Inklusivleistungen, wie dem Zuhause-Paket, der Hausbau-App, dem Küchen-Paket, dem DIY Coaching sowie dem Finanzierungs- und Grundstücksservice.

Mehr Infos findest du direkt bei Living Haus

 

Hausdaten

Hausart Icon
HausartEinfamilienhaus
Bauweise Icon
BauweiseHolz-Tafelbau
Anzahl Räume Icon
Anzahl Räume4
Baustil Icon
BaustilKlassische Familienhäuser
Fassade Icon
FassadePutz
Wohnfläche Icon
Wohnfläche113.4 m²
Dachform Icon
DachformSattel-/Giebeldach
Energiestandard Icon
EnergiestandardEffizienzhaus 55
Immobilientyp Icon
ImmobilientypPlanungsidee
Dachneigung Icon
Dachneigung25°
Kniestock Icon
Kniestock2 m
Hauseigenschaften Icon
HauseigenschaftenGästezimmer
Hausdämmstoff Icon
HausdämmstoffMineralfaser (Glaswolle, Steinwolle)
Heizungsart Icon
HeizungsartGas-Brennwertheizung
Pfeil nach unten linksWir schaffen Platz für Ihre Träume

Grundriss

SUN_112_V_SD_EG[1].jpg
SUNSHINE 112 V2 Grundriss (EG)Wohnfläche EG: 57,13 m²
SUN_112_V_SD_DG[1].jpg
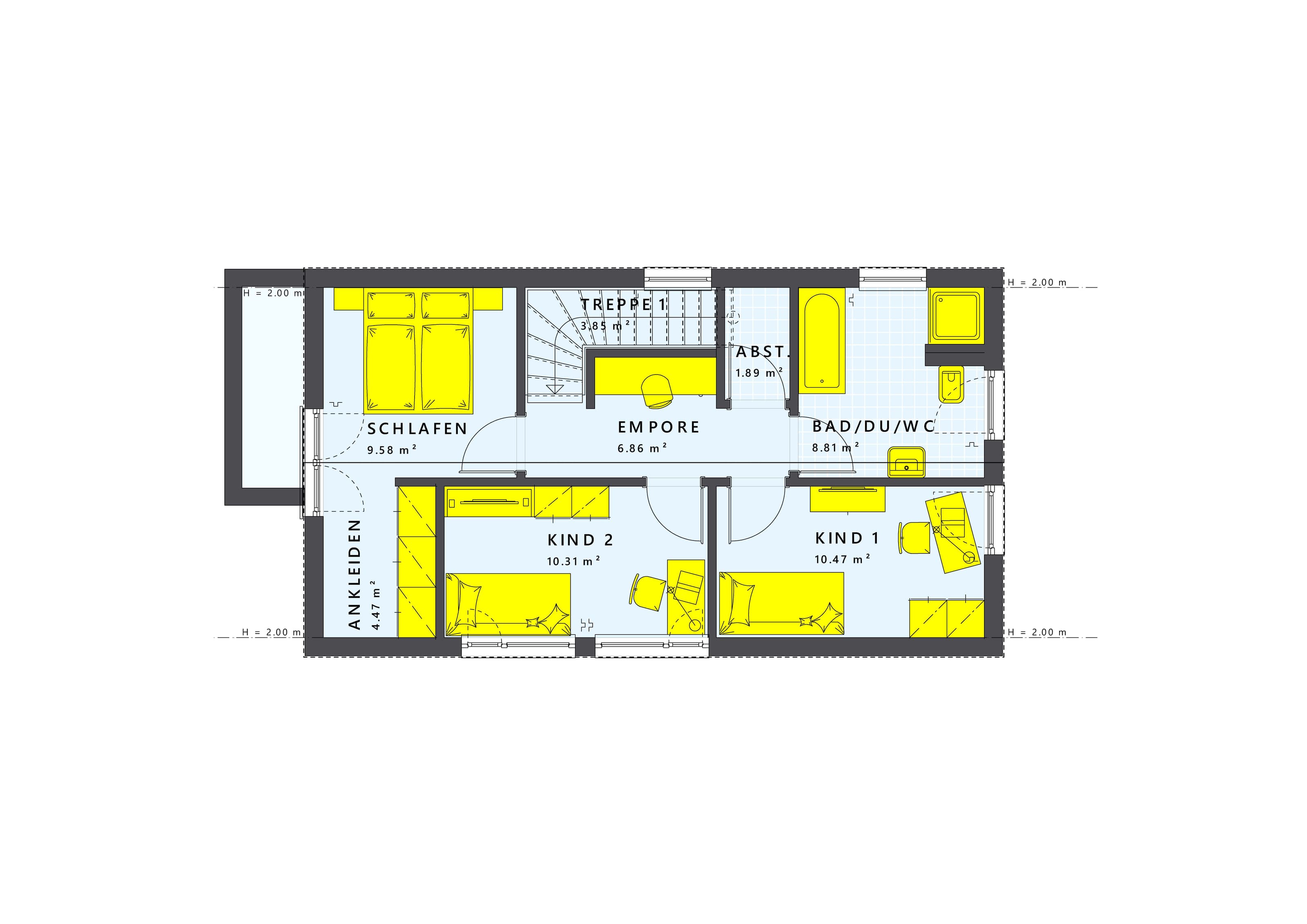
SUNSHINE 112 V2 Grundriss (OG)Wohnfläche OG: 56,27 m²

Unser Team vor Ort

Living Haus Online-BeratungFachberater*in bei Living Haus
Beratungsbild_LH.png
Wir beraten Sie gerne!Arrow Icon
Living HausFachberater*in bei Living Haus
Default Avatar

Kataloge

Living Haus: Hauskatalog
Living Haus

Living Haus: Hauskatalog


House and TreeParksHouse and PinMusterhausHouse on HandAnbieter