1. AnbieterArrow Icon
  2. Living HausArrow Icon
  3. SUNSHINE 107 V3
Living Haus –
favicon.png
Living HausSUNSHINE 107 V3
homeKubushäuser im Bauhausstil
livingArea108 m²
energyStandardEffizienzhaus 55
Preis anfragen
Katalog bestellen

SUNSHINE 107 V3

Kompaktes Einfamilienhaus im Bauhausstil mit Erkern und Balkon

Call me maybe?
Gemeinsam starten wir mit vollem Schub in Richtung Eigenheim. Du willst mit uns sprechen, Fragen stellen, dein Zuhause planen? Dann kontaktiere uns! Ob Beratung in einem unserer Büros vor Ort, digital über Zoom oder doch bei dir Zuhause auf deinem Sofa – du entscheidest! Gib einfach deine Postleitzahl ein und finde deinen Hausberater.
 

SUNSHINE 107 V3

Das SUNSHINE 107 macht überall eine super Figur, gerade auch auf schmalen Grundstücken und in Baulücken im urbanen Umfeld. Ob mit Satteldach und verspielten Holzfassadenelementen oder schnörkellosem Baukörper für echte Puristen: Das SUNSHINE 107 ist so oder so genau dein Typ! Dank flexibler Grundrissplanung kannst du die Zimmeraufteilung individuell gestalten, sodass sich auch dein Nachwuchs rundherum wohlfühlt. Ohne Keller zu bauen, bedeutet bei diesen traumhaften Einfamilienhäusern keine Abstriche. Da nehmt doch lieber den Technikraum im Erdgeschoss, der zusätzlich auch für anderes gut ist – und gönnt euch einen Balkon. Draußen sein im Schlafanzug, einfach herrlich. Und darunter gibt’s so auch die witterungsgeschützte Terrasse.

Grundrisse und Abbildungen können Extras zeigen. Flächenangaben nach DIN 277.

Wir bei Living Haus sind Zuhauseversteher, Problemlöser, Konzeptdenker, Könner und Macher. Seit 2015 transformieren wir den Hausbaumarkt und bieten unseren Baufamilien Fertighäuser, genau wie sie es wollen. Bei Living Haus, und das sagt schon der Name, geht es um das Leben unserer Baufamilien – denn darauf kommt es an. Wir glauben daran, dass allein die individuellen Träume und Wünsche unserer Baufamilien im Fokus stehen.

Living Haus bietet Fertighäuser nach höchsten Qualitätsstandards, architektonische Vielfalt und Möglichkeit zur Eigeninitiative. Dazu unterstützen wir unsere Baufamilien mit unserer Bandbreite an Inklusivleistungen, wie dem Zuhause-Paket, der Hausbau-App, dem Küchen-Paket, dem DIY Coaching sowie dem Finanzierungs- und Grundstücksservice.

Mehr Infos findest du direkt bei Living Haus

 

Hausdaten

Hausart Icon
HausartEinfamilienhaus
Bauweise Icon
BauweiseHolz-Tafelbau
Anzahl Räume Icon
Anzahl Räume3
Baustil Icon
BaustilKubushäuser im Bauhausstil
Fassade Icon
FassadePutz
Wohnfläche Icon
Wohnfläche107.93 m²
Dachform Icon
DachformFlachdach
Energiestandard Icon
EnergiestandardEffizienzhaus 55
Immobilientyp Icon
ImmobilientypPlanungsidee
Hauseigenschaften Icon
HauseigenschaftenTerasse
Hausdämmstoff Icon
HausdämmstoffMineralfaser (Glaswolle, Steinwolle)
Heizungsart Icon
HeizungsartGas-Brennwertheizung
Pfeil nach unten linksWir schaffen Platz für Ihre Träume

Grundriss

SUN_107_V_FD_EG.jpg
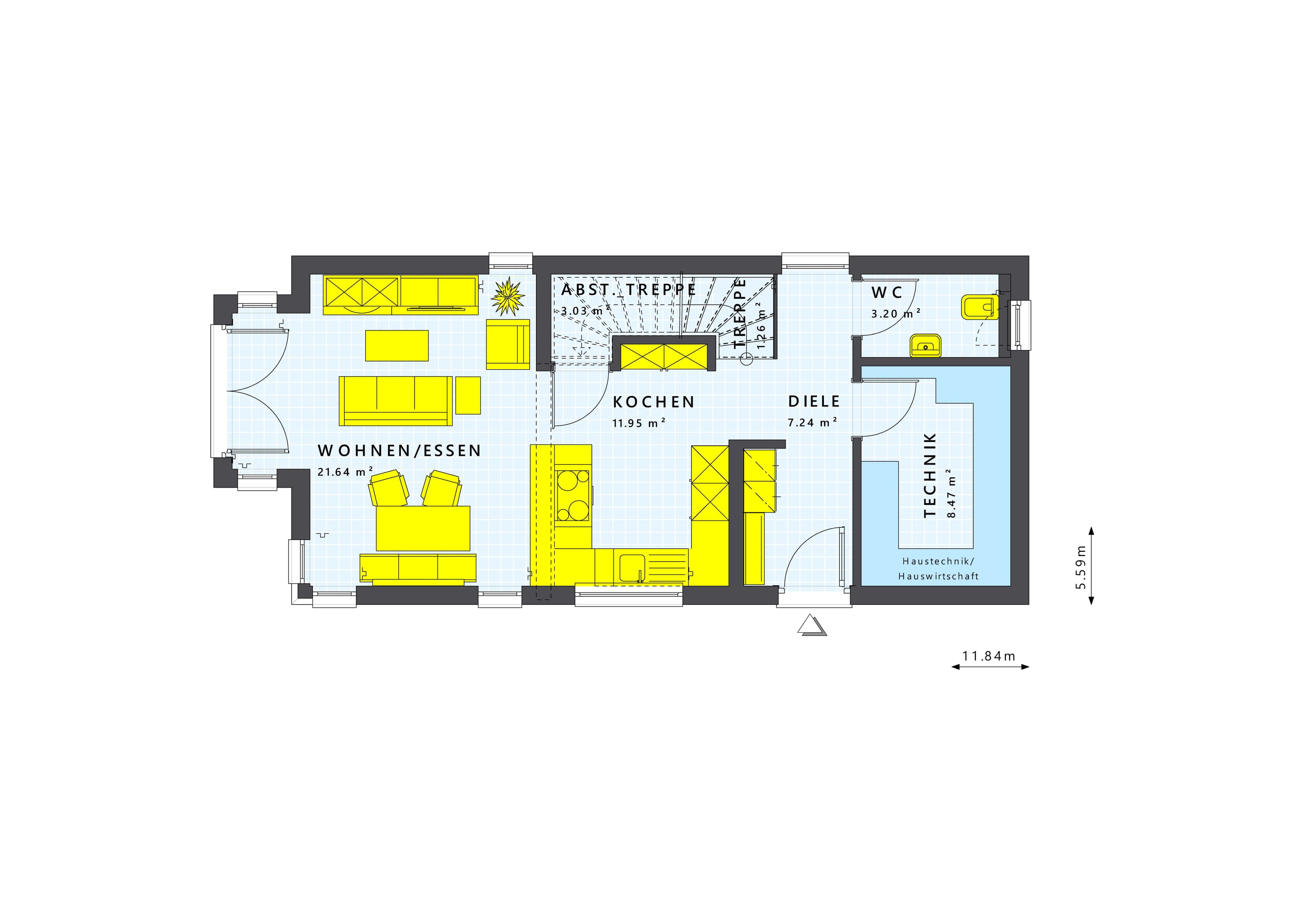
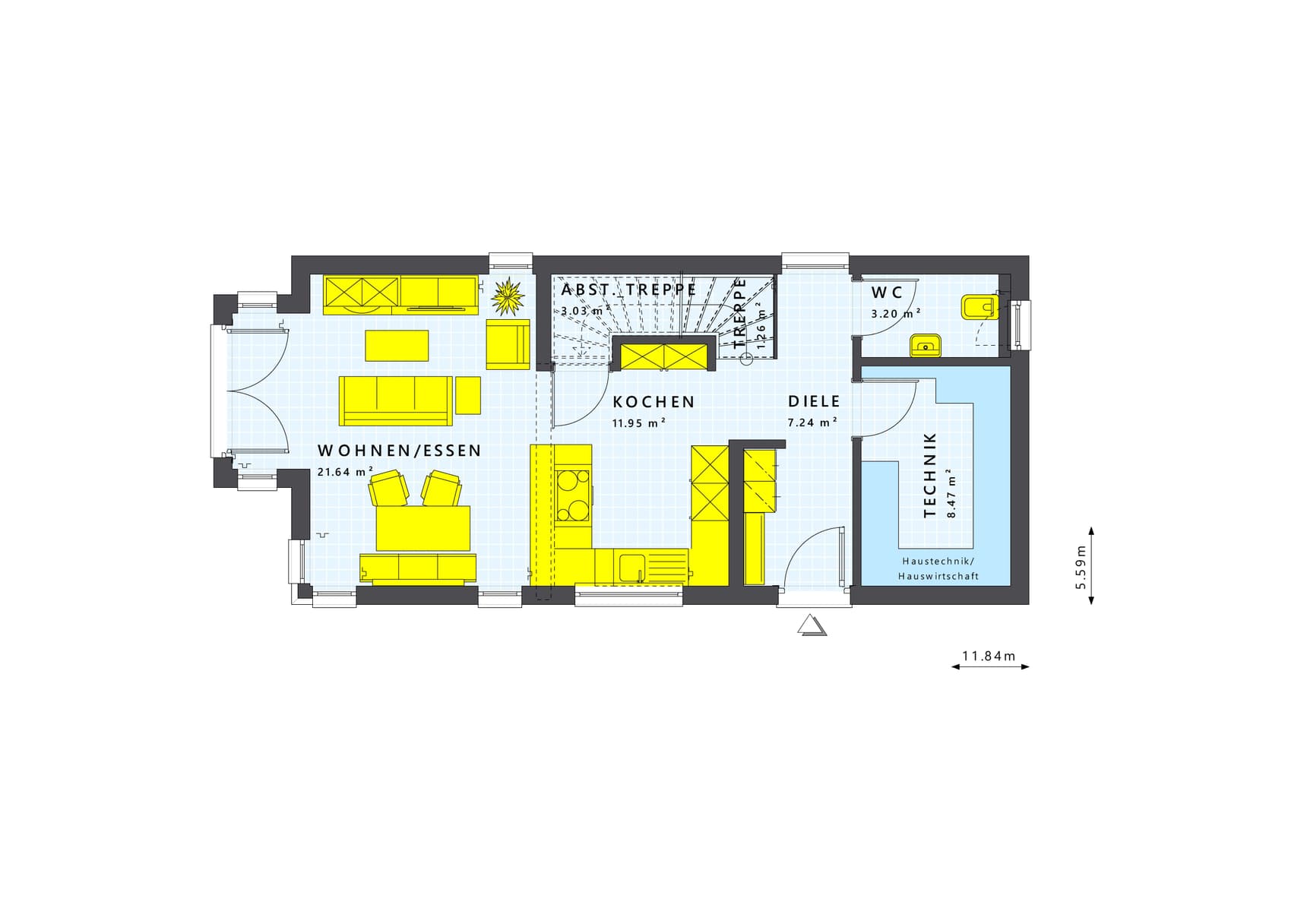
SUNSHINE 107 V3 Grundriss (EG)Wohnfläche EG: 53,76 m²
SUN_107_V_FD_OG.jpg
SUNSHINE 107 V3 Grundriss (OG)Wohnfläche OG: 54,17 m²

Unser Team vor Ort

Living Haus Online-BeratungFachberater*in bei Living Haus
Beratungsbild_LH.png
Wir beraten Sie gerne!Arrow Icon
Living HausFachberater*in bei Living Haus
Default Avatar

Kataloge

Living Haus: Hauskatalog
Living Haus

Living Haus: Hauskatalog


House and TreeParksHouse and PinMusterhausHouse on HandAnbieter
Living Haus – SUNSHINE 107 FD