1. AnbieterArrow Icon
  2. Living HausArrow Icon
  3. SUNSHINE 143 V7
Slide 1
Slide 2
Slide 3
Slide 4
favicon.png
Living HausSUNSHINE 143 V7
homeKubushäuser im Bauhausstil
livingArea145 m²
energyStandardEffizienzhaus 55
Preis anfragen
Katalog bestellen

SUNSHINE 143 V7

Schickes Einfamilienhaus im Bauhausstil zum absoluten Traumpreis

Call me maybe?
Gemeinsam starten wir mit vollem Schub in Richtung Eigenheim. Du willst mit uns sprechen, Fragen stellen, dein Zuhause planen? Dann kontaktiere uns! Ob Beratung in einem unserer Büros vor Ort, digital über Zoom oder doch bei dir Zuhause auf deinem Sofa – du entscheidest! Gib einfach deine Postleitzahl ein und finde deinen Hausberater.
 

SUNSHINE 143 V7

Leben, lieben, lachen und natürlich auch genießen – das SUNSHINE 143 ist ein Haus zum Glücklichsein. Die große Wohneinheit aus Wohn- und Esszimmer mit offener Küche im Erdgeschoss ist das Herz des Hauses und Anlaufstelle für deine ganze Familie. Hier kocht und esst ihr zusammen, feiert Feste und genießt gemütliche Stunden auf dem Sofa. Und das Obergeschoss bietet alles, was zum Relaxen und Abschalten wichtig ist: Privatsphäre und Ruhe in den Schlafzimmern für Eltern und Kinder und ein großes Bad inklusive Badewanne für Wellnessstunden in den eigenen vier Wänden. Zudem bieten Dachvarianten und Architektur-Accessoires flexible Gestaltungsmöglichkeiten.  

Grundrisse und Abbildungen können Extras zeigen. Flächenangaben nach DIN 277.

Wir bei Living Haus sind Zuhauseversteher, Problemlöser, Konzeptdenker, Könner und Macher. Seit 2015 transformieren wir den Hausbaumarkt und bieten unseren Baufamilien Fertighäuser, genau wie sie es wollen. Bei Living Haus, und das sagt schon der Name, geht es um das Leben unserer Baufamilien – denn darauf kommt es an. Wir glauben daran, dass allein die individuellen Träume und Wünsche unserer Baufamilien im Fokus stehen.

Living Haus bietet Fertighäuser nach höchsten Qualitätsstandards, architektonische Vielfalt und Möglichkeit zur Eigeninitiative. Dazu unterstützen wir unsere Baufamilien mit unserer Bandbreite an Inklusivleistungen, wie dem Zuhause-Paket, der Hausbau-App, dem Küchen-Paket, dem DIY Coaching sowie dem Finanzierungs- und Grundstücksservice.

Mehr Infos findest du direkt bei Living Haus

 

Hausdaten

Hausart Icon
HausartEinfamilienhaus
Bauweise Icon
BauweiseHolz-Tafelbau
Anzahl Räume Icon
Anzahl Räume5
Baustil Icon
BaustilKubushäuser im Bauhausstil
Fassade Icon
FassadePutz
Wohnfläche Icon
Wohnfläche145.39 m²
Dachform Icon
DachformFlachdach
Energiestandard Icon
EnergiestandardEffizienzhaus 55
Immobilientyp Icon
ImmobilientypPlanungsidee
Dachneigung Icon
Dachneigung
Hauseigenschaften Icon
HauseigenschaftenGästezimmer
Hausdämmstoff Icon
HausdämmstoffMineralfaser (Glaswolle, Steinwolle)
Heizungsart Icon
HeizungsartGas-Brennwertheizung
Pfeil nach unten linksWir schaffen Platz für Ihre Träume

Grundriss

SUN_143_V7_KAT_EG[1].jpg
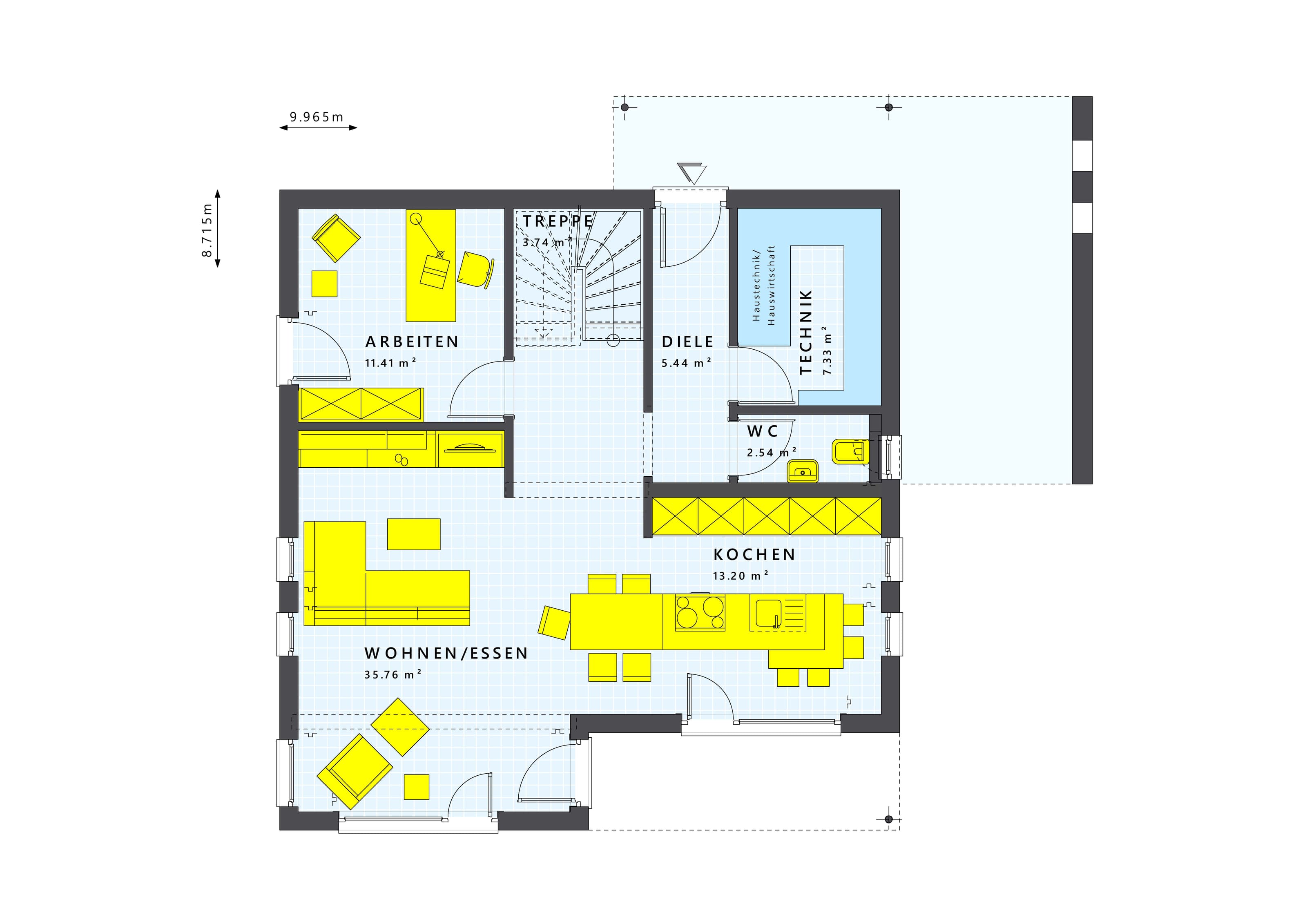
SUNSHINE 143 V7 Grundriss (EG)Wohnfläche EG: 72,67 m²
SUN_143_V7_KAT_OG[1].jpg
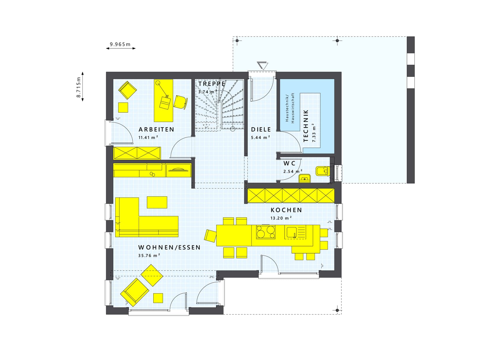
SUNSHINE 143 V7 Grundriss (OG)Wohnfläche OG: 72,72 m²

Unser Team vor Ort

Living HausFachberater*in bei Living Haus
Default Avatar
Wir beraten Sie gerne!Arrow Icon
Living Haus Online-BeratungFachberater*in bei Living Haus
Beratungsbild_LH.png

Kataloge

Living Haus: Hauskatalog
Living Haus

Living Haus: Hauskatalog


House and TreeParksHouse and PinMusterhausHouse on HandAnbieter