1. AnbieterArrow Icon
  2. Living HausArrow Icon
  3. SUNSHINE 126 V7
Slide 1
Slide 2
Slide 3
Slide 4
Slide 5
Slide 6
favicon.png
Living HausSUNSHINE 126 V7
homeStadtvillen
livingArea125 m²
energyStandardEffizienzhaus 55
Preis anfragen
Katalog bestellen

SUNSHINE 126 V7

Großzügiges Walmdachhaus mit Übereckerker und Balkon

Call me maybe?
Gemeinsam starten wir mit vollem Schub in Richtung Eigenheim. Du willst mit uns sprechen, Fragen stellen, dein Zuhause planen? Dann kontaktiere uns! Ob Beratung in einem unserer Büros vor Ort, digital über Zoom oder doch bei dir Zuhause auf deinem Sofa – du entscheidest! Gib einfach deine Postleitzahl ein und finde deinen Hausberater.
 

SUNSHINE 126 V7

Das SUNSHINE 126 bietet dir alles, was du dir von den eigenen vier Wänden wünschst. Von außen bestechen die attraktive Architektur und das schicke Design und im Inneren die clevere und großzügige Raumgestaltung. Damit alles deinem Geschmack und deinen Wünschen entspricht, kannst du den kompletten Look und die Größe deines neuen Zuhauses ganz individuell anpassen. Der clever gestaltete Grundriss im Erd- und im Obergeschoss bietet zahlreiche Highlights wie die zentrale Küche und die große Ankleide. Damit erwartet euch im Erdgeschoss ein phantastisches Raumkonzept, in dem ihr das aktive Familienleben genießen könnt. Und im Obergeschoss kommt ihr in den Genuss des Wellness-Bades und der großzügigen Schlafräume.

Grundrisse und Abbildungen können Extras zeigen. Flächenangaben nach DIN 277.

Wir bei Living Haus sind Zuhauseversteher, Problemlöser, Konzeptdenker, Könner und Macher. Seit 2015 transformieren wir den Hausbaumarkt und bieten unseren Baufamilien Fertighäuser, genau wie sie es wollen. Bei Living Haus, und das sagt schon der Name, geht es um das Leben unserer Baufamilien – denn darauf kommt es an. Wir glauben daran, dass allein die individuellen Träume und Wünsche unserer Baufamilien im Fokus stehen.

Living Haus bietet Fertighäuser nach höchsten Qualitätsstandards, architektonische Vielfalt und Möglichkeit zur Eigeninitiative. Dazu unterstützen wir unsere Baufamilien mit unserer Bandbreite an Inklusivleistungen, wie dem Zuhause-Paket, der Hausbau-App, dem Küchen-Paket, dem DIY Coaching sowie dem Finanzierungs- und Grundstücksservice.

Mehr Infos findest du direkt bei Living Haus

 

Hausdaten

Hausart Icon
HausartEinfamilienhaus
Bauweise Icon
BauweiseHolz-Tafelbau
Anzahl Räume Icon
Anzahl Räume3
Baustil Icon
BaustilStadtvillen
Fassade Icon
FassadePutz
Wohnfläche Icon
Wohnfläche125.41 m²
Dachform Icon
DachformWalm-/Zeltdach
Energiestandard Icon
EnergiestandardEffizienzhaus 55
Immobilientyp Icon
ImmobilientypPlanungsidee
Dachneigung Icon
Dachneigung22°
Hauseigenschaften Icon
HauseigenschaftenGästezimmer
Hausdämmstoff Icon
HausdämmstoffMineralfaser (Glaswolle, Steinwolle)
Heizungsart Icon
HeizungsartGas-Brennwertheizung
Pfeil nach unten linksWir schaffen Platz für Ihre Träume

Grundriss

SUN_126_WD_V7_EG[1].jpg
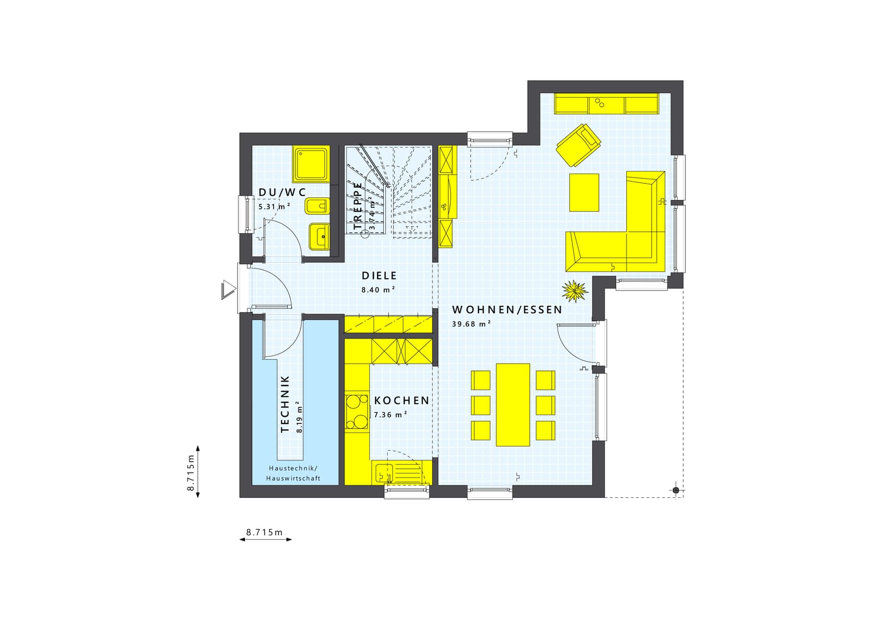
SUNSHINE 126 V7 Grundriss (EG)Wohnfläche EG: 62,44 m²
SUN_126_WD_V7_OG[1].jpg
SUNSHINE 126 V7 Grundriss (OG)Wohnfläche OG: 62,97 m²

Unser Team vor Ort

Living Haus Online-BeratungFachberater*in bei Living Haus
Beratungsbild_LH.png
Wir beraten Sie gerne!Arrow Icon
Living HausFachberater*in bei Living Haus
Default Avatar

Kataloge

Living Haus: Hauskatalog
Living Haus

Living Haus: Hauskatalog


House and TreeParksHouse and PinMusterhausHouse on HandAnbieter