1. AnbieterArrow Icon
  2. Lehner HausArrow Icon
  3. Musterhaus Günzburg
Slide 1
Location Icon
Slide 2
Location Icon
Slide 3
Location Icon
no description
Lehner HausMusterhaus Günzburg
homeStadtvillen
livingArea157 m²
energyStandardEffizienzhaus 40 Plus
Preis anfragen

Musterhaus Günzburg

Lehner hat ein bezahlbares Zuhause entwickelt, eine Heimat für das Paar oder die Familie. Eine großzügige räumliche Offenheit sollte neben der Möglichkeit für persönliche Rückzugsorte realisiert werden. Die großzügigen Räume der Küche und des Esszimmers lassen Partys oder die Bewirtung von mehreren Gästen zu.

Es sollte nicht überdimensioniert, aber trotzdem großzügig gestaltet werden, so dass eine familiengerechte, heimelige Gemütlichkeit entsteht und trotzdem bei Besuchen der Familie oder von Freunden immer genügend Platz vorhanden ist. Deshalb sind einige Besonderheiten eingebaut worden, die variiert und auf Wunsch kombiniert werden können.

Die Highlights des neuen Musterhauses in Günzburg dürfen sich sehen lassen: Die einladende Eingangsüberdachung wurde mit ihren edlen Stahlplatten sehr filigran gestaltet und ansehnlich gelöst, das offene Entree mit einer Pfostenriegelkonstruktion belichtet die Galerie. Eine Betontreppe ist mit Schreiner-Einbauten geschmackvoll kombiniert worden und bietet darunter heimeligen Raum für den gemütlichen Rückzug oder als Sitzgelegenheit. Das vom Schreiner gestaltete Geländer rundet das gesamte Element harmonisch ab.
 

Besonders schön wirkt das Familienbad mit seinem ausgefallenen Werkbankwaschtisch. Das Schlafzimmer ist mit seiner gemütlichen Ankleide gut belichtet durch Dachflächenfenster von Velux, die einen imposanten Ausblick über den hohen Kniestock erlauben. Auch in den beiden Kinderzimmern sorgt ein hoher Lichteinfall für eine gute Atmosphäre. Und das Homeoffice im EG kann ganz einfach auch als Gästezimmer genutzt werden. Es ist direkt über den Eingangsflur erreichbar.

Ein ganz besonderes Highlight ist der raumerweiternde Wintergarten, welcher größtenteils des Jahres genutzt werden kann, obwohl er im Außenbereich liegt. In den Sommermonaten lässt sich diese Terrasse aufgrund der rahmenlosen, nahezu transparenten Schiebeelemente ganz öffnen. Selbstverständlich ist diese moderne Lösung mit einer Dachbegrünung ausgestattet worden.

Viel Gemütlichkeit bringen auch die Massivholzdecke und der Rückzugsort im Sitzfenster, der sich Außen auch als interessantes Gestaltungsmerkmal in der Fassade abzeichnet.

Technische Merkmale:

  • KFW40 Standard mit Photovoltaik und Batteriespeicher
  • Luft-Wasserwärmepumpe
  • Fußbodenheizung in der Fläche
  • Zentrale Lüftungsanlage
  • Haustechnikzentrale
  • Smarthome-Lösungen

Hausdaten

Hausart Icon
HausartEinfamilienhaus
Bauweise Icon
BauweiseHolz-Tafelbau
Baustil Icon
BaustilStadtvillen
Fassade Icon
FassadePutz
Außenmaße Icon
Außenmaße11 m x 8.5 m
Wohnfläche Icon
Wohnfläche157.07 m²
Dachform Icon
DachformSattel-/Giebeldach
Energiestandard Icon
EnergiestandardEffizienzhaus 40 Plus
Immobilientyp Icon
ImmobilientypMusterhaus
Kniestock Icon
Kniestock1.6 m
Hauseigenschaften Icon
HauseigenschaftenTerasse
Heizungsart Icon
HeizungsartWärmepumpe (Luft, Wasser, oder beides)
Pfeil nach unten linksWir schaffen Platz für Ihre Träume

Grundriss

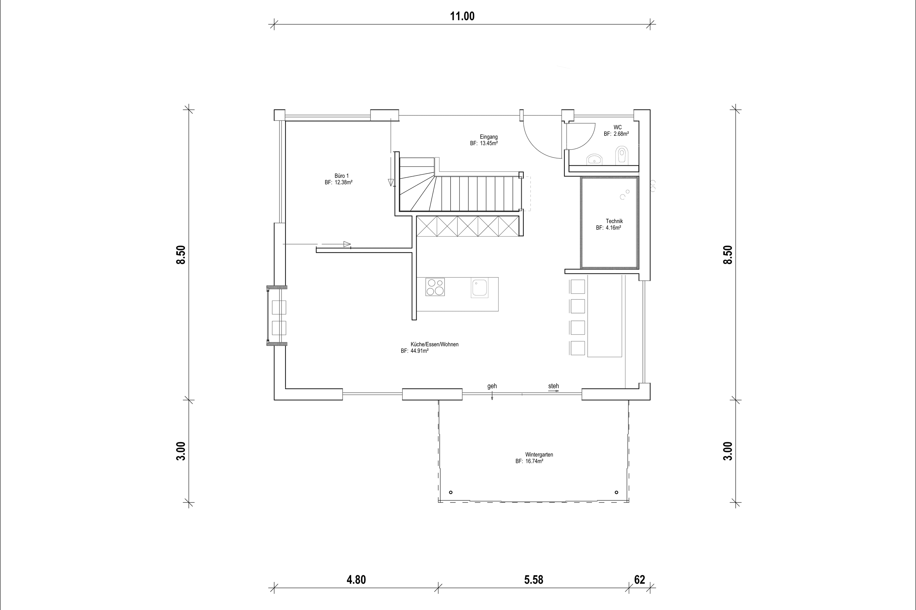
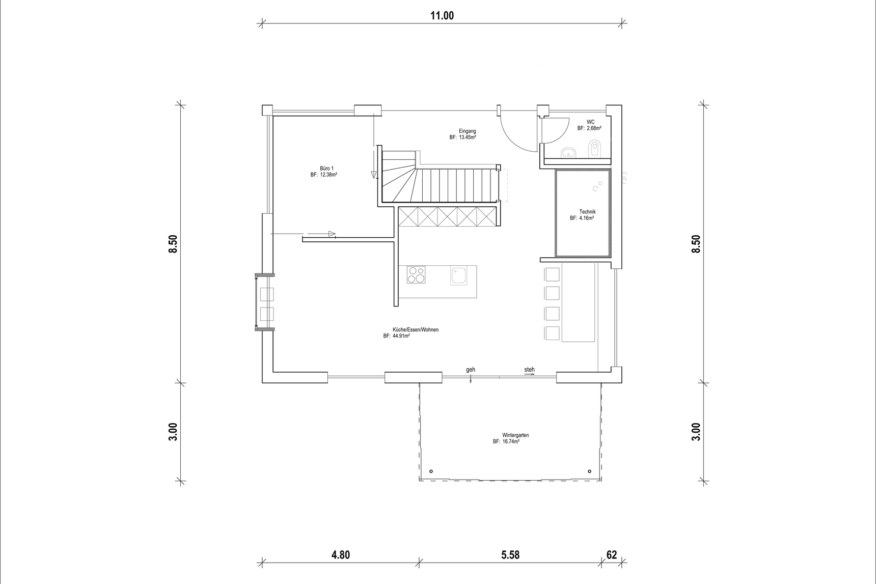
Grundriss des Erdgeschosses mit Küche, Essbereich, Wohnzimmer, Gäste-WC, Treppe und Terrasse, Maßangaben in Metern.
Musterhaus Günzburg Grundriss (EG)Wohnfläche EG: 86,96 m²
Grundriss des Obergeschosses mit Schlafzimmer, Kinderzimmern, Bad, Flur, Treppe und genauen Maßangaben in Metern.
Musterhaus Günzburg Grundriss (DG)Wohnfläche DG: 67,38 m²

Öffnungszeiten

Montag:Geschlossen
Dienstag:Geschlossen
Mittwoch:09:00 - 16:00 Uhr
Donnerstag:09:00 - 16:00 Uhr
Freitag:09:00 - 16:00 Uhr
Samstag:09:00 - 16:00 Uhr
Sonntag:09:00 - 16:00 Uhr

(öffnet Donnerstag um 13:00 Uhr)

Fronleichnam
10:00 - 17:00 Uhr

Adresse

Kimmerle-Ring 2
Günzburg 89312

Anfahrt planen

Beratungstermin

Fertighaus Team in Günzburg

Unser Team vor Ort

Franziska PaulusFachberater*in bei Lehner Haus
no description
Wir beraten Sie gerne!Arrow Icon
Gertrude Preisach-SchmittFachberater*in bei Lehner Haus
no description
Rainer BäuerleFachberater*in bei Lehner Haus
no description
Wolf ProbstFachberater*in bei Lehner Haus
no description
Gerhard StraubFachberater*in bei Lehner Haus
no description
Manuela DürrFachberater*in bei Lehner Haus
no description
House and TreeParksHouse and PinMusterhausHouse on HandAnbieter