1. AnbieterArrow Icon
  2. Lehner HausArrow Icon
  3. Homestory 449
Slide 1
Slide 2
Slide 3
Slide 4
no description
Lehner HausHomestory 449
homeKubushäuser im Bauhausstil
energyStandardEffizienzhaus 55 EE
Preis anfragen
Katalog bestellen

Homestory 449

Mehrgenerationenhaus: Gemeinsam geplant & gebaut

Das Zusammenleben mehrerer Generationen in einem Haus bedarf der wichtigen Voraussetzung, dass alle Bewohner sich relativ gut verstehen. Wenn Großeltern, Kinder und Kindeskinder dann unter einem Dach wohnen, ist man füreinander da und ergänzt sich in vielen Bereichen optimal. Die Bauherren planten für sich einen ebenerdigen barrierefreien Teil des Hauses, den anderen für die Jüngeren nach Bedarf. Der individuelle Entwurf im Bauhausstil sollte eins-zu-eins umgesetzt werden; die Energieeffizienz hatte hohe Priorität.

Hausdaten

Hausart Icon
HausartEinfamilienhaus
Bauweise Icon
BauweiseHolz-Tafelbau
Baustil Icon
BaustilKubushäuser im Bauhausstil
Dachform Icon
DachformFlachdach
Energiestandard Icon
EnergiestandardEffizienzhaus 55 EE
Immobilientyp Icon
ImmobilientypKundenhaus
Heizungsart Icon
HeizungsartWärmepumpe (Luft, Wasser, oder beides)
Pfeil nach unten linksWir schaffen Platz für Ihre Träume

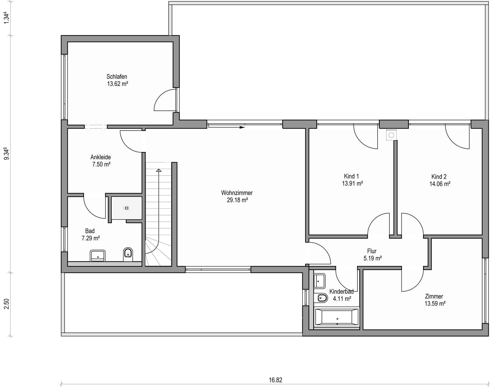
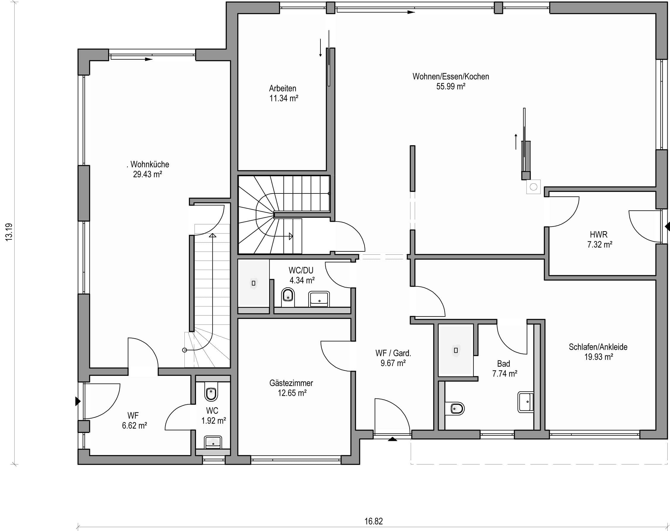
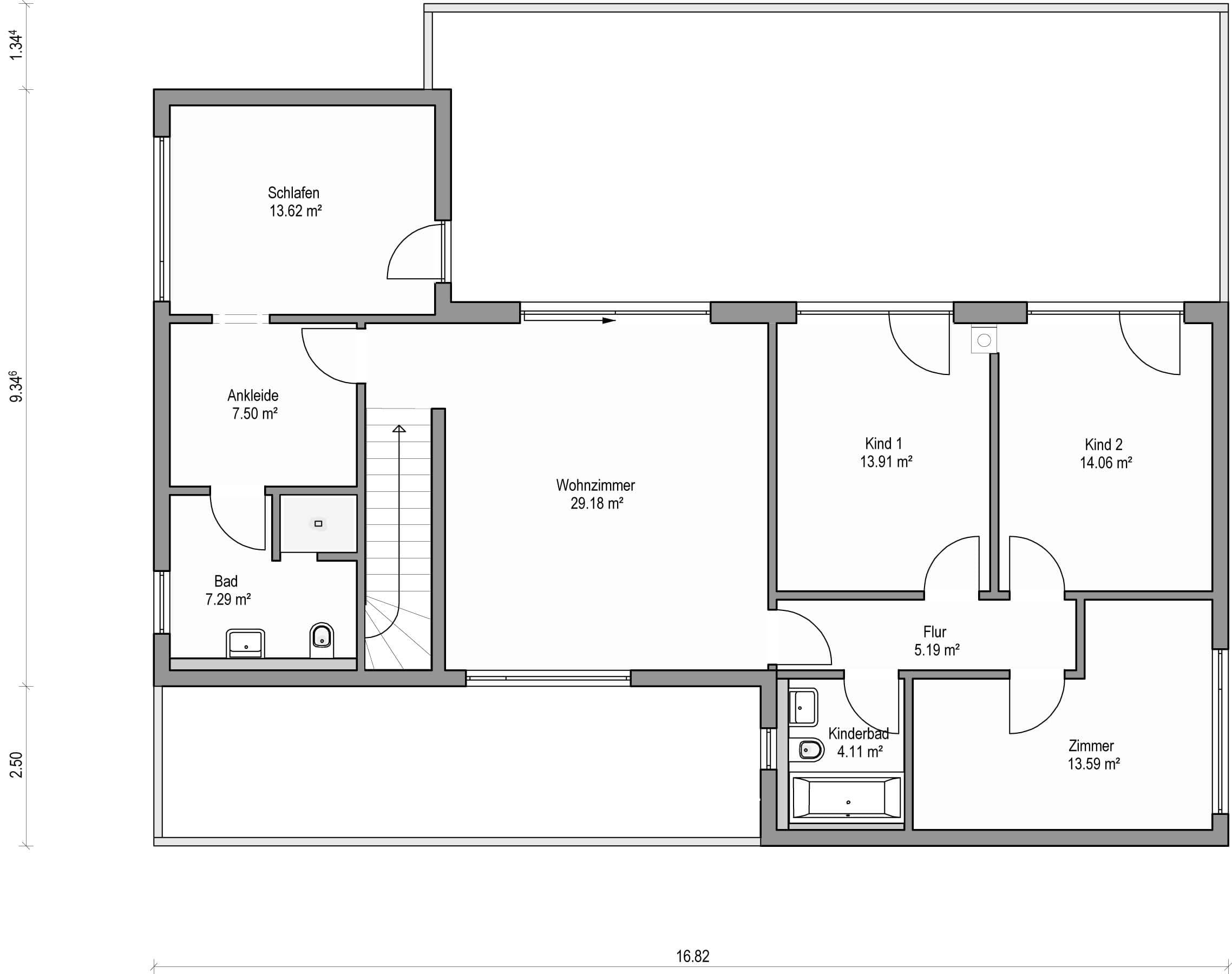
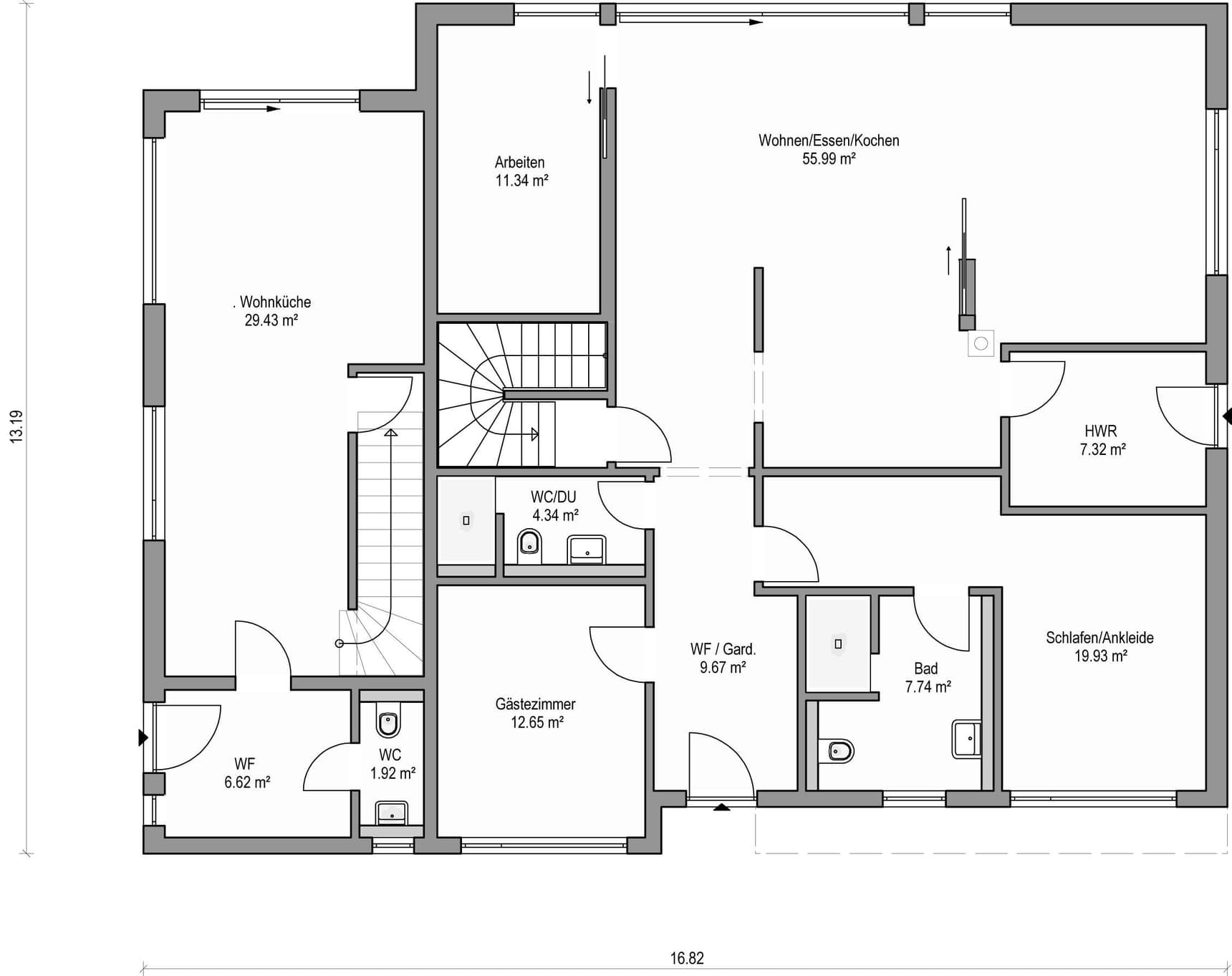
Grundriss

no description
Homestory 449 Grundriss (EG)
no description
Homestory 449 Grundriss (OG)

Kataloge

Lehner Haus: Hauskatalog
Lehner Haus

Lehner Haus: Hauskatalog


House and TreeParksHouse and PinMusterhausHouse on HandAnbieter