1. AnbieterArrow Icon
  2. Lehner HausArrow Icon
  3. Homestory 709
Slide 1
Slide 2
Slide 3
Slide 4
Slide 5
no description
Lehner HausHomestory 709
homeKlassische Familienhäuser
energyStandardEffizienzhaus 55 EE
Preis anfragen
Katalog bestellen

Homestory 709

Effizientes Familienhaus mit Gewerberaum

Energieeffizienz geht zum Beispiel so: Eine diffusionsoffene Haushülle mit viel Holz und einer sparsamen Wärmedämmung aus Naturstoffen, dazu eine Photovoltaikanlage mit Stromspeicher für die Selbstversorgung und das Abführen grüner Energie an den Versorger, außerdem eine Wärmepumpe kombiniert mit einem Kamin für das Heizen mit Holz und eine Zisterne für das Speichern von Regenwasser für den Garten - je nach Bedarf und gewünschter Architektur baut Lehner zeitgemäße Häuser für Familien oder Unternehmen.

Hausdaten

Hausart Icon
HausartEinfamilienhaus
Bauweise Icon
BauweiseHolz-Tafelbau
Baustil Icon
BaustilKlassische Familienhäuser
Dachform Icon
DachformSattel-/Giebeldach
Energiestandard Icon
EnergiestandardEffizienzhaus 55 EE
Immobilientyp Icon
ImmobilientypKundenhaus
Heizungsart Icon
HeizungsartWärmepumpe (Luft, Wasser, oder beides)
Pfeil nach unten linksWir schaffen Platz für Ihre Träume

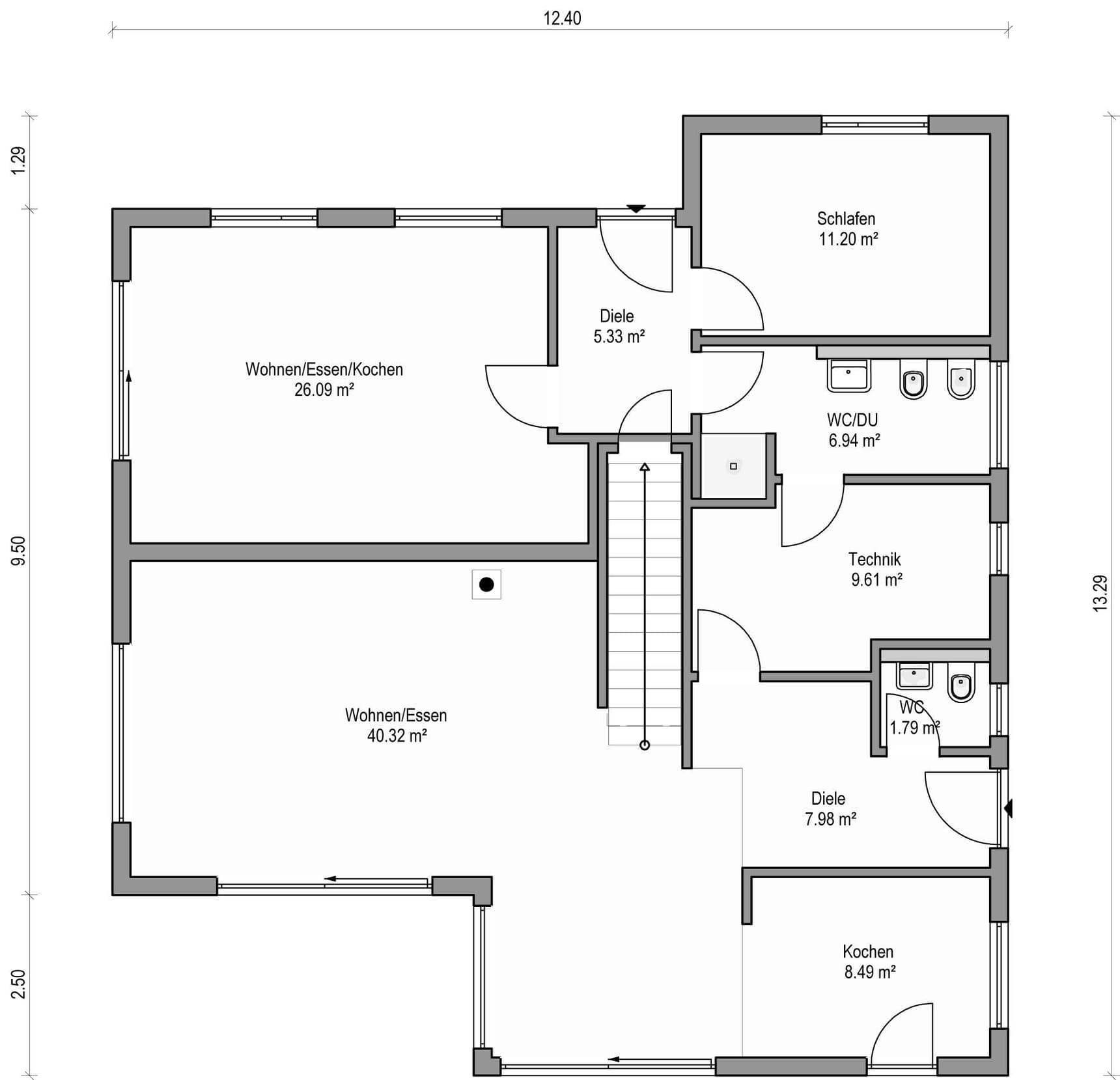
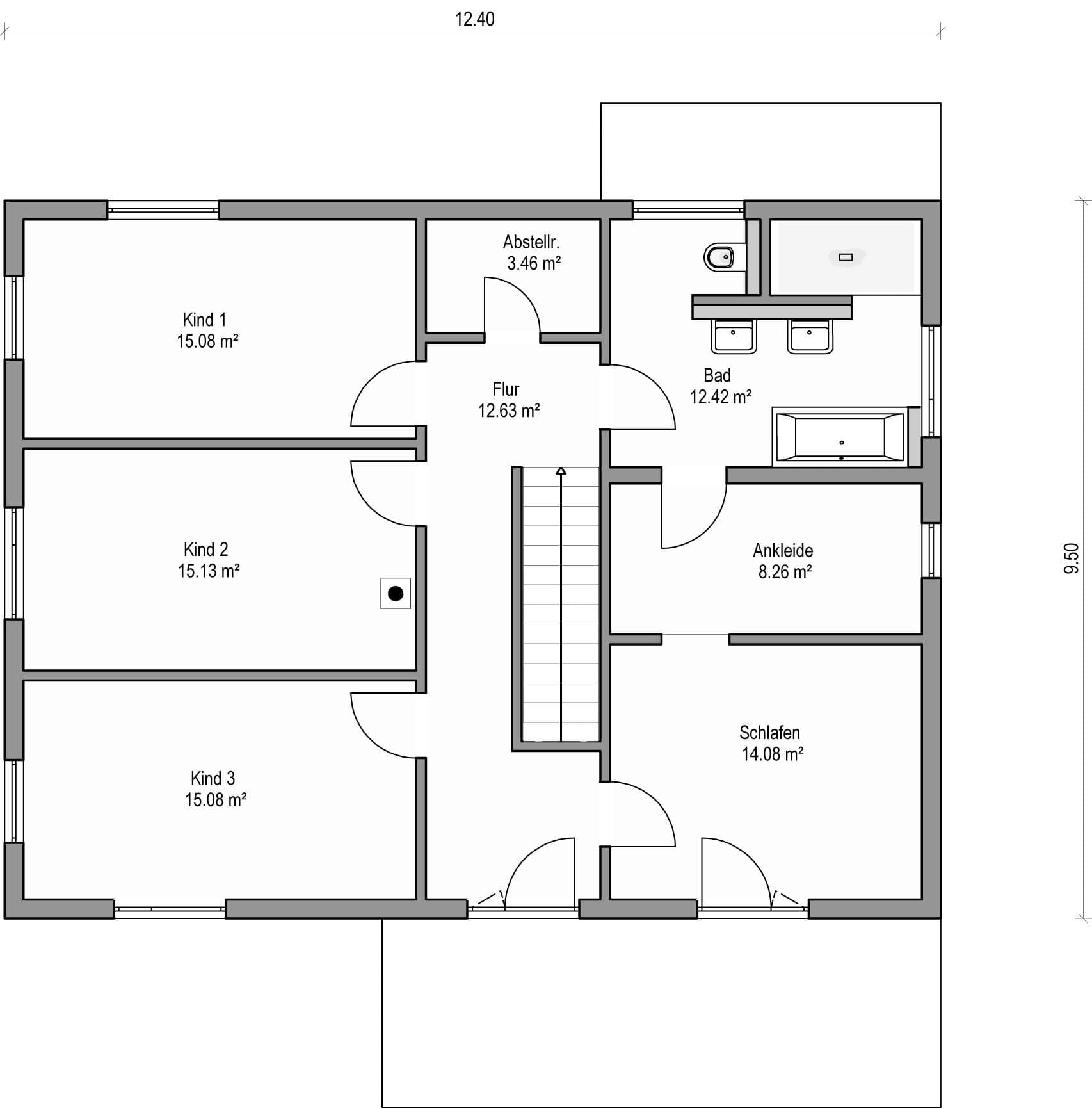
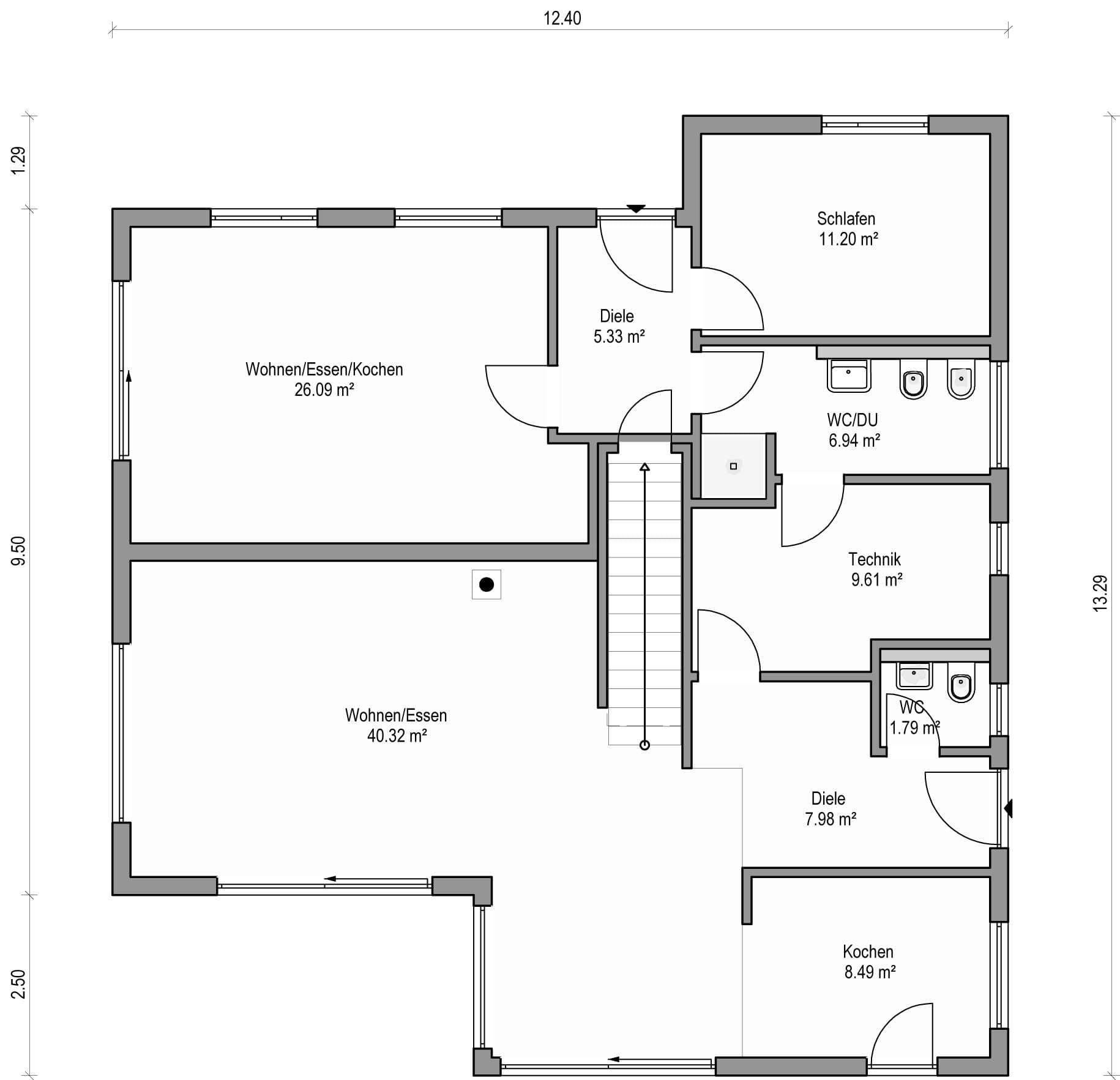
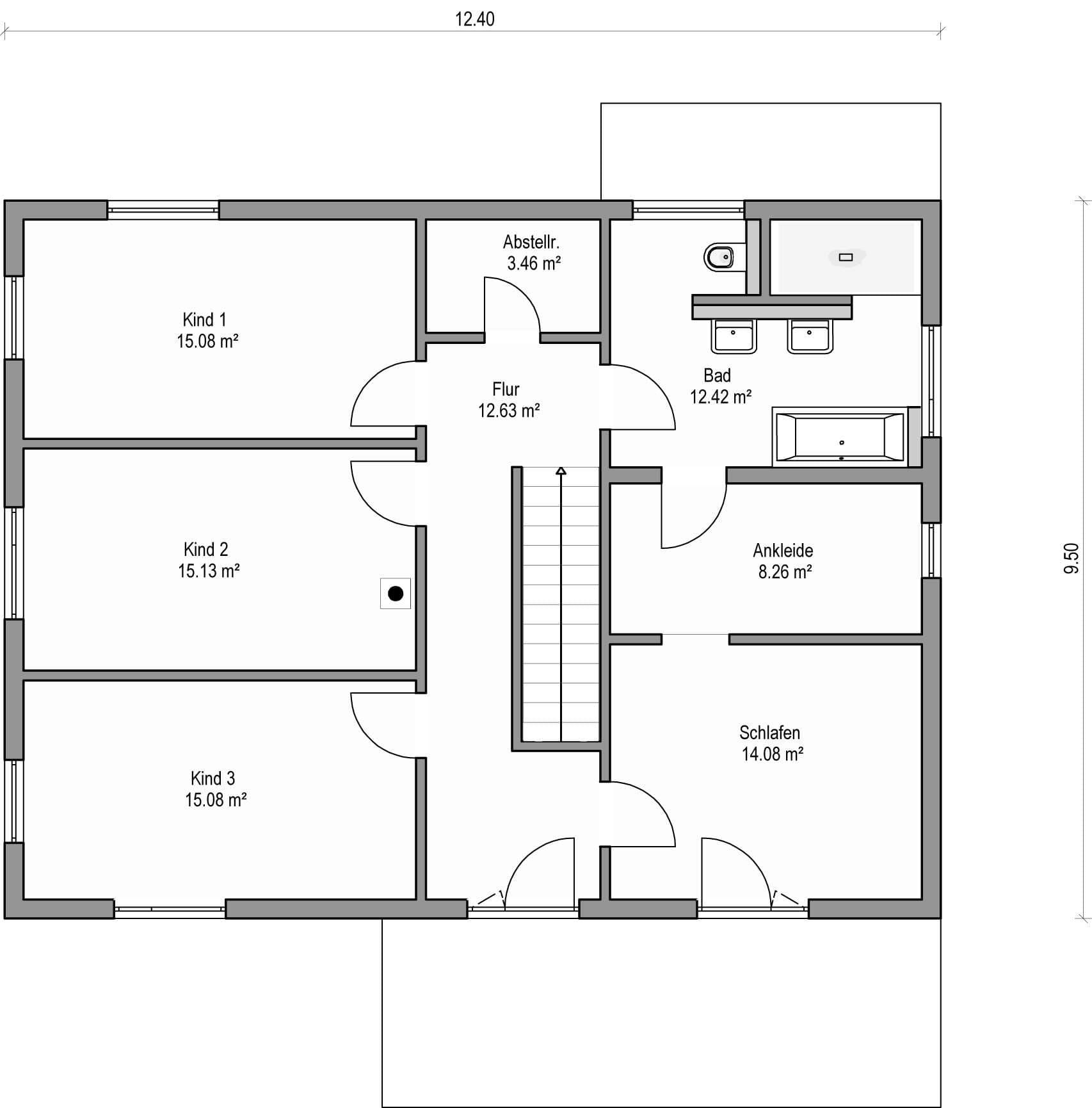
Grundriss

no description
Homestory 709 Grundriss (EG)
no description
Homestory 709 Grundriss (OG)

Kataloge

Lehner Haus: Hauskatalog
Lehner Haus

Lehner Haus: Hauskatalog


House and TreeParksHouse and PinMusterhausHouse on HandAnbieter