1. AnbieterArrow Icon
  2. Lehner HausArrow Icon
  3. Objektbau Kuhnle
Slide 1
Slide 2
Slide 3
Slide 4
no description
Lehner HausObjektbau Kuhnle
homeKlassische Familienhäuser
energyStandardEffizienzhaus 55 EE
Preis anfragen
Katalog bestellen

Objektbau Kuhnle

Ferienwohnungne in Holzfertigbauweise - So geht Zukunft

Auch für effiziente, ökologisch nachhaltige Objektbauten empfiehlt sich der Holzfertigbau. Ob Firmengebäude, Kindergärten, Appartements oder diese einladenden Ferienwohnungen - die sparsamen Bauten von hoher Qualität werden zügig geplant und termingerecht aufgestellt, während die Kosten durch eine Fixpreisgarantie feststehen. Eine gute Wahl für planende UnternehmerInnen. Ein weiteres großes Plus: In allen Räumen ist immer ein schönes Wohlfühlklima - wegen des Holzes und der besonderen Haushülle von Lehner.

Hausdaten

Hausart Icon
HausartObjektbau
Bauweise Icon
BauweiseHolz-Tafelbau
Baustil Icon
BaustilKlassische Familienhäuser
Dachform Icon
DachformPultdach
Energiestandard Icon
EnergiestandardEffizienzhaus 55 EE
Immobilientyp Icon
ImmobilientypKundenhaus
Heizungsart Icon
HeizungsartWärmepumpe (Luft, Wasser, oder beides)
Pfeil nach unten linksWir schaffen Platz für Ihre Träume

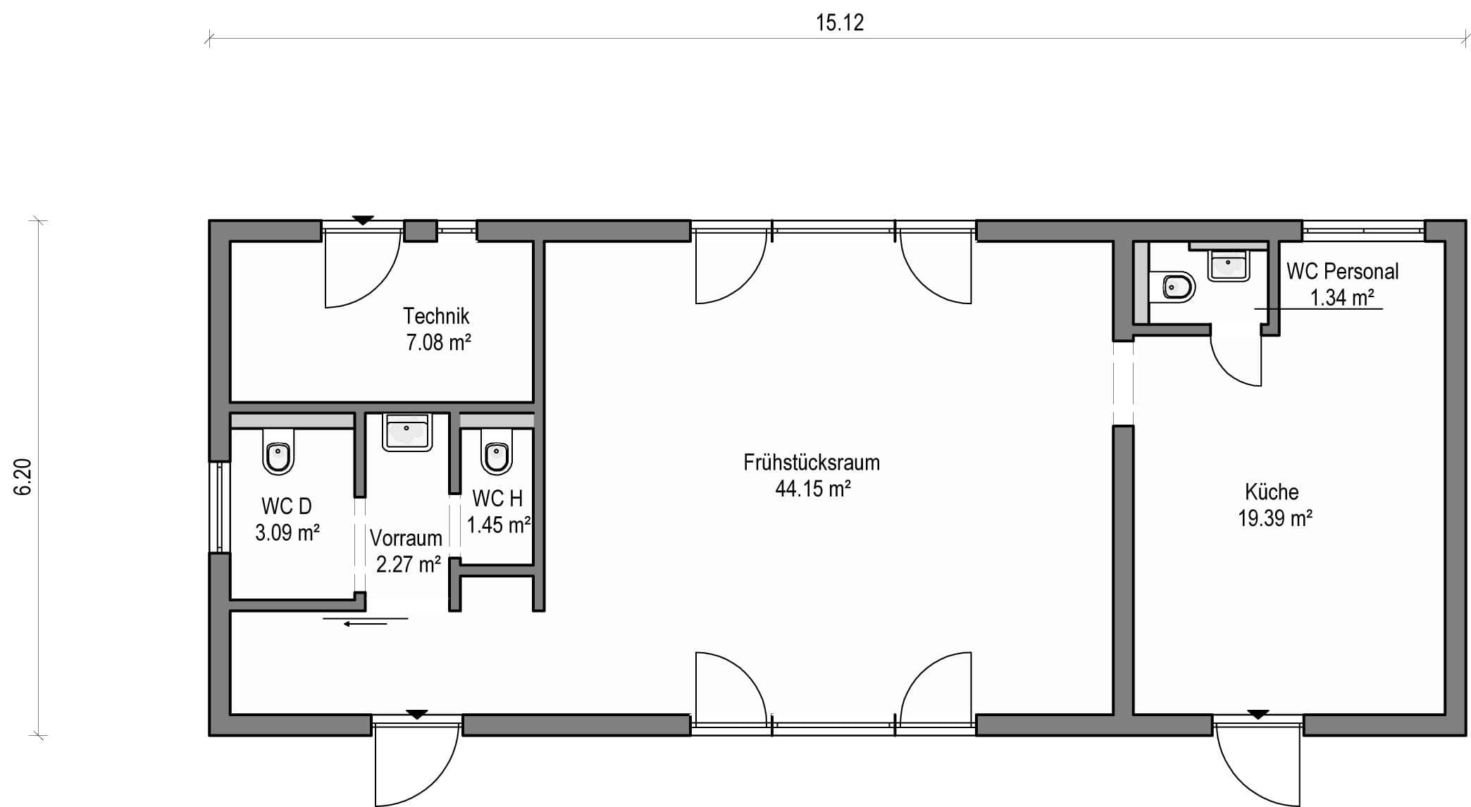
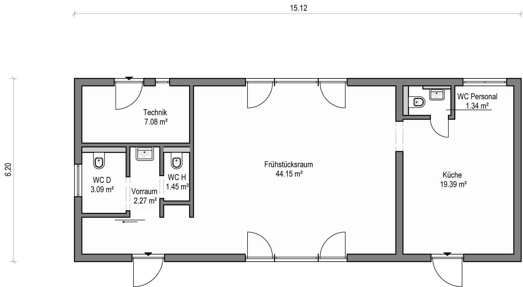
Grundriss

no description
Objektbau Kuhnle Grundriss (EG)
no description
Objektbau Kuhnle Grundriss (DG)

Kataloge

Lehner Haus: Hauskatalog
Lehner Haus

Lehner Haus: Hauskatalog


House and TreeParksHouse and PinMusterhausHouse on HandAnbieter