1. AnbieterArrow Icon
  2. Lehner HausArrow Icon
  3. Objektbau 427
Slide 1
Slide 2
Slide 3
Slide 4
Slide 5
no description
Lehner HausObjektbau 427
homeKubushäuser im Bauhausstil
energyStandardEffizienzhaus 55
Preis anfragen
Katalog bestellen

Objektbau 427

Objektbau in Holzfertigbauweise: Kochschule mit Apartements.

Lehner Haus hat im Objektbau große Erfahrung. Zahlreiche große und kleinere Bürogebäude, die Kindertagesstätte in Passivbauweise für die Bahnstadt Heidelberg, eine große Tierklinik oder die Vereinsgebäude für den FC Heidenheim an der Voith-Arena hat das Unternehmen gebaut. Ein weiteres Beispiel für den Objektbau in Holzfertigbauweise ist diese Kochschule mit mehreren Apartments für einen Kochkurs in den Ferien.

Hausdaten

Hausart Icon
HausartObjektbau
Bauweise Icon
BauweiseHolz-Tafelbau
Baustil Icon
BaustilKubushäuser im Bauhausstil
Dachform Icon
DachformFlachdach
Energiestandard Icon
EnergiestandardEffizienzhaus 55
Immobilientyp Icon
ImmobilientypKundenhaus
Heizungsart Icon
HeizungsartWärmepumpe (Luft, Wasser, oder beides)
Pfeil nach unten linksWir schaffen Platz für Ihre Träume

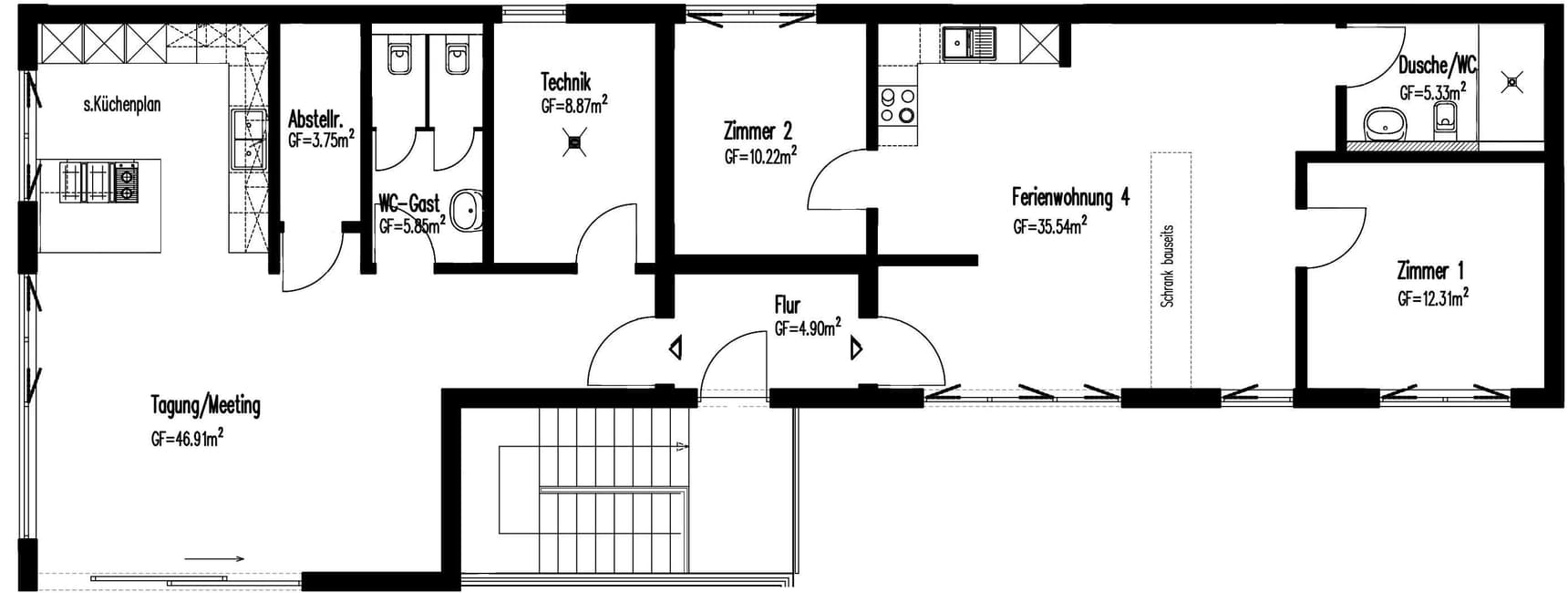
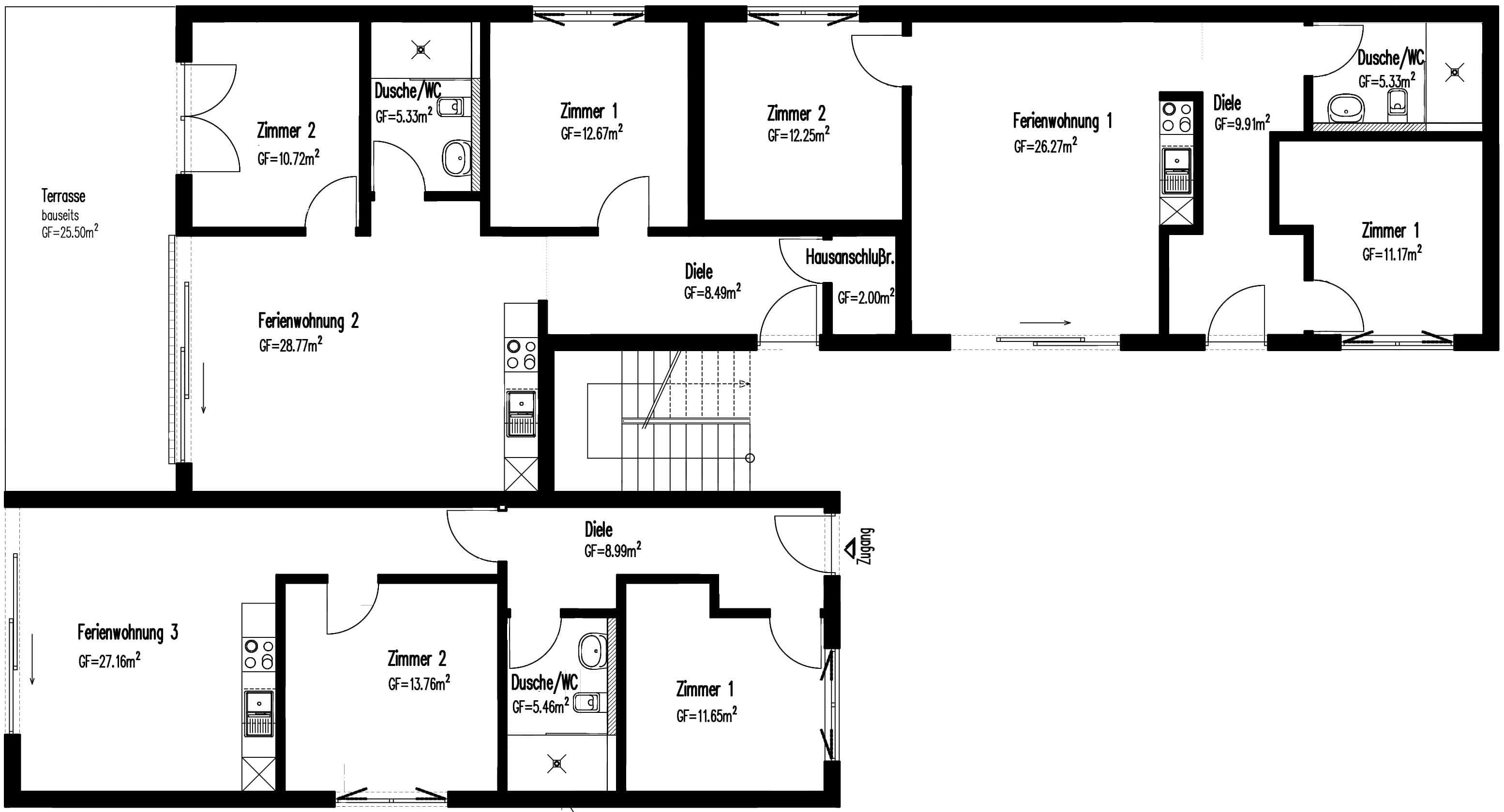
Grundriss

no description
Objektbau 427 Grundriss (EG)
no description
Objektbau 427 Grundriss (OG)

Kataloge

Lehner Haus: Hauskatalog
Lehner Haus

Lehner Haus: Hauskatalog


House and TreeParksHouse and PinMusterhausHouse on HandAnbieter