1. AnbieterArrow Icon
  2. Lehner HausArrow Icon
  3. Homestory 982
Slide 1
Slide 2
Slide 3
Slide 4
no description
Lehner HausHomestory 982
homeKlassische Familienhäuser
energyStandardEffizienzhaus 55 EE
Preis anfragen
Katalog bestellen

Homestory 982

Schönes Holzhaus am Waldrand für die Familie

Das Grundstück war schon in der Familie, eine Idee vom eigenen Familienhaus hatten die Ehepartner und die Planung einer ganzen Reihe an Eigenleistungen stand fest. Mit einem erfahrenen Baupartner für den Holzfertigbau sollte ein sparsames Holzhaus entwickelt und gebaut werden. Lehner Haus kam in Frage, weil die gebotenen Leistungen transparent waren, ein Stelltermin garantiert wurde und die Fachberatung von vorneherein als echte Begleitung beim Hausbau die Planung mit den Bauherren nach Wunsch vollendete.

Hausdaten

Hausart Icon
HausartEinfamilienhaus
Bauweise Icon
BauweiseHolz-Tafelbau
Baustil Icon
BaustilKlassische Familienhäuser
Dachform Icon
DachformSattel-/Giebeldach
Energiestandard Icon
EnergiestandardEffizienzhaus 55 EE
Immobilientyp Icon
ImmobilientypKundenhaus
Heizungsart Icon
HeizungsartWärmepumpe (Luft, Wasser, oder beides)
Pfeil nach unten linksWir schaffen Platz für Ihre Träume

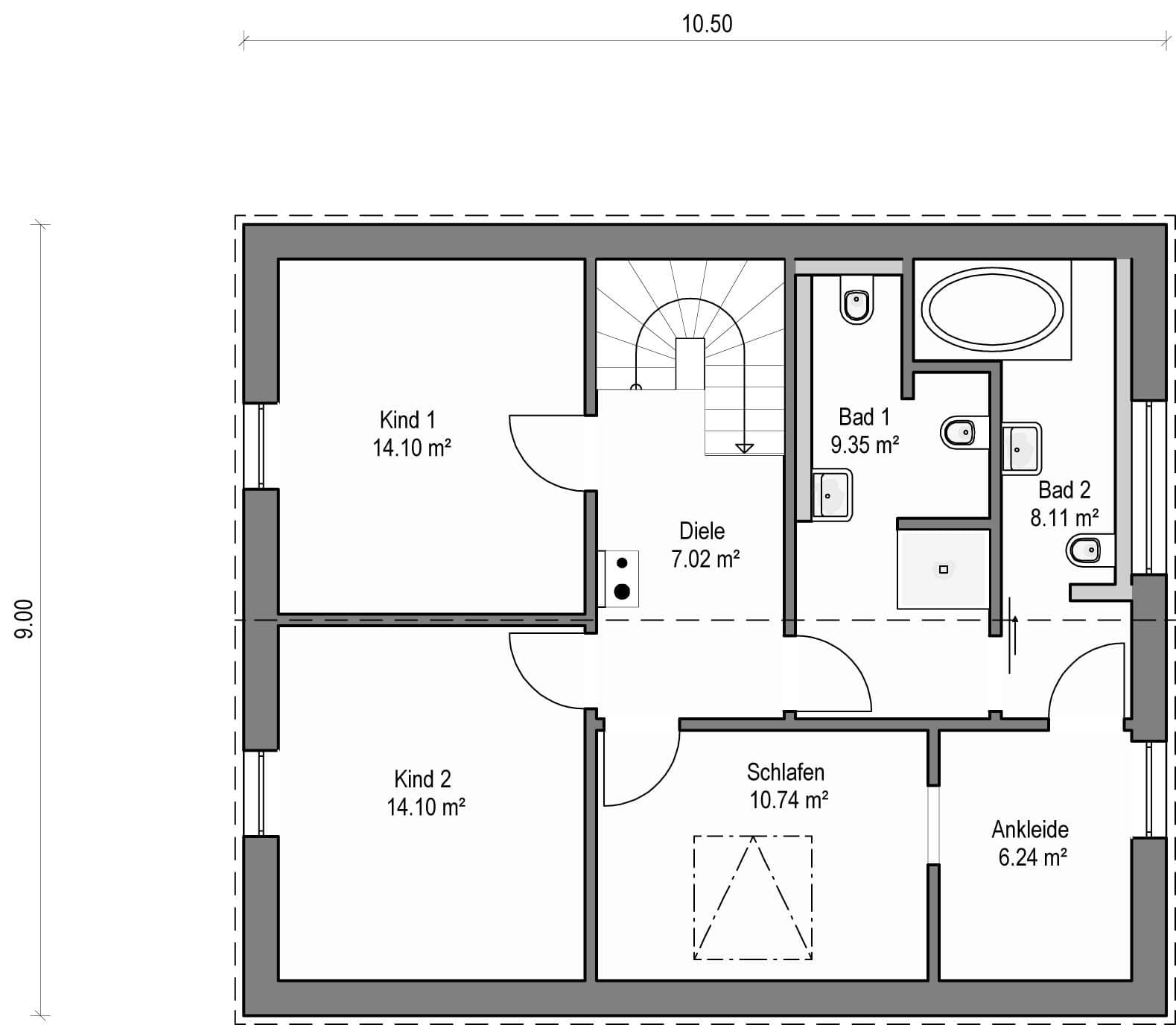
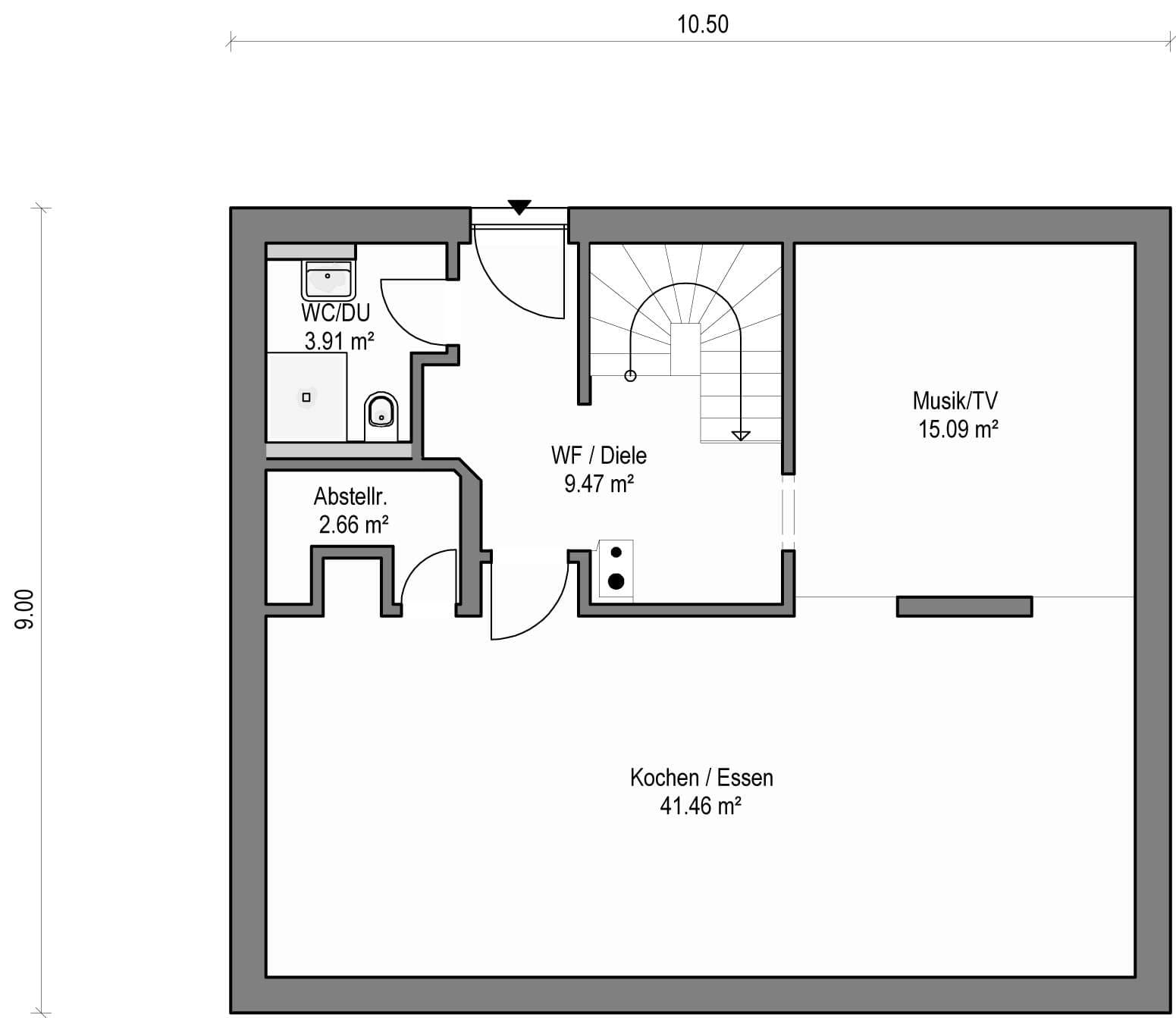
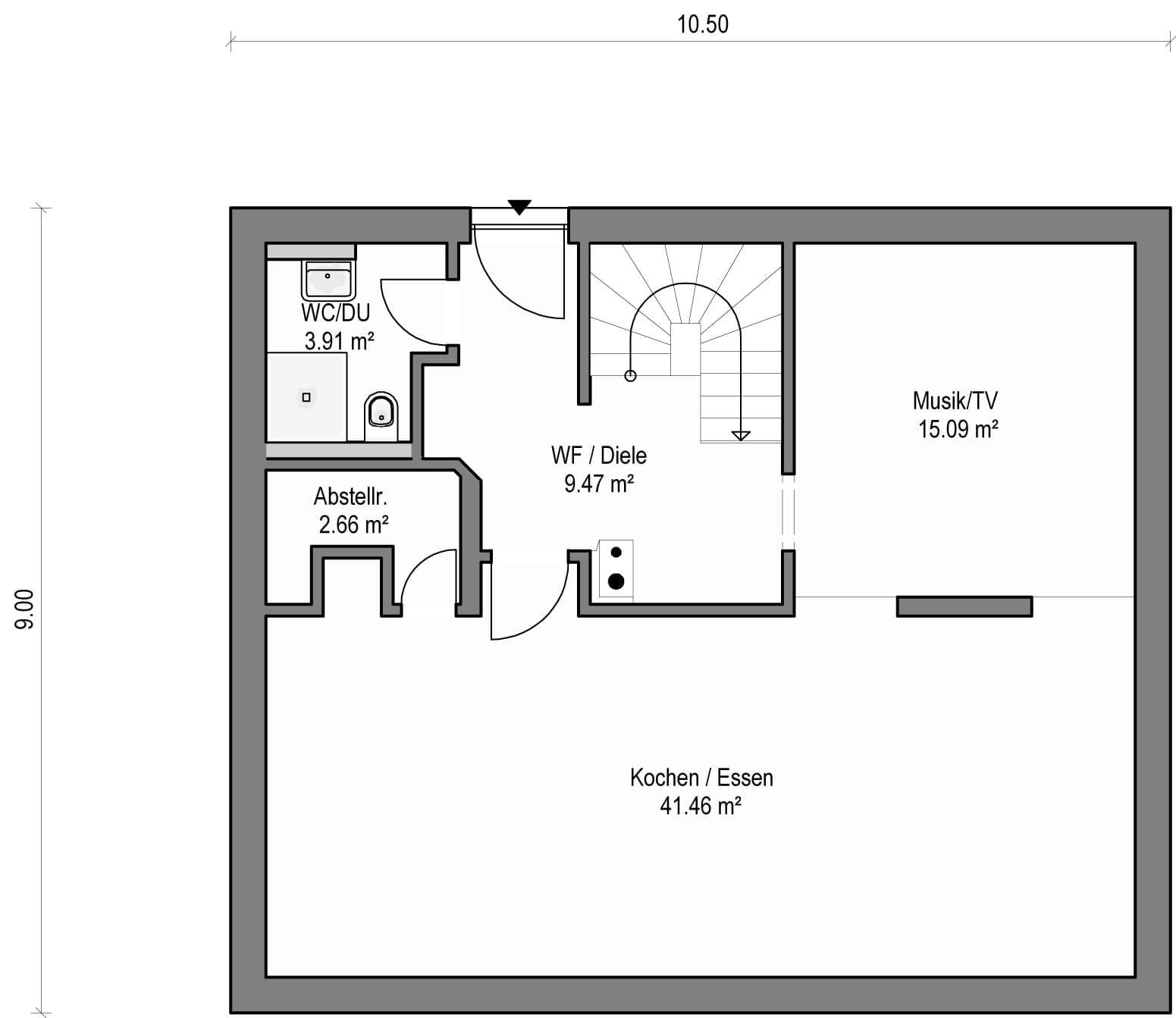
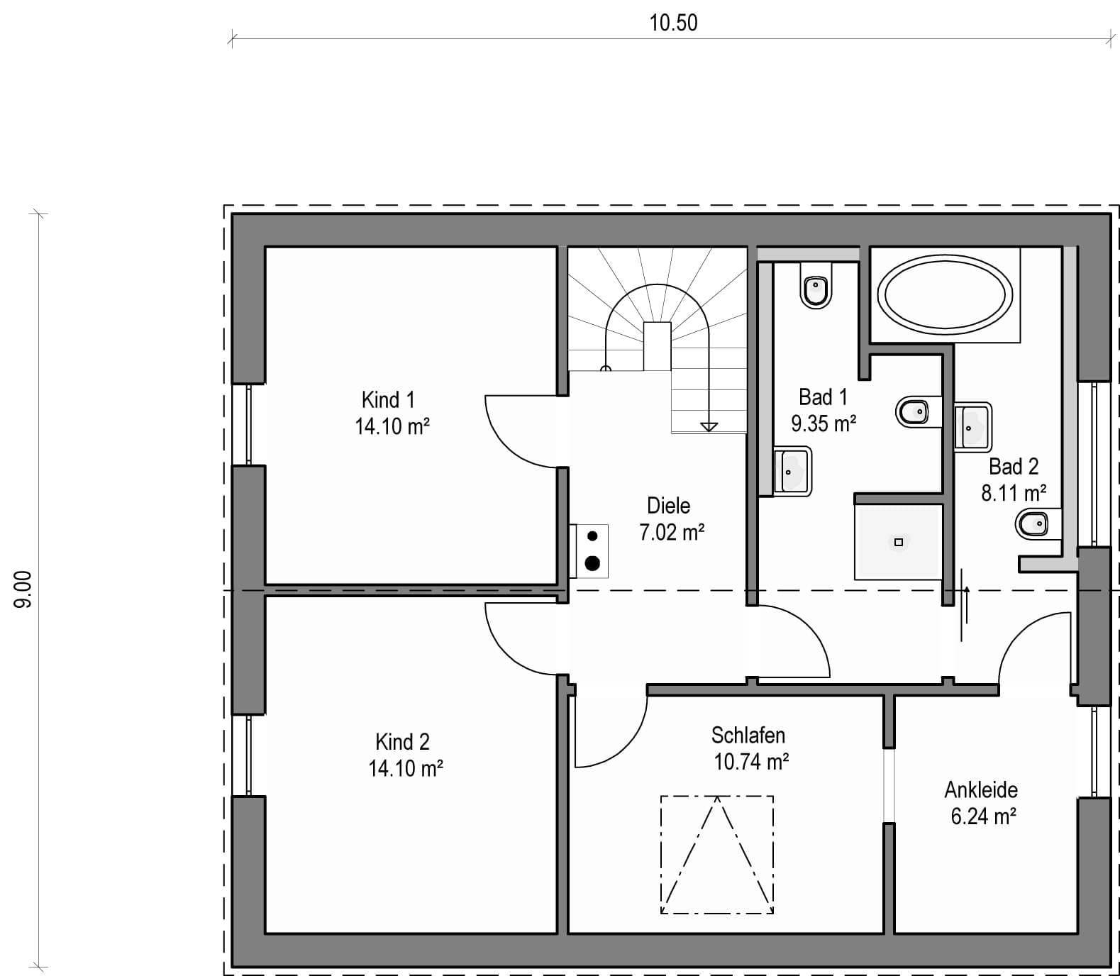
Grundriss

no description
Homestory 982 Grundriss (EG)
no description
Homestory 982 Grundriss (DG)

Kataloge

Lehner Haus: Hauskatalog
Lehner Haus

Lehner Haus: Hauskatalog


House and TreeParksHouse and PinHäuser liveHouse on HandAnbieter