1. AnbieterArrow Icon
  2. Lehner HausArrow Icon
  3. Homestory 959
Slide 1
Slide 2
Slide 3
Slide 4
no description
Lehner HausHomestory 959
homeKlassische Familienhäuser
energyStandardEffizienzhaus 55 EE
Preis anfragen
Katalog bestellen

Homestory 959

Energieeffizientes Zweifamilienhaus: Eine sichere Anlage

Der Markt zeigt es deutlich: Heute sind Immobilien eine relativ sichere Geldanlage mit bleibendem Wert. Wer diesen Weg wählt, kann nicht nur in bestehende Grundstücke und Gebäude investieren, sondern auch der Bau neuer Häuser als Mietobjekt lohnt sehr. Dabei wäscht eine Hand die andere: Werte werden sicher angelegt und neuer lukrativer Wohnraum entsteht. Noch interessanter wird dieses Modell, wenn man die Vorteile des Holzfertigbaus nutzt, zum Beispiel eine sichere Planung der Bauzeit und der gesamten Kosten.

Hausdaten

Hausart Icon
HausartZweifamilienhaus
Bauweise Icon
BauweiseHolz-Tafelbau
Baustil Icon
BaustilKlassische Familienhäuser
Dachform Icon
DachformSattel-/Giebeldach
Energiestandard Icon
EnergiestandardEffizienzhaus 55 EE
Immobilientyp Icon
ImmobilientypKundenhaus
Heizungsart Icon
HeizungsartWärmepumpe (Luft, Wasser, oder beides)
Pfeil nach unten linksWir schaffen Platz für Ihre Träume

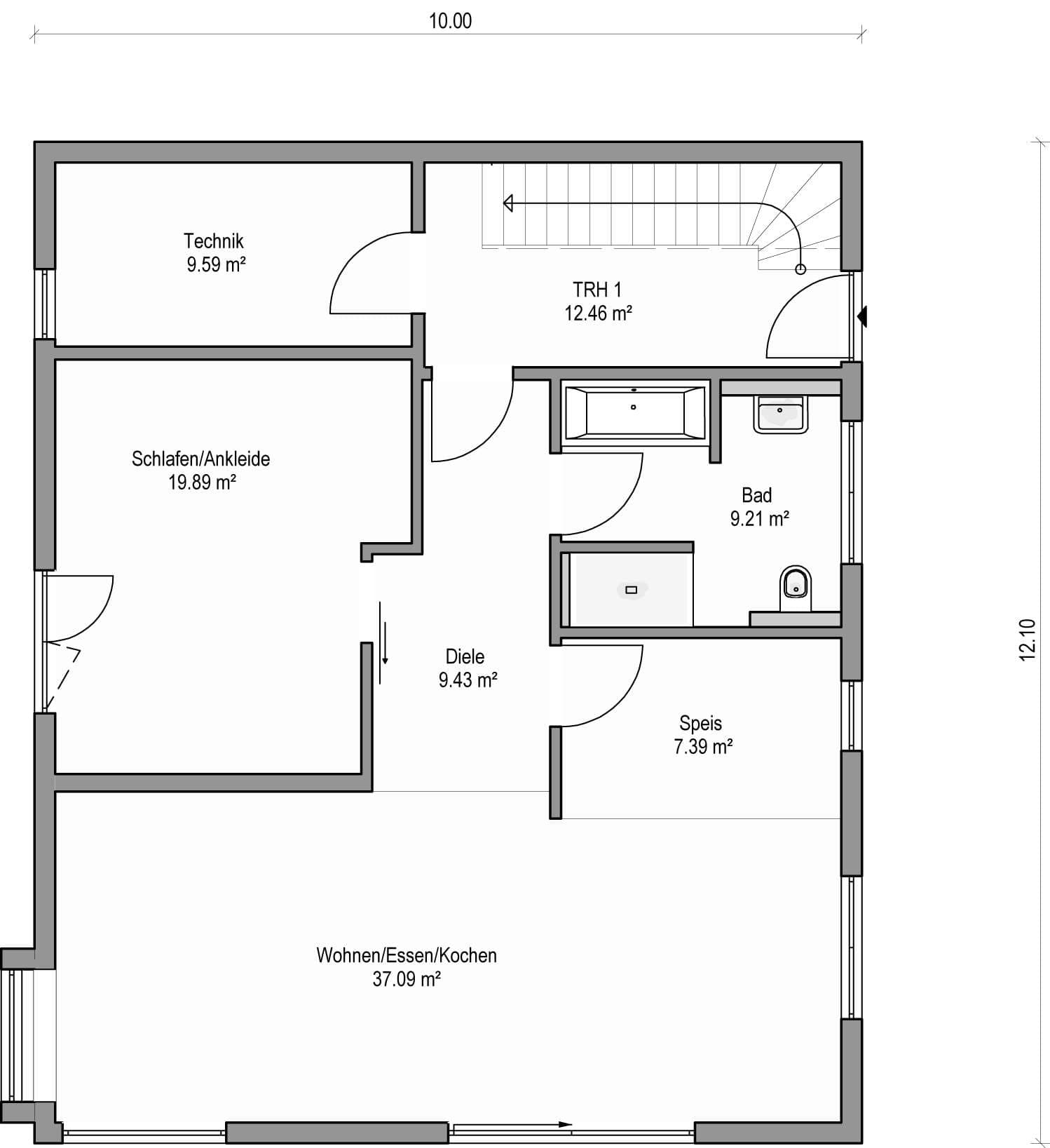
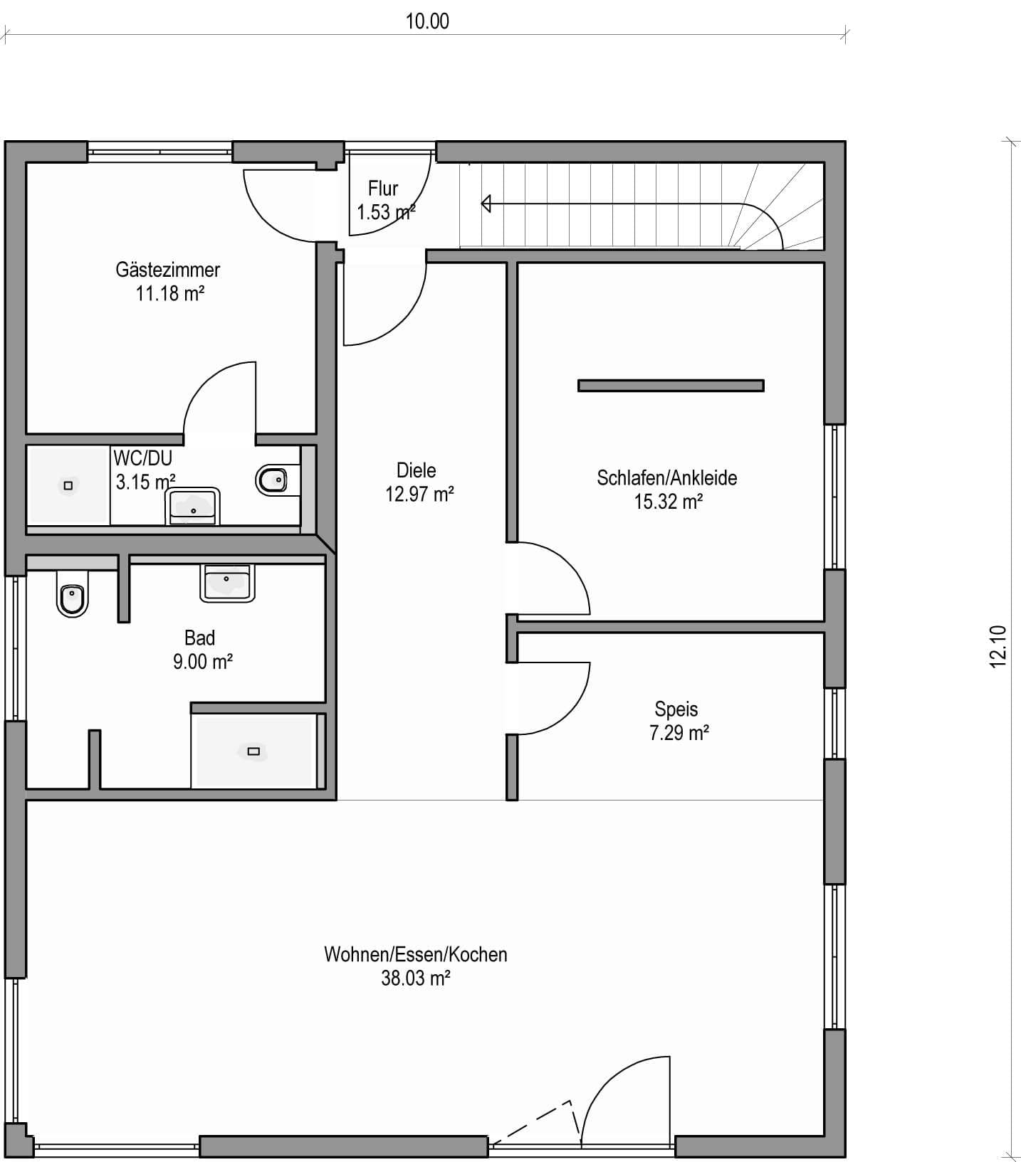
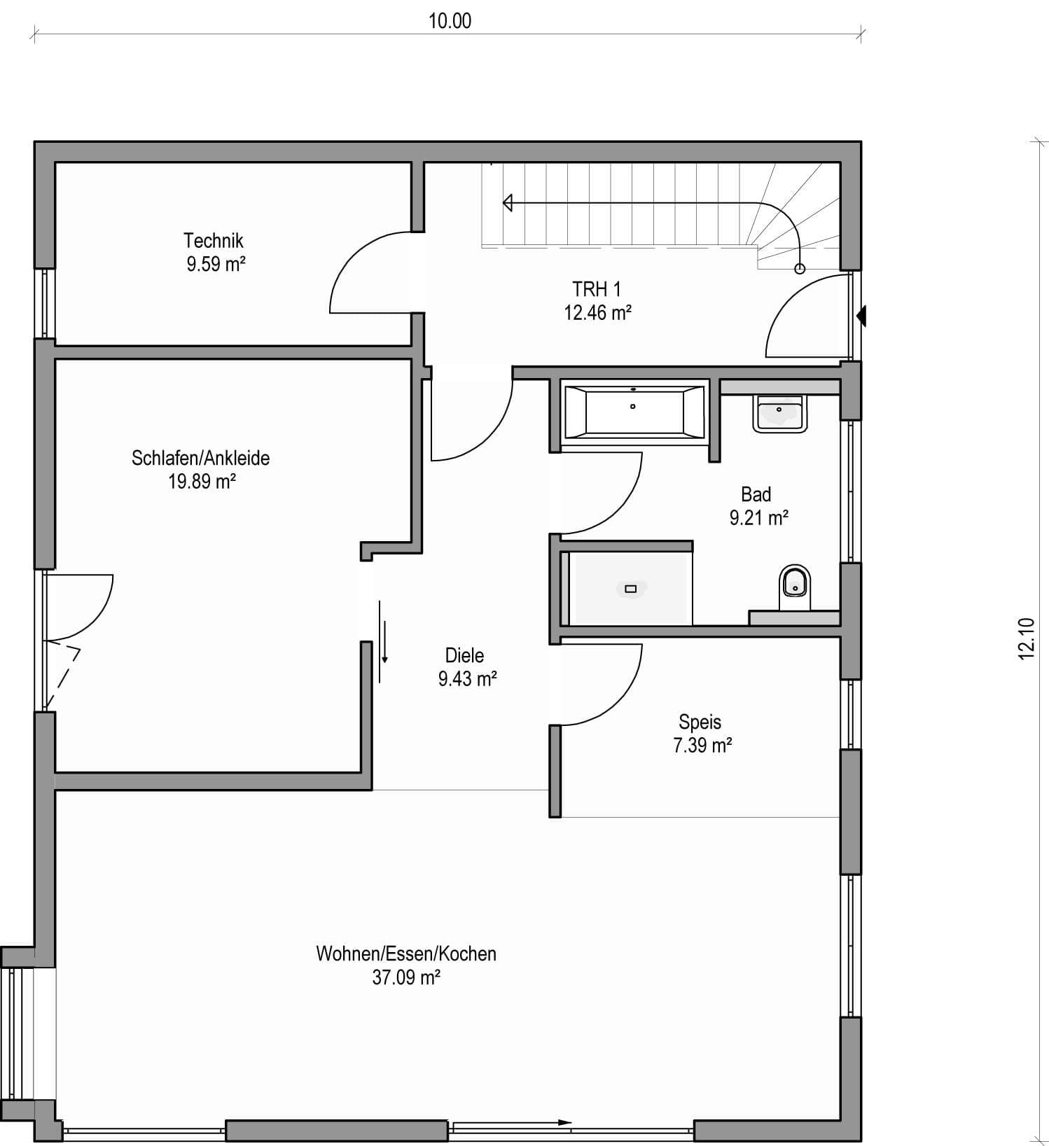
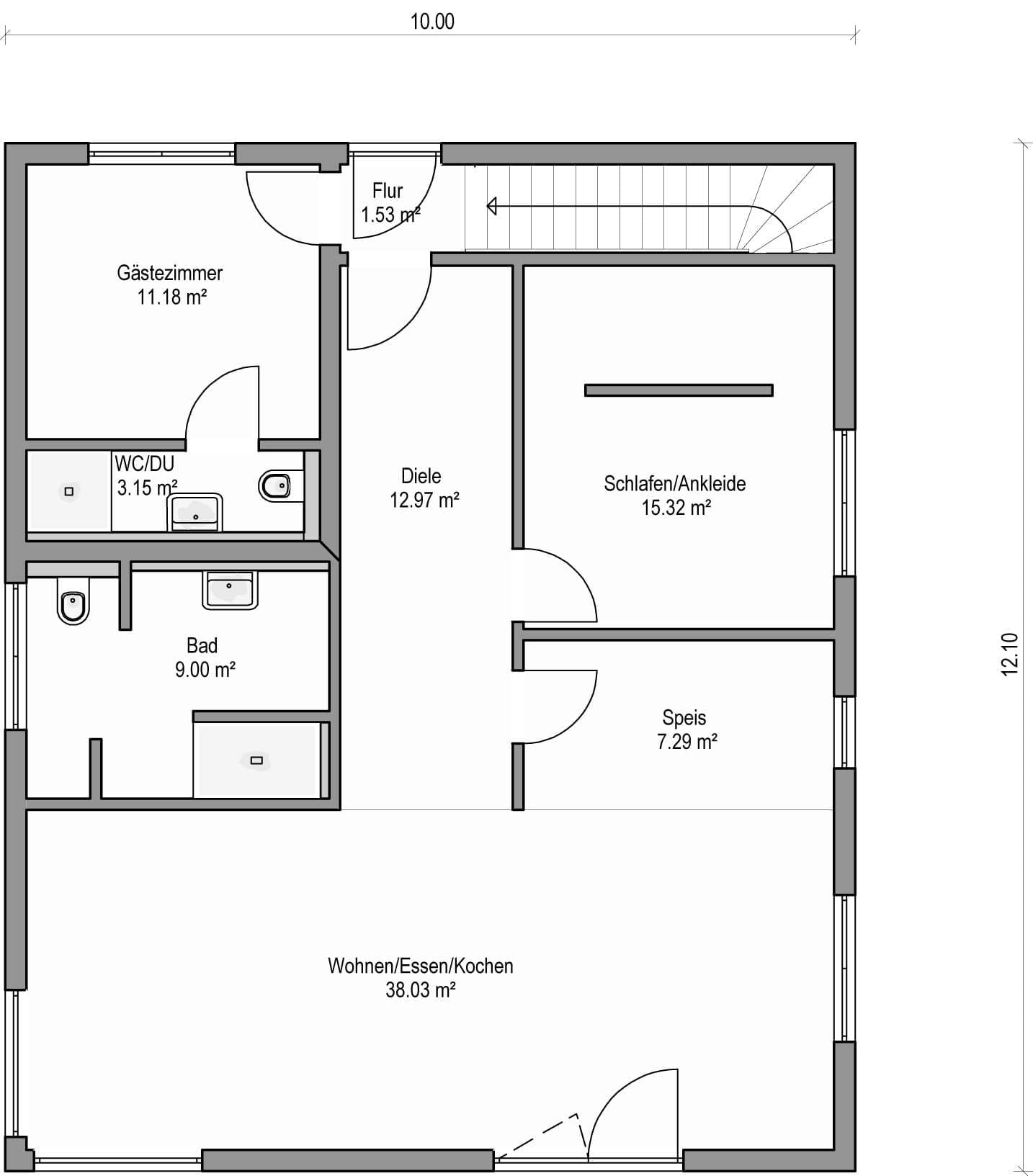
Grundriss

no description
Homestory 959 Grundriss (EG)
no description
Homestory 959 Grundriss (OG)

Kataloge

Lehner Haus: Hauskatalog
Lehner Haus

Lehner Haus: Hauskatalog


House and TreeParksHouse and PinMusterhausHouse on HandAnbieter