1. AnbieterArrow Icon
  2. Lehner HausArrow Icon
  3. Homestory 931
Slide 1
Slide 2
no description
Lehner HausHomestory 931
homeKlassische Familienhäuser
livingArea300 m²
energyStandardEffizienzhaus 55
Preis anfragen
Katalog bestellen

Homestory 931

Ein Unikat: Selbst und Individuell geplant für die große Familie

Individuelles Planen ist eine Sache, individuelles Bauen eine andere. Viele Bauherren entwerfen eine Planung des eigenen Traumhauses nach ihren Ideen bis ins Detail. Dann kommen Berater oder Architekten und streichen ihnen den Traum einfach durch, weil Vieles im eigenen Entwurf ganz unmöglich zu machen wäre. Die Gründe dafür sind häufig die Statik, Vorschriften oder bauliche Standards. Mit Lehner ist das anders.

Hausdaten

Hausart Icon
HausartEinfamilienhaus
Bauweise Icon
BauweiseHolz-Tafelbau
Anzahl Räume Icon
Anzahl Räume11
Baustil Icon
BaustilKlassische Familienhäuser
Fassade Icon
FassadePutz
Außenmaße Icon
Außenmaße12.5 m x 9.5 m
Wohnfläche Icon
Wohnfläche300 m²
Dachform Icon
DachformSattel-/Giebeldach
Energiestandard Icon
EnergiestandardEffizienzhaus 55
Immobilientyp Icon
ImmobilientypKundenhaus
Dachneigung Icon
Dachneigung30°
Hauseigenschaften Icon
HauseigenschaftenGästezimmer
Hausdämmstoff Icon
HausdämmstoffHolzfaser- und Zellulosedämmstoffe
Heizungsart Icon
HeizungsartWärmepumpe (Luft, Wasser, oder beides)
Pfeil nach unten linksWir schaffen Platz für Ihre Träume

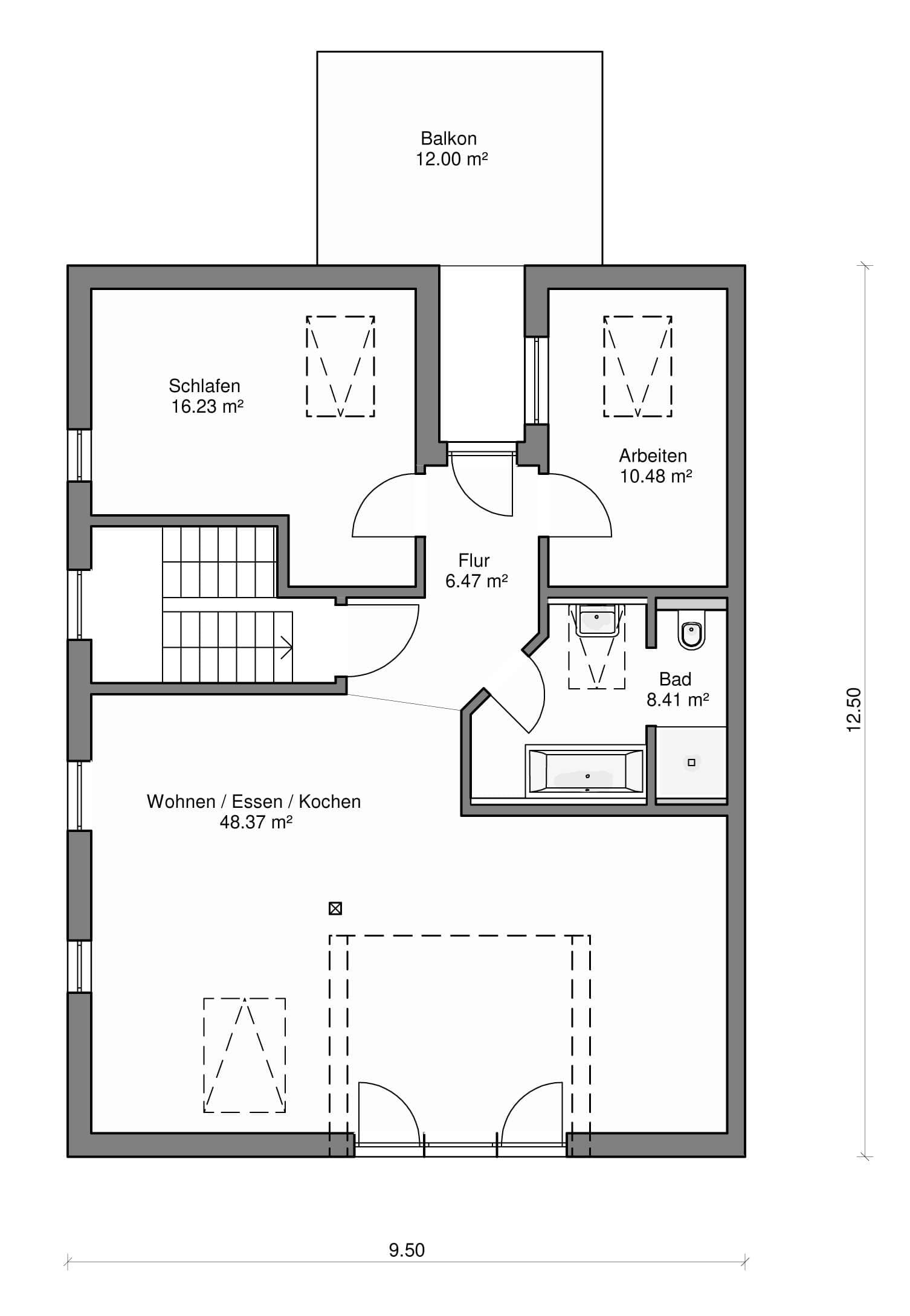
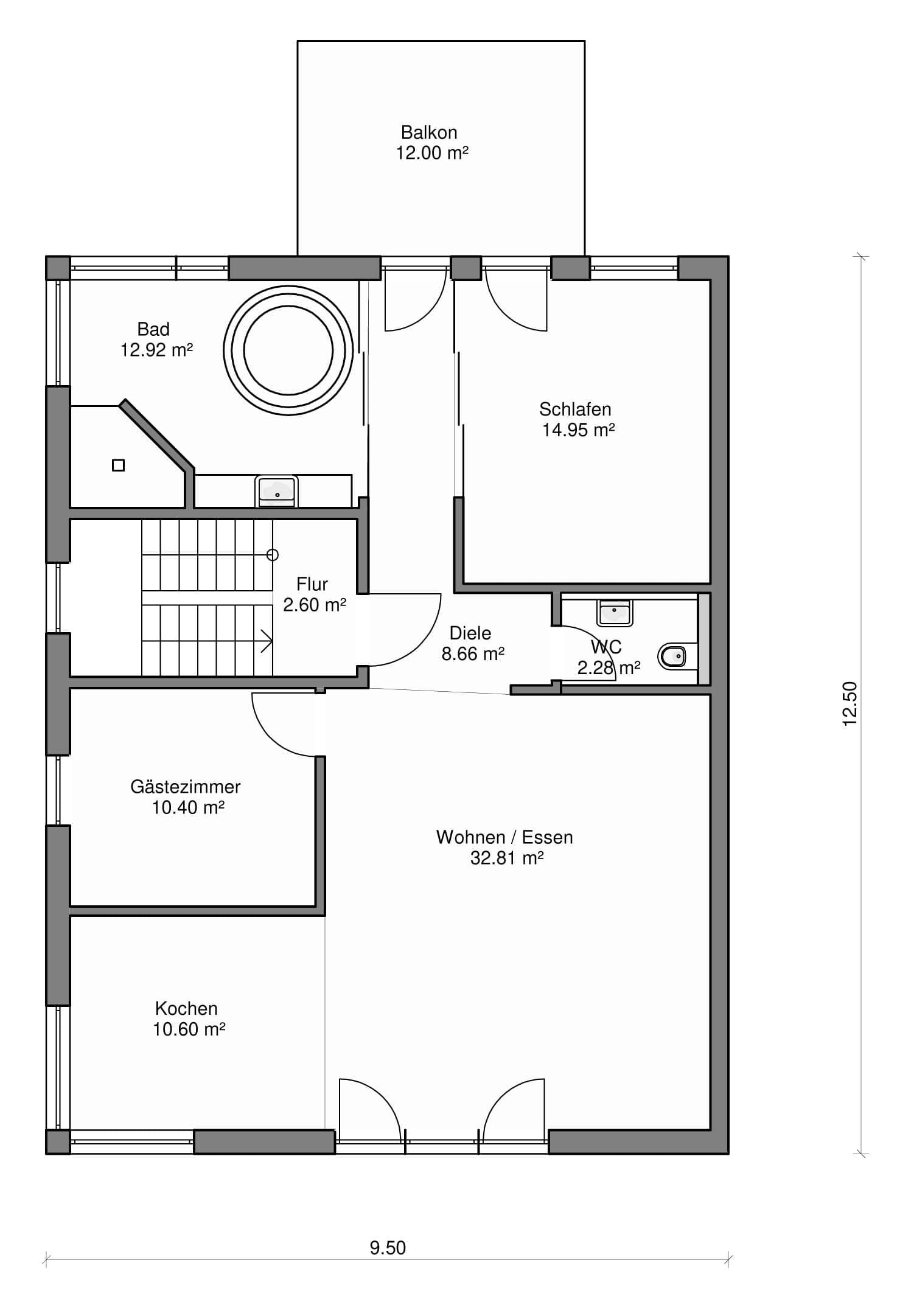
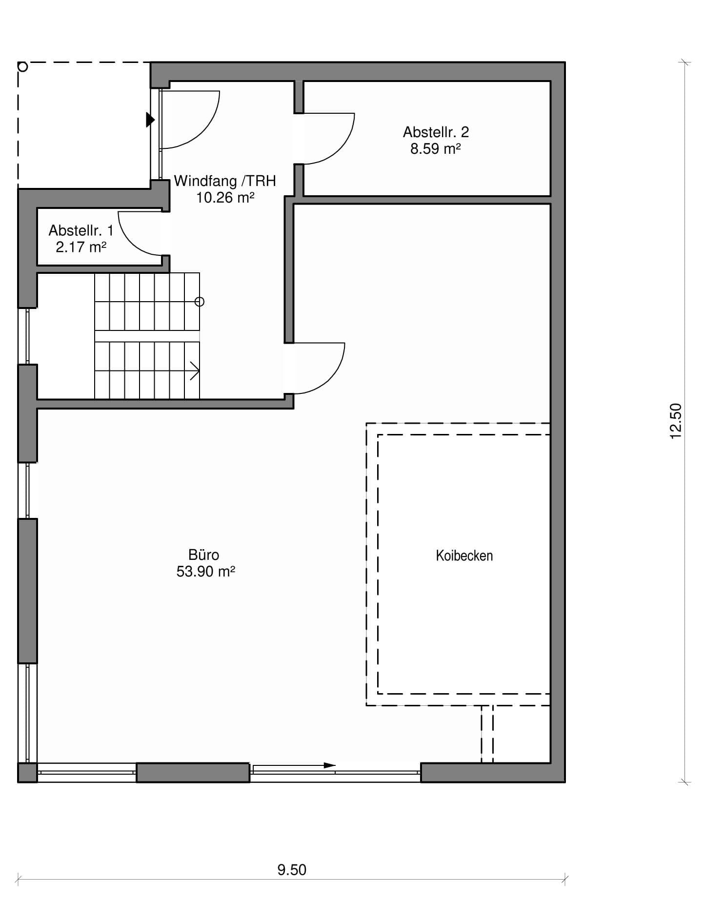
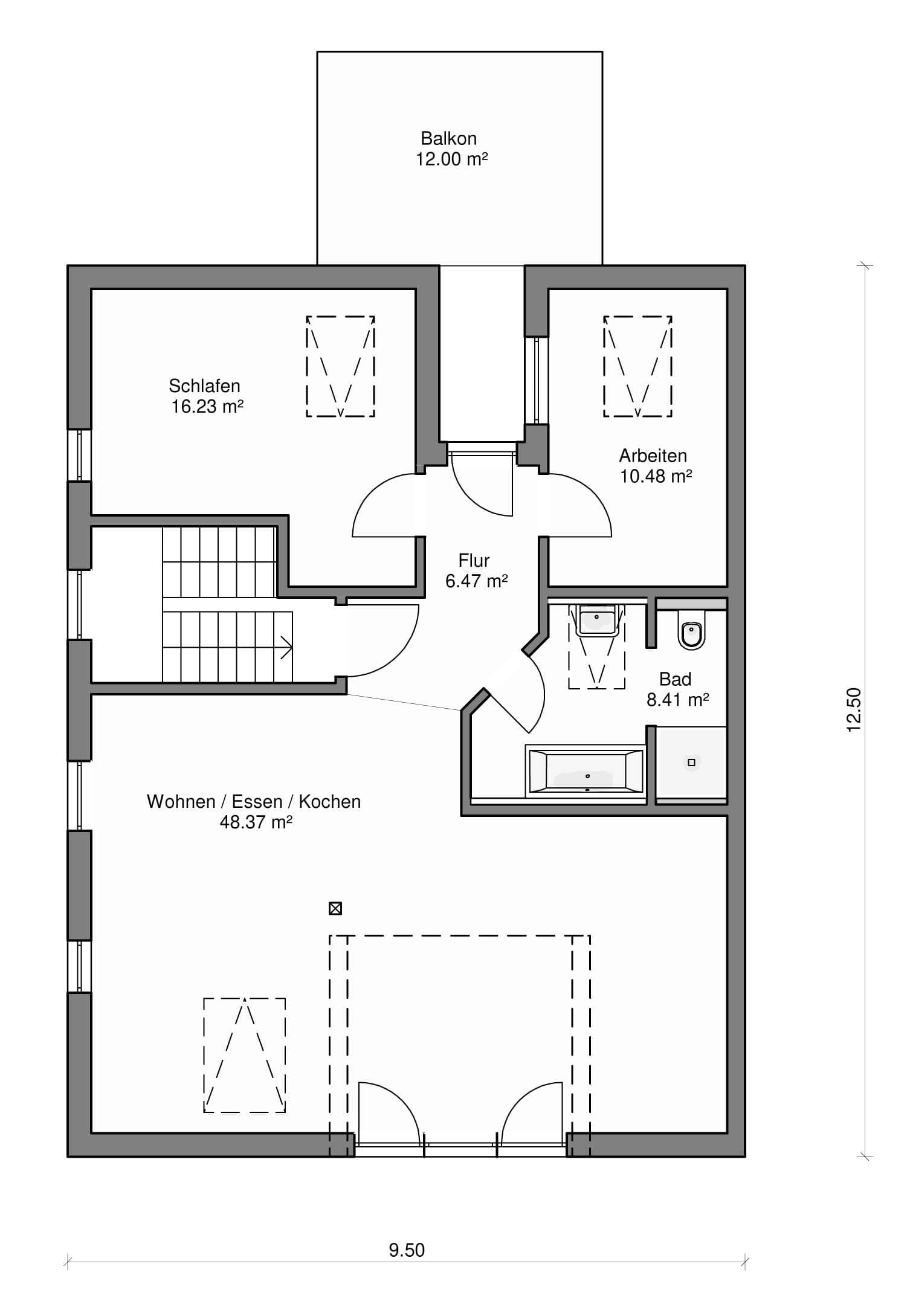
Grundriss

no description
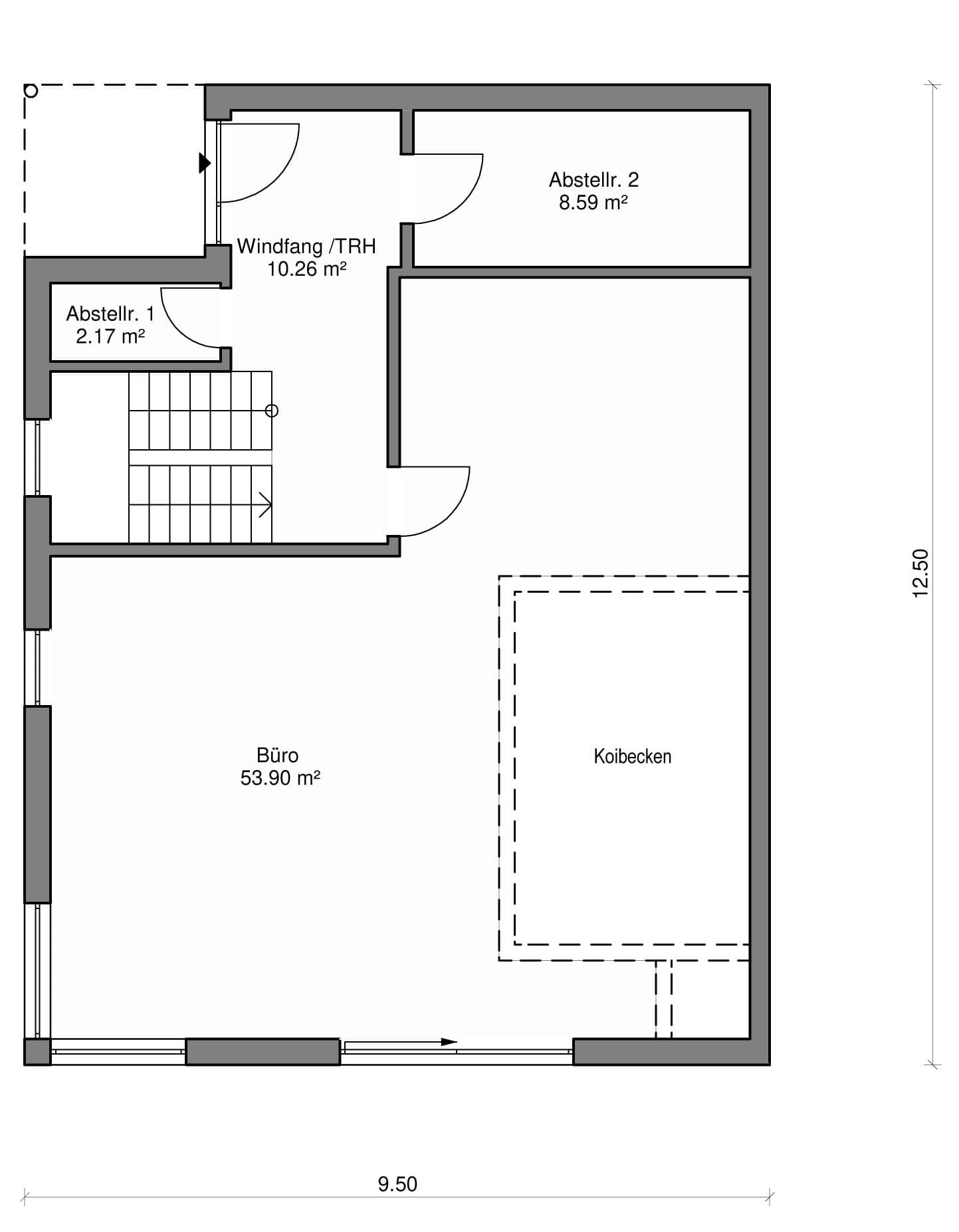
Homestory 931 Grundriss (EG)
no description
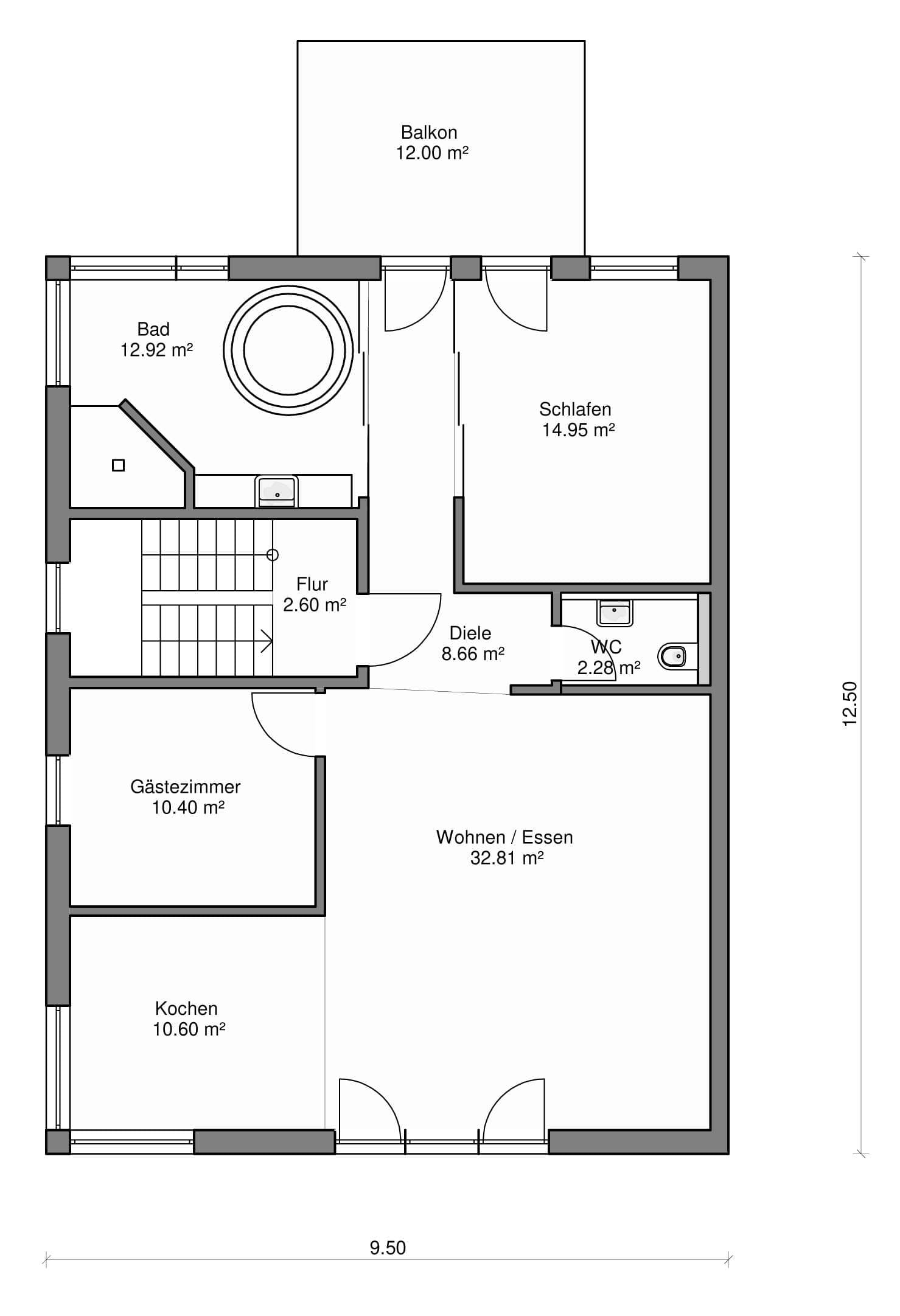
Homestory 931 Grundriss (OG)
no description
Homestory 931 Grundriss (DG)

Kataloge

Lehner Haus: Hauskatalog
Lehner Haus

Lehner Haus: Hauskatalog


House and TreeParksHouse and PinMusterhausHouse on HandAnbieter