1. AnbieterArrow Icon
  2. Lehner HausArrow Icon
  3. Homestory 911
Slide 1
Slide 2
Slide 3
Slide 4
Slide 5
no description
Lehner HausHomestory 911
homeStadtvillen
energyStandardEffizienzhaus 55 EE
Preis anfragen
Katalog bestellen

Homestory 911

Wohlfühlen im neuen Eigenheim

Das Bauen mit einem Baupartner ist immer Vertrauenssache. In der Regel spielen neben dem Kalkül relativ hoher Kosten und jeder Menge an Leistungen auch die Emotionen eine sehr entscheidende Rolle. Bauherren möchten diese für ein Leben einmalige und sehr private Angelegenheit des Baus eines eigenen Zuhauses nur mit Beratern und Fachleuten teilen, denen sie vertrauen können und bei denen sie sicher sind, dass ihre emotionalen und monetären Investitionen in guten Händen sind. Dann klappt es mit der Kooperation.

Hausdaten

Hausart Icon
HausartEinfamilienhaus
Bauweise Icon
BauweiseHolz-Tafelbau
Baustil Icon
BaustilStadtvillen
Dachform Icon
DachformWalm-/Zeltdach
Energiestandard Icon
EnergiestandardEffizienzhaus 55 EE
Immobilientyp Icon
ImmobilientypKundenhaus
Heizungsart Icon
HeizungsartWärmepumpe (Luft, Wasser, oder beides)
Pfeil nach unten linksWir schaffen Platz für Ihre Träume

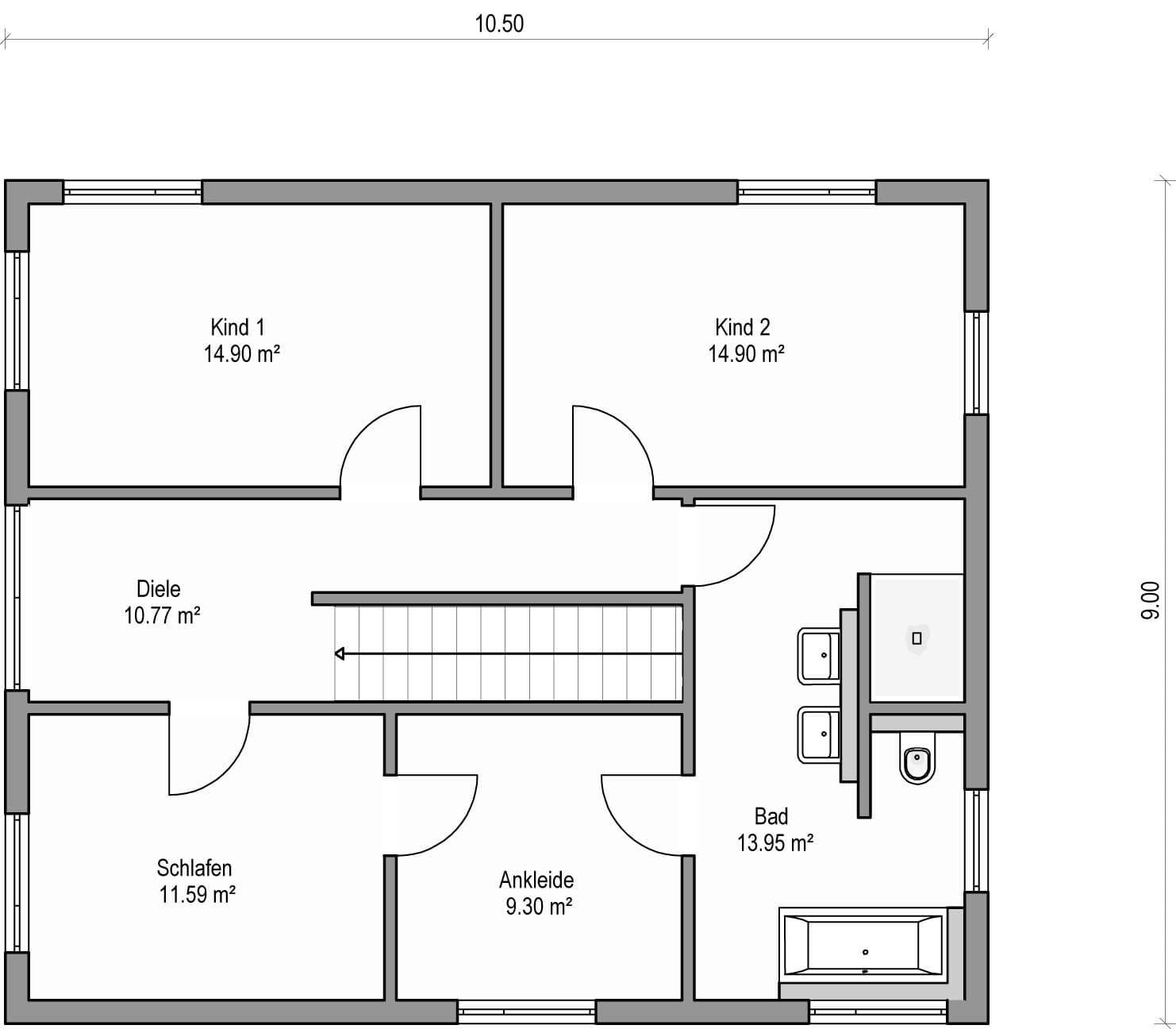
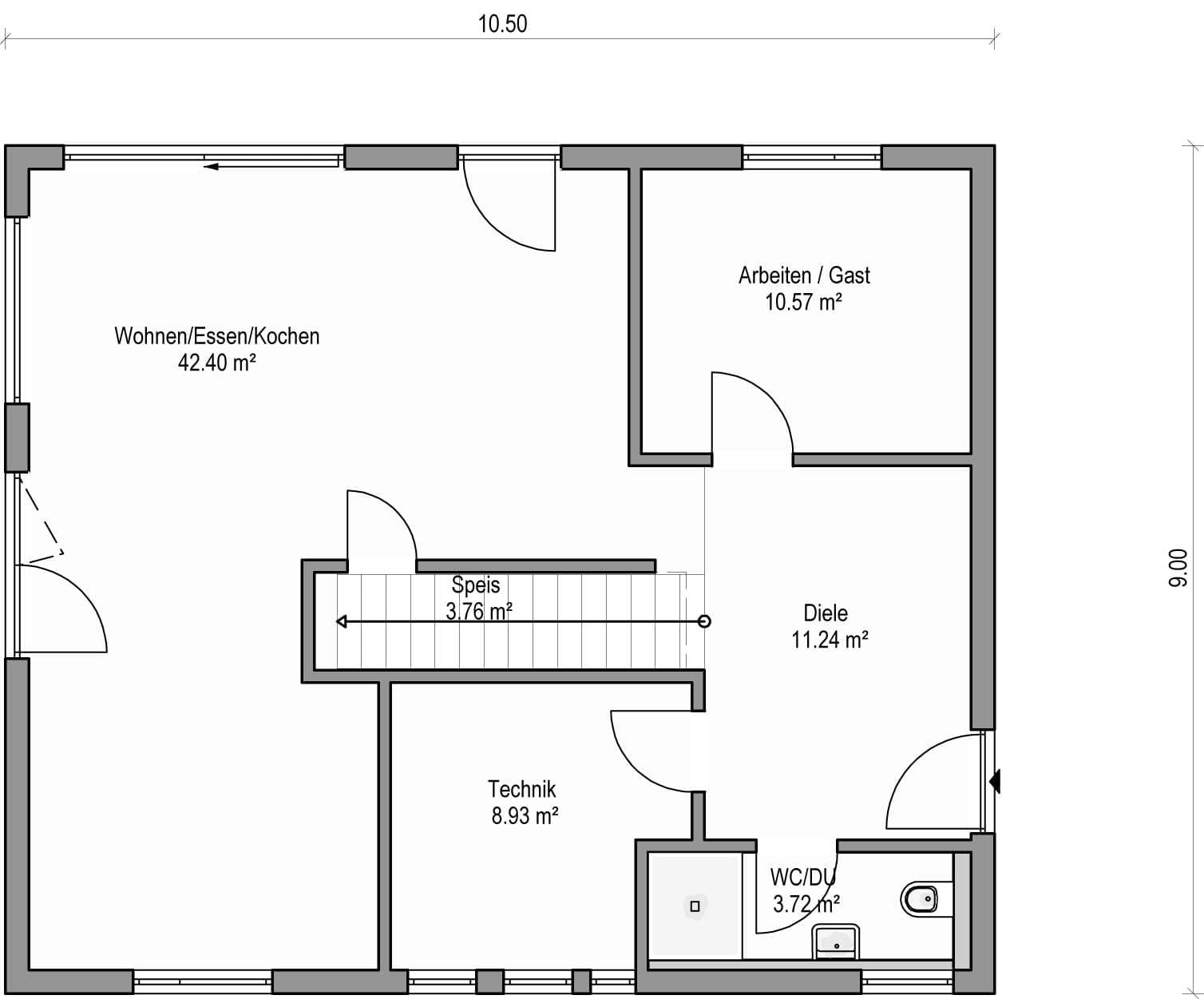
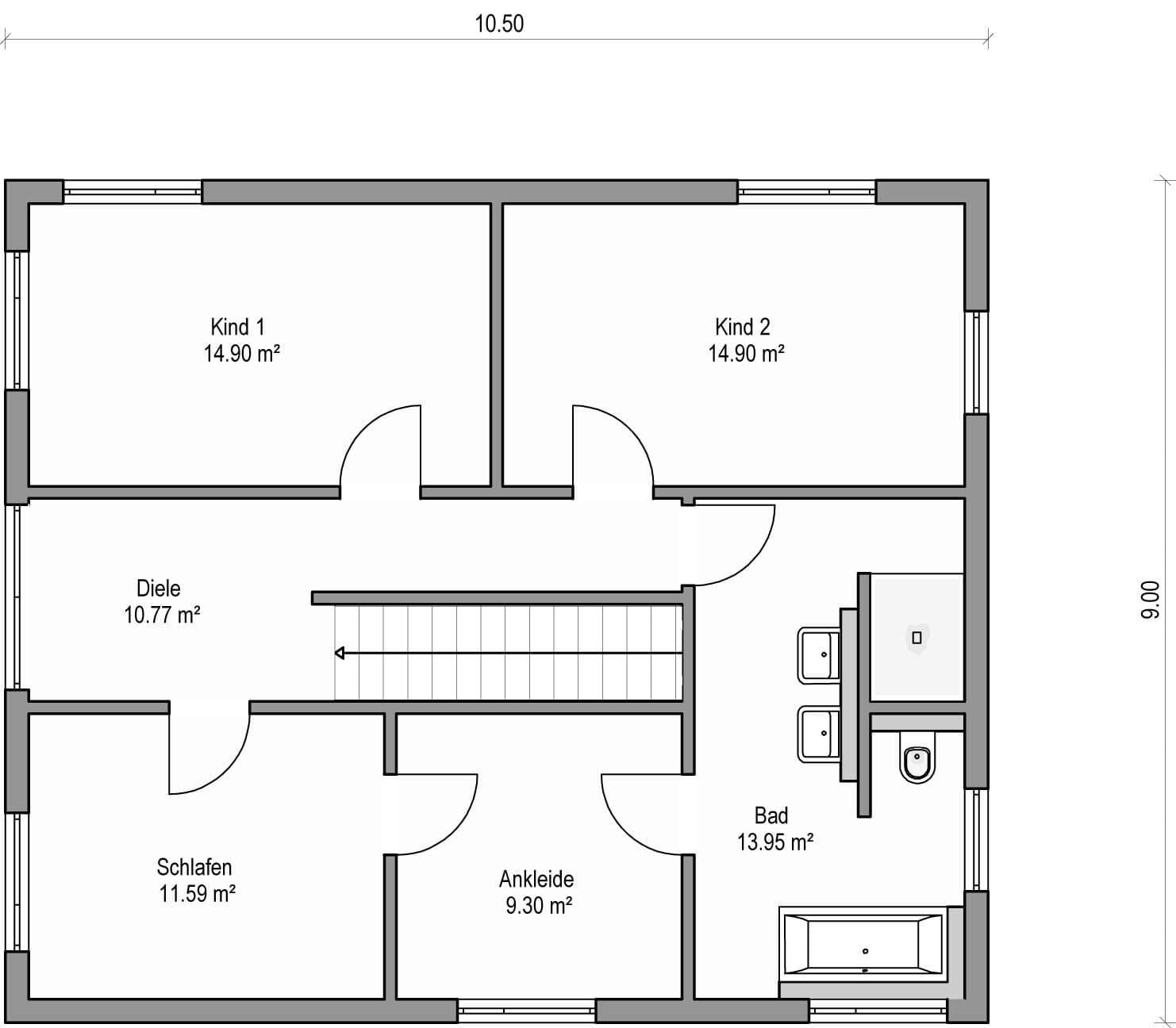
Grundriss

no description
Homestory 911 Grundriss (EG)
no description
Homestory 911 Grundriss (OG)

Kataloge

Lehner Haus: Hauskatalog
Lehner Haus

Lehner Haus: Hauskatalog


House and TreeParksHouse and PinMusterhausHouse on HandAnbieter