1. AnbieterArrow Icon
  2. Lehner HausArrow Icon
  3. Homestory 897
Slide 1
Slide 2
Slide 3
no description
Lehner HausHomestory 897
homeStadtvillen
energyStandardEffizienzhaus 55 EE
Preis anfragen
Katalog bestellen

Homestory 897

Frei geplant nach Wunsch und Maß

Bauherren mit eigenen Ideen und Wünschen sowie einer selbst entworfenen Planung mit zahlreichen, während vieler Stunden ausgetüftelten Details möchten ihre Vorstellungen und Skizzen möglichst eins-zu-eins umgesetzt wissen. Je mehr ein Fachberater davon streicht, desto unbeliebter macht er sich und desto weniger kann von einer freien Planung noch die Rede sein. Baupartner müssen besonders in solchen Fällen flexibel sein und den Entwürfen individueller Bauherren gerecht werden. Für Lehner Haus gar kein Problem.

Hausdaten

Hausart Icon
HausartEinfamilienhaus
Bauweise Icon
BauweiseHolz-Tafelbau
Baustil Icon
BaustilStadtvillen
Dachform Icon
DachformWalm-/Zeltdach
Energiestandard Icon
EnergiestandardEffizienzhaus 55 EE
Immobilientyp Icon
ImmobilientypKundenhaus
Heizungsart Icon
HeizungsartWärmepumpe (Luft, Wasser, oder beides)
Pfeil nach unten linksWir schaffen Platz für Ihre Träume

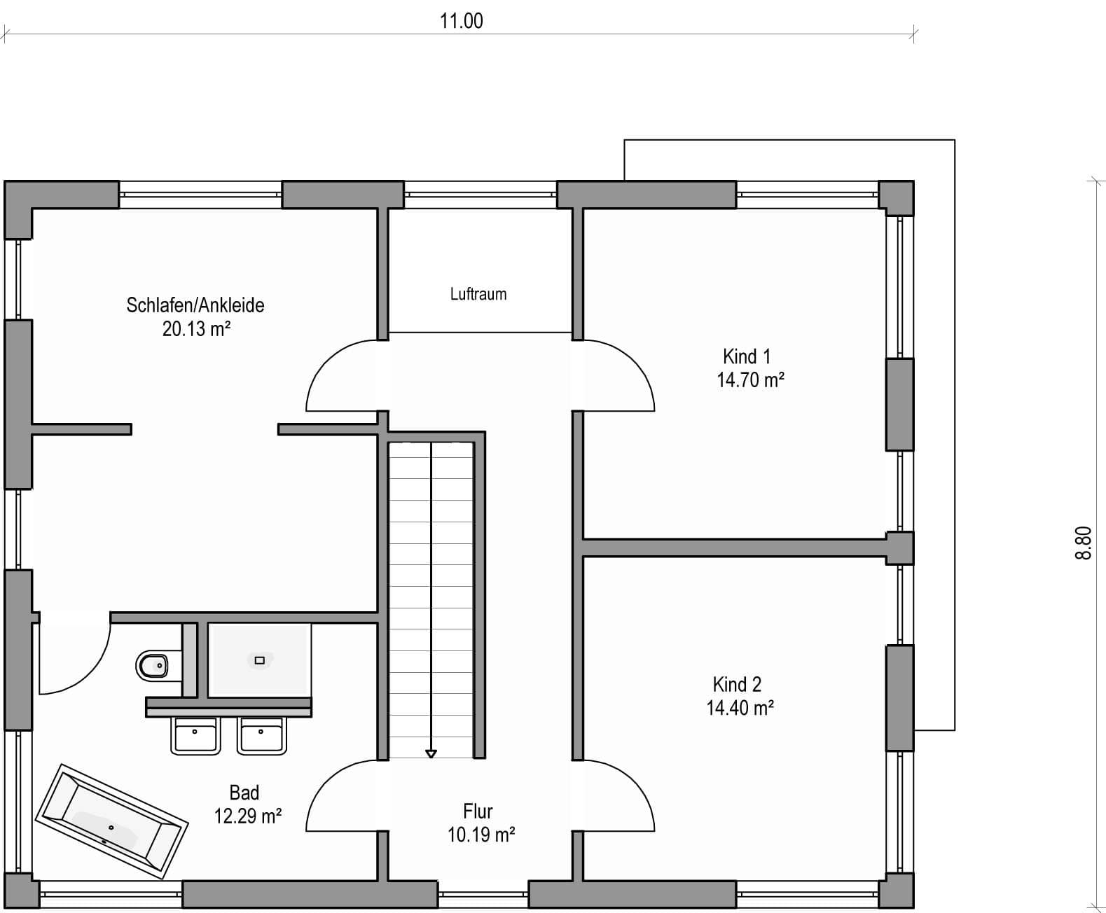
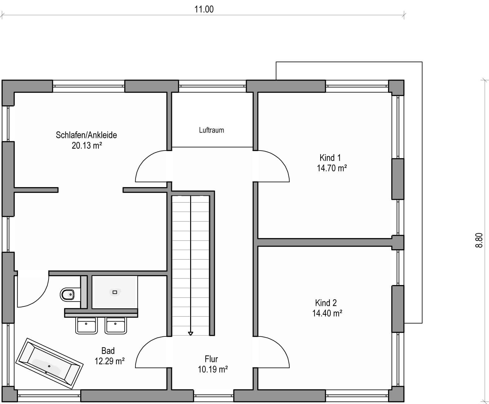
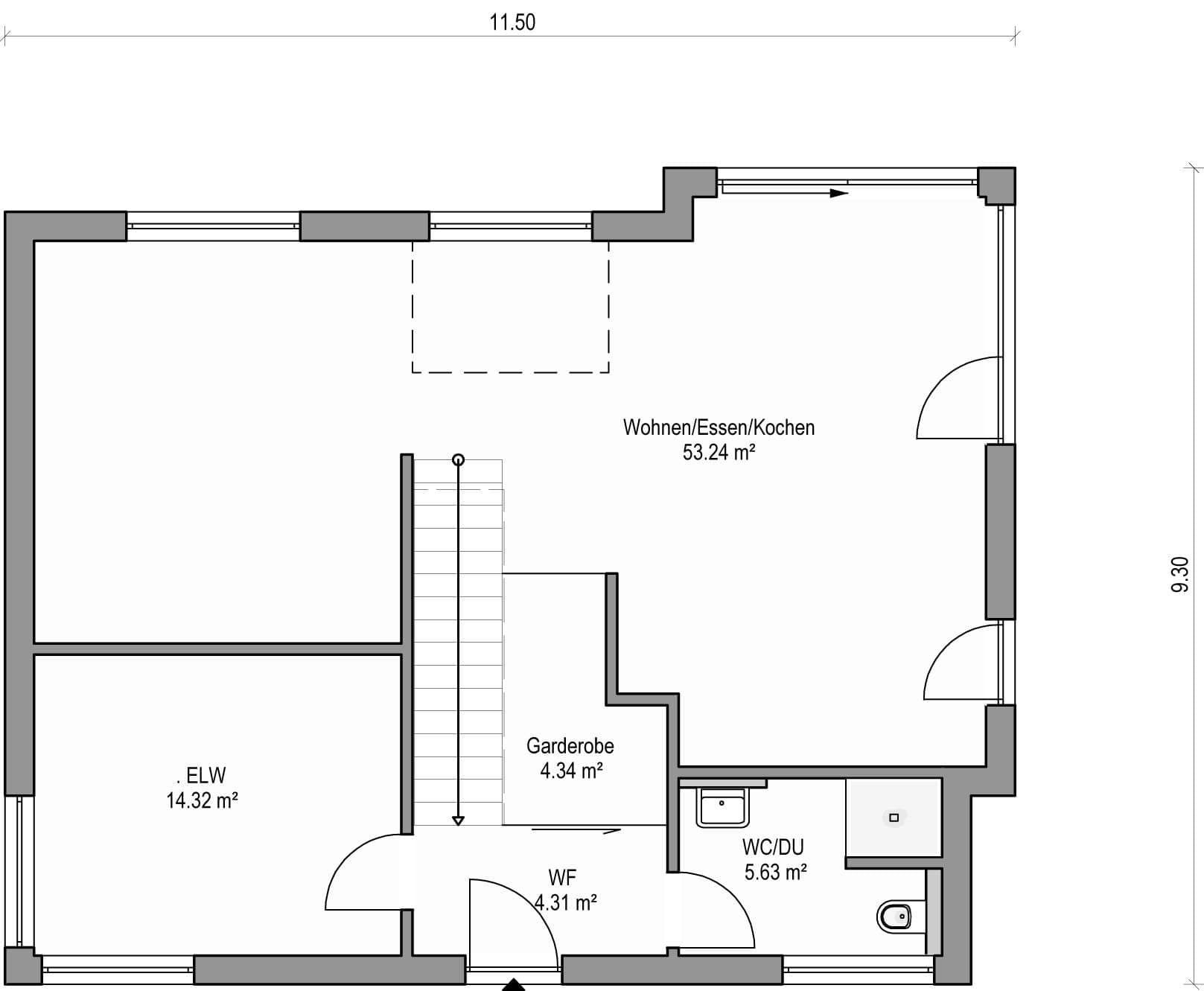
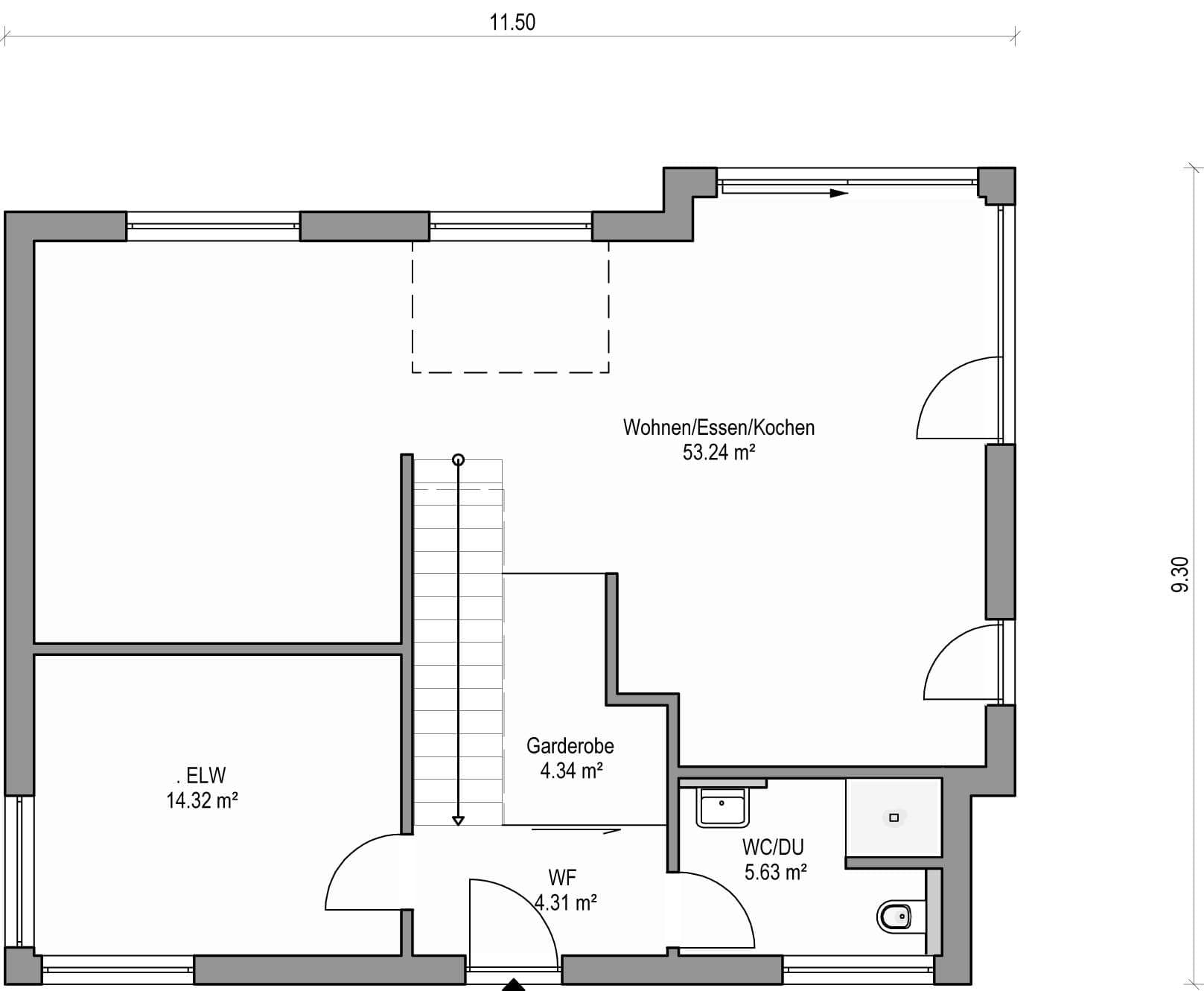
Grundriss

no description
Homestory 897 Grundriss (EG)
no description
Homestory 897 Grundriss (OG)

Unser Team vor Ort

Rainer BäuerleFachberater*in bei Lehner Haus
no description
Wir beraten Sie gerne!Arrow Icon

Kataloge

Lehner Haus: Hauskatalog
Lehner Haus

Lehner Haus: Hauskatalog


House and TreeParksHouse and PinMusterhausHouse on HandAnbieter