1. AnbieterArrow Icon
  2. Lehner HausArrow Icon
  3. Homestory 843
Slide 1
Slide 2
Slide 3
Slide 4
no description
Lehner HausHomestory 843
homeBungalow
energyStandardEffizienzhaus 55 EE
Preis anfragen
Katalog bestellen

Homestory 843

Barrierefreier Bungalow: Für ein Leben im Alter zu Zweit.

Das Grundstück, auf dem dieser moderne, energieeffiziente Bungalow deutlich höher steht als einige der ihn umgebenden Häuser, wurde zunächst aufgeschüttet, an den Seiten mit starken Betonplatten eingefasst und dann für das Eingießen seiner Bodenplatte ausreichend gefestigt. Dann konnte der in den Werkshallen von Lehner Haus vorbereitete Holzfertigbau an nur zwei Tagen auf den geplanten Platz gestellt und das schlüsselfertige Haus seinen Besitzern übergeben werden. Das alles dauerte von der Planung an kaum 18 Monate.

Hausdaten

Hausart Icon
HausartEinfamilienhaus
Bauweise Icon
BauweiseHolz-Tafelbau
Baustil Icon
BaustilBungalow
Dachform Icon
DachformWalm-/Zeltdach
Energiestandard Icon
EnergiestandardEffizienzhaus 55 EE
Immobilientyp Icon
ImmobilientypKundenhaus
Heizungsart Icon
HeizungsartWärmepumpe (Luft, Wasser, oder beides)
Pfeil nach unten linksWir schaffen Platz für Ihre Träume

Grundriss

no description
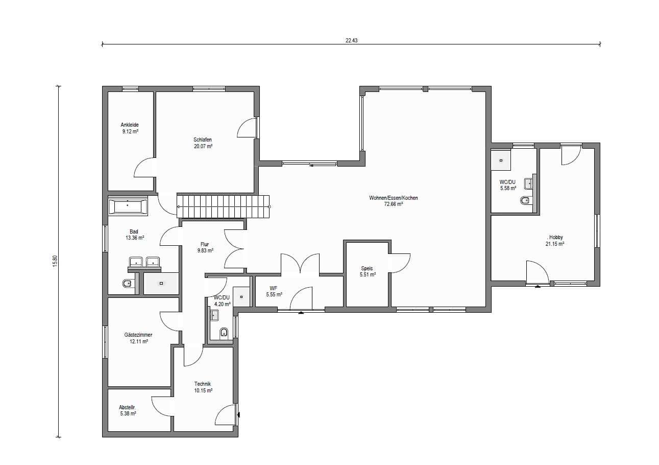
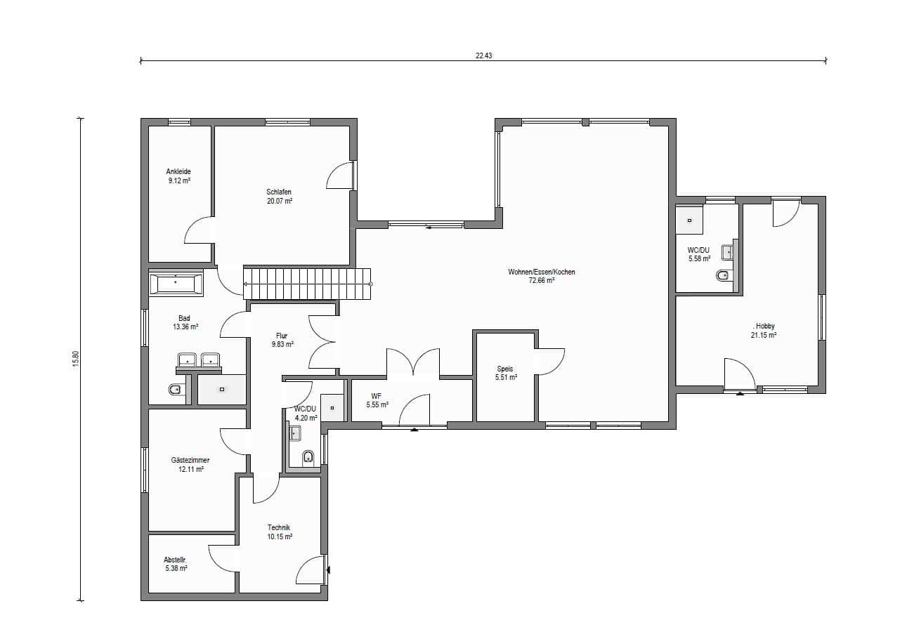
Homestory 843 Grundriss (EG)
no description
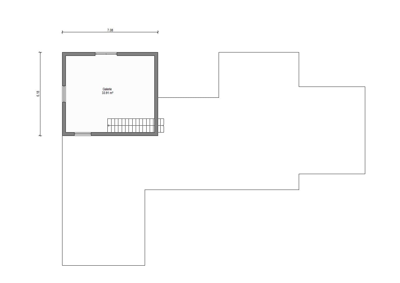
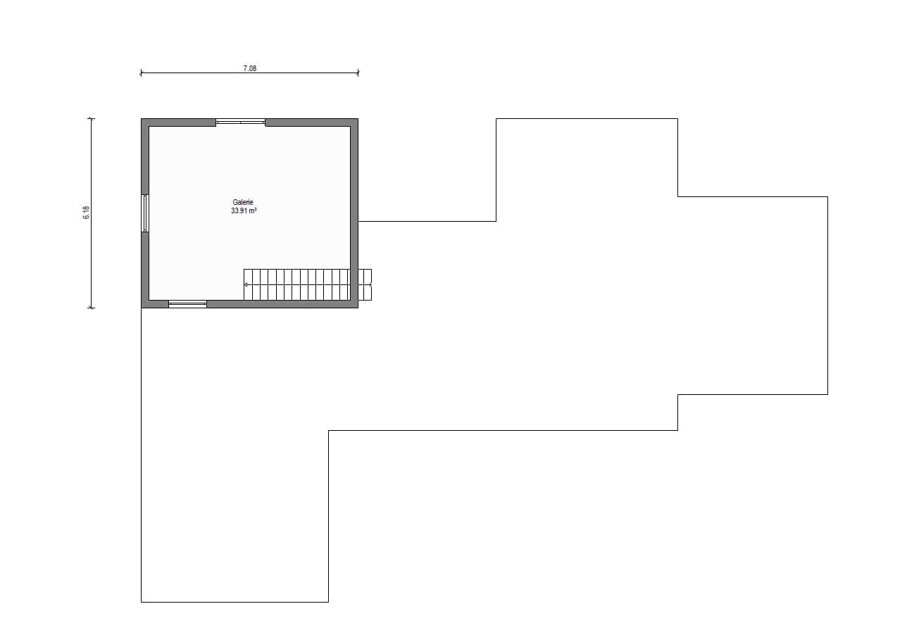
Homestory 843 Grundriss (DG)

Kataloge

Lehner Haus: Hauskatalog
Lehner Haus

Lehner Haus: Hauskatalog


House and TreeParksHouse and PinMusterhausHouse on HandAnbieter