1. AnbieterArrow Icon
  2. Lehner HausArrow Icon
  3. Homestory 824
Slide 1
Slide 2
Slide 3
Slide 4
Slide 5
no description
Lehner HausHomestory 824
homeKlassische Familienhäuser
energyStandardEffizienzhaus 55 EE
Preis anfragen
Katalog bestellen

Homestory 824

Ein Stück Urlaub nach Hause geholt

Die Bauherren entschlossen sich, für das kommende Alter ein zweites eigenes Haus zu bauen. In Ihren Urlauben verbringen sie viele gemütliche, schöne Stunden in einem Ferienhaus an der Ostsee. Das neue Zuhause sollte deshalb sehr ähnlich wie das Haus im Norden gestaltet werden. Mit Lehner war das möglich: Eine freie Planung nach eigenen Wünschen und Vorstellungen. So sind viele Elemente des Ferienhauses in die Gestaltung geflossen und mit dem Ambiente ist ein ganzes Stück Urlaub nach Hause geholt worden.

Hausdaten

Hausart Icon
HausartEinfamilienhaus
Bauweise Icon
BauweiseHolz-Tafelbau
Baustil Icon
BaustilKlassische Familienhäuser
Dachform Icon
DachformSattel-/Giebeldach
Energiestandard Icon
EnergiestandardEffizienzhaus 55 EE
Immobilientyp Icon
ImmobilientypKundenhaus
Dachneigung Icon
Dachneigung27°
Hauseigenschaften Icon
HauseigenschaftenIntegriertes Carport
Heizungsart Icon
HeizungsartGas-Brennwertheizung
Pfeil nach unten linksWir schaffen Platz für Ihre Träume

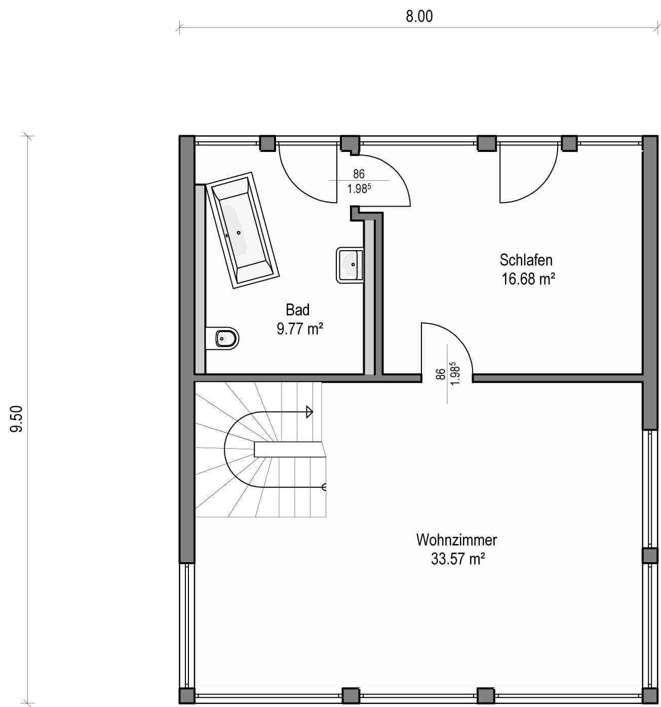
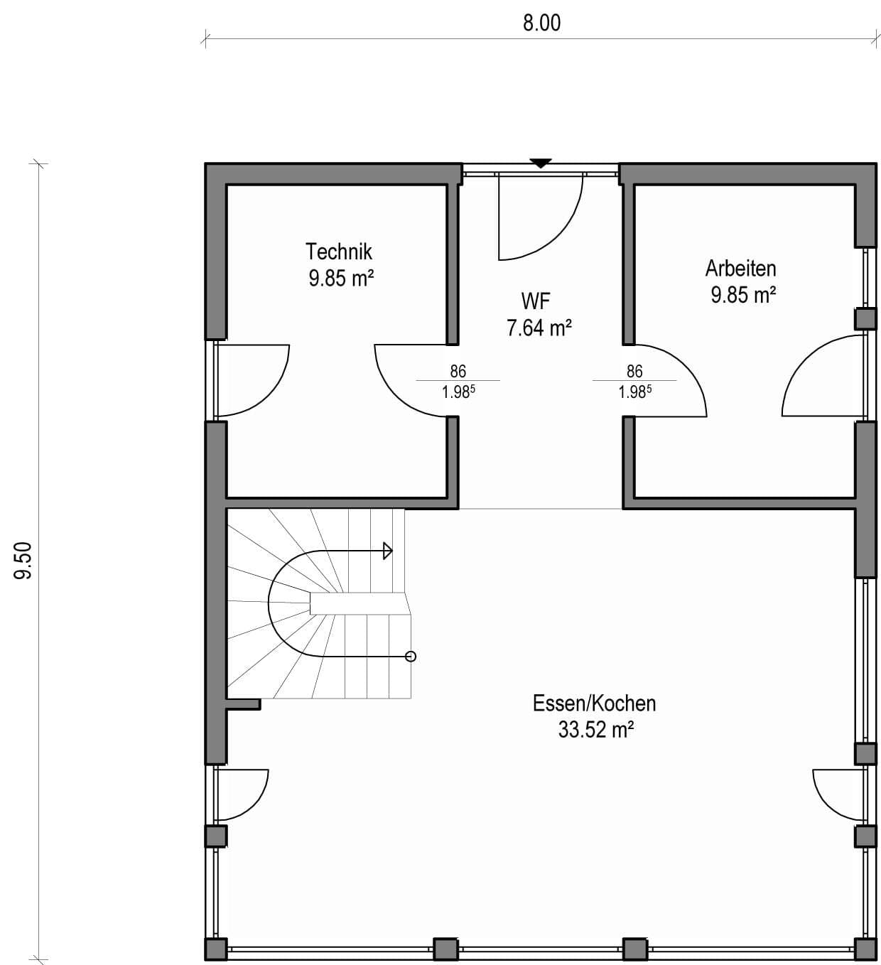
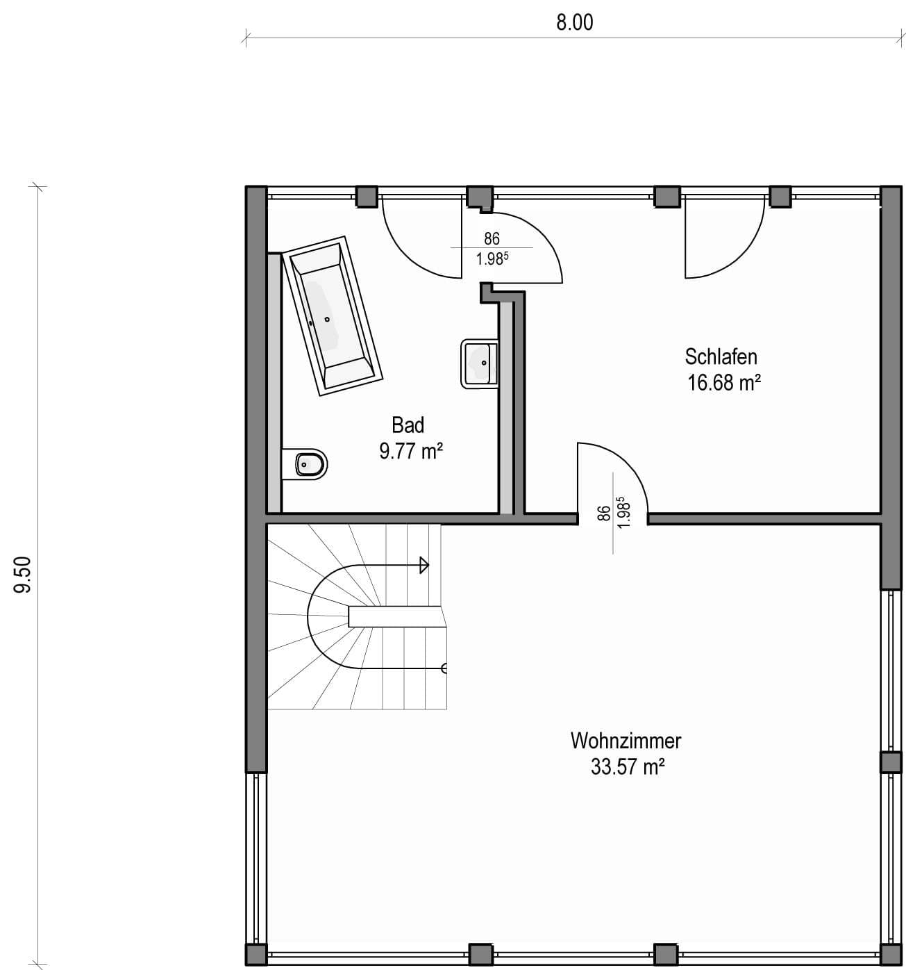
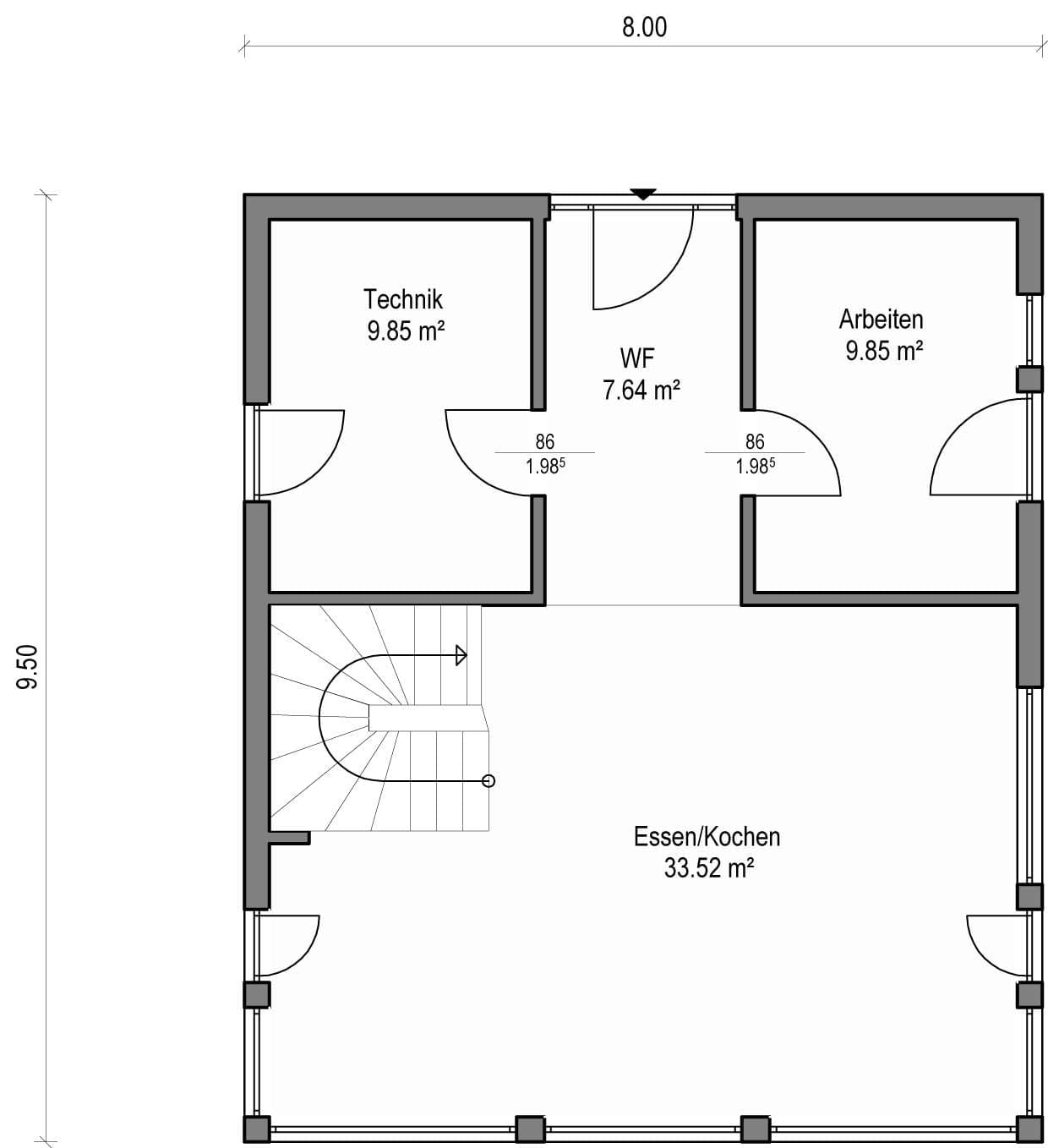
Grundriss

no description
Homestory 824 Grundriss (EG)
no description
Homestory 824 Grundriss (DG)

Kataloge

Lehner Haus: Hauskatalog
Lehner Haus

Lehner Haus: Hauskatalog


House and TreeParksHouse and PinMusterhausHouse on HandAnbieter