1. AnbieterArrow Icon
  2. Lehner HausArrow Icon
  3. Homestory 767
Slide 1
Slide 2
Slide 3
Slide 4
no description
Lehner HausHomestory 767
homeKlassische Familienhäuser
energyStandardEffizienzhaus 55
Preis anfragen
Katalog bestellen

Homestory 767

Typisch schwäbisch: Sparsames Effizienhaus für die Familie

Die Planung eines eigenen Hauses ist in der Regel eine Sache für das ganze Leben. Der Nachwuchs will nicht nur für heute und morgen eingeplant sein, sondern in ferner Zukunft in schönen eigenen Zimmern leben. Wenn die Kinder gegangen sind, sollten diese Räume von den Eltern sinnvoll genutzt werden können. Mit Lehner Haus planen Sie Ihr eigenes Zuhause für heute und bis hin ins Alter. Es ist meistens keine Frage des Geldes, ob solche Wohnkonzepte auch aufgehen, sondern es braucht eine professionelle Fachberatung.

Hausdaten

Hausart Icon
HausartEinfamilienhaus
Bauweise Icon
BauweiseHolz-Tafelbau
Baustil Icon
BaustilKlassische Familienhäuser
Dachform Icon
DachformSattel-/Giebeldach
Energiestandard Icon
EnergiestandardEffizienzhaus 55
Immobilientyp Icon
ImmobilientypKundenhaus
Heizungsart Icon
HeizungsartWärmepumpe (Luft, Wasser, oder beides)
Pfeil nach unten linksWir schaffen Platz für Ihre Träume

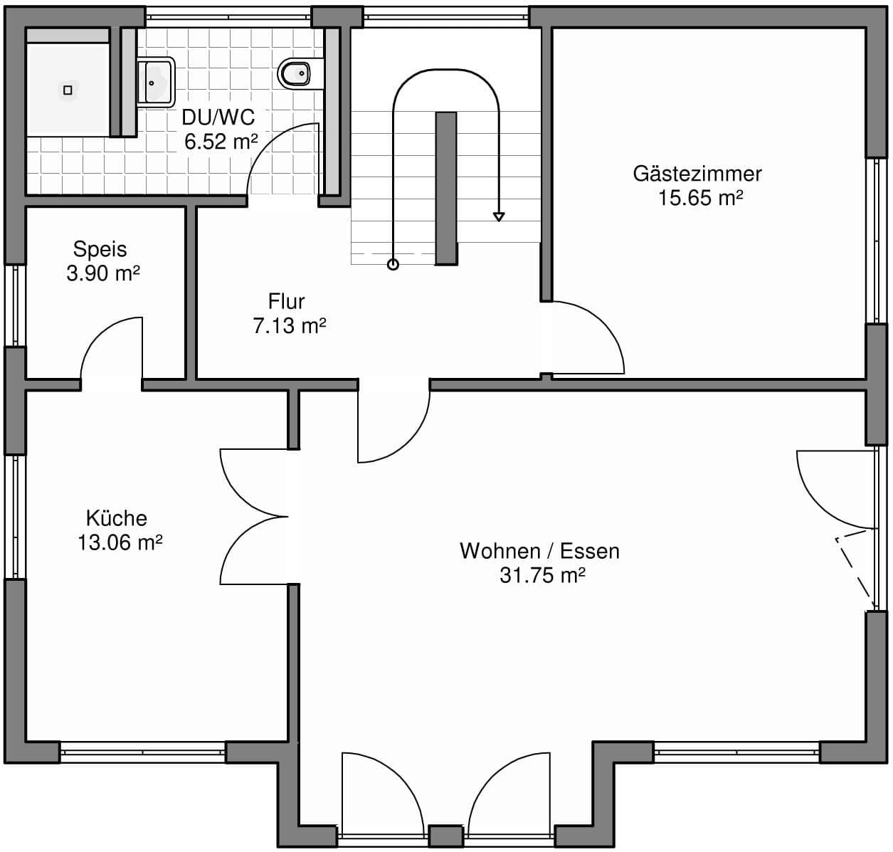
Grundriss

no description
Homestory 767 Grundriss (EG)
no description
Homestory 767 Grundriss (DG)

Unser Team vor Ort

Franziska PaulusFachberater*in bei Lehner Haus
no description
Wir beraten Sie gerne!Arrow Icon

Kataloge

Lehner Haus: Hauskatalog
Lehner Haus

Lehner Haus: Hauskatalog


House and TreeParksHouse and PinMusterhausHouse on HandAnbieter