1. AnbieterArrow Icon
  2. Lehner HausArrow Icon
  3. Homestory 741
Slide 1
Slide 2
Slide 3
Slide 4
Slide 5
no description
Lehner HausHomestory 741
homeKlassische Familienhäuser
energyStandardEffizienzhaus 55
Preis anfragen
Katalog bestellen

Homestory 741

Traumhaus am Dorfrand: Selbst geplant bis ins Detail

Draußen, außerhalb der Stadt leben, am Dorfrand, Ruhe genießen, einen Swimmingpool, ein helles Haus mit großem Kamin, eine klare Raumaufteilung der hohen hellen Räume, kombiniert mit einer Galerie, eine sachliche, rein praktische Möblierung nach eigenem Geschmack, - so stellten sich die beiden Bauherren ihr neues Zuhause in ersten Entwürfen vor. Mit diesen Ideen und einer Planung der Grundrisse machten sie sich auf die Suche nach einem Baupartner, der ihre Entwürfe annehmen und ohne Abstriche umsetzen würde.

Hausdaten

Hausart Icon
HausartEinfamilienhaus
Bauweise Icon
BauweiseHolz-Tafelbau
Baustil Icon
BaustilKlassische Familienhäuser
Dachform Icon
DachformSattel-/Giebeldach
Energiestandard Icon
EnergiestandardEffizienzhaus 55
Immobilientyp Icon
ImmobilientypKundenhaus
Heizungsart Icon
HeizungsartWärmepumpe (Luft, Wasser, oder beides)
Pfeil nach unten linksWir schaffen Platz für Ihre Träume

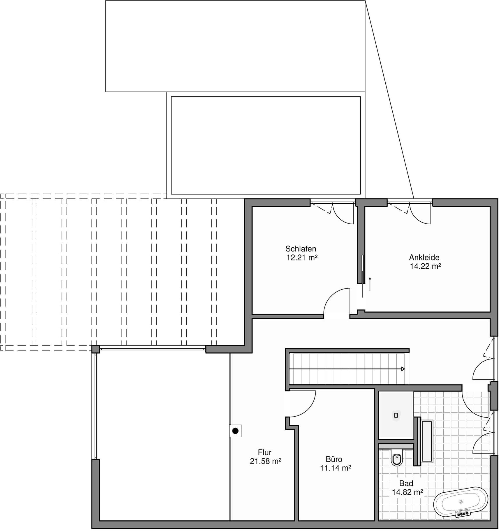
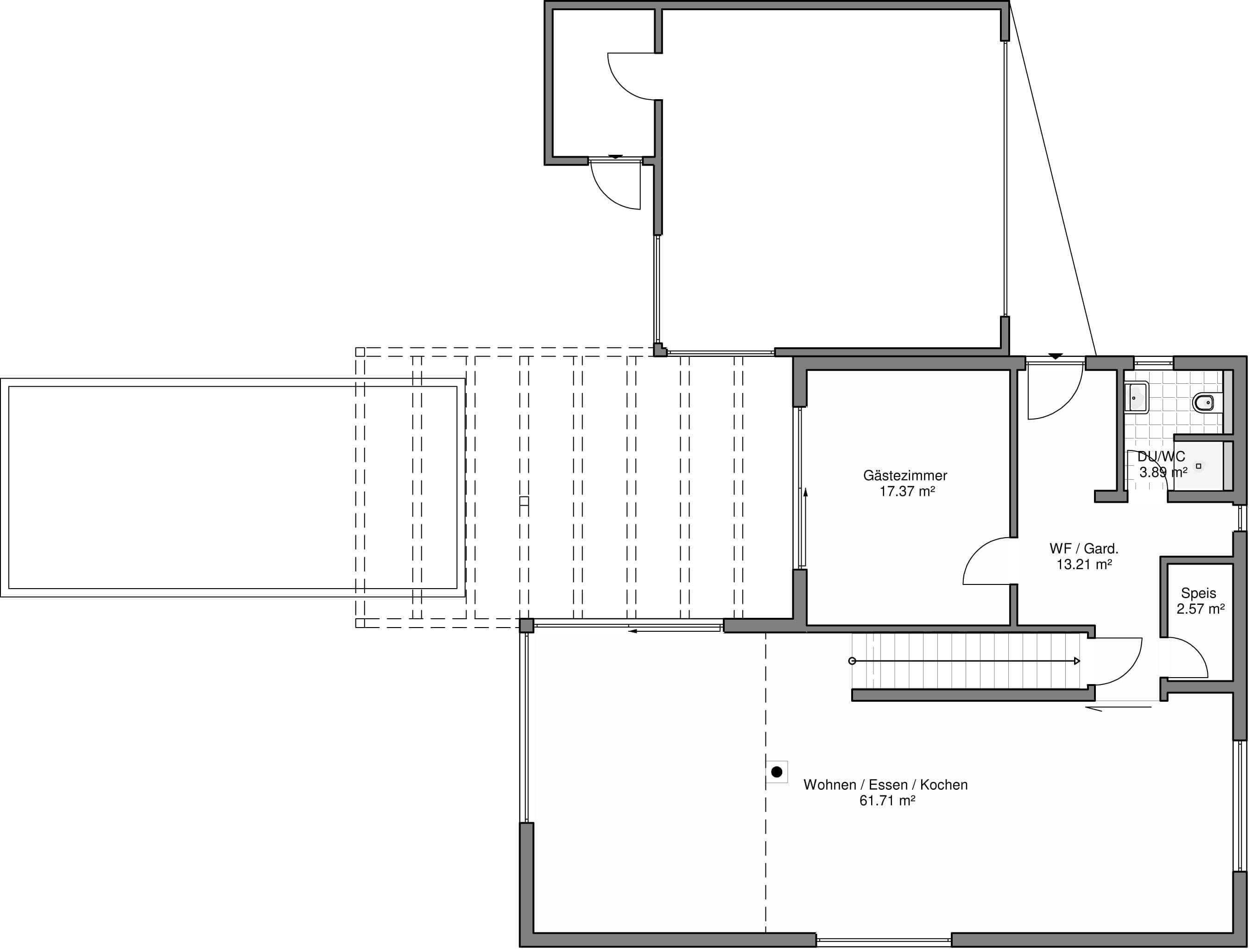
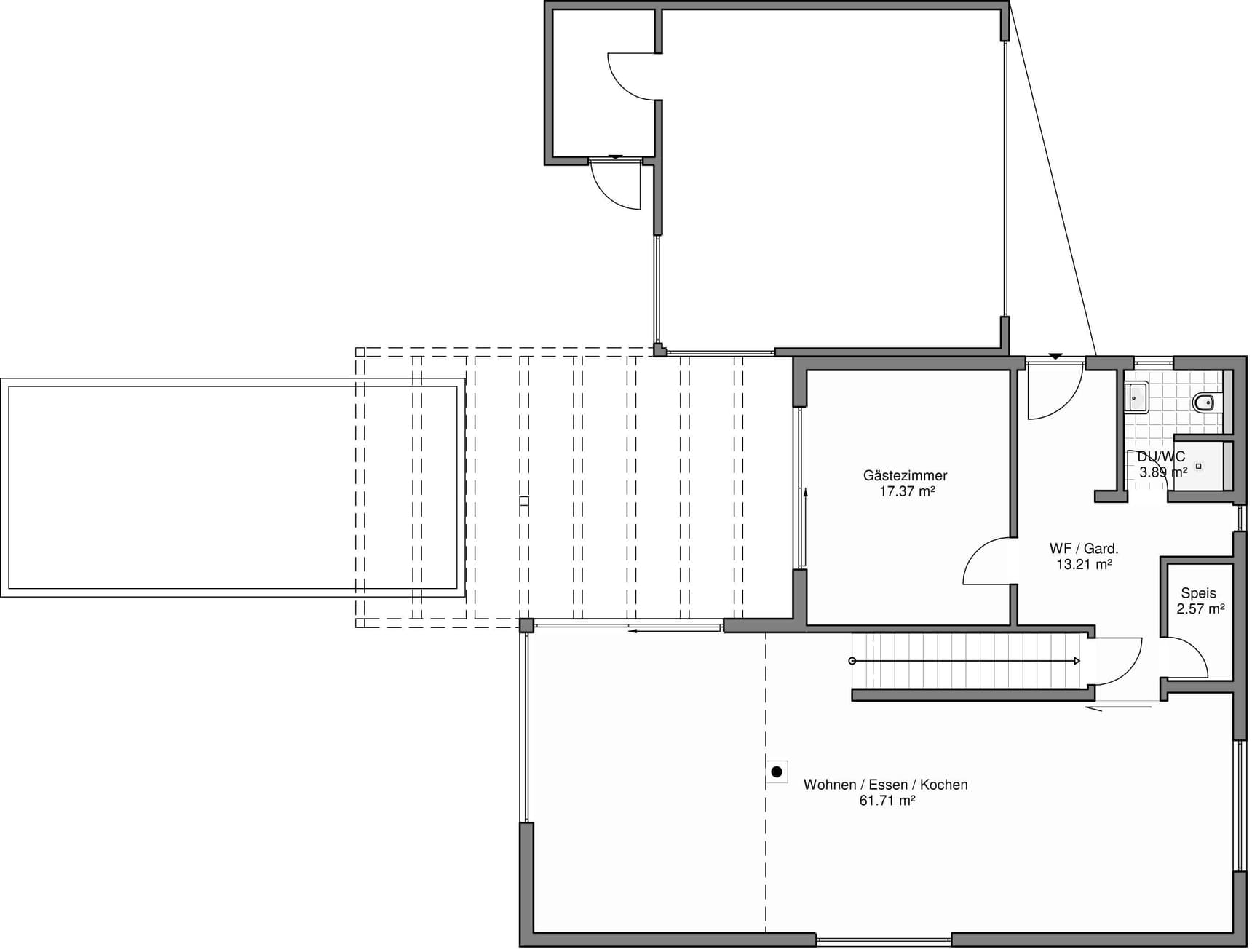
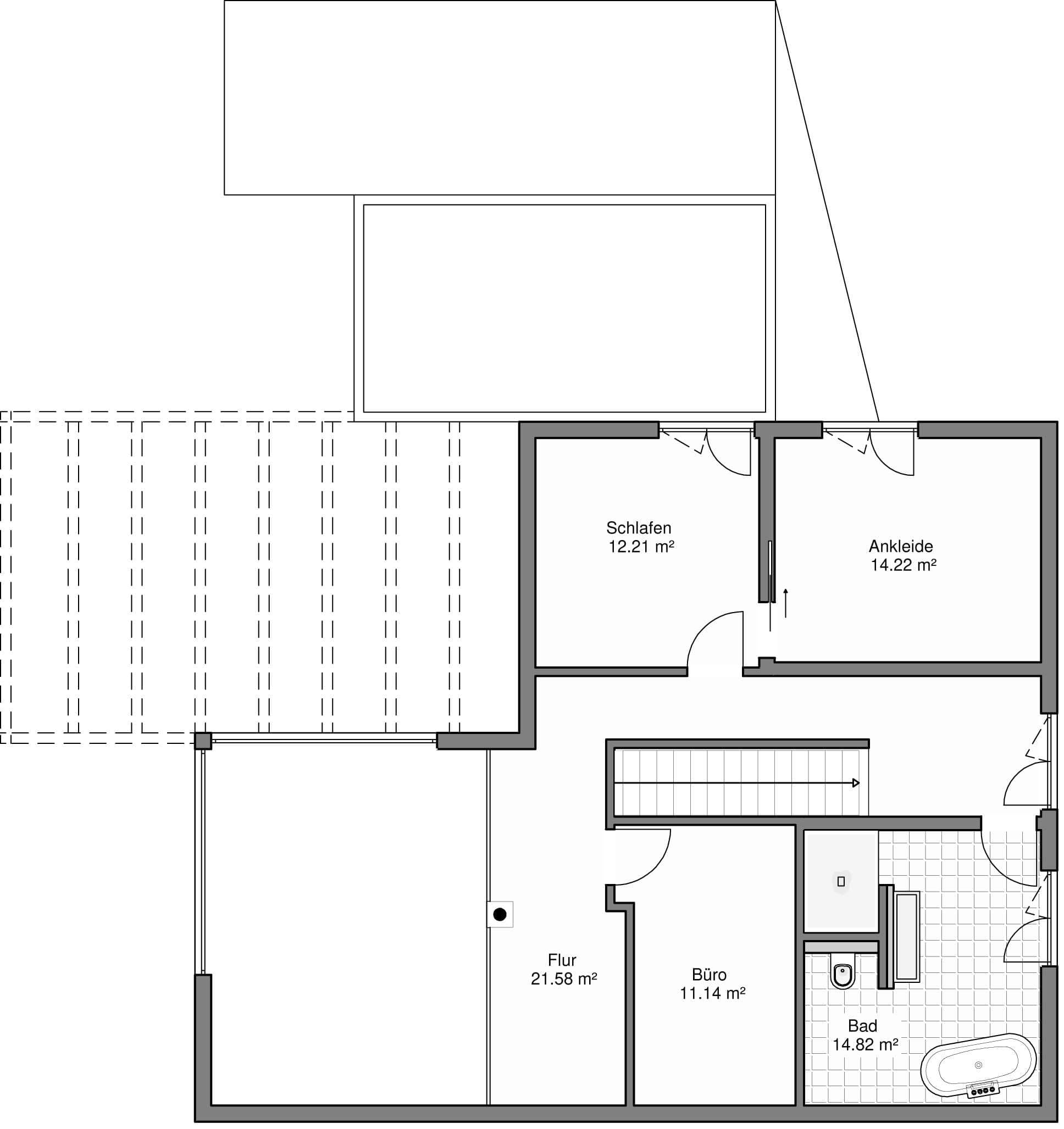
Grundriss

no description
Homestory 741 Grundriss (EG)
no description
Homestory 741 Grundriss (DG)

Unser Team vor Ort

Gerhard StraubFachberater*in bei Lehner Haus
no description
Wir beraten Sie gerne!Arrow Icon

Kataloge

Lehner Haus: Hauskatalog
Lehner Haus

Lehner Haus: Hauskatalog


House and TreeParksHouse and PinMusterhausHouse on HandAnbieter