1. AnbieterArrow Icon
  2. Lehner HausArrow Icon
  3. Homestory 733
Slide 1
Slide 2
Slide 3
Slide 4
no description
Lehner HausHomestory 733
homeVillen
energyStandardEffizienzhaus 40
Preis anfragen
Katalog bestellen

Homestory 733

Extravagant: Unikat für ein Leben, wo andere Urlaub machen

Ein Haus auf mittlerer Anhöhe über dem Bodensee, der Blick reicht über den ruhig und anmutig liegenden See bis an das andere Ufer, die Alpen sind nahe. An solchen ungewöhnlich anmutigen Orten findet man oft Hotels oder Ferienanalgen. Auf einem solchen Grundstück wollte der Bauherr sein bis ins kleinste Detail selbst geplantes Holzfertighaus stellen lassen, von einem Baupartner, der seine Entwürfe mit ihm gemeinsam professionell abrunden und umsetzen würde. Er wollte dort leben, wo andere sich kurz erholen gehen.

Hausdaten

Hausart Icon
HausartEinfamilienhaus
Bauweise Icon
BauweiseHolz-Tafelbau
Anzahl Räume Icon
Anzahl Räume8
Baustil Icon
BaustilVillen
Fassade Icon
FassadePutz
Außenmaße Icon
Außenmaße15 m x 11 m
Dachform Icon
DachformSattel-/Giebeldach
Energiestandard Icon
EnergiestandardEffizienzhaus 40
Immobilientyp Icon
ImmobilientypKundenhaus
Dachneigung Icon
Dachneigung20°
Kniestock Icon
Kniestock1.5 m
Hauseigenschaften Icon
HauseigenschaftenGästezimmer
Hausdämmstoff Icon
HausdämmstoffHolzfaser- und Zellulosedämmstoffe
Heizungsart Icon
HeizungsartWärmepumpe (Luft, Wasser, oder beides)
Pfeil nach unten linksWir schaffen Platz für Ihre Träume

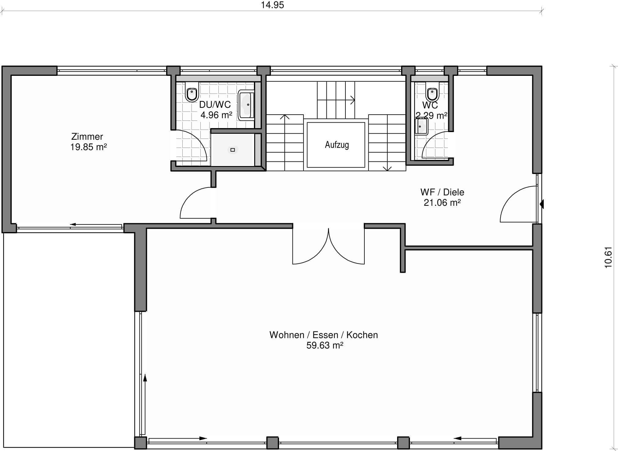
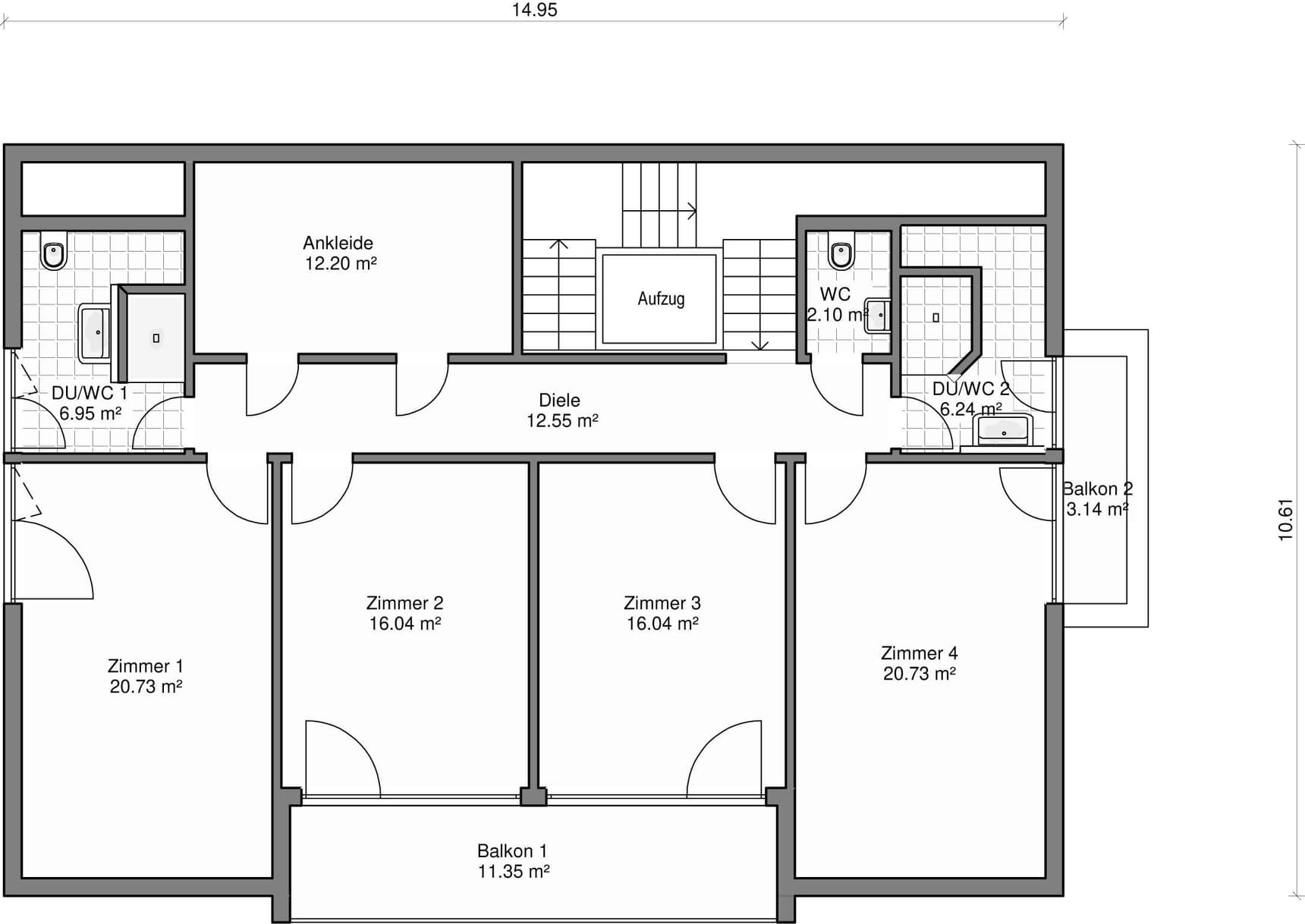
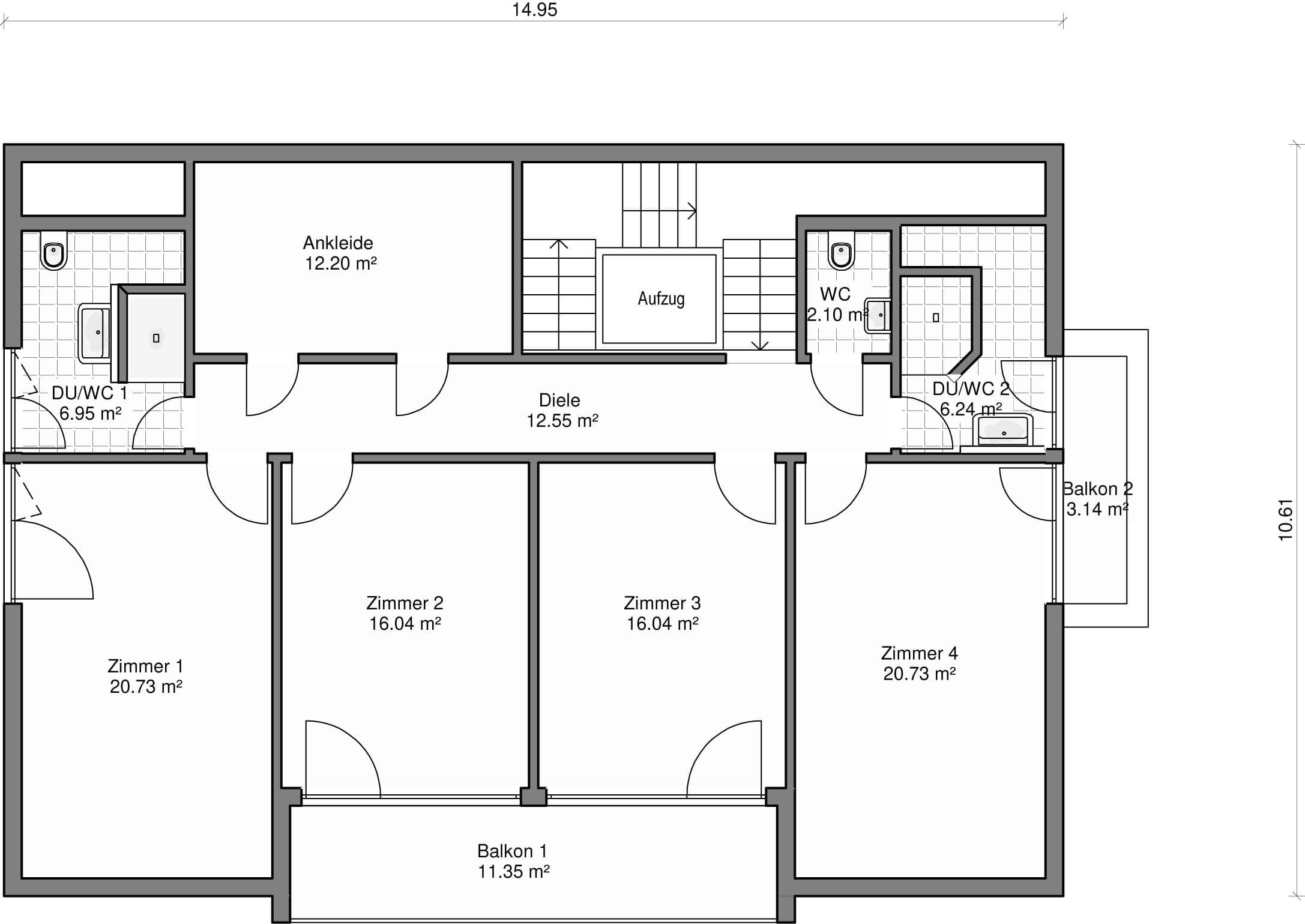
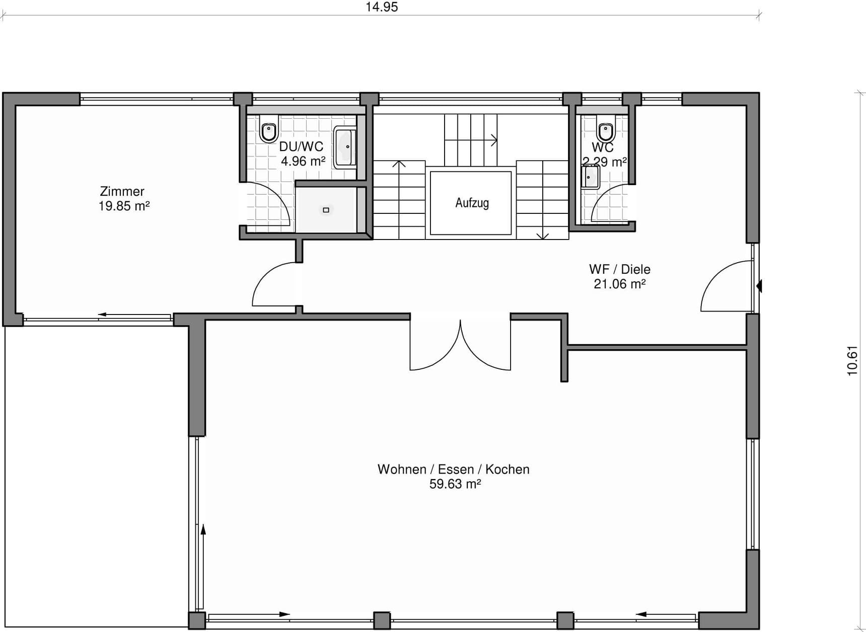
Grundriss

no description
Homestory 733 Grundriss (EG)Wohnfläche EG: 105 m²
no description
Homestory 733 Grundriss (OG)Wohnfläche OG: 116 m²

Unser Team vor Ort

Gerhard StraubFachberater*in bei Lehner Haus
no description
Wir beraten Sie gerne!Arrow Icon

Kataloge

Lehner Haus: Hauskatalog
Lehner Haus

Lehner Haus: Hauskatalog


House and TreeParksHouse and PinMusterhausHouse on HandAnbieter