1. AnbieterArrow Icon
  2. Lehner HausArrow Icon
  3. Homestory 680
Slide 1
Slide 2
Slide 3
no description
Lehner HausHomestory 680
homeBungalow
energyStandardEffizienzhaus 55
Preis anfragen
Katalog bestellen

Homestory 680

Praktisches Bungalow: barrierefrei & effizient

Der klassische Bungalow ist immer wieder gefragt, ob für vierköpfige Familien, als Zuhause für das kommende Alter oder zum Beispiel als praktische Lösung für das rollstuhlgerechte Wohnen. Eine Ebene, die Türen in angemessener Breite und alle Räume in idealer Größe sowie durch eine großzügige Aufteilung relativ einfach erreichbar. Auch diese Häuser sind auf ihre Weise Unikate, denn sie werden ganz nach Bedarf der Bauherren individuell geplant und eingerichtet. Bei der Planung mit Lehner gibt es keine Beschränkungen.

Hausdaten

Hausart Icon
HausartEinfamilienhaus
Bauweise Icon
BauweiseHolz-Tafelbau
Baustil Icon
BaustilBungalow
Dachform Icon
DachformFlachdach
Energiestandard Icon
EnergiestandardEffizienzhaus 55
Immobilientyp Icon
ImmobilientypKundenhaus
Heizungsart Icon
HeizungsartWärmepumpe (Luft, Wasser, oder beides)
Pfeil nach unten linksWir schaffen Platz für Ihre Träume

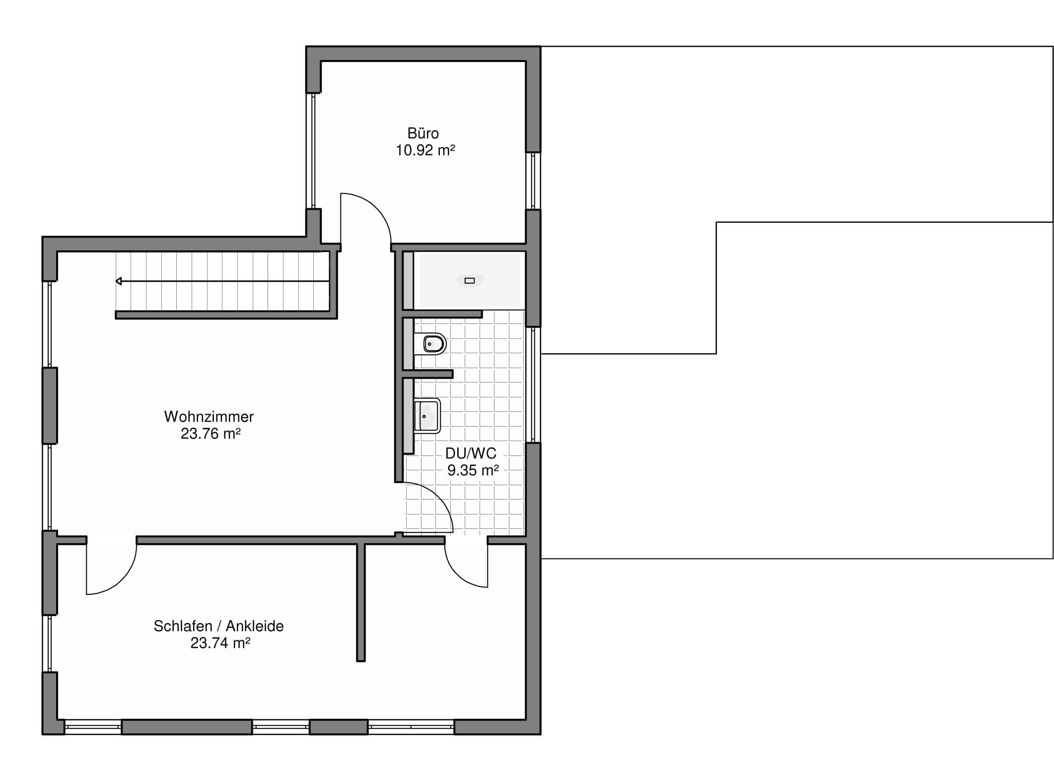
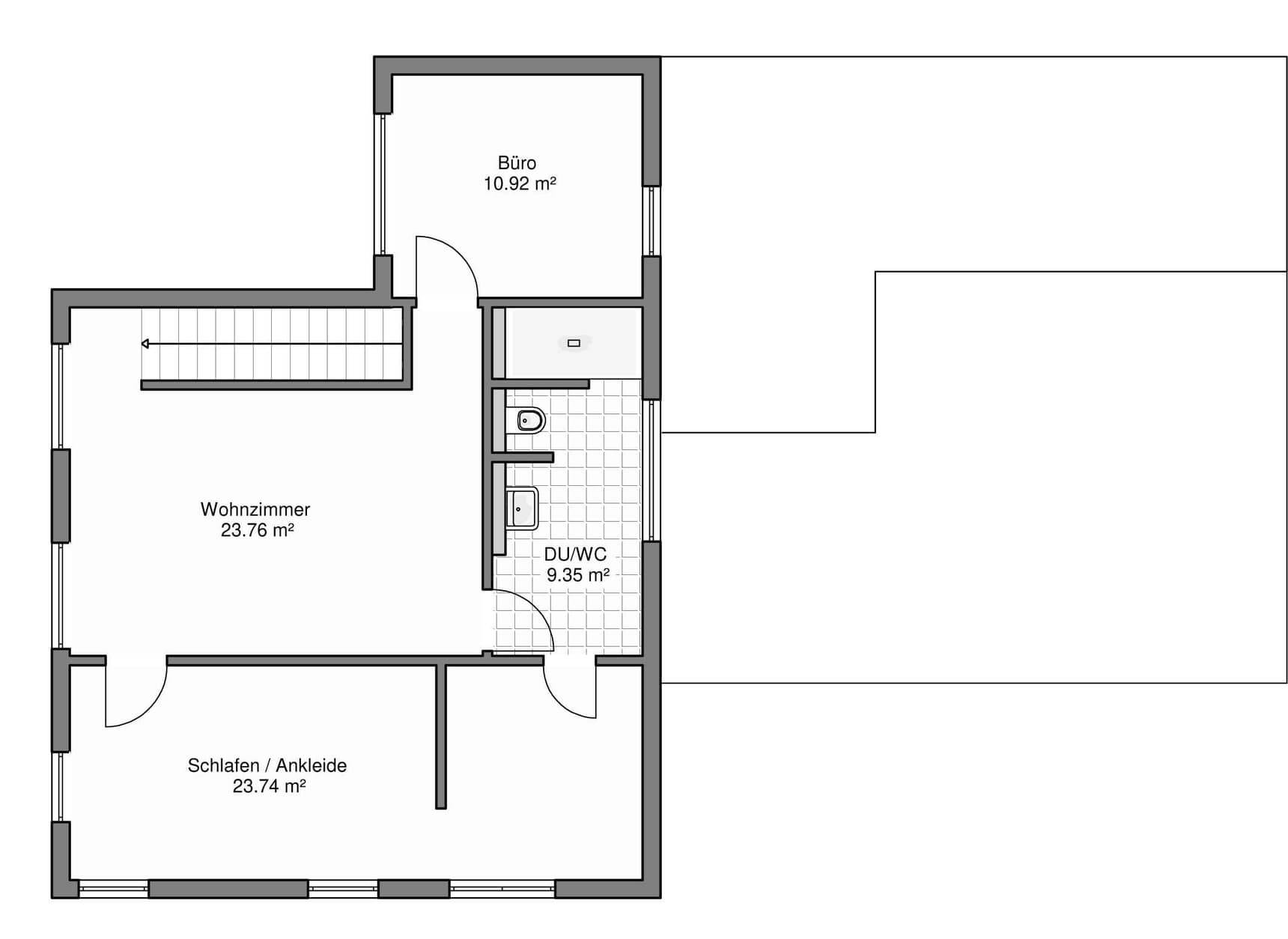
Grundriss

no description
Homestory 680 Grundriss (EG)

Kataloge

Lehner Haus: Hauskatalog
Lehner Haus

Lehner Haus: Hauskatalog


House and TreeParksHouse and PinMusterhausHouse on HandAnbieter