1. AnbieterArrow Icon
  2. Lehner HausArrow Icon
  3. Homestory 648
Slide 1
Slide 2
Slide 3
Slide 4
no description
Lehner HausHomestory 648
homeKubushäuser im Bauhausstil
energyStandardEffizienzhaus 55
Preis anfragen
Katalog bestellen

Homestory 648

Praktisch. Kubisch. Modern.

Der Holzfertigbau kann es schon lange: eine geschmackvolle Architektur gestalten und dabei ein hoch energieeffizientes Gebäude entwickeln. Familienhäuser von Heute müssen nachhaltig sparsam bleiben, jede Menge Raum bieten, üppige Schnörkel oder verträumte Winkel sind immer weniger erwünscht, aber die Wohnräume sollen meistens gemütlich sein und ein angenehmes Lebensgefühl bieten. Mit einer Erfahrung von über fünfzig Jahren als Generalunternehmen im Holzfertigbau realisiert Lehner auch diese Wünsche.

Hausdaten

Hausart Icon
HausartEinfamilienhaus
Bauweise Icon
BauweiseHolz-Tafelbau
Baustil Icon
BaustilKubushäuser im Bauhausstil
Dachform Icon
DachformFlachdach
Energiestandard Icon
EnergiestandardEffizienzhaus 55
Immobilientyp Icon
ImmobilientypKundenhaus
Heizungsart Icon
HeizungsartWärmepumpe (Luft, Wasser, oder beides)
Pfeil nach unten linksWir schaffen Platz für Ihre Träume

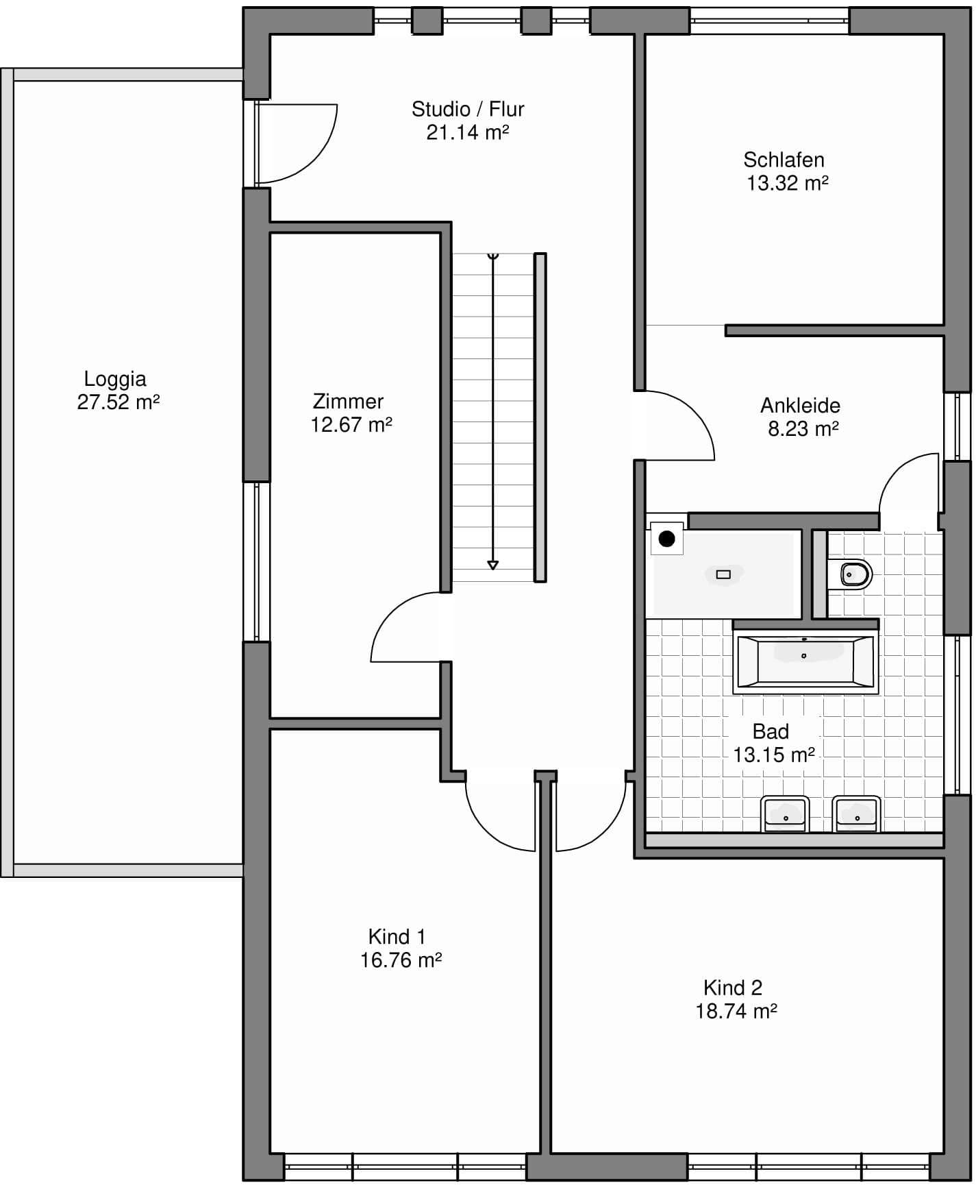
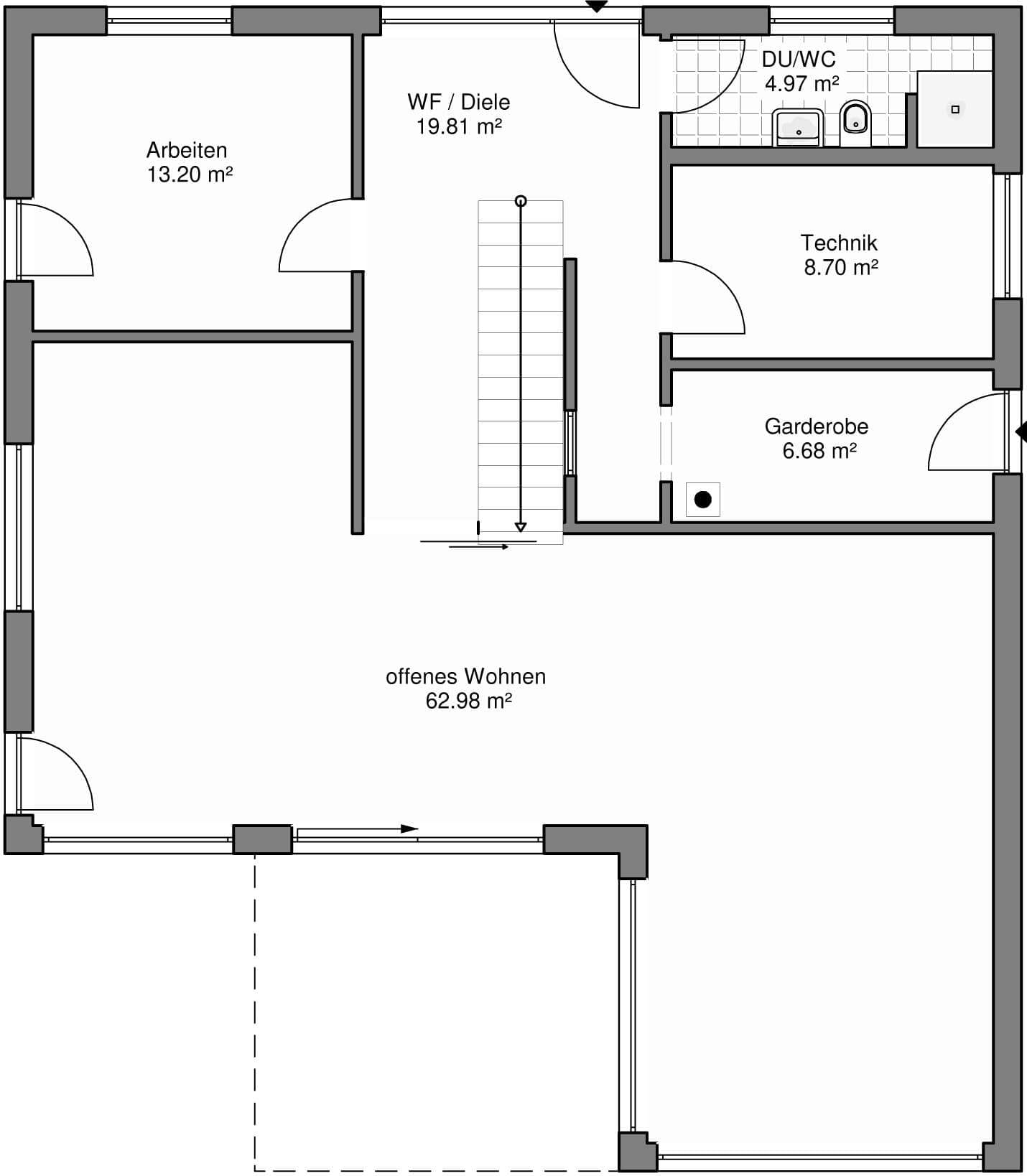
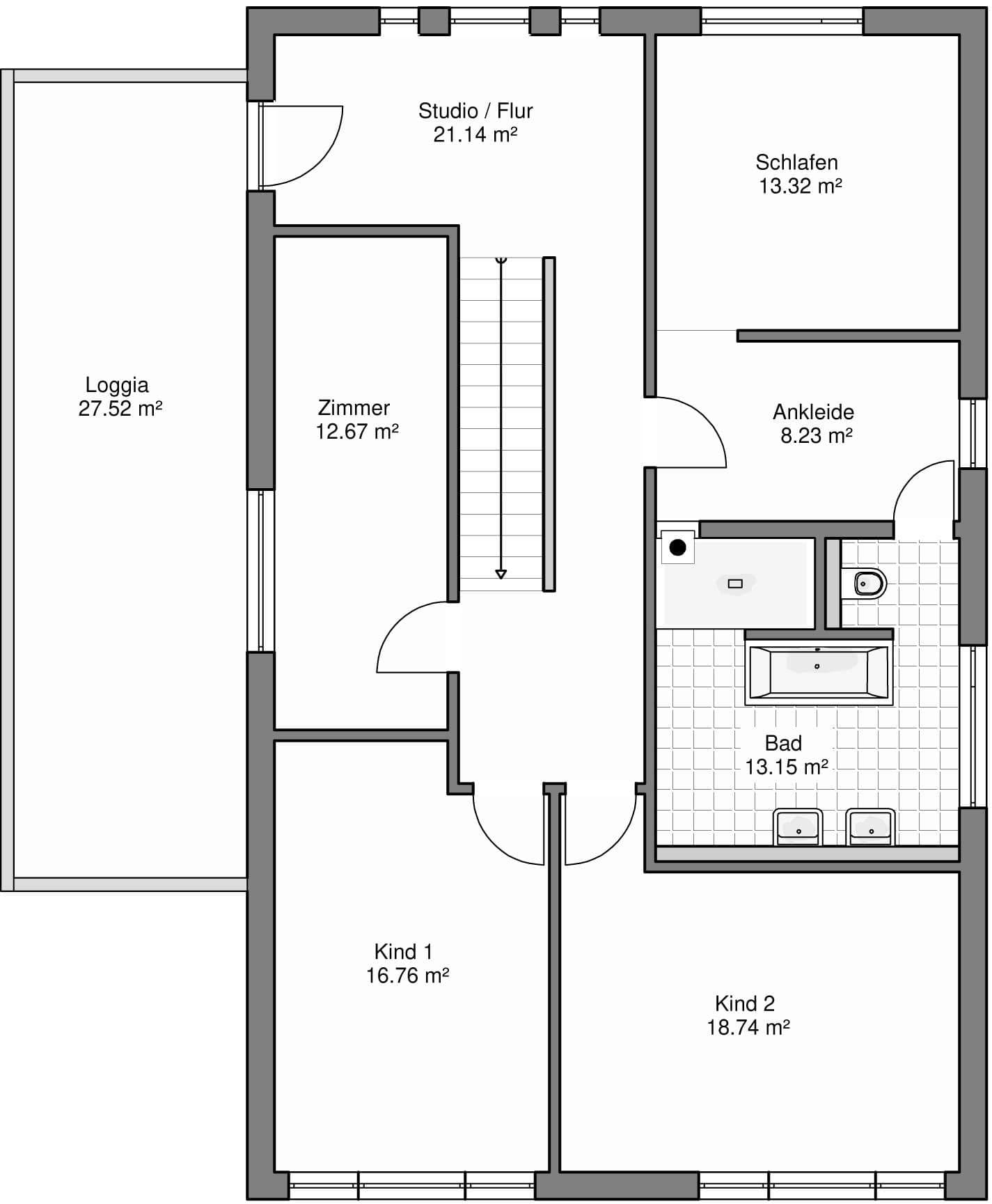
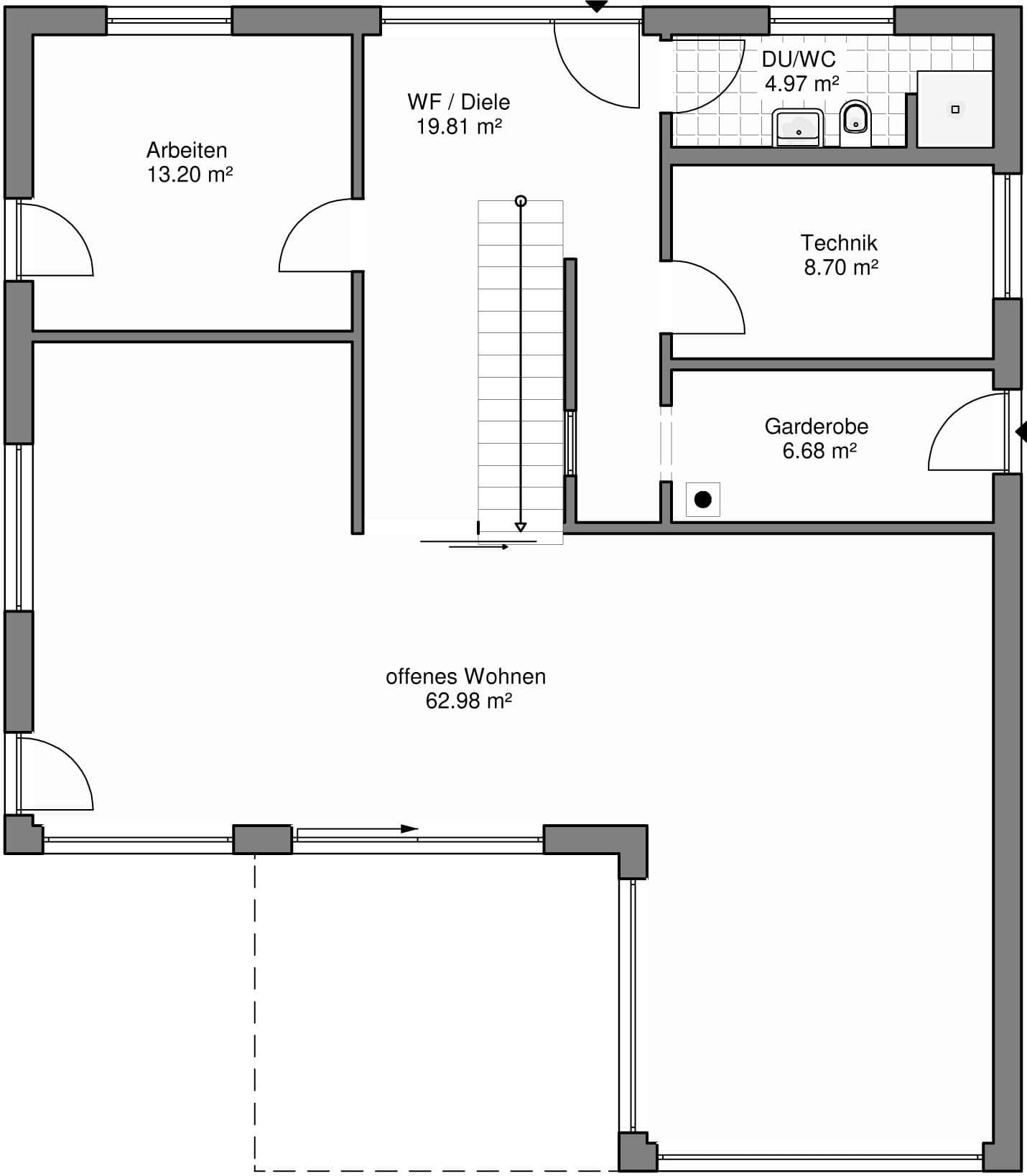
Grundriss

no description
Homestory 648 Grundriss (EG)
no description
Homestory 648 Grundriss (OG)

Unser Team vor Ort

Andrea KienleFachberater*in bei Lehner Haus
no description
Wir beraten Sie gerne!Arrow Icon

Kataloge

Lehner Haus: Hauskatalog
Lehner Haus

Lehner Haus: Hauskatalog


House and TreeParksHouse and PinMusterhausHouse on HandAnbieter