1. AnbieterArrow Icon
  2. Lehner HausArrow Icon
  3. Homestory 639
Slide 1
Slide 2
Slide 3
Slide 4
no description
Lehner HausHomestory 639
homeKlassische Familienhäuser
livingArea180 m²
energyStandardEffizienzhaus 55
Preis anfragen
Katalog bestellen

Homestory 639

Barrierefreies Einfamilienhaus in soldier, schwäbischer Qualität

Der Holzfertigbau mit Lehner Haus hat große Vorteile: Das Verwenden von viel professionell aufbereitetem Holz und anderen ökologisch wertvollen Materialien, das sehr effiziente technologische Haussystem oder die Möglichkeit, ein persönliches Unikat zu bauen. Außerdem steht Lehner für Qualität. Ein sehr großer Vorteil ist auch die Bauzeit: Von der ersten Planung bis zum Einzug dauert es in der Regel knapp ein Jahr.

Hausdaten

Hausart Icon
HausartEinfamilienhaus
Bauweise Icon
BauweiseHolz-Tafelbau
Anzahl Räume Icon
Anzahl Räume10
Baustil Icon
BaustilKlassische Familienhäuser
Fassade Icon
FassadePutz
Außenmaße Icon
Außenmaße13 m x 10 m
Wohnfläche Icon
Wohnfläche180 m²
Dachform Icon
DachformSattel-/Giebeldach
Energiestandard Icon
EnergiestandardEffizienzhaus 55
Immobilientyp Icon
ImmobilientypKundenhaus
Dachneigung Icon
Dachneigung38°
Hausdämmstoff Icon
HausdämmstoffHolzfaser- und Zellulosedämmstoffe
Heizungsart Icon
HeizungsartWärmepumpe (Luft, Wasser, oder beides)
Pfeil nach unten linksWir schaffen Platz für Ihre Träume

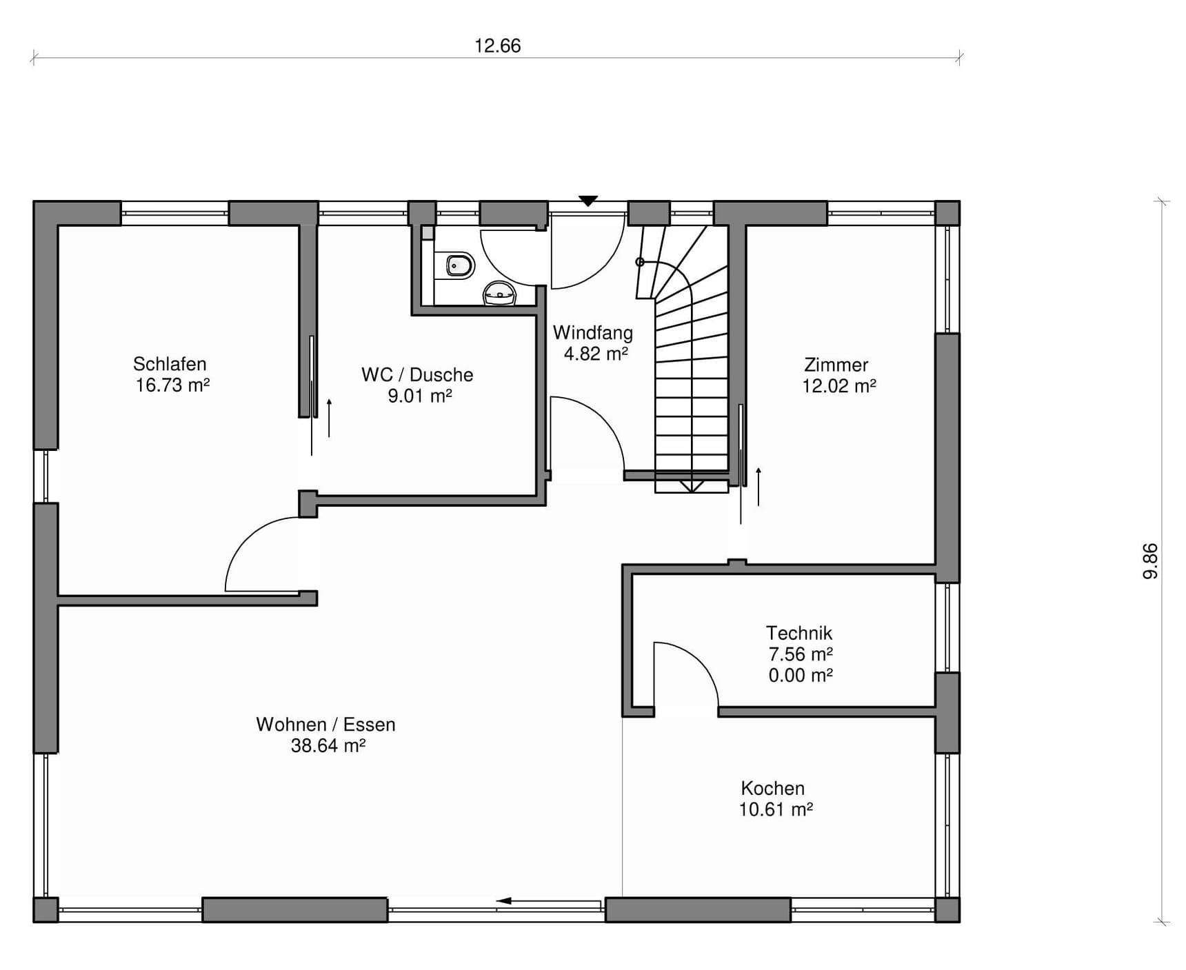
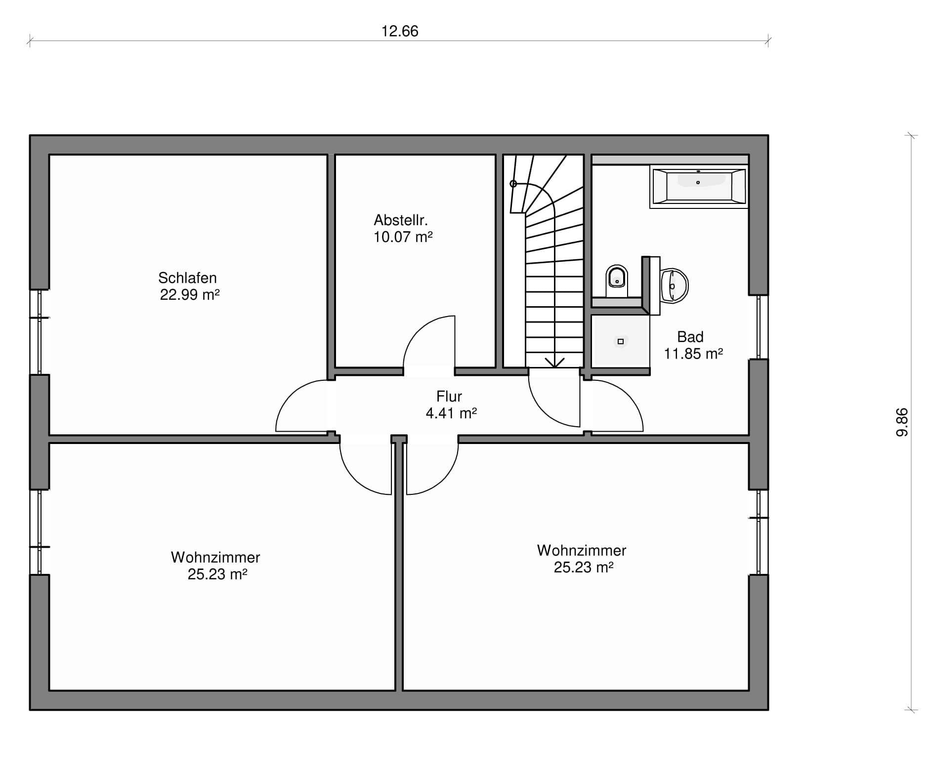
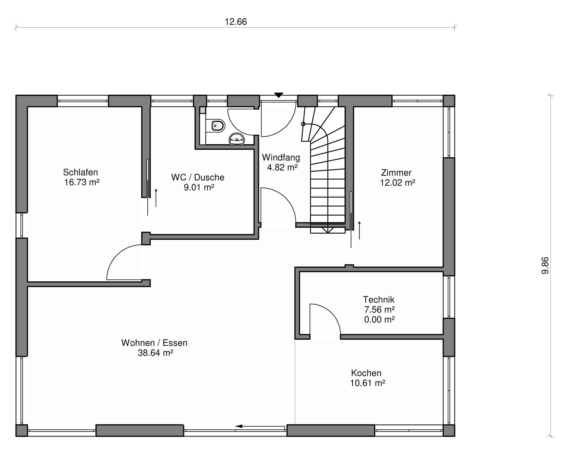
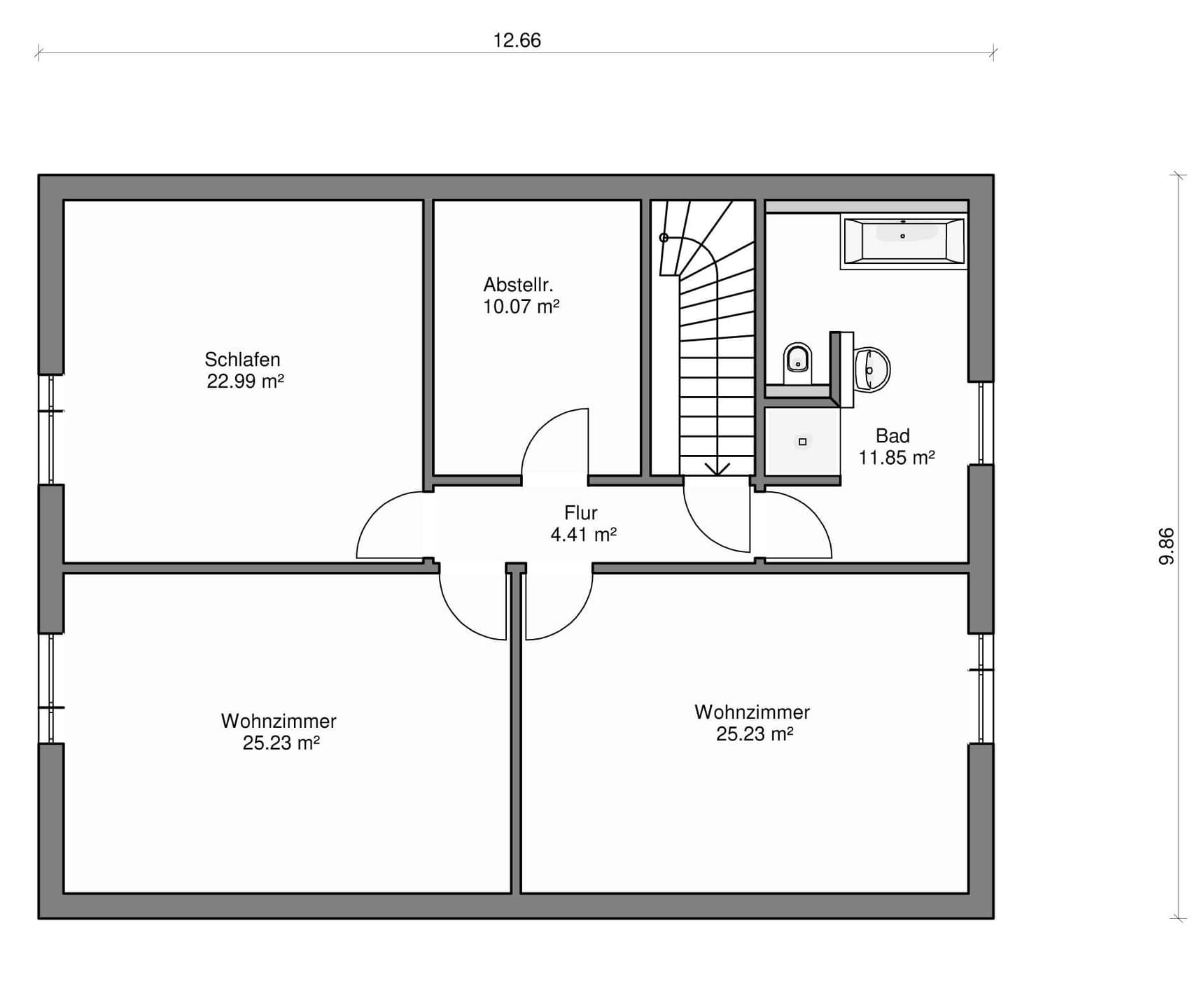
Grundriss

no description
Homestory 639 Grundriss (EG)
no description
Homestory 639 Grundriss (DG)

Unser Team vor Ort

Gerhard StraubFachberater*in bei Lehner Haus
no description
Wir beraten Sie gerne!Arrow Icon

Kataloge

Lehner Haus: Hauskatalog
Lehner Haus

Lehner Haus: Hauskatalog


House and TreeParksHouse and PinMusterhausHouse on HandAnbieter