1. AnbieterArrow Icon
  2. Lehner HausArrow Icon
  3. Homestory 630
Slide 1
Slide 2
Slide 3
Slide 4
no description
Lehner HausHomestory 630
homeKlassische Familienhäuser
energyStandardEffizienzhaus 55
Preis anfragen
Katalog bestellen

Homestory 630

Umbau des eigenen Hauses: Aufstockung und Modernisierung

Nicht selten lohnt es sich, das eigene Haus umzubauen und zu modernisieren. Zum Beispiel wenn mehr Wohnraum gefragt ist und man das Gebäude bereits besitzt. Die Bauherren entscheiden sich dafür, einen Dachboden oberhalb ihrer Wohnung nicht nur auszubauen, sondern ihn gleich als neues, eigenes Stockwerk einzurichten. Diese Aufstockung übernahm Lehner, in sehr enger Abstimmung mit den Bauherren.

Hausdaten

Hausart Icon
HausartEinfamilienhaus
Bauweise Icon
BauweiseHolz-Tafelbau
Baustil Icon
BaustilKlassische Familienhäuser
Fassade Icon
FassadePutz
Außenmaße Icon
Außenmaße11.5 m x 10 m
Dachform Icon
DachformSattel-/Giebeldach
Energiestandard Icon
EnergiestandardEffizienzhaus 55
Immobilientyp Icon
ImmobilientypKundenhaus
Dachneigung Icon
Dachneigung35°
Hauseigenschaften Icon
HauseigenschaftenDritter Giebel
Hausdämmstoff Icon
HausdämmstoffHolzfaser- und Zellulosedämmstoffe
Heizungsart Icon
HeizungsartWärmepumpe (Luft, Wasser, oder beides)
Pfeil nach unten linksWir schaffen Platz für Ihre Träume

Grundriss

no description
Homestory 630 Grundriss (OG)Wohnfläche OG: 0,01 m²
no description
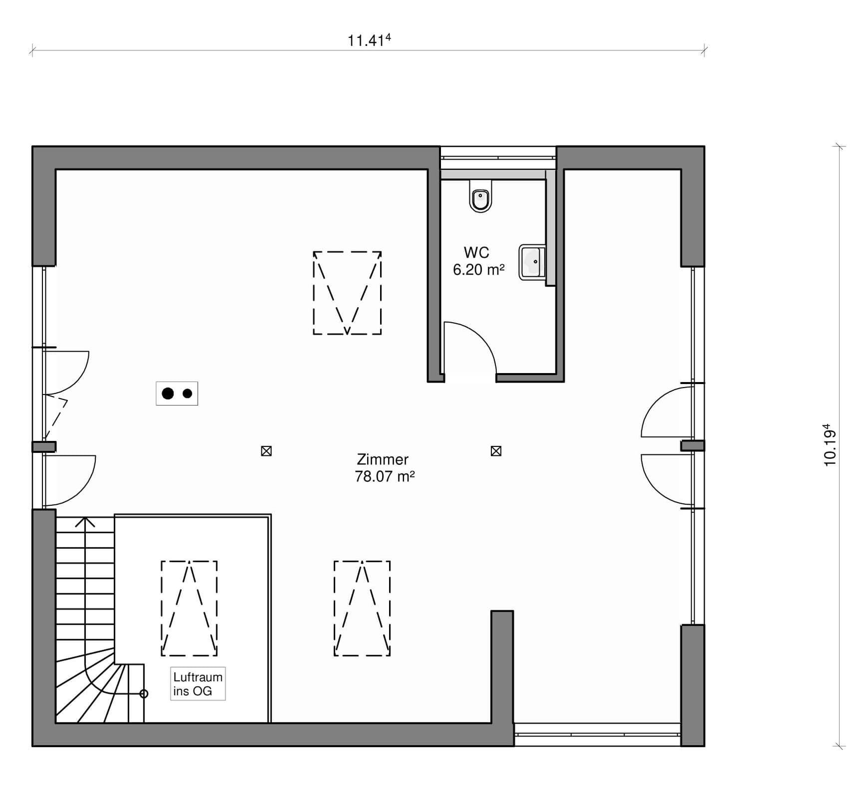
Homestory 630 Grundriss (DG)

Unser Team vor Ort

Paul NischFachberater*in bei Lehner Haus
no description
Wir beraten Sie gerne!Arrow Icon

Kataloge

Lehner Haus: Hauskatalog
Lehner Haus

Lehner Haus: Hauskatalog


House and TreeParksHouse and PinHäuser liveHouse on HandAnbieter