1. AnbieterArrow Icon
  2. Lehner HausArrow Icon
  3. Homestory 625
Slide 1
Slide 2
Slide 3
Slide 4
Slide 5
no description
Lehner HausHomestory 625
homeFachwerkhäuser
livingArea250 m²
energyStandardEffizienzhaus 55
Preis anfragen
Katalog bestellen

Homestory 625

Raum & Licht: Klassisches Fachwerk mit Holz-Glas-Konstruktionen

„Wir hatten vorher bereits zweimal für uns und die vier Kinder gebaut“, sagt die Bauherrin, „tatsächlich. Das erste Mal im Westen Berlins, eine solide Doppelhaushälfte. Dann haben wir im Bergischen Land ein Familienhaus gebaut. Erfahrung hatten mein Mann und ich also jede Menge. Das hier ist nun unser gemeinsames‚ Seniorenheim‘, sagen wir immer“, berichtet die Bauherrin weiter. „Denn wenn man über 50 Jahre alt ist, baut man natürlich das letzte Mal und mit Blick auf das Älterwerden“. Das Ehepaar ist aus beruflichen Gründen ein weiteres Mal umgezogen und entschloss sich daraufhin, doch noch ein drittes Haus zu bauen.

Hausdaten

Hausart Icon
HausartEinfamilienhaus
Bauweise Icon
BauweiseHolz-Tafelbau
Anzahl Räume Icon
Anzahl Räume5
Baustil Icon
BaustilFachwerkhäuser
Fassade Icon
FassadePutz
Außenmaße Icon
Außenmaße100 m x 105 m
Wohnfläche Icon
Wohnfläche250 m²
Dachform Icon
DachformSattel-/Giebeldach
Energiestandard Icon
EnergiestandardEffizienzhaus 55
Immobilientyp Icon
ImmobilientypKundenhaus
Hauseigenschaften Icon
HauseigenschaftenGästezimmer
Heizungsart Icon
HeizungsartWärmepumpe (Luft, Wasser, oder beides)
Pfeil nach unten linksWir schaffen Platz für Ihre Träume

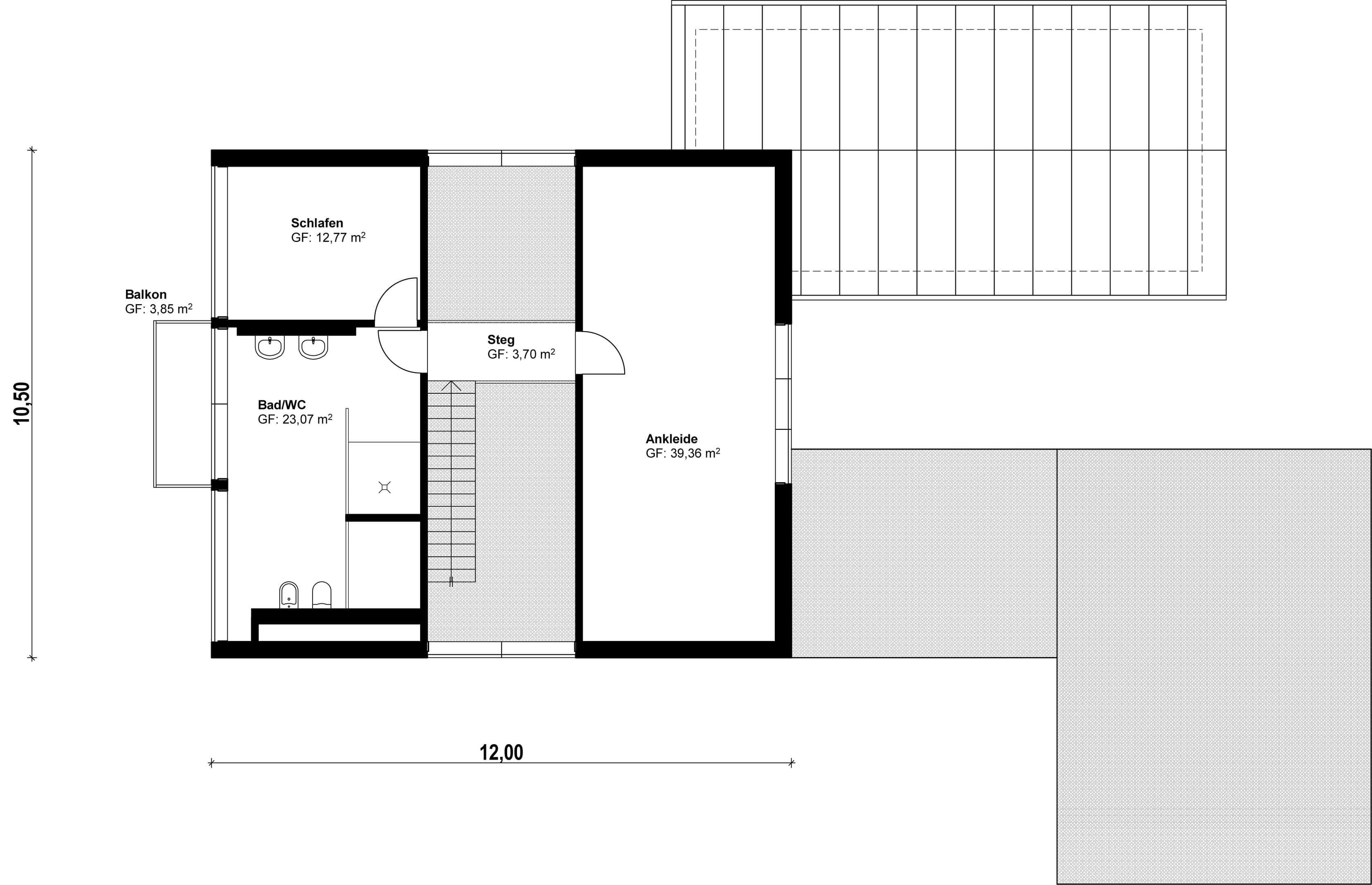
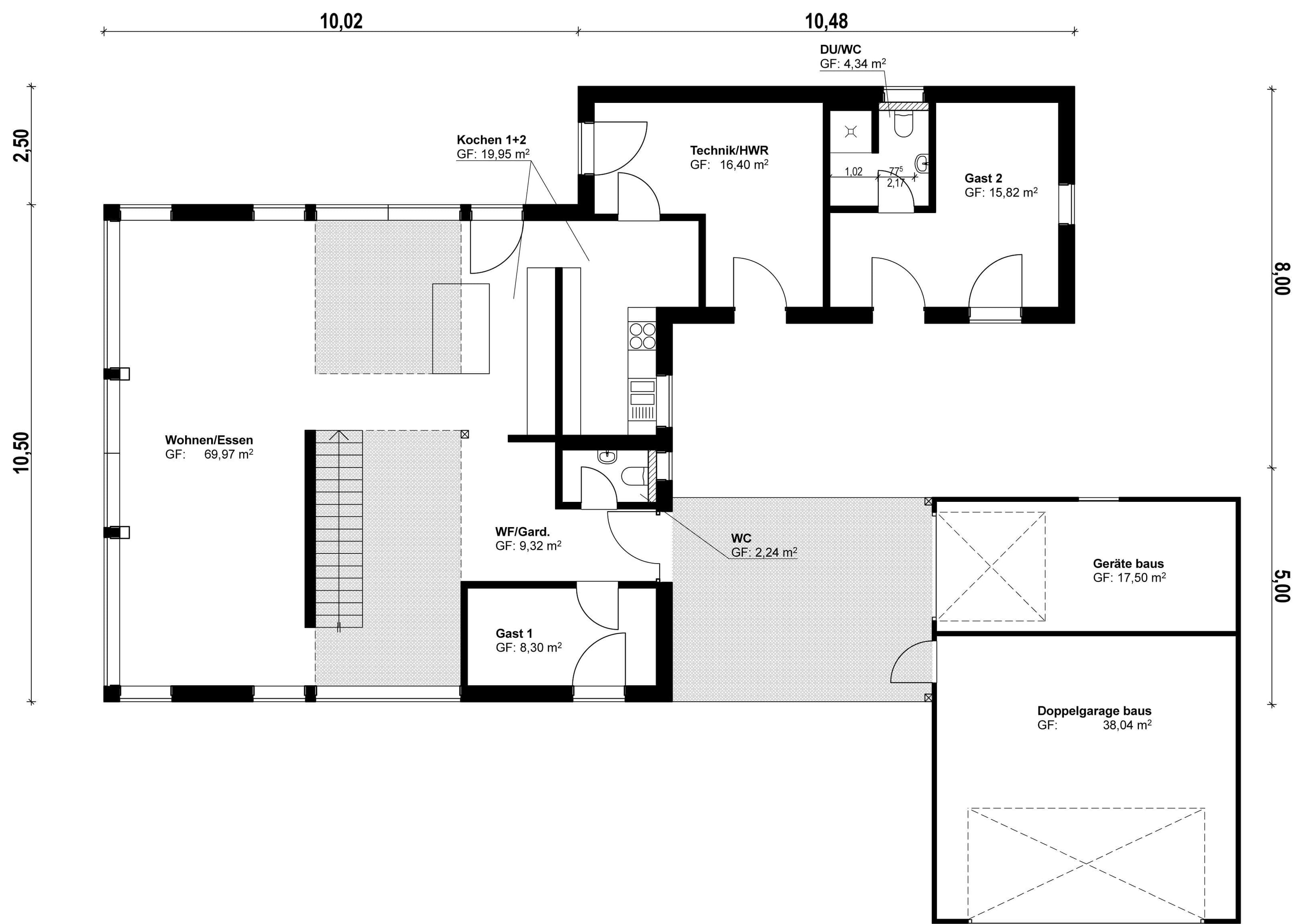
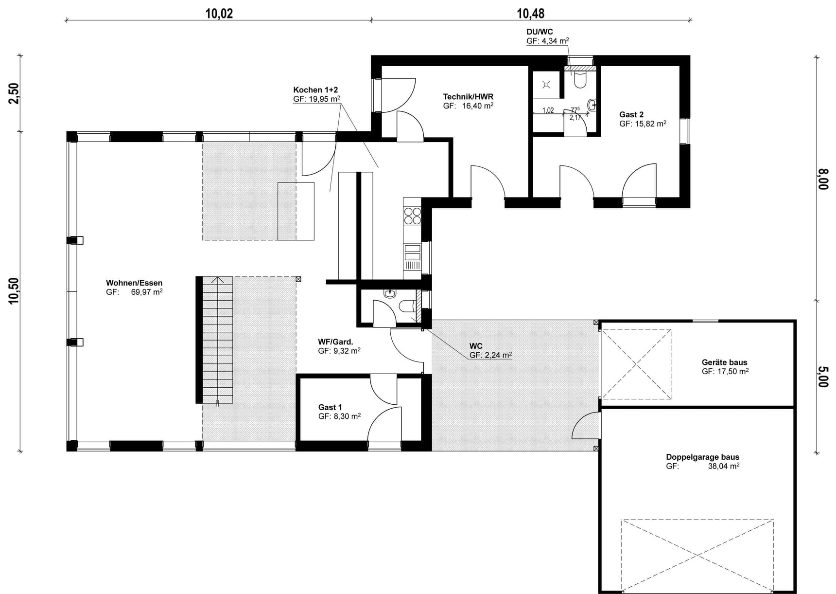
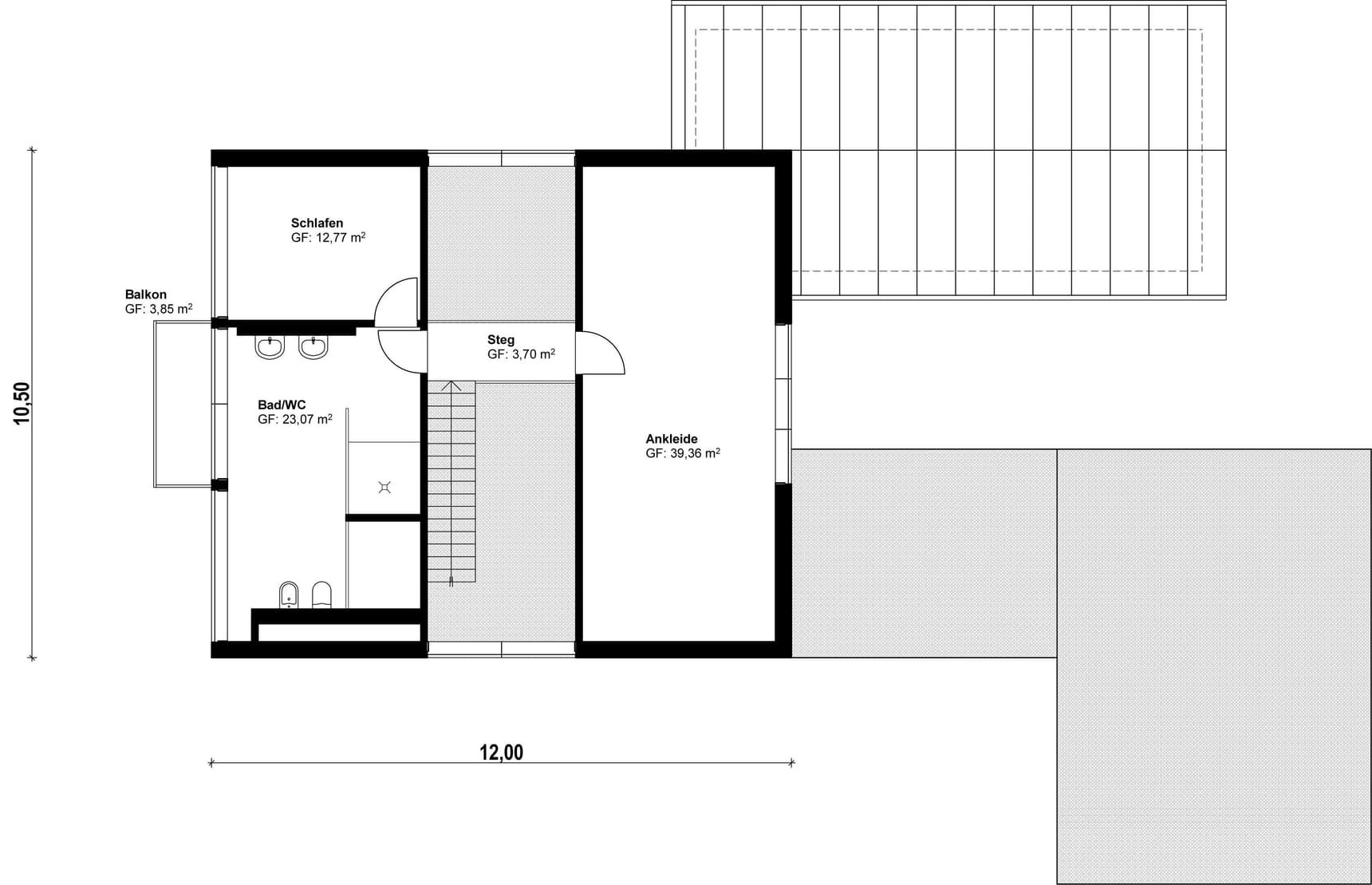
Grundriss

no description
Homestory 625 Grundriss (EG)
no description
Homestory 625 Grundriss (DG)

Kataloge

Lehner Haus: Hauskatalog
Lehner Haus

Lehner Haus: Hauskatalog


House and TreeParksHouse and PinMusterhausHouse on HandAnbieter