1. AnbieterArrow Icon
  2. Lehner HausArrow Icon
  3. Homestory 623
Slide 1
Slide 2
Slide 3
Slide 4
no description
Lehner HausHomestory 623
homeBungalow
livingArea153 m²
energyStandardEffizienzhaus 55
Preis anfragen
Katalog bestellen

Homestory 623

Heute schon an später gedacht – ein Haus zum Wohlfühlen für zwei

Die Kinder sind fl ügge geworden. Da stehen für viele Eltern große Veränderungen ins Haus. Oftmals auch solche, die gerade ebendieses betreff en. Für das Ehepaar ist die bisherige Wohnsituation zu groß geworden – und ist vor allem nicht altersgerecht. Warum sich also nicht wohnlich auf die neuen Bedürfnisse einstellen?

Hausdaten

Hausart Icon
HausartEinfamilienhaus
Bauweise Icon
BauweiseHolz-Tafelbau
Anzahl Räume Icon
Anzahl Räume7
Baustil Icon
BaustilBungalow
Fassade Icon
FassadePutz
Außenmaße Icon
Außenmaße15 m x 12 m
Wohnfläche Icon
Wohnfläche153 m²
Dachform Icon
DachformWalm-/Zeltdach
Energiestandard Icon
EnergiestandardEffizienzhaus 55
Immobilientyp Icon
ImmobilientypKundenhaus
Hauseigenschaften Icon
HauseigenschaftenGästezimmer
Hausdämmstoff Icon
HausdämmstoffHolzfaser- und Zellulosedämmstoffe
Heizungsart Icon
HeizungsartWärmepumpe (Luft, Wasser, oder beides)
Pfeil nach unten linksWir schaffen Platz für Ihre Träume

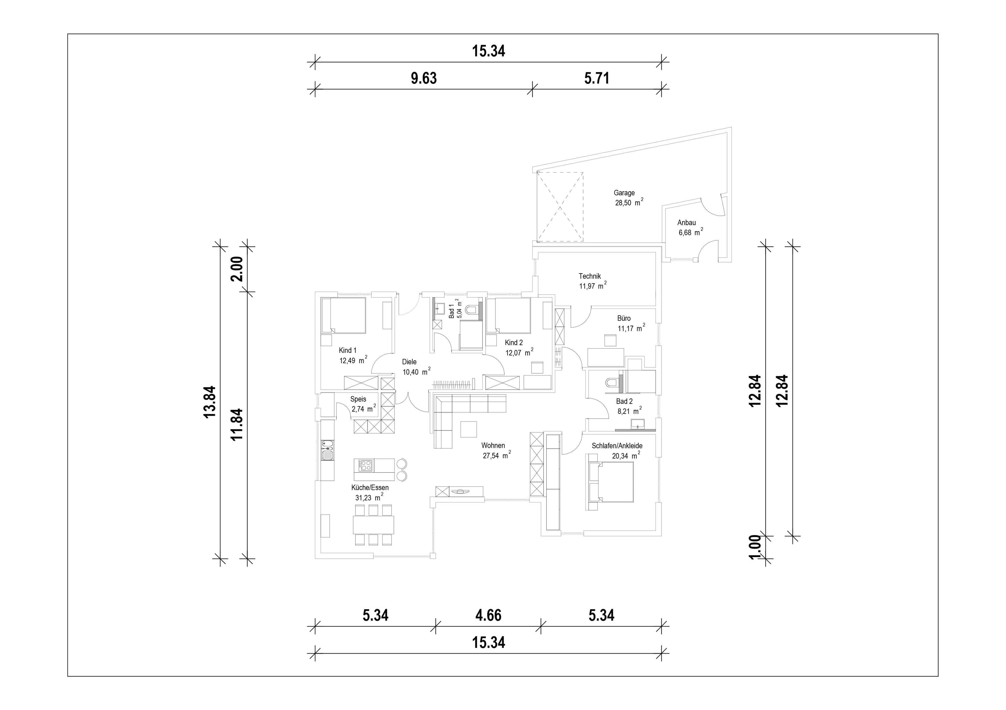
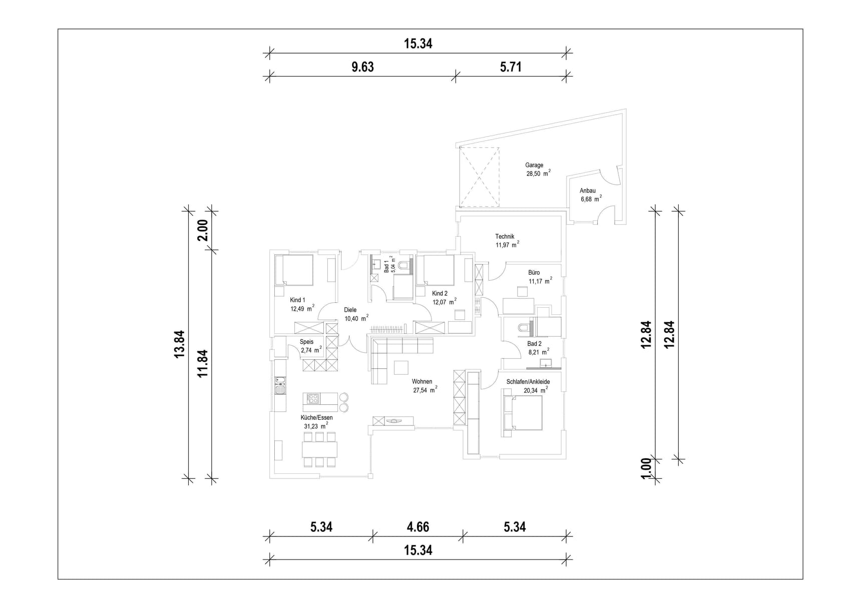
Grundriss

no description
Homestory 623 Grundriss (EG)Wohnfläche EG: 153 m²

Unser Team vor Ort

Franziska PaulusFachberater*in bei Lehner Haus
no description
Wir beraten Sie gerne!Arrow Icon
Manuela DürrFachberater*in bei Lehner Haus
no description

Kataloge

Lehner Haus: Hauskatalog
Lehner Haus

Lehner Haus: Hauskatalog


House and TreeParksHouse and PinMusterhausHouse on HandAnbieter