1. AnbieterArrow Icon
  2. Lehner HausArrow Icon
  3. Homestory 601
Slide 1
Slide 2
Slide 3
Slide 4
Slide 5
no description
Lehner HausHomestory 601
homeStadtvillen
livingArea145 m²
energyStandardEffizienzhaus 55
Preis anfragen
Katalog bestellen

Homestory 601

Eine Stadtvilla für 4 Personen

Die Form der guten alten Stadtvilla ist immer noch sehr beliebt. Ob junge oder ältere Bauherren, ob auf dem Land oder klassischerweise am Stadtrand, im Dörflichen oder mitten in der City - heute, in Zeiten einer wachsenden Beliebigkeit, kann man seine Stadtvilla beinahe überall ganz nach Geschmack platzieren. Natürlich sollte sie eine hohe Energieeffizienz bieten, sehr sparsam sein und ein angenehmes Raumklima haben. Aber das bringen alle Häuser von Lehner mit, ob nun Objektbauten, Familienhäuser - oder Stadtvillen.

Hausdaten

Hausart Icon
HausartEinfamilienhaus
Bauweise Icon
BauweiseHolz-Tafelbau
Anzahl Räume Icon
Anzahl Räume6
Baustil Icon
BaustilStadtvillen
Fassade Icon
FassadePutz
Außenmaße Icon
Außenmaße10.5 m x 9 m
Wohnfläche Icon
Wohnfläche145 m²
Dachform Icon
DachformWalm-/Zeltdach
Energiestandard Icon
EnergiestandardEffizienzhaus 55
Immobilientyp Icon
ImmobilientypKundenhaus
Dachneigung Icon
Dachneigung23°
Hauseigenschaften Icon
HauseigenschaftenTerasse
Hausdämmstoff Icon
HausdämmstoffMineralfaser (Glaswolle, Steinwolle)
Heizungsart Icon
HeizungsartWärmepumpe (Luft, Wasser, oder beides)
Pfeil nach unten linksWir schaffen Platz für Ihre Träume

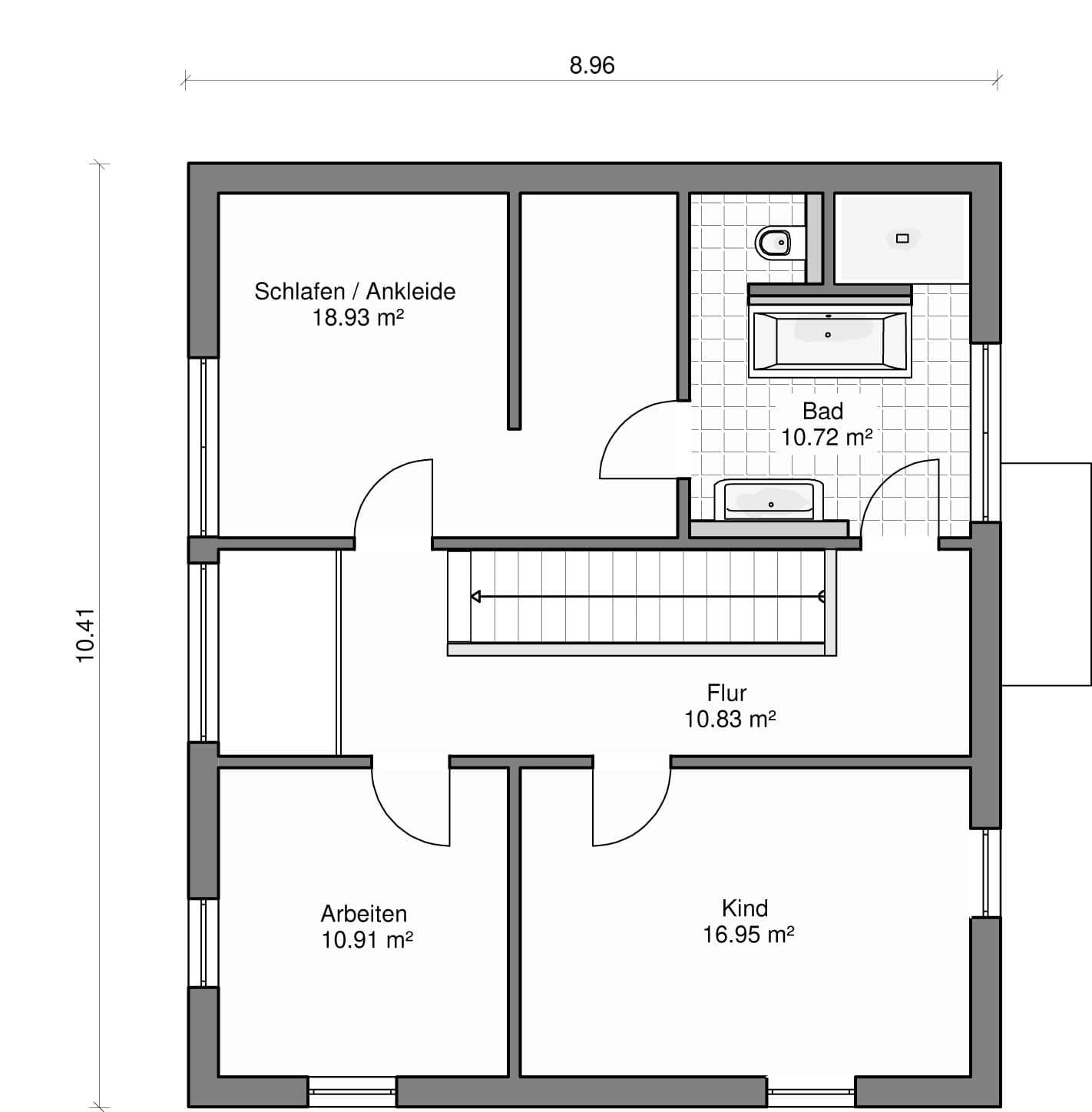
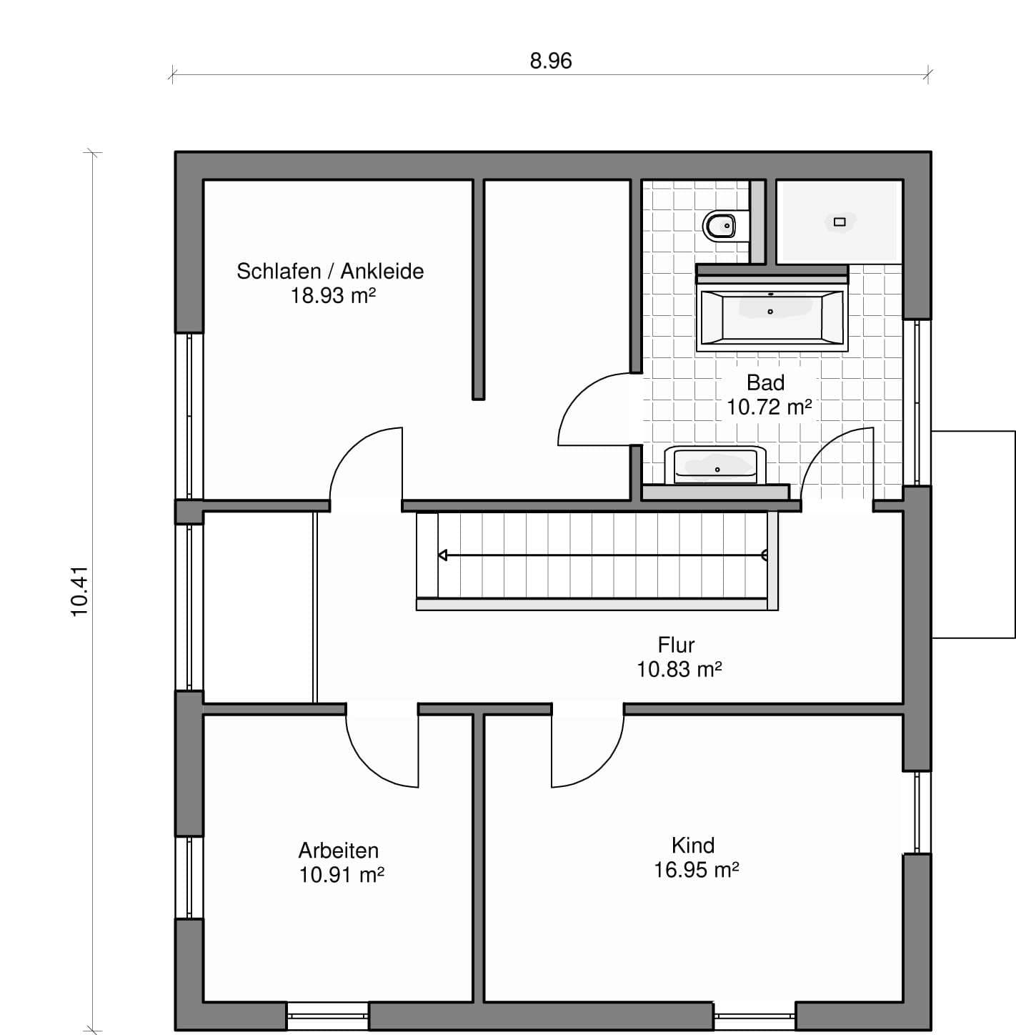
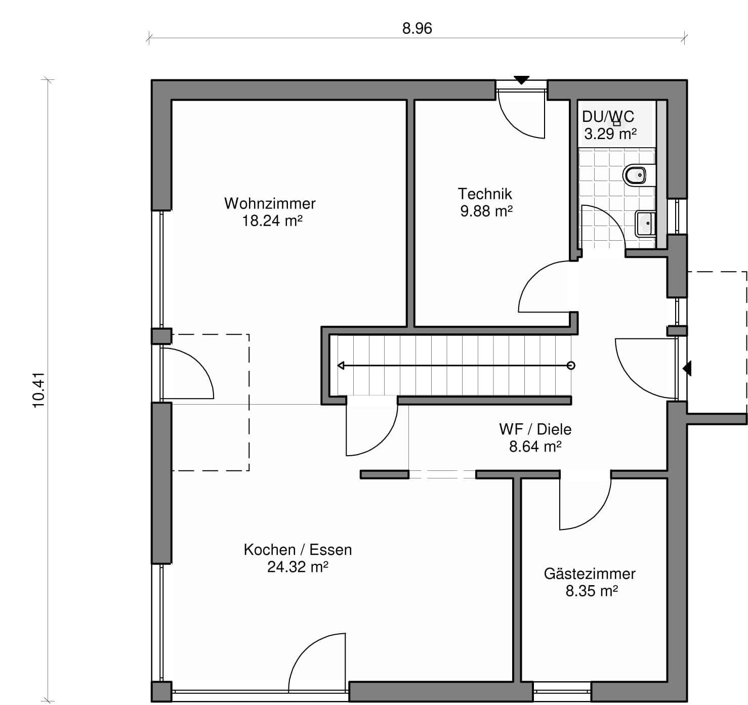
Grundriss

no description
Homestory 601 Grundriss (EG)
no description
Homestory 601 Grundriss (OG)

Unser Team vor Ort

Manuela DürrFachberater*in bei Lehner Haus
no description
Wir beraten Sie gerne!Arrow Icon
Franziska PaulusFachberater*in bei Lehner Haus
no description

Kataloge

Lehner Haus: Hauskatalog
Lehner Haus

Lehner Haus: Hauskatalog


House and TreeParksHouse and PinMusterhausHouse on HandAnbieter