1. AnbieterArrow Icon
  2. Lehner HausArrow Icon
  3. Homestory 595
Slide 1
Slide 2
Slide 3
Slide 4
Slide 5
Slide 6
Slide 7
no description
Lehner HausHomestory 595
homeKubushäuser im Bauhausstil
livingArea130 m²
energyStandardEffizienzhaus 55 EE
Preis anfragen
Katalog bestellen

Homestory 595

Leben am Waldrand im selbst geplanten Unikat

Die Zeitlosigkeit des Bauhausstils ist ein Ergebnis seiner einfachen Funktionalität, die eine Schlichtheit der Formen fordert und jedes überflüssige Element und Ornamente vermeidet. Das macht ihn wieder für viele attraktiv: Die Einfachheit und das Solide der Architektur gehen heute einher mit einer Haustechnologie, die ganz auf Energieeffizienz und Sparsamkeit ausgerichtet ist. Modern bedeutet hier: praktisch, kostengünstig und attraktiv. Immer mehr Bauherren wünschen den schlichten Kubus. Minimalismus ist angesagt.

Hausdaten

Hausart Icon
HausartEinfamilienhaus
Bauweise Icon
BauweiseHolz-Tafelbau
Baustil Icon
BaustilKubushäuser im Bauhausstil
Wohnfläche Icon
Wohnfläche130 m²
Dachform Icon
DachformFlachdach
Energiestandard Icon
EnergiestandardEffizienzhaus 55 EE
Immobilientyp Icon
ImmobilientypKundenhaus
Hauseigenschaften Icon
HauseigenschaftenIntegriertes Carport
Heizungsart Icon
HeizungsartGas-Brennwertheizung
Pfeil nach unten linksWir schaffen Platz für Ihre Träume

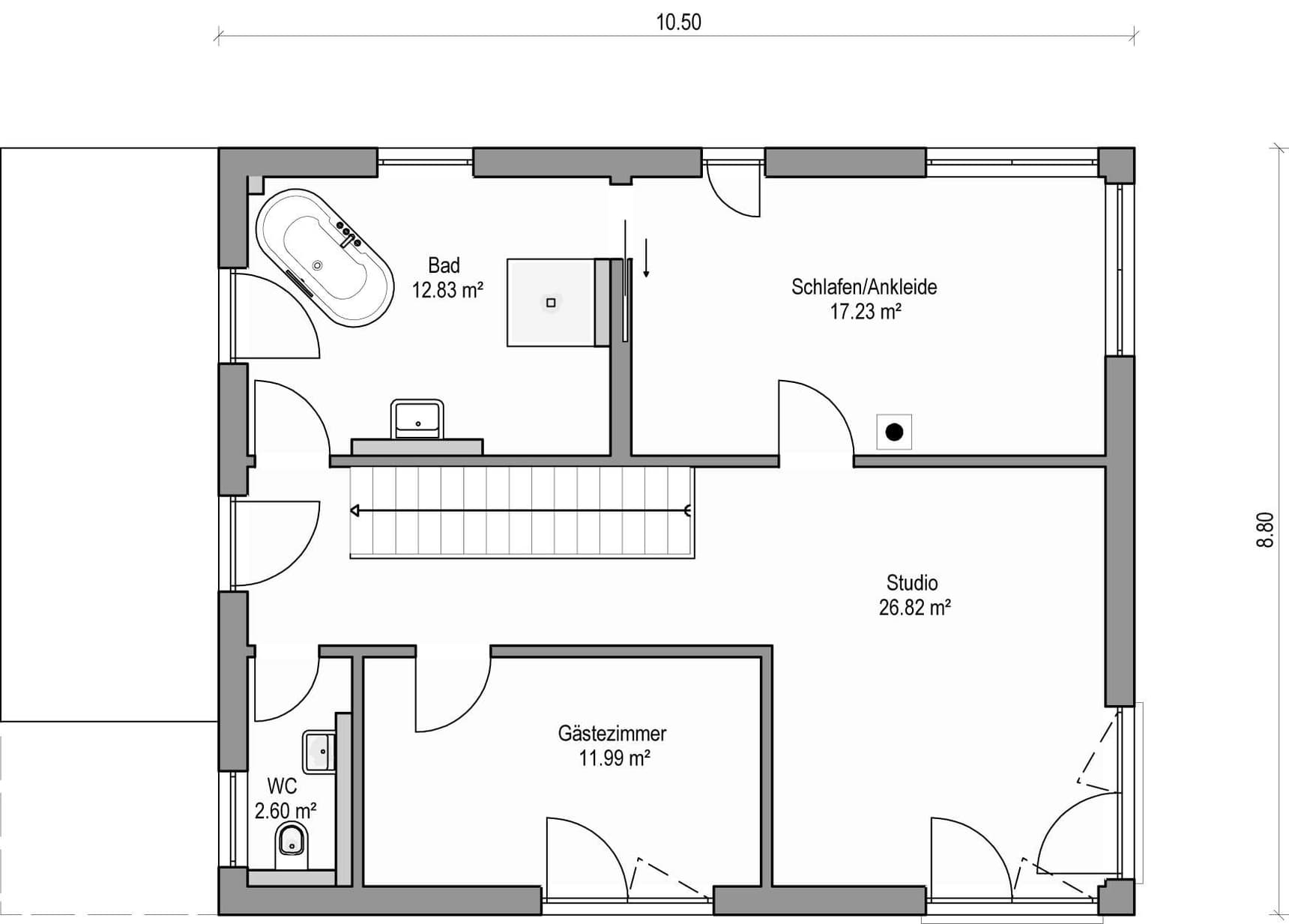
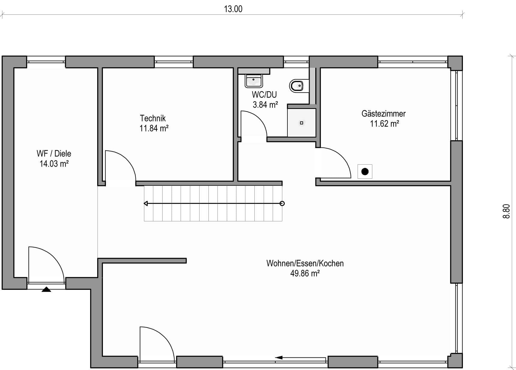
Grundriss

no description
Homestory 595 Grundriss (EG)
no description
Homestory 595 Grundriss (OG)

Kataloge

Lehner Haus: Hauskatalog
Lehner Haus

Lehner Haus: Hauskatalog


House and TreeParksHouse and PinMusterhausHouse on HandAnbieter