1. AnbieterArrow Icon
  2. Lehner HausArrow Icon
  3. Homestory 570
Slide 1
Slide 2
Slide 3
Slide 4
no description
Lehner HausHomestory 570
homeKlassische Familienhäuser
livingArea150 m²
energyStandardEffizienzhaus 55
Preis anfragen
Katalog bestellen

Homestory 570

Solides und gemütliches Haus mit viel Raum für die ganze Familie

Eine Familienplanung will gut überlegt sein. Wo wohnen die Kinder, wenn sie jung sind? Wie wohnen Eltern und Kinder später, wenn die Kinder erwachsen werden. Und zuletzt stellt sich immer auch die Frage, wie das Leben der Eltern im Alter aussehen soll. Diese und andere Aspekte spielen bei einer gut überlegten Planung eine wichtige Rolle. Mit der richtigen Fachberatung an der Seite finden Bauherren die passenden Lösungen.

Hausdaten

Hausart Icon
HausartEinfamilienhaus
Bauweise Icon
BauweiseHolz-Tafelbau
Anzahl Räume Icon
Anzahl Räume5
Baustil Icon
BaustilKlassische Familienhäuser
Fassade Icon
FassadePutz
Außenmaße Icon
Außenmaße8 m x 10 m
Wohnfläche Icon
Wohnfläche150 m²
Dachform Icon
DachformSattel-/Giebeldach
Energiestandard Icon
EnergiestandardEffizienzhaus 55
Immobilientyp Icon
ImmobilientypKundenhaus
Dachneigung Icon
Dachneigung25°
Hausdämmstoff Icon
HausdämmstoffHolzfaser- und Zellulosedämmstoffe
Heizungsart Icon
HeizungsartWärmepumpe (Luft, Wasser, oder beides)
Pfeil nach unten linksWir schaffen Platz für Ihre Träume

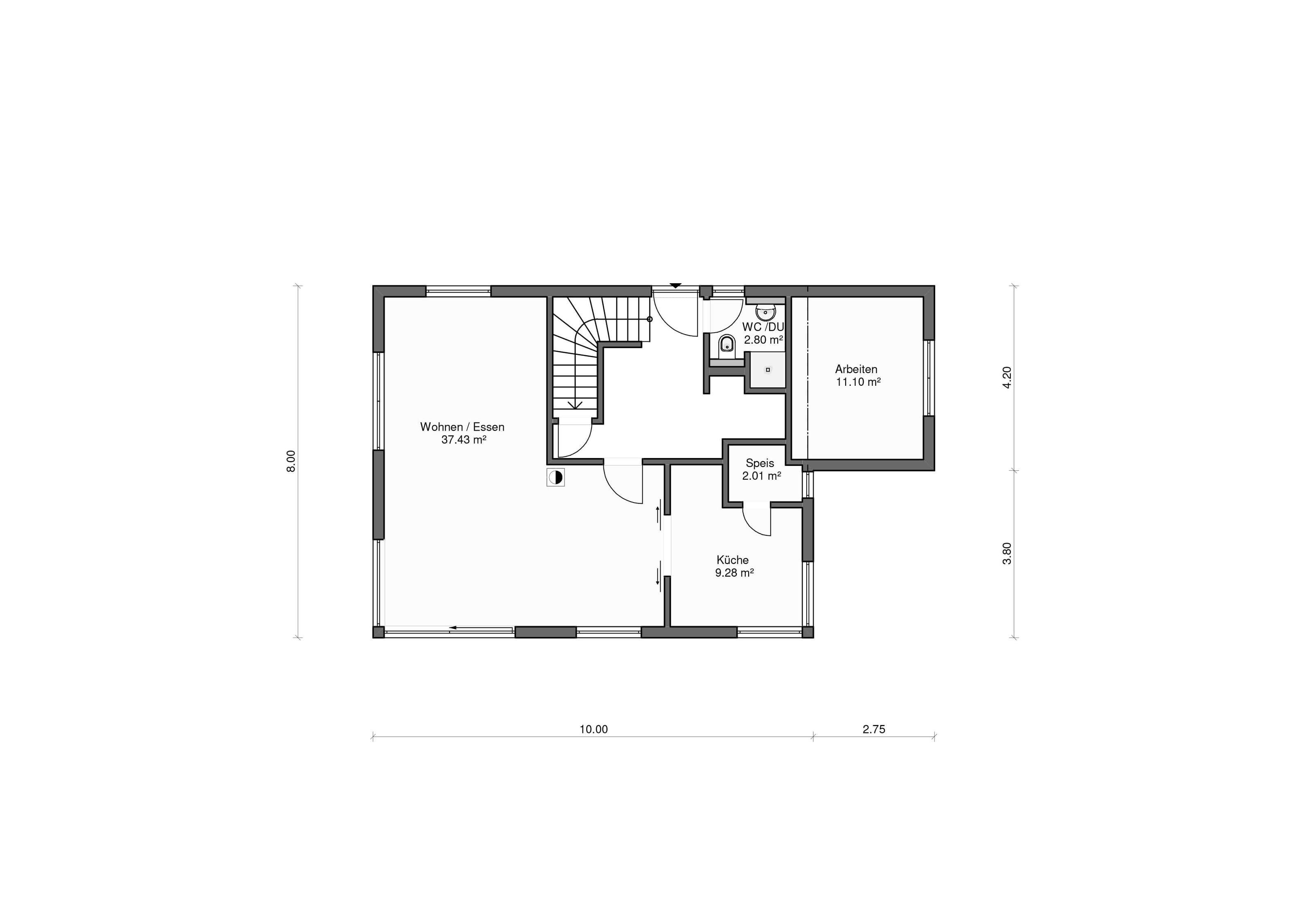
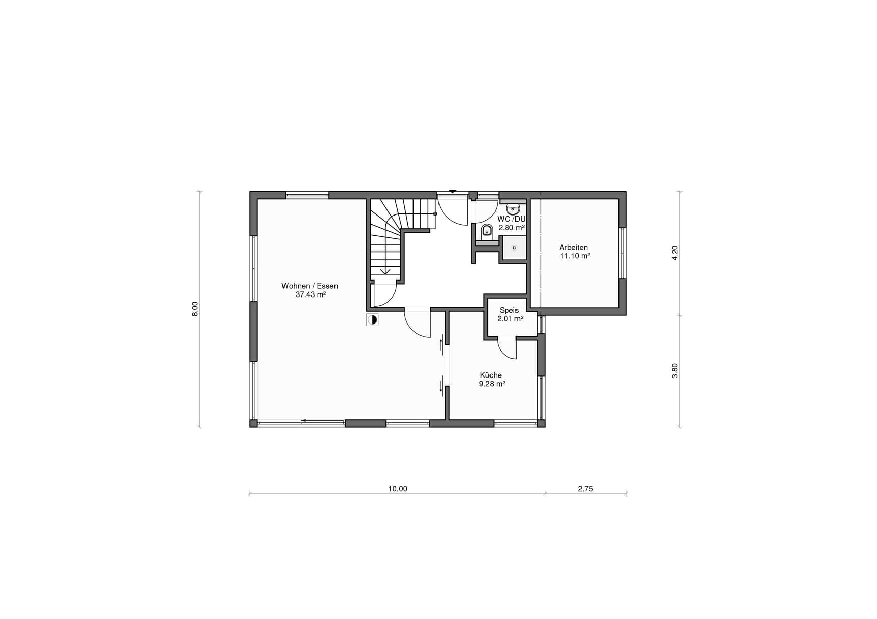
Grundriss

no description
Homestory 570 Grundriss (EG)
no description
Homestory 570 Grundriss (DG)

Kataloge

Lehner Haus: Hauskatalog
Lehner Haus

Lehner Haus: Hauskatalog


House and TreeParksHouse and PinHäuser liveHouse on HandAnbieter