1. AnbieterArrow Icon
  2. Lehner HausArrow Icon
  3. Homestory 560
Slide 1
Slide 2
Slide 3
Slide 4
no description
Lehner HausHomestory 560
homeVillen
livingArea275 m²
energyStandardEffizienzhaus 55
Preis anfragen
Katalog bestellen

Homestory 560

Gemeinsam geplant, gemeinsam gebaut: Ein Haus nach Wunsch am See

Gemeinsam mit dem Baupartner detailliert planen und nach einem vereinbarten Konzept umsetzen: Viele Bauherren haben feste Ideen, die in erste Entwürfe gegossen und mit der Zeit kreativ weiterentwickelt werden wollen. Das individuell entworfene Haus am schönen Bodensee entstand in einer kooperativen Planung seiner Besitzer mit einem Architekt und den Fachberatern von Lehner Haus. Alle besonderen Wünsche der Bauherren wurden nach deren Vorstellungen und Geschmack in die Gestaltung mit aufgenommen.

Hausdaten

Hausart Icon
HausartEinfamilienhaus
Bauweise Icon
BauweiseHolz-Tafelbau
Anzahl Räume Icon
Anzahl Räume5
Baustil Icon
BaustilVillen
Fassade Icon
FassadePutz
Außenmaße Icon
Außenmaße1000 m x 1200 m
Wohnfläche Icon
Wohnfläche275 m²
Dachform Icon
DachformSattel-/Giebeldach
Energiestandard Icon
EnergiestandardEffizienzhaus 55
Immobilientyp Icon
ImmobilientypKundenhaus
Hauseigenschaften Icon
HauseigenschaftenGästezimmer
Hausdämmstoff Icon
HausdämmstoffMineralfaser (Glaswolle, Steinwolle)
Heizungsart Icon
HeizungsartWärmepumpe (Luft, Wasser, oder beides)
Pfeil nach unten linksWir schaffen Platz für Ihre Träume

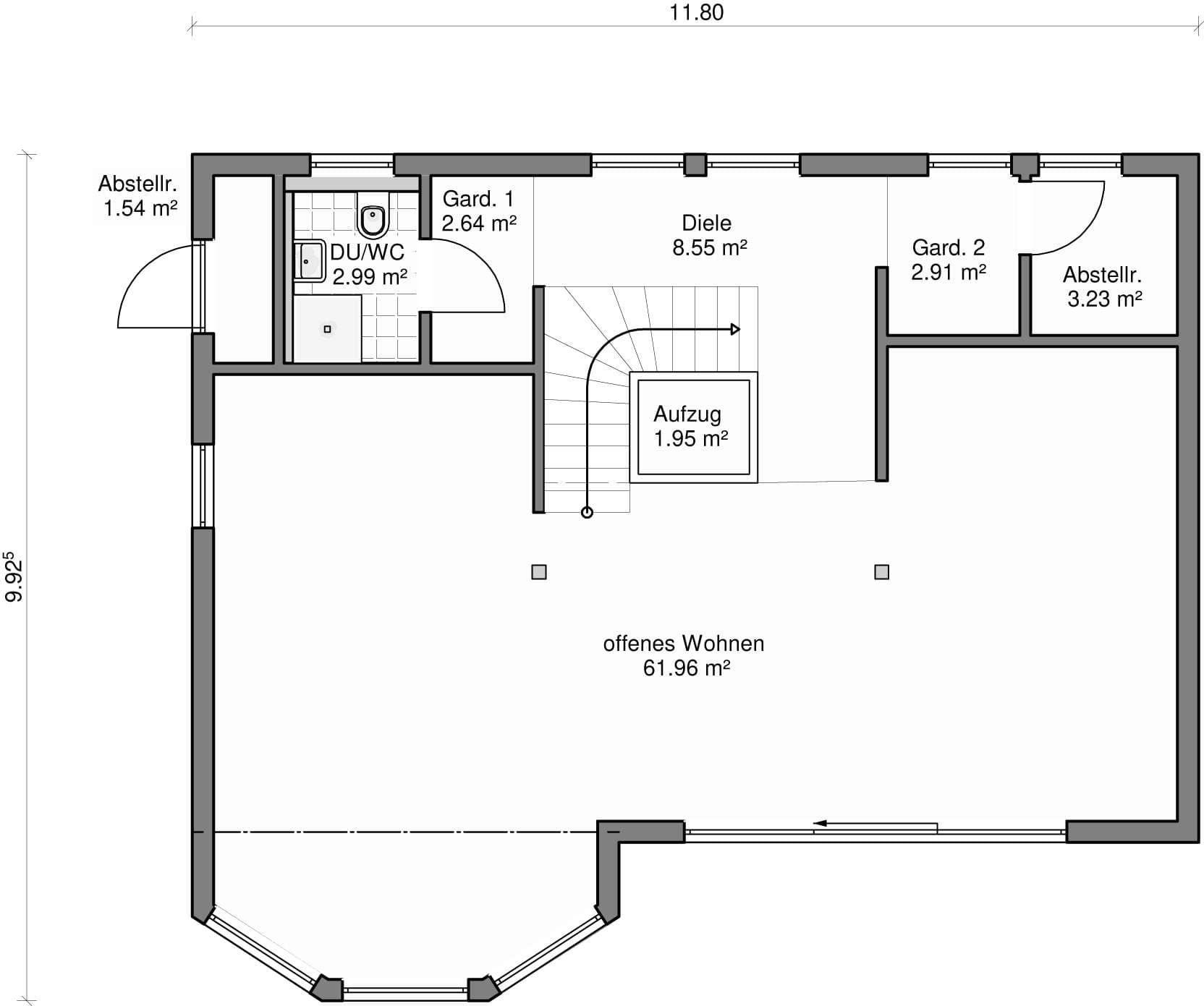
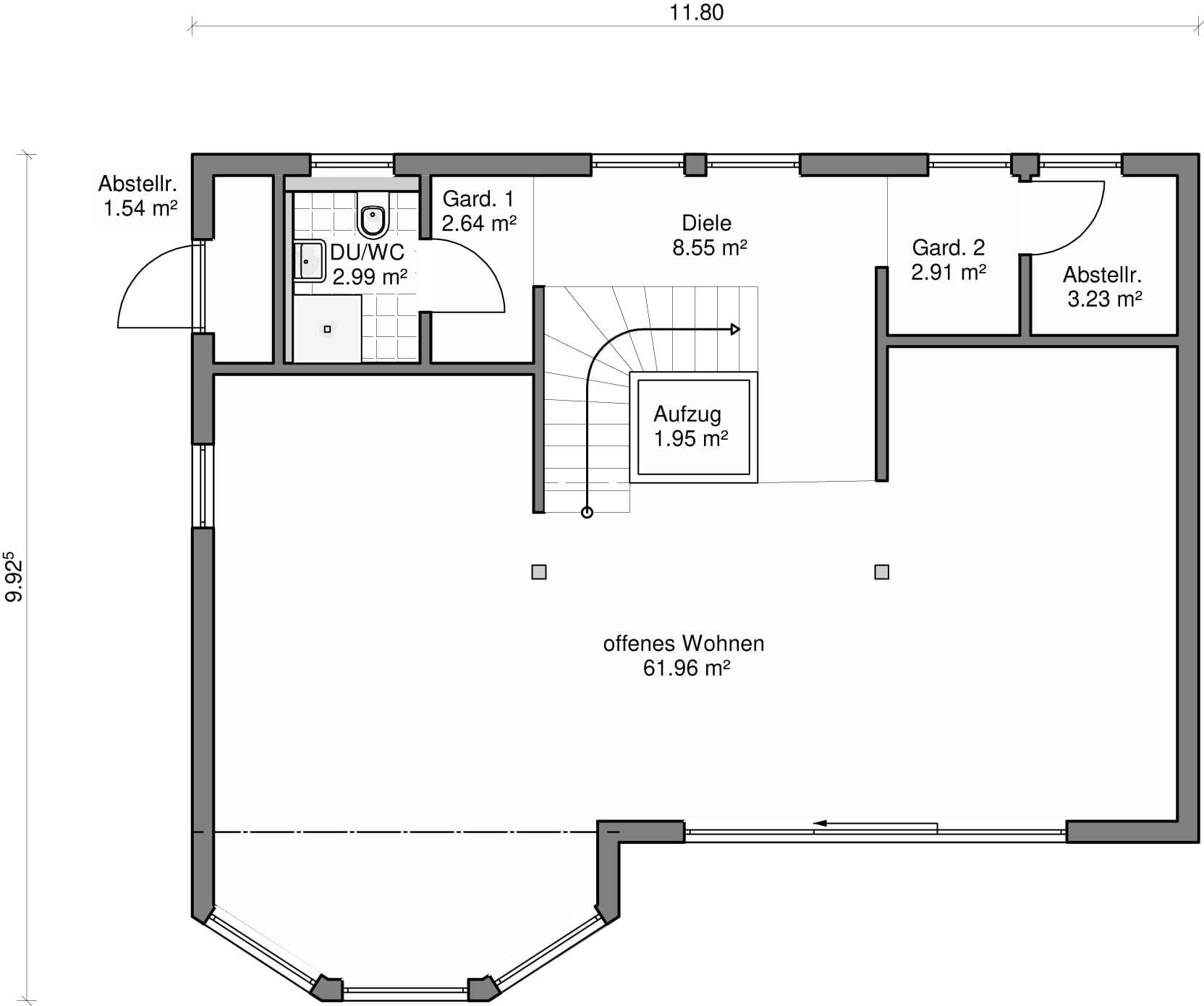
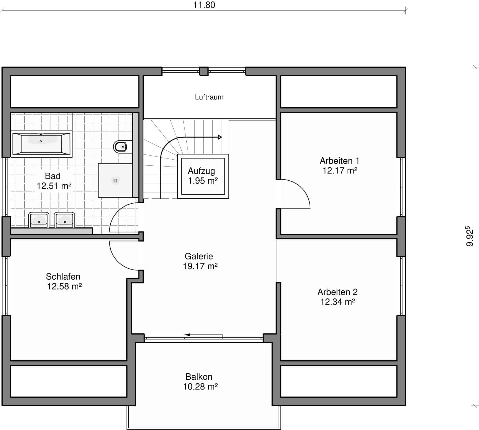
Grundriss

no description
Homestory 560 Grundriss (EG)
no description
Homestory 560 Grundriss (DG)

Kataloge

Lehner Haus: Hauskatalog
Lehner Haus

Lehner Haus: Hauskatalog


House and TreeParksHouse and PinMusterhausHouse on HandAnbieter