1. AnbieterArrow Icon
  2. Lehner HausArrow Icon
  3. Homestory 535
Slide 1
Slide 2
Slide 3
Slide 4
Slide 5
no description
Lehner HausHomestory 535
homeKlassische Familienhäuser
energyStandardEffizienzhaus 55
Preis anfragen
Katalog bestellen

Homestory 535

Außen solide & individuell. Innen hell & nobel.

Von außen wirkt dieses sehr moderne Effizienzhaus zunächst recht unscheinbar. Innen allerdings kann es sich wirklich sehen lassen: Eine geschmackvolle Mischung aus hellem Holz, weißen Steingutböden und Wänden, einer Galerie mit anthrazitfarbigem Geländer und Glasbarrieren, großzügige Raumaufteilungen und viel Licht - das verleiht den Wohnräumen eine Art von Noblesse. Lehner Haus baut mit Ihnen ganz Wunsch.

Hausdaten

Hausart Icon
HausartEinfamilienhaus
Bauweise Icon
BauweiseHolz-Tafelbau
Baustil Icon
BaustilKlassische Familienhäuser
Dachform Icon
DachformSattel-/Giebeldach
Energiestandard Icon
EnergiestandardEffizienzhaus 55
Immobilientyp Icon
ImmobilientypKundenhaus
Heizungsart Icon
HeizungsartWärmepumpe (Luft, Wasser, oder beides)
Pfeil nach unten linksWir schaffen Platz für Ihre Träume

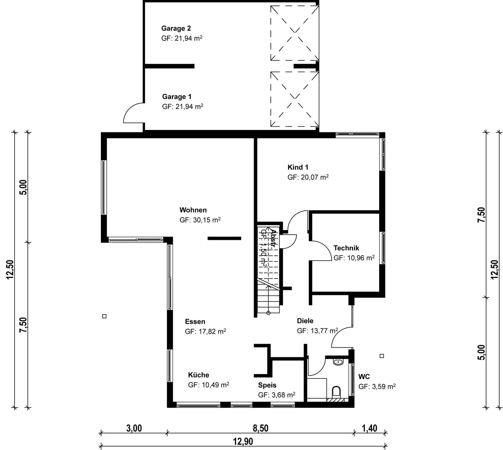
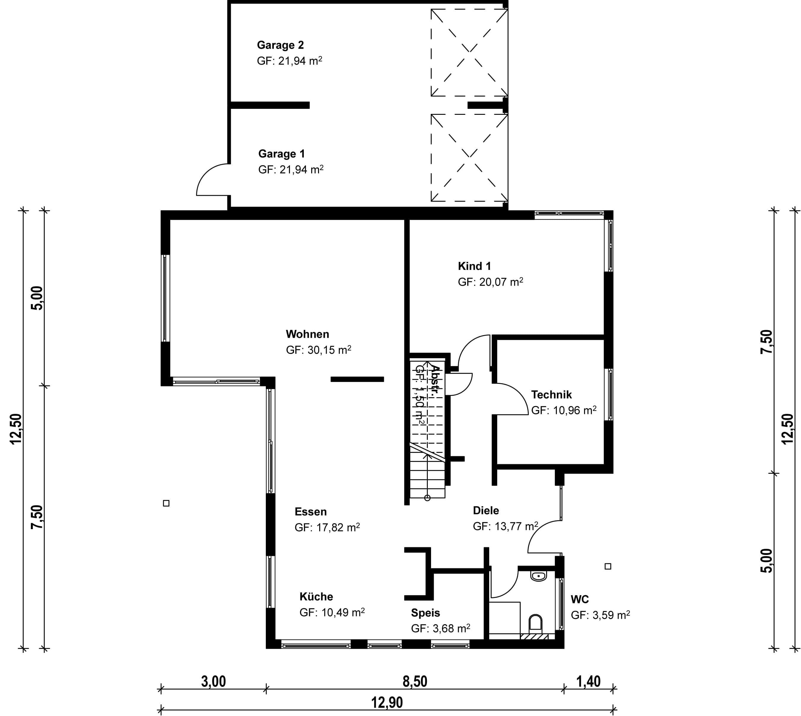
Grundriss

no description
Homestory 535 Grundriss (EG)

Kataloge

Lehner Haus: Hauskatalog
Lehner Haus

Lehner Haus: Hauskatalog


House and TreeParksHouse and PinMusterhausHouse on HandAnbieter