1. AnbieterArrow Icon
  2. Lehner HausArrow Icon
  3. Homestory 496
Slide 1
Slide 2
Slide 3
Slide 4
Slide 5
no description
Lehner HausHomestory 496
homeStadtvillen
livingArea160 m²
energyStandardEffizienzhaus 55
Preis anfragen
Katalog bestellen

Homestory 496

Ruhe, Platz und ganz viel Lebensqualität für die ganze Familie

Die Familie lebte in einem Achtfamilienhaus in einer Wohnung. Ruhe, Privatsphäre und Platz waren Mangelware. Deshalb entstand der Wunsch zu ihrem eigenen Zuhause. „Wir dachten erst ein Bestandsgebäude, haben aber nichts Passendes gefunden“, erzählt das Ehepaar. Es entstand der Gedanke, sich ihr Wunschhaus ganz einfach selbst zu bauen. Die Idee dahinter: Platz und Freiraum für die Familie und – statt Miete zu bezahlen – eine sinnvolle Kapitalanlage für jetzt und für später zu haben.

Hausdaten

Hausart Icon
HausartEinfamilienhaus
Bauweise Icon
BauweiseHolz-Tafelbau
Anzahl Räume Icon
Anzahl Räume8
Baustil Icon
BaustilStadtvillen
Fassade Icon
FassadePutz
Außenmaße Icon
Außenmaße10.75 m x 11.25 m
Wohnfläche Icon
Wohnfläche160 m²
Dachform Icon
DachformWalm-/Zeltdach
Energiestandard Icon
EnergiestandardEffizienzhaus 55
Immobilientyp Icon
ImmobilientypKundenhaus
Hauseigenschaften Icon
HauseigenschaftenGästezimmer
Hausdämmstoff Icon
HausdämmstoffHolzfaser- und Zellulosedämmstoffe
Heizungsart Icon
HeizungsartWärmepumpe (Luft, Wasser, oder beides)
Pfeil nach unten linksWir schaffen Platz für Ihre Träume

Grundriss

no description
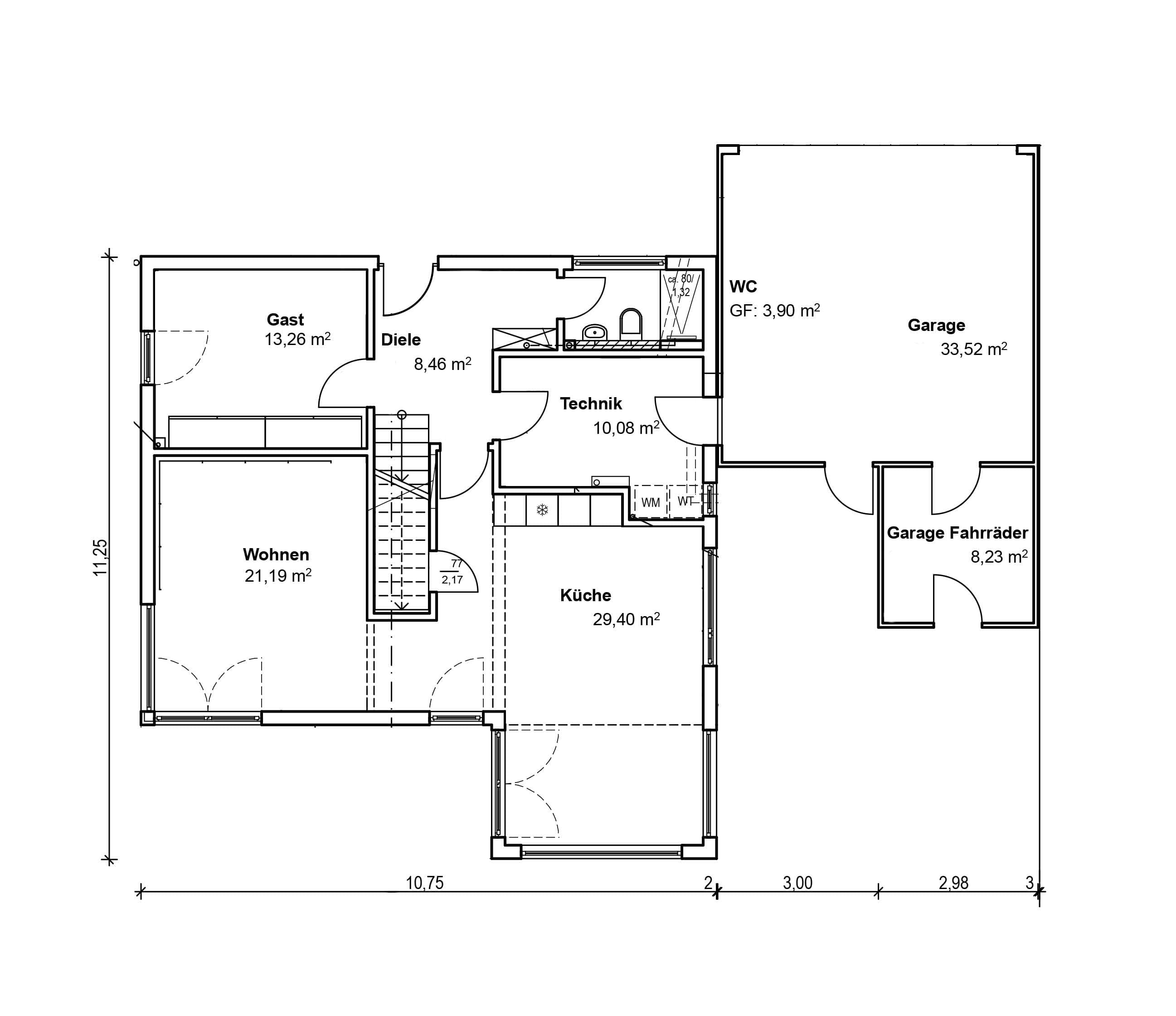
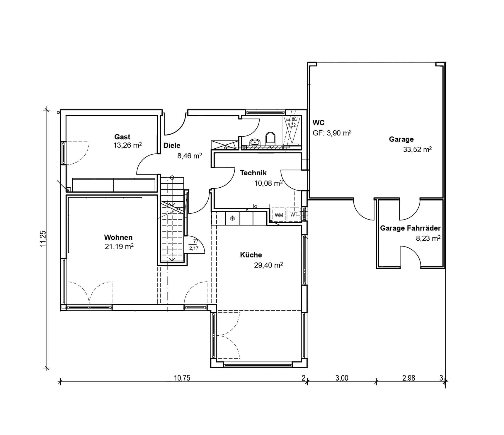
Homestory 496 Grundriss (EG)Wohnfläche EG: 83 m²
no description
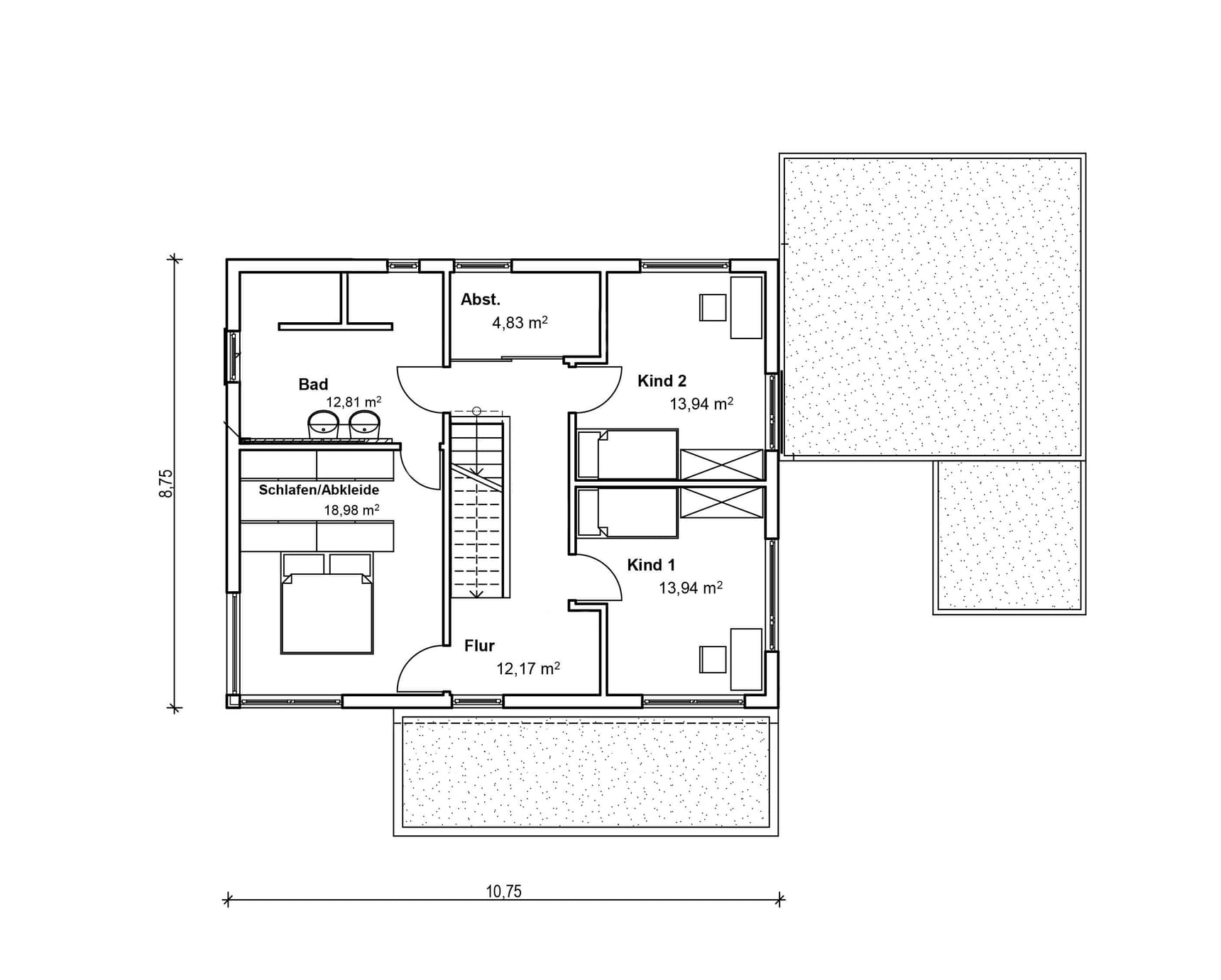
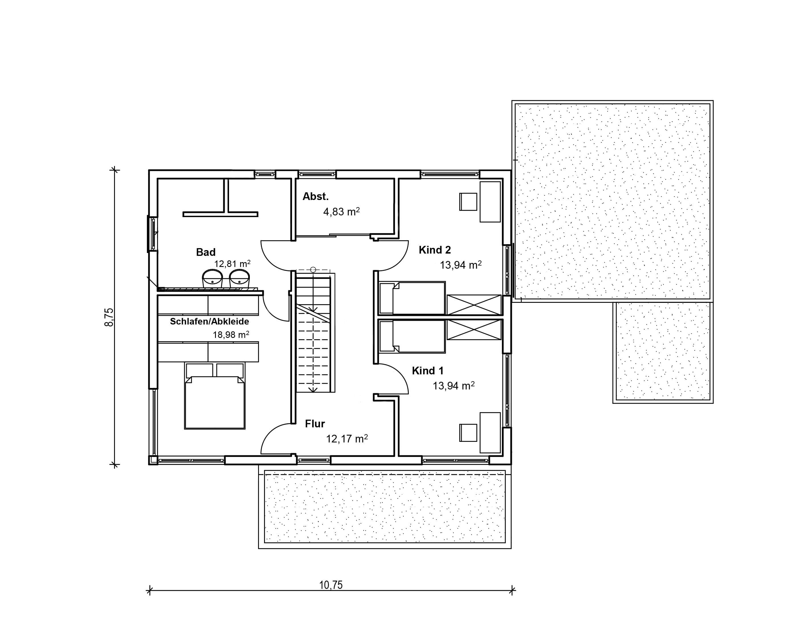
Homestory 496 Grundriss (OG)Wohnfläche OG: 77 m²

Unser Team vor Ort

Manuela DürrFachberater*in bei Lehner Haus
no description
Wir beraten Sie gerne!Arrow Icon
Franziska PaulusFachberater*in bei Lehner Haus
no description

Kataloge

Lehner Haus: Hauskatalog
Lehner Haus

Lehner Haus: Hauskatalog


House and TreeParksHouse and PinMusterhausHouse on HandAnbieter