1. AnbieterArrow Icon
  2. Lehner HausArrow Icon
  3. Homestory 488
Slide 1
Slide 2
Slide 3
Slide 4
Slide 5
no description
Lehner HausHomestory 488
homeKlassische Familienhäuser
livingArea160 m²
energyStandardEffizienzhaus 55
Preis anfragen
Katalog bestellen

Homestory 488

Moderne Bauweise mit genügend Platz

Demnächst zu dritt – damit begann für Nicole und Oliver Simmel* vor fast fünf Jahren der Traum vom Eigenheim. Mittlerweile hat er sich erfüllt und sie wohnen mit ihrem Sohn seit
2015 in ihrem Einfamilienhaus in Weidenstetten. Mit viel Platz und Licht, genau nach ihren Wünschen. Die Bauherren suchten ein geeignetes Grundstück in der Nähe von Familie und Freunden – kein leichtes Unterfangen, denn das bedeutet nahe bei Ulm, wo Bauplätze rar sind. Doch das Paar hatte Glück. Ein bereits reserviertes Grundstück im Neubaugebiet von Weidenstetten kam wieder auf den Markt. Da es perfekt für ihr Vorhaben war, kauften sie es unverzüglich. Zeitgleich zur Grundstücks - suche informierten sie sich über den Hausbau.
Sie besuchten Infotage, besichtigten Rohbauten und sahen sich die Musterhäuser im HausBau Center Ulm an, wo man eine moderne Stadtvilla mit großen Fensterfonten
von Lehner Haus besichtigen kann. Da den zukünftigen Bauherren das Musterhaus zusagte und ihnen Lehner Haus von Freunden und Bekannten empfohlen wurde, fiel die Entscheidung leicht.

Hausdaten

Hausart Icon
HausartEinfamilienhaus
Bauweise Icon
BauweiseHolz-Tafelbau
Anzahl Räume Icon
Anzahl Räume7
Baustil Icon
BaustilKlassische Familienhäuser
Fassade Icon
FassadePutz
Außenmaße Icon
Außenmaße11 m x 9 m
Wohnfläche Icon
Wohnfläche160 m²
Dachform Icon
DachformSattel-/Giebeldach
Energiestandard Icon
EnergiestandardEffizienzhaus 55
Immobilientyp Icon
ImmobilientypKundenhaus
Hauseigenschaften Icon
HauseigenschaftenGästezimmer
Heizungsart Icon
HeizungsartWärmepumpe (Luft, Wasser, oder beides)
Pfeil nach unten linksWir schaffen Platz für Ihre Träume

Grundriss

no description
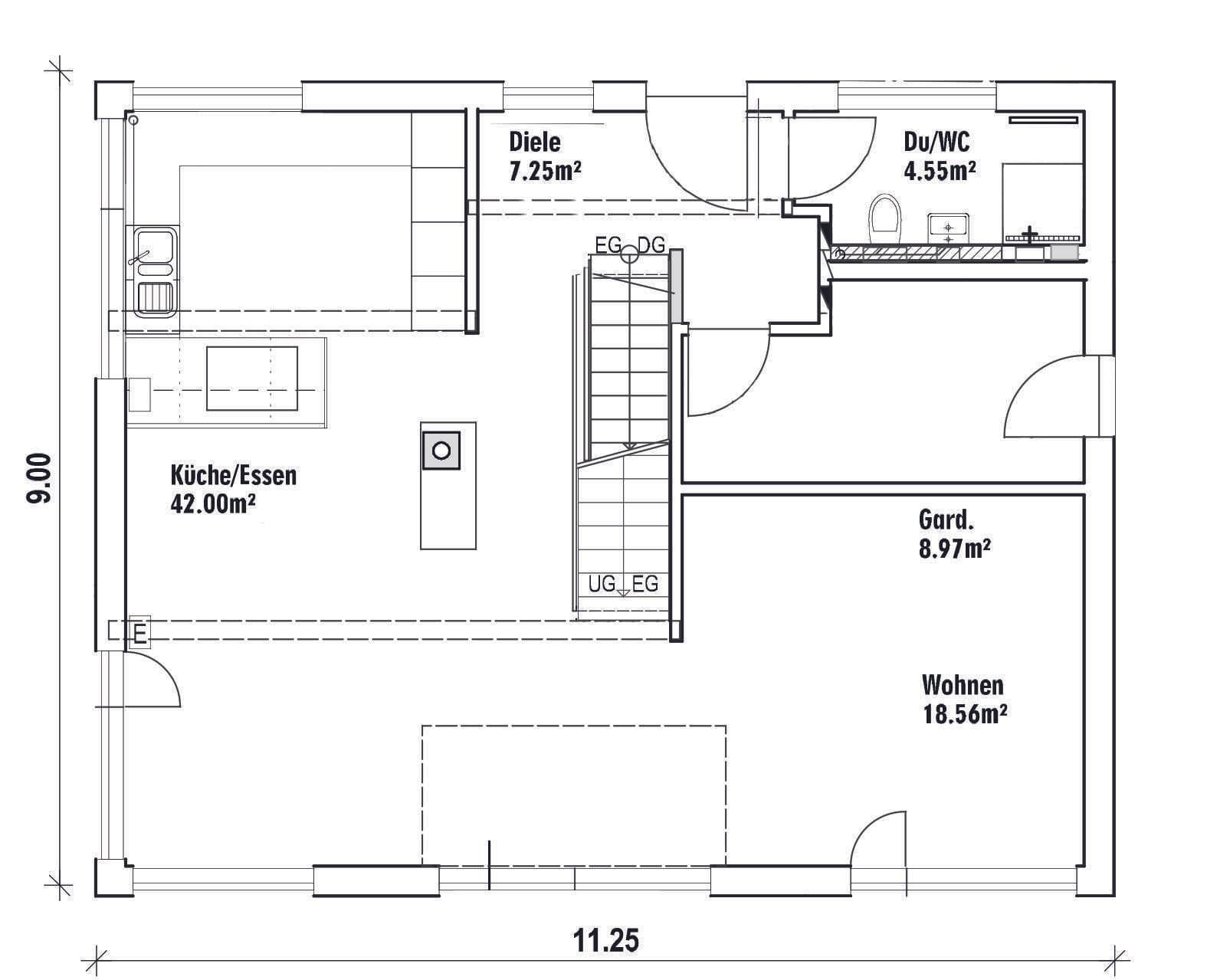
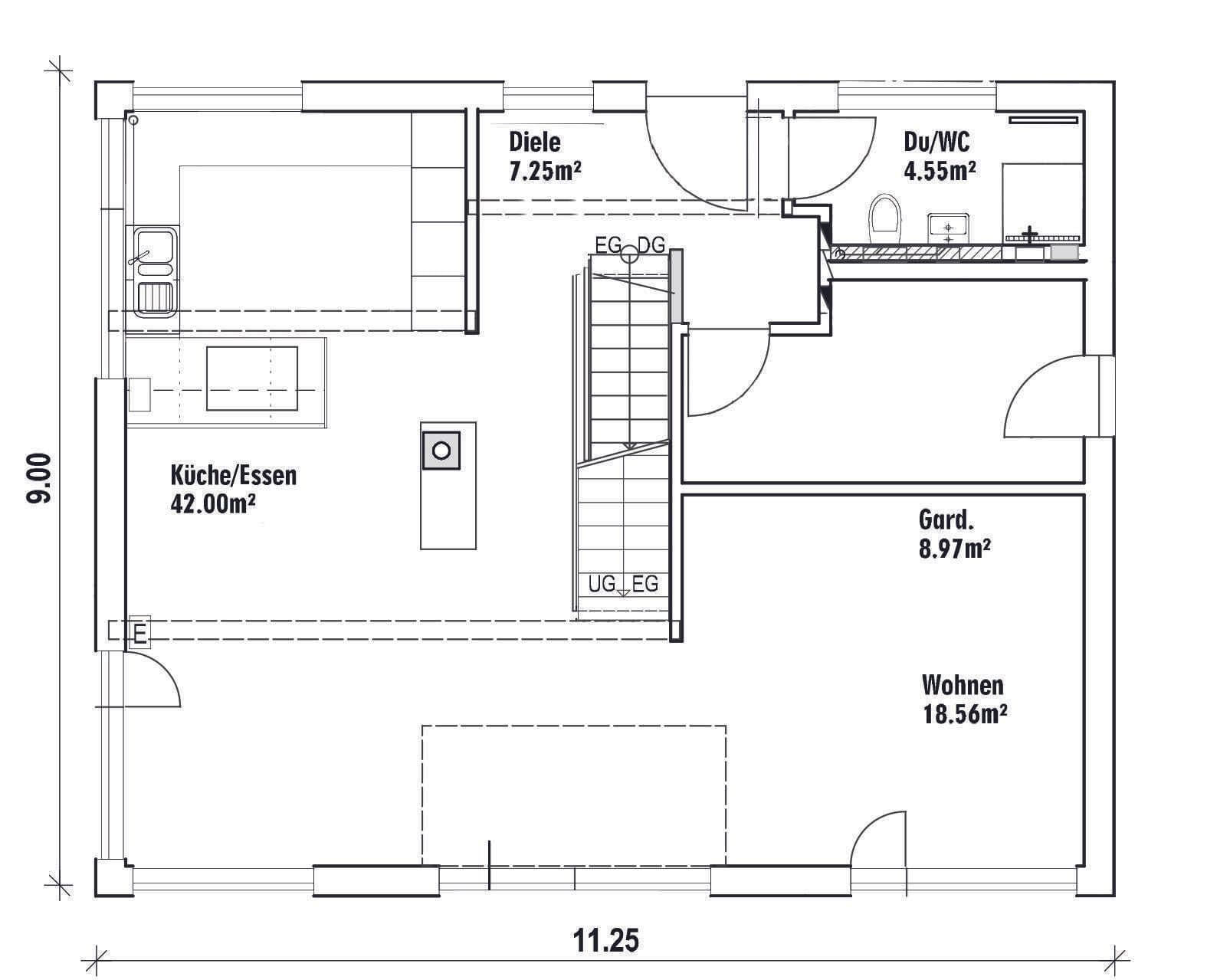
Homestory 488 Grundriss (EG)Wohnfläche EG: 83 m²
no description
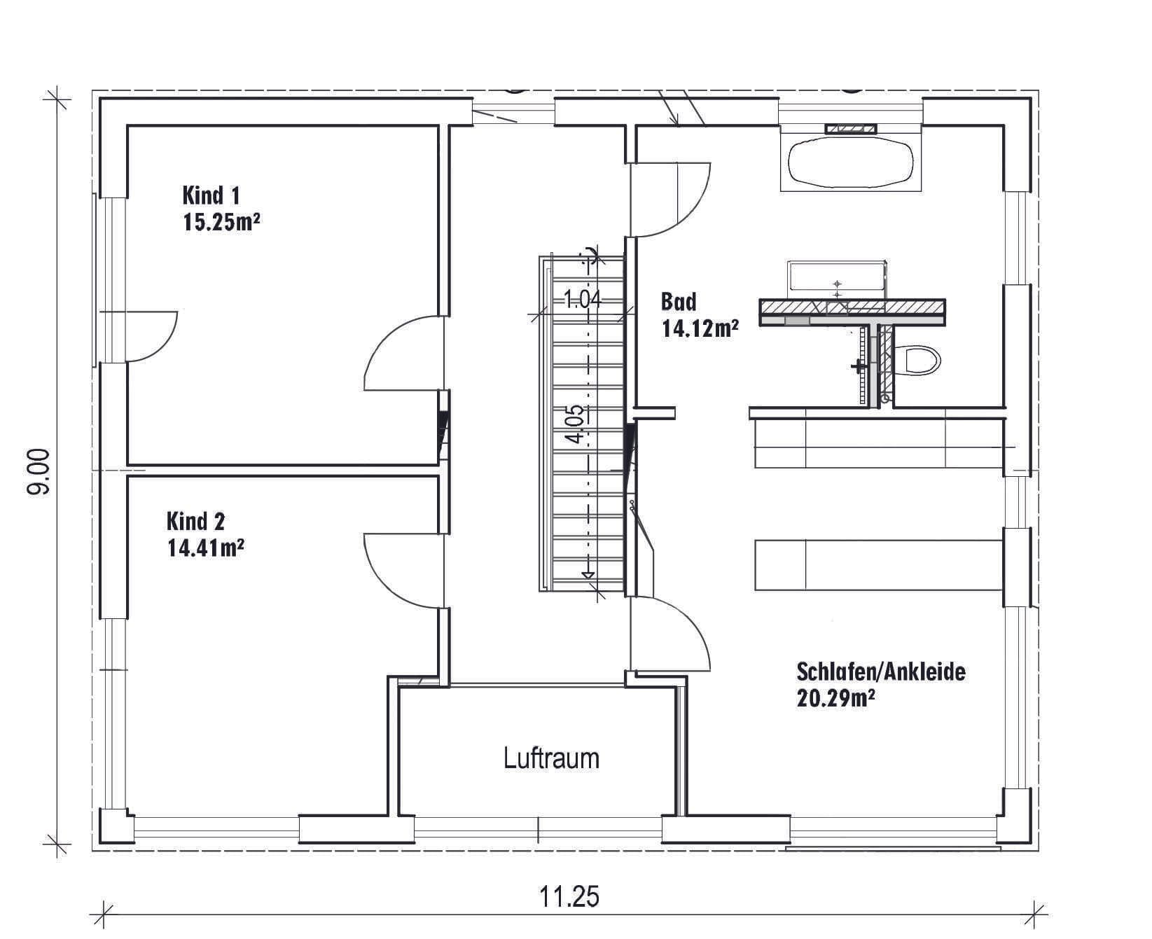
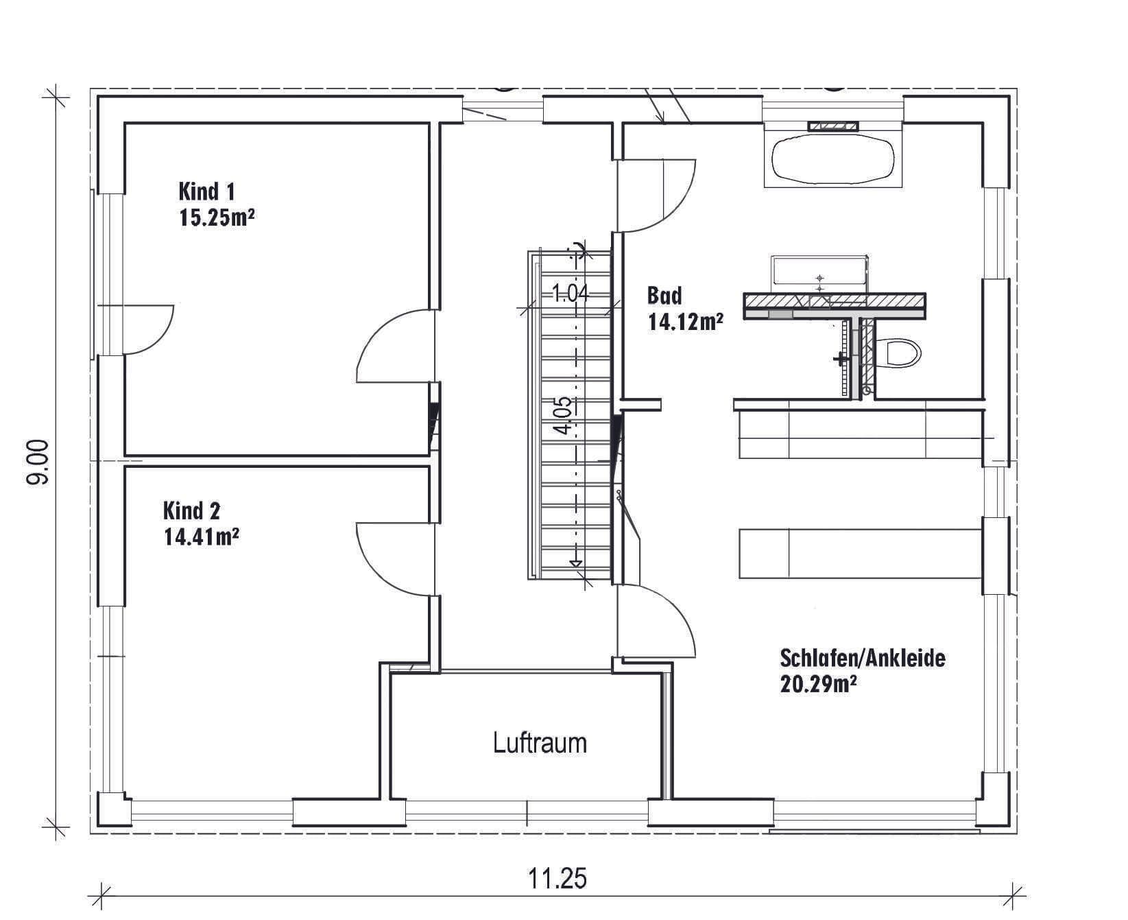
Homestory 488 Grundriss (OG)Wohnfläche OG: 77 m²

Unser Team vor Ort

Manuela DürrFachberater*in bei Lehner Haus
no description
Wir beraten Sie gerne!Arrow Icon
Franziska PaulusFachberater*in bei Lehner Haus
no description

Kataloge

Lehner Haus: Hauskatalog
Lehner Haus

Lehner Haus: Hauskatalog


House and TreeParksHouse and PinMusterhausHouse on HandAnbieter