1. AnbieterArrow Icon
  2. Lehner HausArrow Icon
  3. Homestory 405
Slide 1
Slide 2
Slide 3
Slide 4
no description
Lehner HausHomestory 405
homeKlassische Familienhäuser
livingArea230 m²
energyStandardEffizienzhaus 55
Preis anfragen
Katalog bestellen

Homestory 405

Individuell, sparsam und solide: Effizienzhaus in Holzständerbauweise

Die tragenden Deckenbalken aus sichtbarer Kiefer, die Böden aus edlem Eichenparkett und hölzernes Mobiliar zusammen mit den weißen Wänden - zu dieser Gestaltung Ihres neuen Hauses ließen sich die Bauherren inspirieren in den Musterhäusern von Lehner Haus. Eine individuelle Raumplanung war gar kein Problem. Es blieb aber eine Weile noch die Frage, ob ein Massivhaus oder ein Holzfertigbau in Frage kommen sollte.

Hausdaten

Hausart Icon
HausartEinfamilienhaus
Bauweise Icon
BauweiseHolz-Tafelbau
Anzahl Räume Icon
Anzahl Räume8
Baustil Icon
BaustilKlassische Familienhäuser
Fassade Icon
FassadePutz
Außenmaße Icon
Außenmaße9 m x 12 m
Wohnfläche Icon
Wohnfläche230 m²
Dachform Icon
DachformSattel-/Giebeldach
Energiestandard Icon
EnergiestandardEffizienzhaus 55
Immobilientyp Icon
ImmobilientypKundenhaus
Dachneigung Icon
Dachneigung35°
Hauseigenschaften Icon
HauseigenschaftenTerasse
Hausdämmstoff Icon
HausdämmstoffHolzfaser- und Zellulosedämmstoffe
Heizungsart Icon
HeizungsartWärmepumpe (Luft, Wasser, oder beides)
Pfeil nach unten linksWir schaffen Platz für Ihre Träume

Grundriss

no description
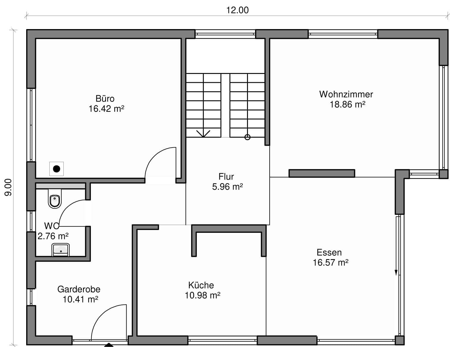
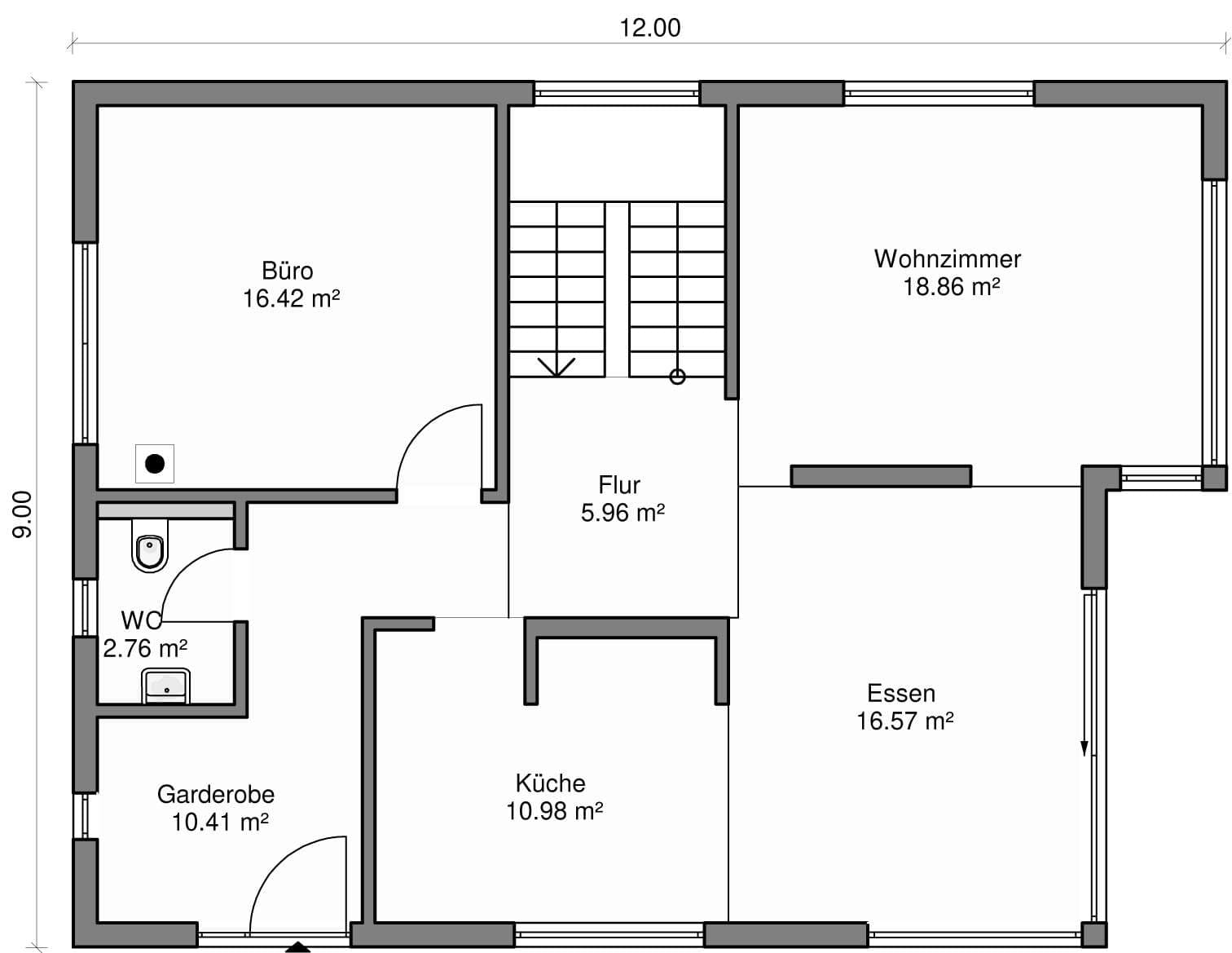
Homestory 405 Grundriss (EG)
no description
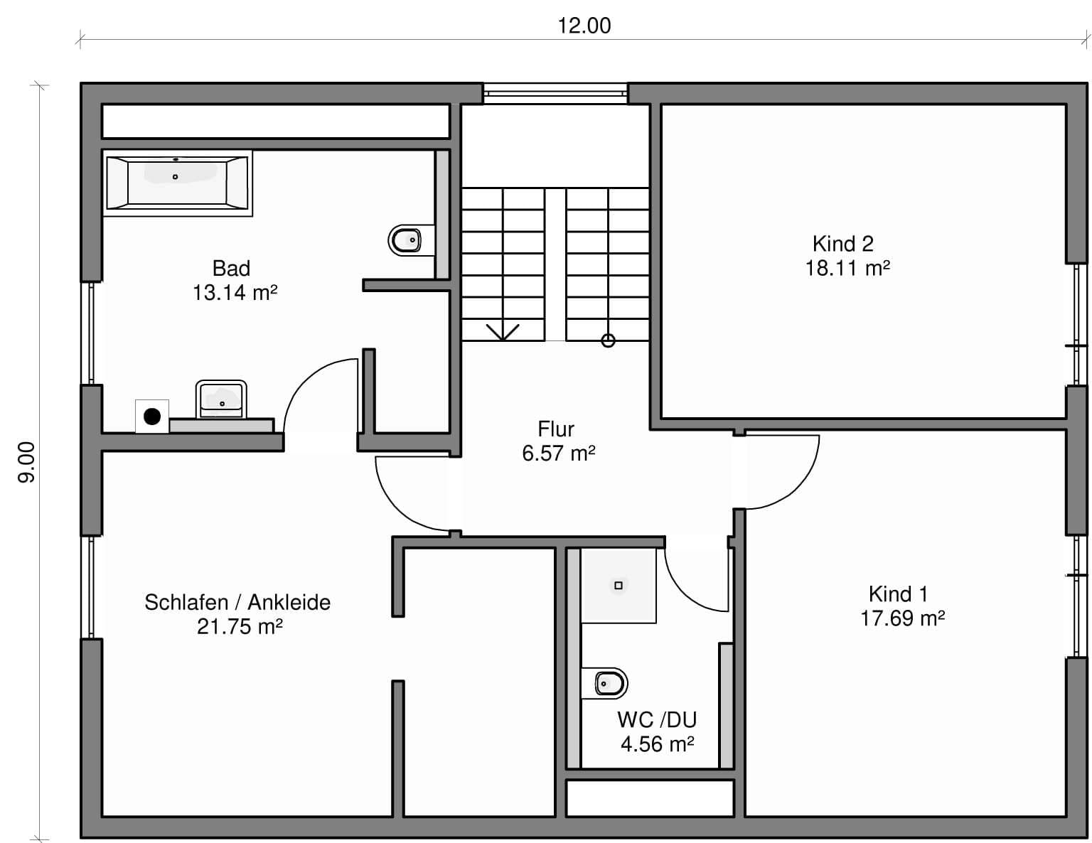
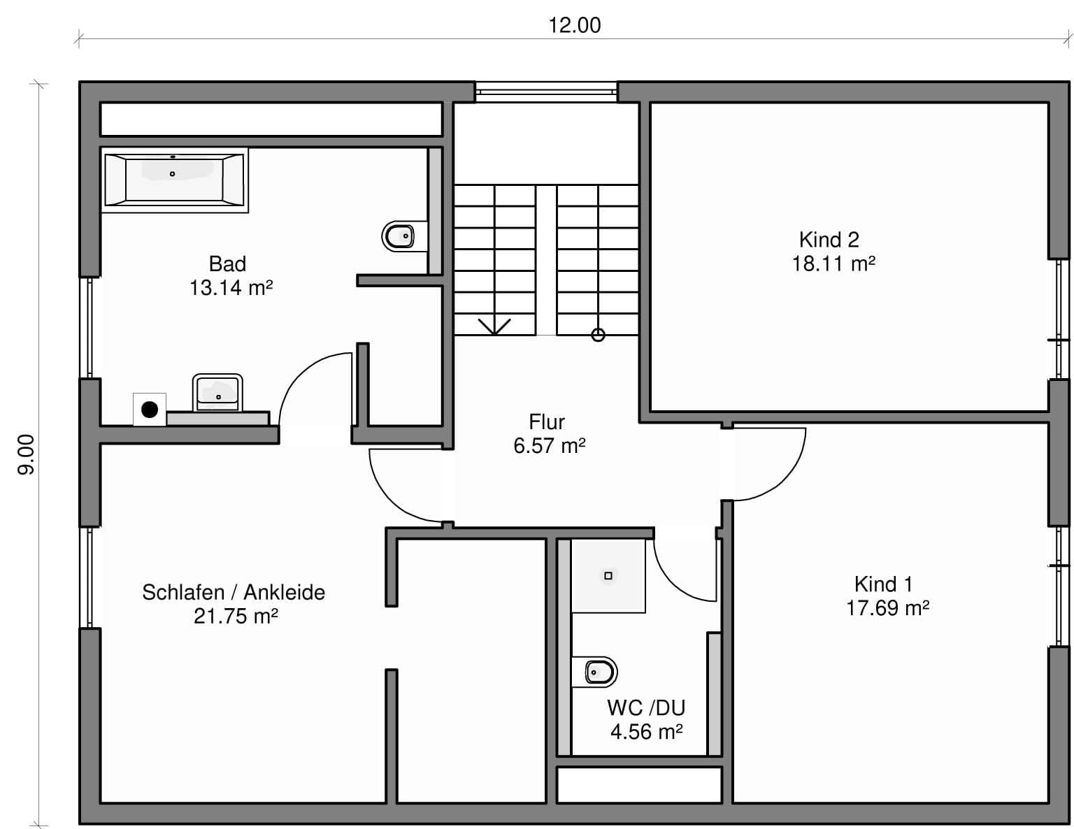
Homestory 405 Grundriss (DG)

Kataloge

Lehner Haus: Hauskatalog
Lehner Haus

Lehner Haus: Hauskatalog


House and TreeParksHouse and PinMusterhausHouse on HandAnbieter