1. AnbieterArrow Icon
  2. Lehner HausArrow Icon
  3. Homestory 400
Slide 1
Slide 2
Slide 3
Slide 4
no description
Lehner HausHomestory 400
homeKlassische Familienhäuser
livingArea240 m²
energyStandardEffizienzhaus 55
Preis anfragen
Katalog bestellen

Homestory 400

Ein Haus für die Familie. Ankommen. Zuhause sein. Wohlfühlen

Die Bauherrin wollte für sich und ihre beiden Kinder ein eigenes, neues Zuhause bauen. Dabei schwebte ihr zunächst ein Minibungalow vor mit
dem nötigen Raum und Komfort für drei Personen. Mit dieser Idee und manchen besonderen Wünschen wie zum Beispiel einem zentral gelegenen
Herd oder einer begehbaren Speisekammer machte sie sich auf den Weg in verschiedene Musterhauszentren. In Fellbach sammelte sie weitere Ideen und entwickelte dabei eine Vorstellung von ihrem neuen Haus. „Das Musterhaus von Lehner,“ berichtet die Bauherrin, „habe ich in Fellbach zuletzt noch kurz auf dem Sprung mitgenommen. Aber genau das war mein Haus!

Hausdaten

Hausart Icon
HausartEinfamilienhaus
Bauweise Icon
BauweiseHolz-Tafelbau
Anzahl Räume Icon
Anzahl Räume6
Baustil Icon
BaustilKlassische Familienhäuser
Fassade Icon
FassadePutz
Außenmaße Icon
Außenmaße120 m x 85 m
Wohnfläche Icon
Wohnfläche240 m²
Dachform Icon
DachformSattel-/Giebeldach
Energiestandard Icon
EnergiestandardEffizienzhaus 55
Immobilientyp Icon
ImmobilientypKundenhaus
Hauseigenschaften Icon
HauseigenschaftenTerasse
Heizungsart Icon
HeizungsartWärmepumpe (Luft, Wasser, oder beides)
Pfeil nach unten linksWir schaffen Platz für Ihre Träume

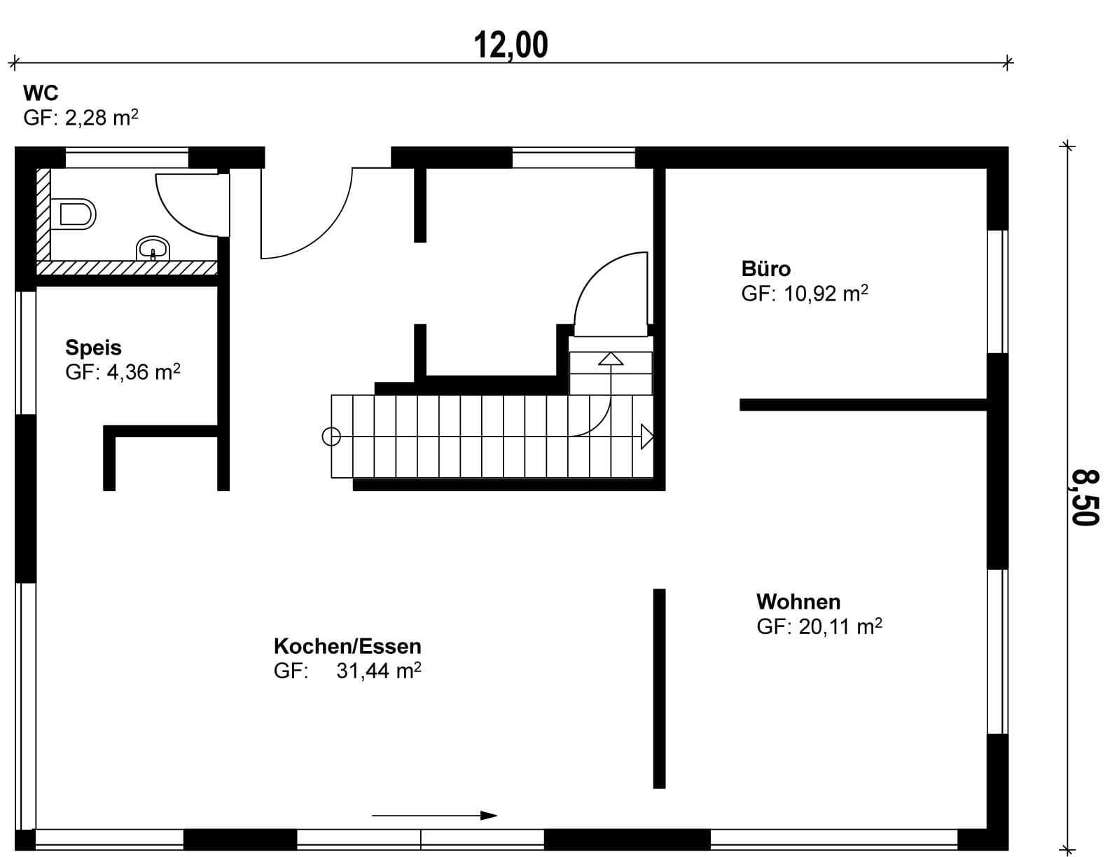
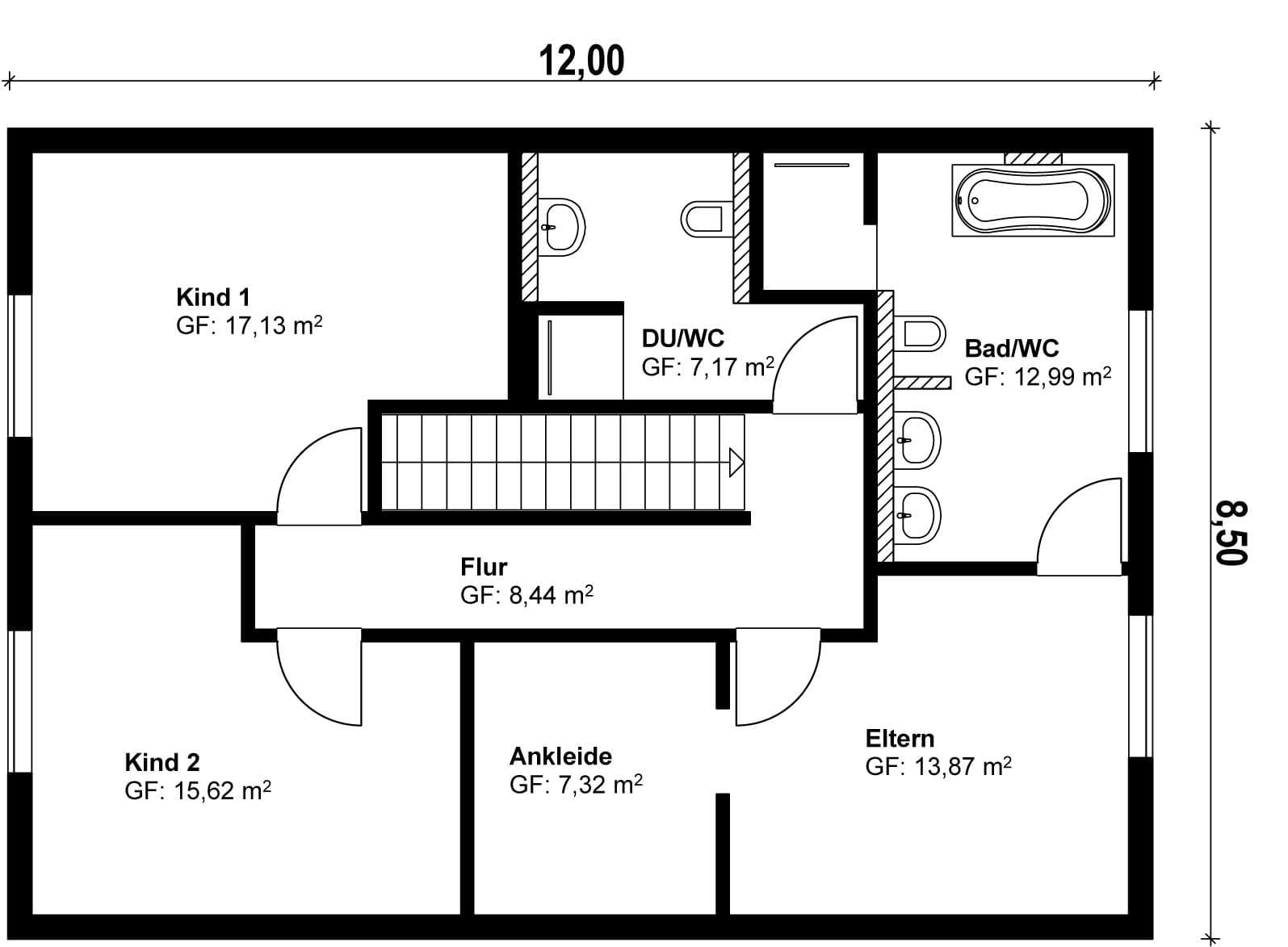
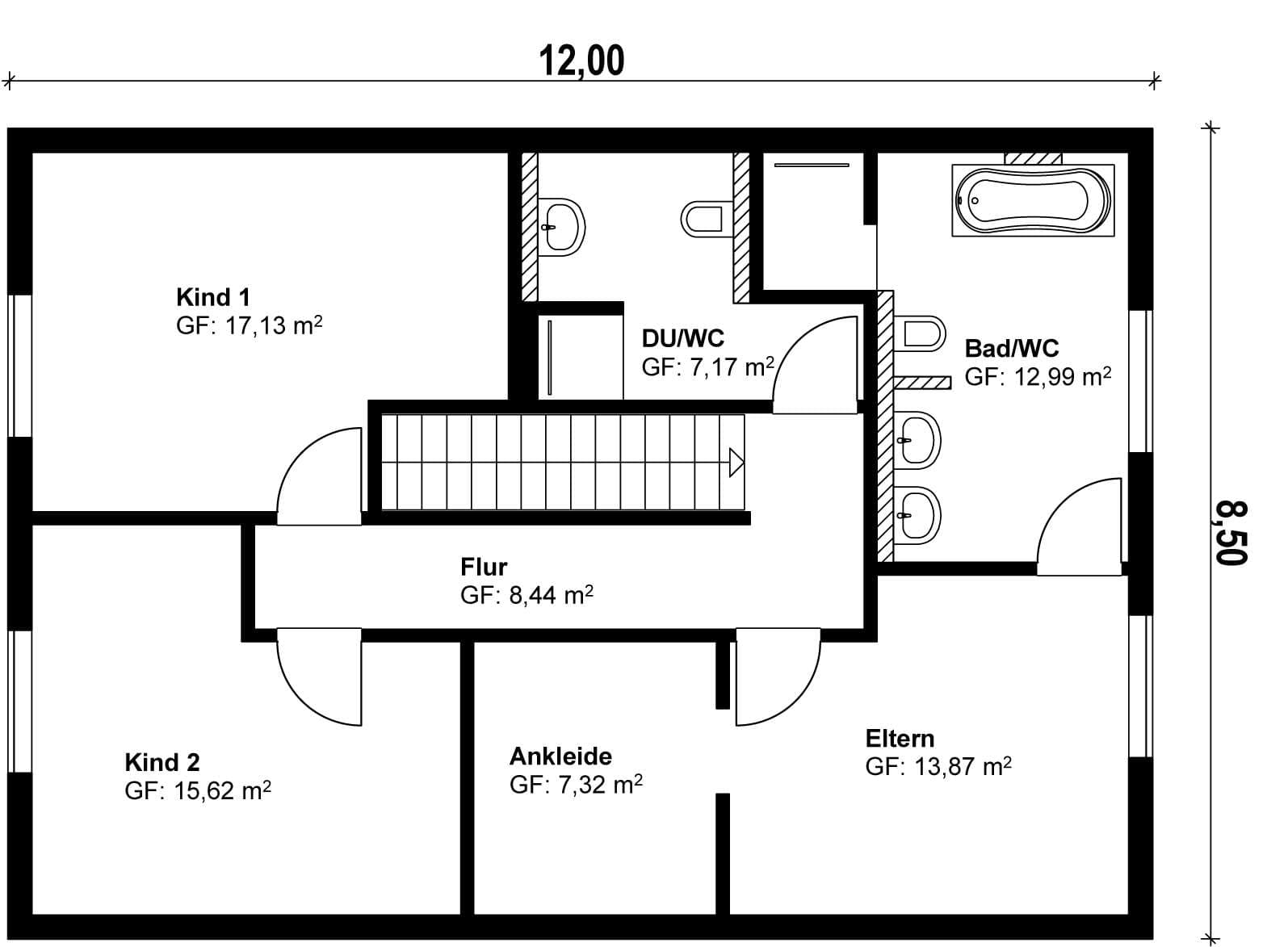
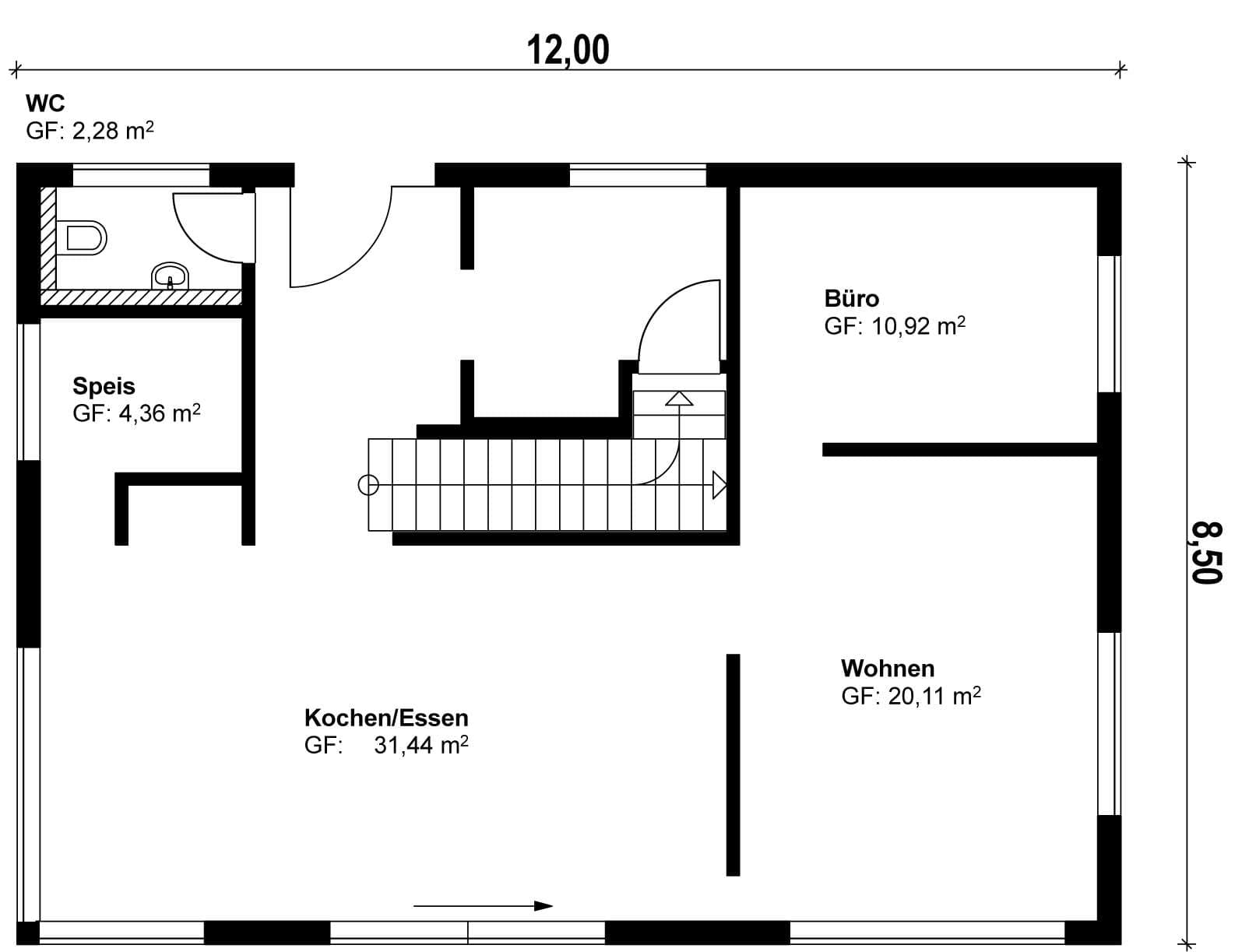
Grundriss

no description
Homestory 400 Grundriss (EG)
no description
Homestory 400 Grundriss (DG)

Unser Team vor Ort

Andrea KienleFachberater*in bei Lehner Haus
no description
Wir beraten Sie gerne!Arrow Icon

Kataloge

Lehner Haus: Hauskatalog
Lehner Haus

Lehner Haus: Hauskatalog


House and TreeParksHouse and PinMusterhausHouse on HandAnbieter