1. AnbieterArrow Icon
  2. Lehner HausArrow Icon
  3. Homestory 393
Slide 1
Slide 2
Slide 3
Slide 4
no description
Lehner HausHomestory 393
homeKlassische Familienhäuser
livingArea240 m²
energyStandardEffizienzhaus 55
Preis anfragen
Katalog bestellen

Homestory 393

Sparsam und solide: Guter alter Klassiker in Holzfertigbauweise

Das gute alte Einfamilienhaus, seine Architektur ist praktisch, der Stil schlicht. Aber es wird immer wieder gern gebaut, weil das Modell für viele seit über einem halben Jahrhundert den Traum vom eigenen Zuhause erfüllt. Heute muss es ein sparsames und energieeffizientes Gebäude sein. Lehner Haus baut mit Ihnen das ideale Einfamilienhaus in Holzfertigbauweise, schnell, zuverlässig und in bester schwäbischer Qualität.

Hausdaten

Hausart Icon
HausartEinfamilienhaus
Bauweise Icon
BauweiseHolz-Tafelbau
Anzahl Räume Icon
Anzahl Räume5
Baustil Icon
BaustilKlassische Familienhäuser
Fassade Icon
FassadePutz
Außenmaße Icon
Außenmaße10.6 m x 8.4 m
Wohnfläche Icon
Wohnfläche240 m²
Dachform Icon
DachformSattel-/Giebeldach
Energiestandard Icon
EnergiestandardEffizienzhaus 55
Immobilientyp Icon
ImmobilientypKundenhaus
Dachneigung Icon
Dachneigung36°
Hauseigenschaften Icon
HauseigenschaftenTerasse
Heizungsart Icon
HeizungsartWärmepumpe (Luft, Wasser, oder beides)
Pfeil nach unten linksWir schaffen Platz für Ihre Träume

Grundriss

no description
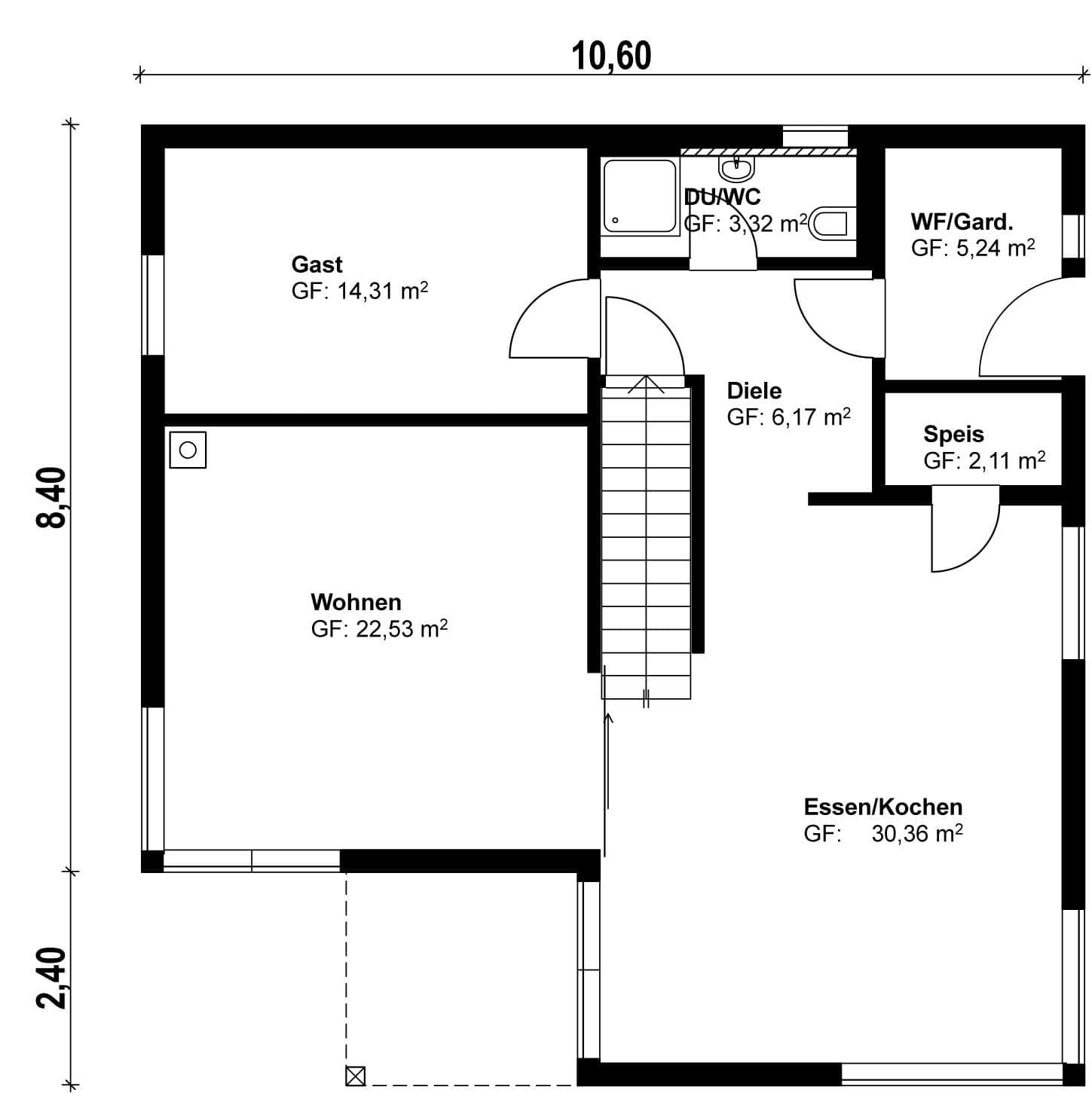
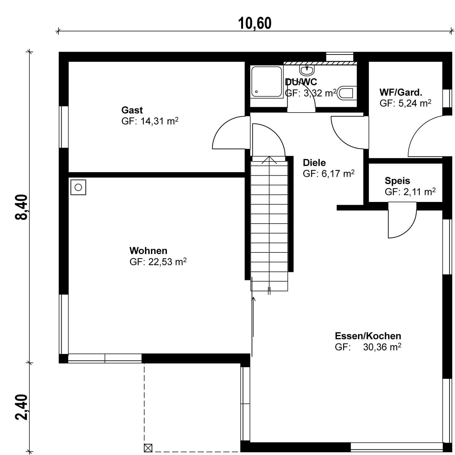
Homestory 393 Grundriss (EG)
no description
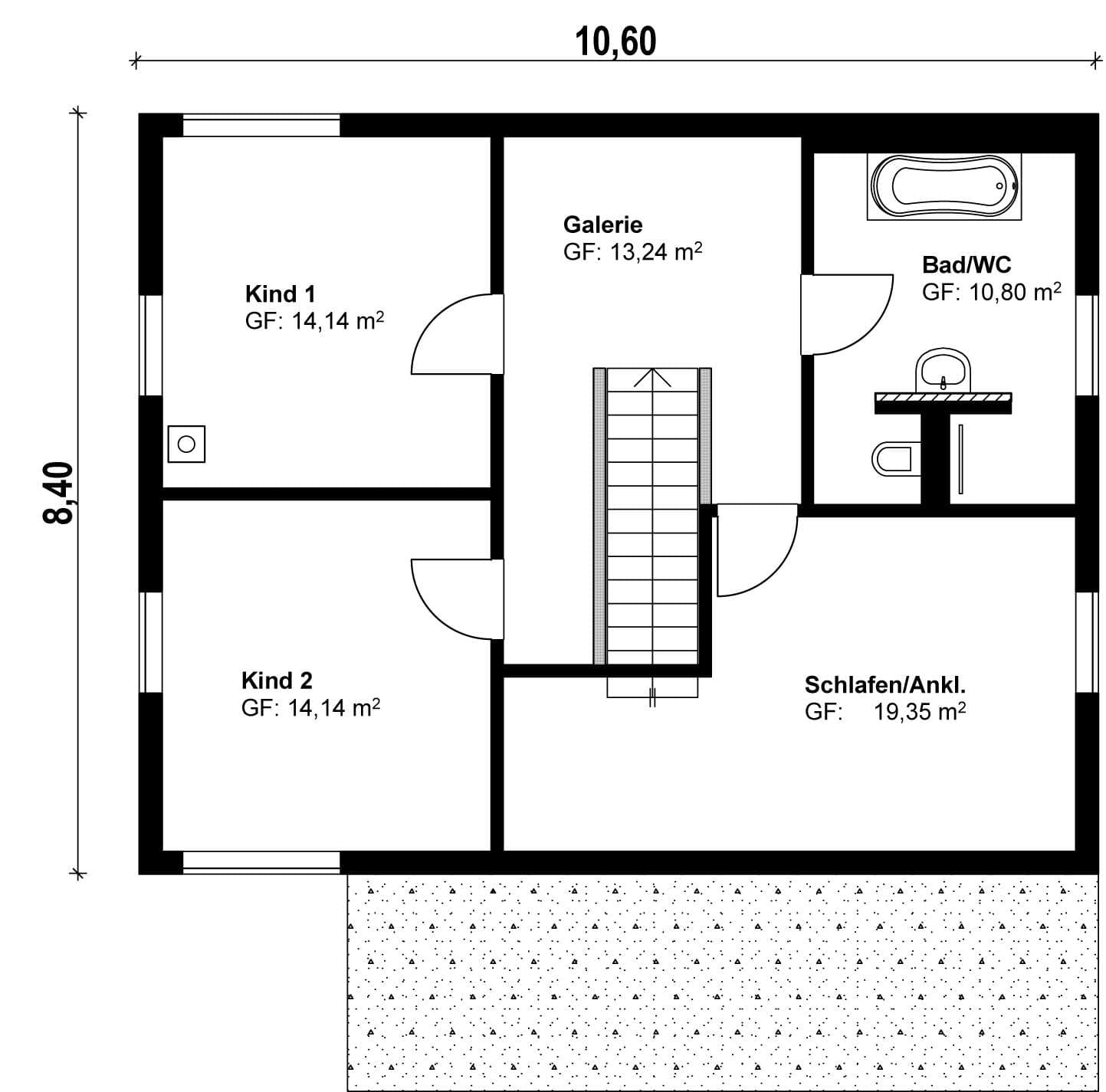
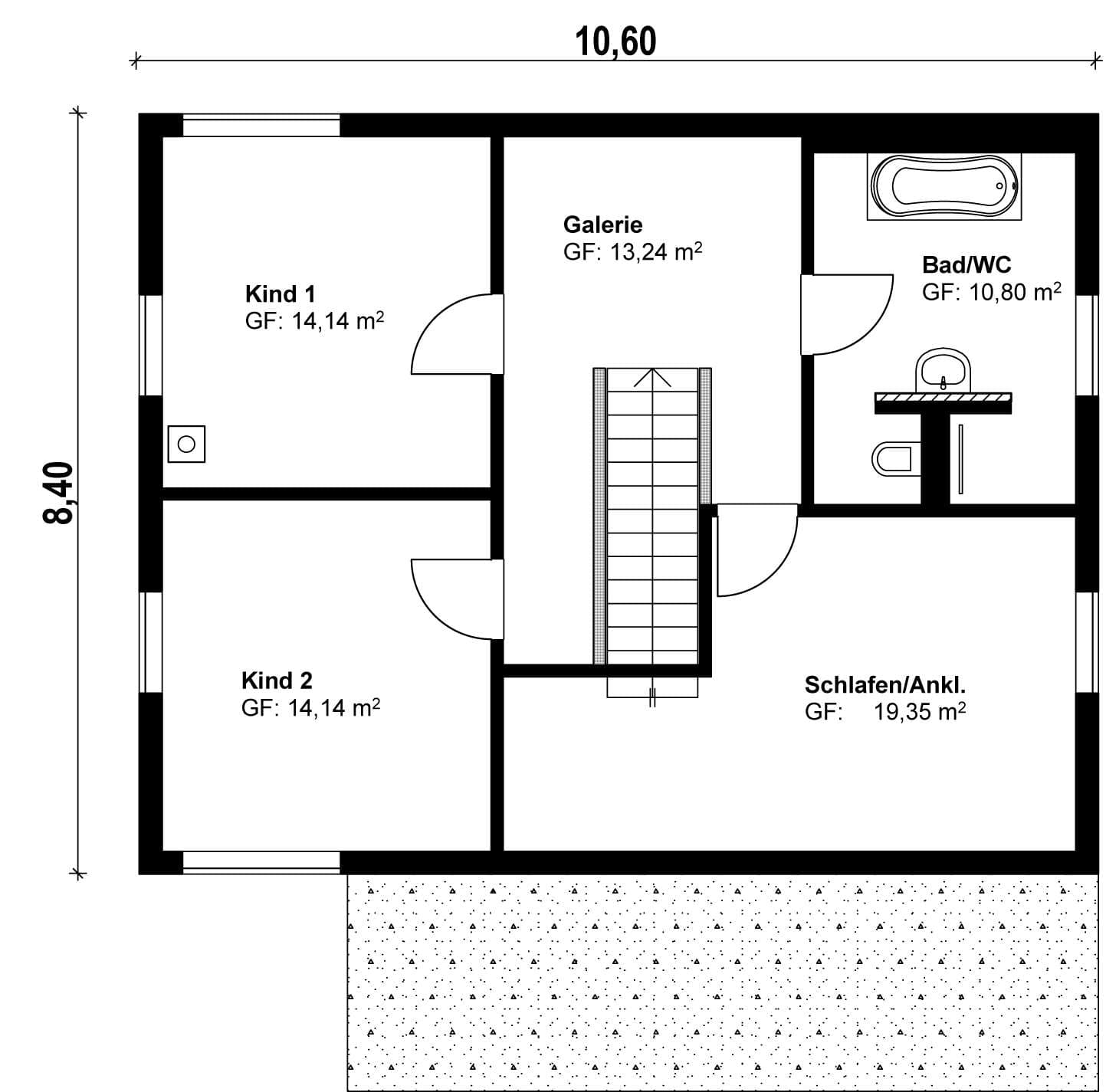
Homestory 393 Grundriss (DG)

Kataloge

Lehner Haus: Hauskatalog
Lehner Haus

Lehner Haus: Hauskatalog


House and TreeParksHouse and PinMusterhausHouse on HandAnbieter