1. AnbieterArrow Icon
  2. Lehner HausArrow Icon
  3. Homestory 387
Slide 1
Slide 2
Slide 3
Slide 4
no description
Lehner HausHomestory 387
homeStadtvillen
livingArea280 m²
energyStandardEffizienzhaus 55
Preis anfragen
Katalog bestellen

Homestory 387

Lehner Haus GmbH

Effizienzhaus in Holzbauweise: Sparsam und gemütlich

Wenn man an schönes Wohnen denkt, dann soll ein gemeinsames Zuhause nach eigenen Vorstellungen gestaltet, heimelig und für ein Leben lang der schönste Ort sein. Dabei muss neben der Architektur heute mehrdenn je besonders auf die Energiekosten geschaut werden. Bauherren sind gefordert, ein möglichst energieeffizientes Haus zu bauen. Lehner Haus entwickelt mit ihnen optimale Lösungen nach Bedarf.

Hausdaten

Hausart Icon
HausartEinfamilienhaus
Bauweise Icon
BauweiseHolz-Tafelbau
Anzahl Räume Icon
Anzahl Räume14
Baustil Icon
BaustilStadtvillen
Fassade Icon
FassadePutz
Außenmaße Icon
Außenmaße11 m x 12 m
Wohnfläche Icon
Wohnfläche280 m²
Dachform Icon
DachformSattel-/Giebeldach
Energiestandard Icon
EnergiestandardEffizienzhaus 55
Immobilientyp Icon
ImmobilientypKundenhaus
Dachneigung Icon
Dachneigung23°
Hauseigenschaften Icon
HauseigenschaftenTerasse
Heizungsart Icon
HeizungsartWärmepumpe (Luft, Wasser, oder beides)
Pfeil nach unten linksWir schaffen Platz für Ihre Träume

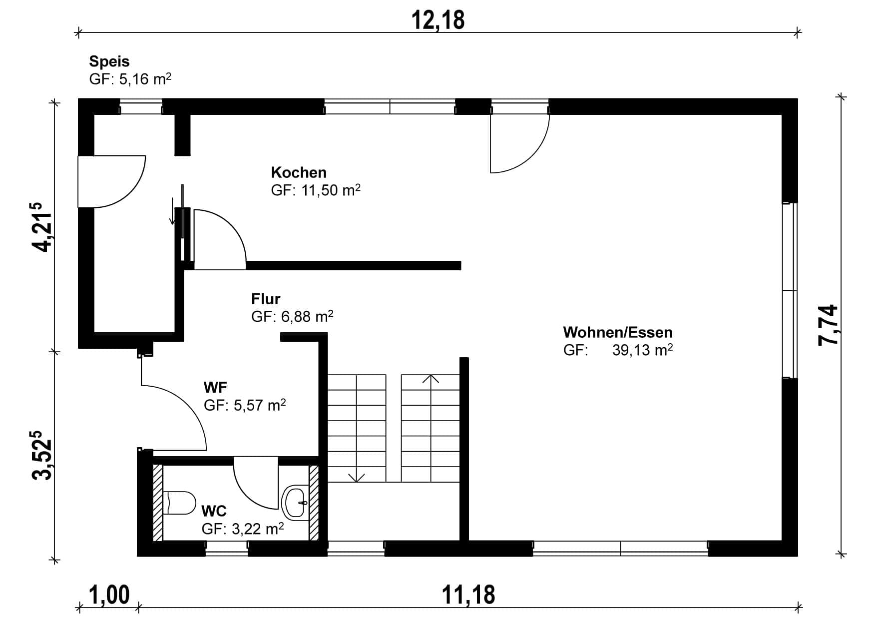
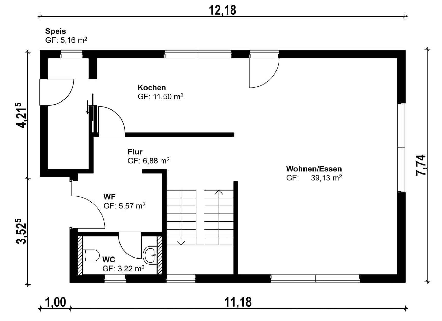
Grundriss

no description
Homestory 387 Grundriss (EG)

Kataloge

Lehner Haus: Hauskatalog
Lehner Haus

Lehner Haus: Hauskatalog


House and TreeParksHouse and PinMusterhausHouse on HandAnbieter