1. AnbieterArrow Icon
  2. Lehner HausArrow Icon
  3. Homestory 384
Slide 1
Slide 2
Slide 3
Slide 4
no description
Lehner HausHomestory 384
homeKlassische Familienhäuser
livingArea240 m²
energyStandardEffizienzhaus 55
Preis anfragen
Katalog bestellen

Homestory 384

Modernes und sparsames Haus für zwei Familien

Planung mit Bekannten oder Freunden: Ein Doppelhaushälfte muss jeder Partie genügend Raum geben. Für Kinder und Erwachsene sollten persönliche Zimmer eingeplant werden, möglichst zwei Bäder und ein zentraler Wohn-Essbereich. Das Ganze muss eine praktisch ausgerichtete Innenarchitektur geschickt unter einen Hut bringen und zu einem wohnlichen Zuhause machen. Außerdem muss man sich gut verstehen mit den Mitbewohnern in der anderen Haushälfte. Dann steht einem gemeinsamen Wohnen nichts im Weg.

Hausdaten

Hausart Icon
HausartDoppelhaus
Bauweise Icon
BauweiseHolz-Tafelbau
Anzahl Räume Icon
Anzahl Räume7
Baustil Icon
BaustilKlassische Familienhäuser
Fassade Icon
FassadePutz
Außenmaße Icon
Außenmaße11 m x 9 m
Wohnfläche Icon
Wohnfläche240 m²
Dachform Icon
DachformSattel-/Giebeldach
Energiestandard Icon
EnergiestandardEffizienzhaus 55
Immobilientyp Icon
ImmobilientypKundenhaus
Dachneigung Icon
Dachneigung
Hauseigenschaften Icon
HauseigenschaftenTerasse
Hausdämmstoff Icon
HausdämmstoffMineralfaser (Glaswolle, Steinwolle)
Heizungsart Icon
HeizungsartWärmepumpe (Luft, Wasser, oder beides)
Pfeil nach unten linksWir schaffen Platz für Ihre Träume

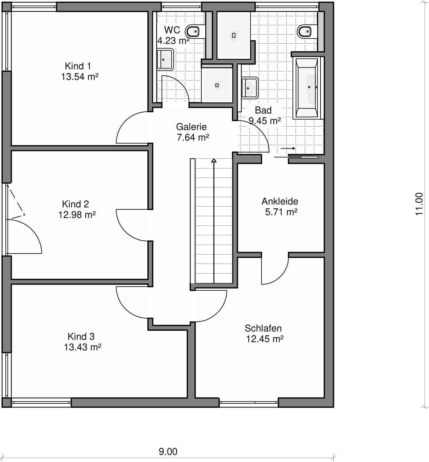
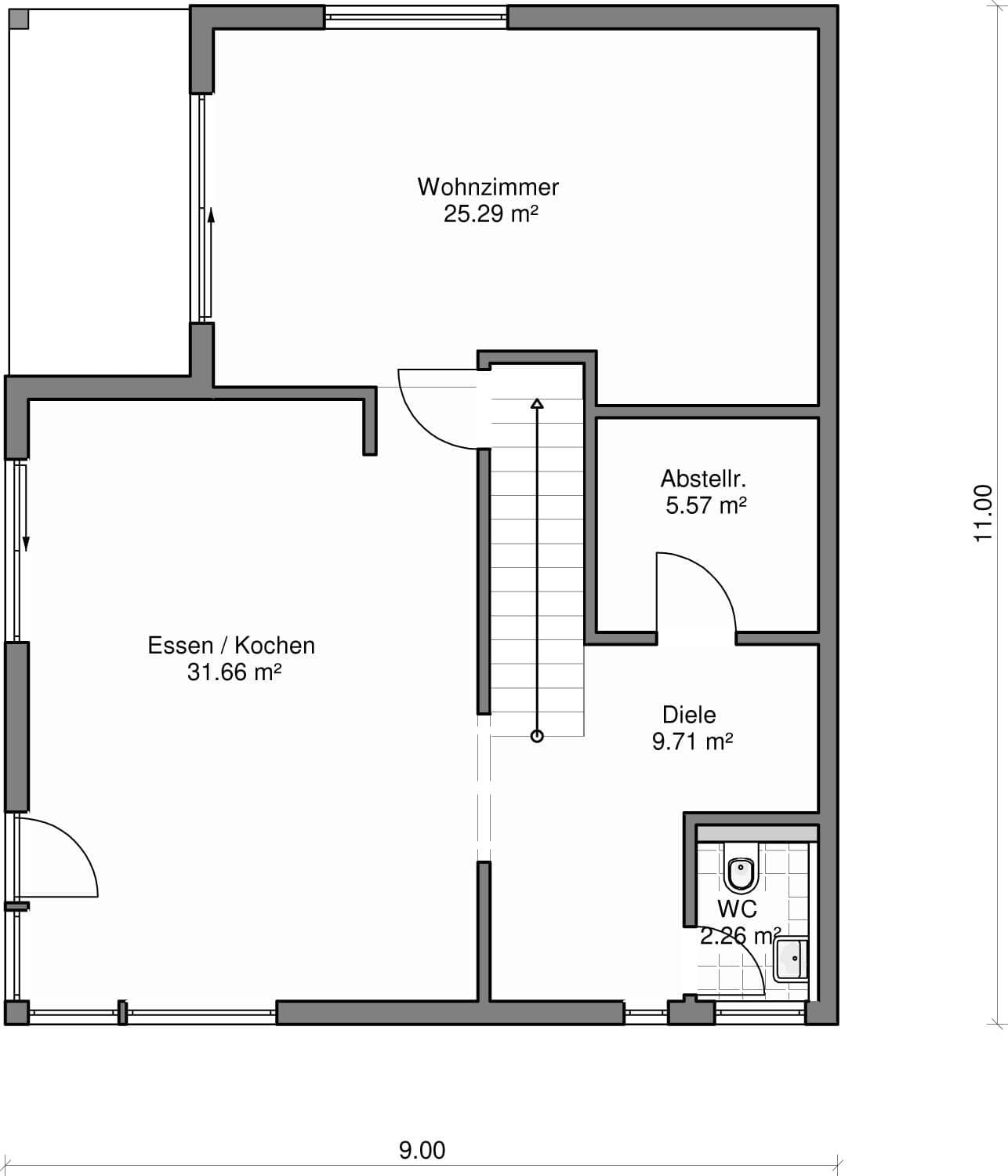
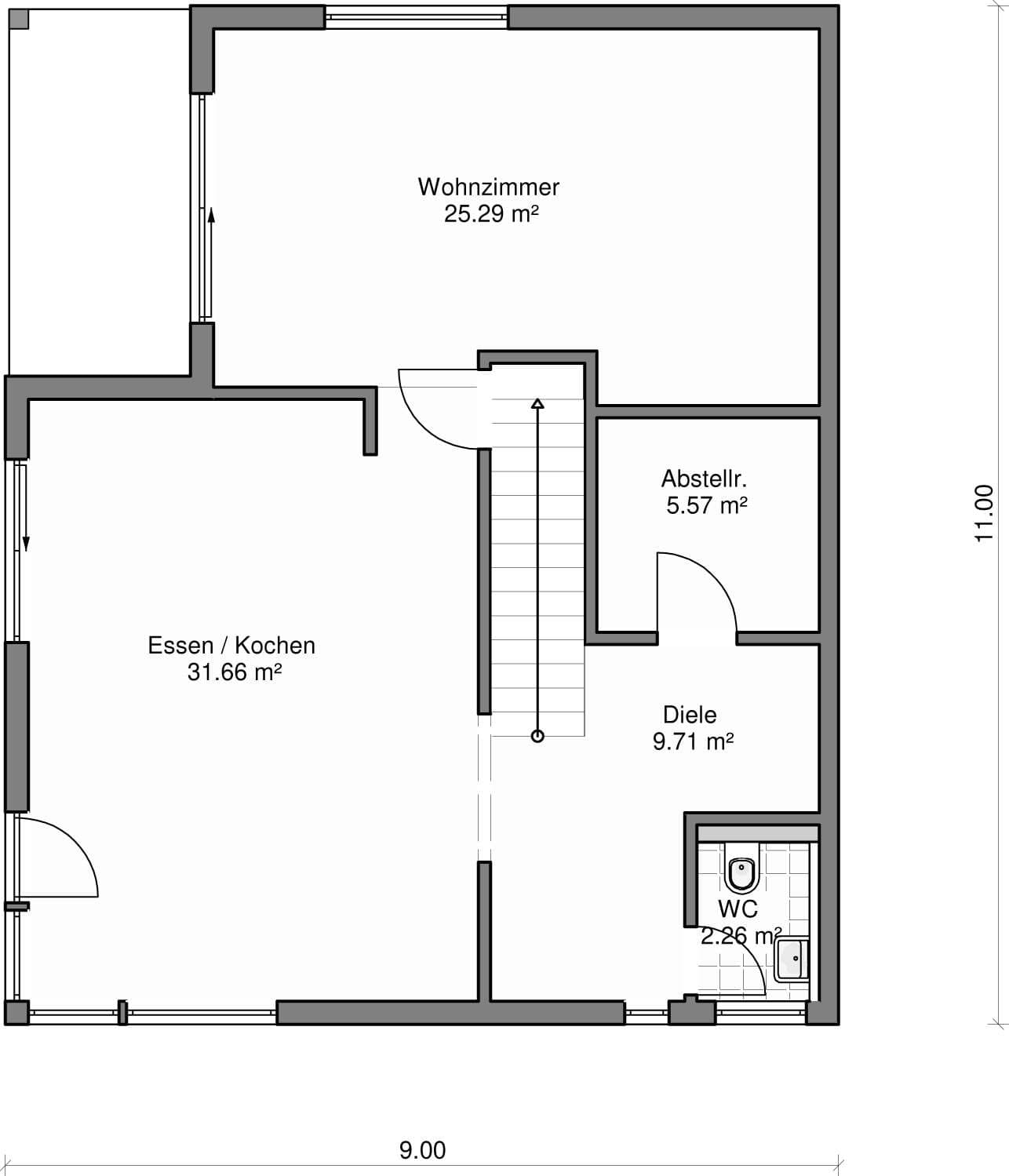
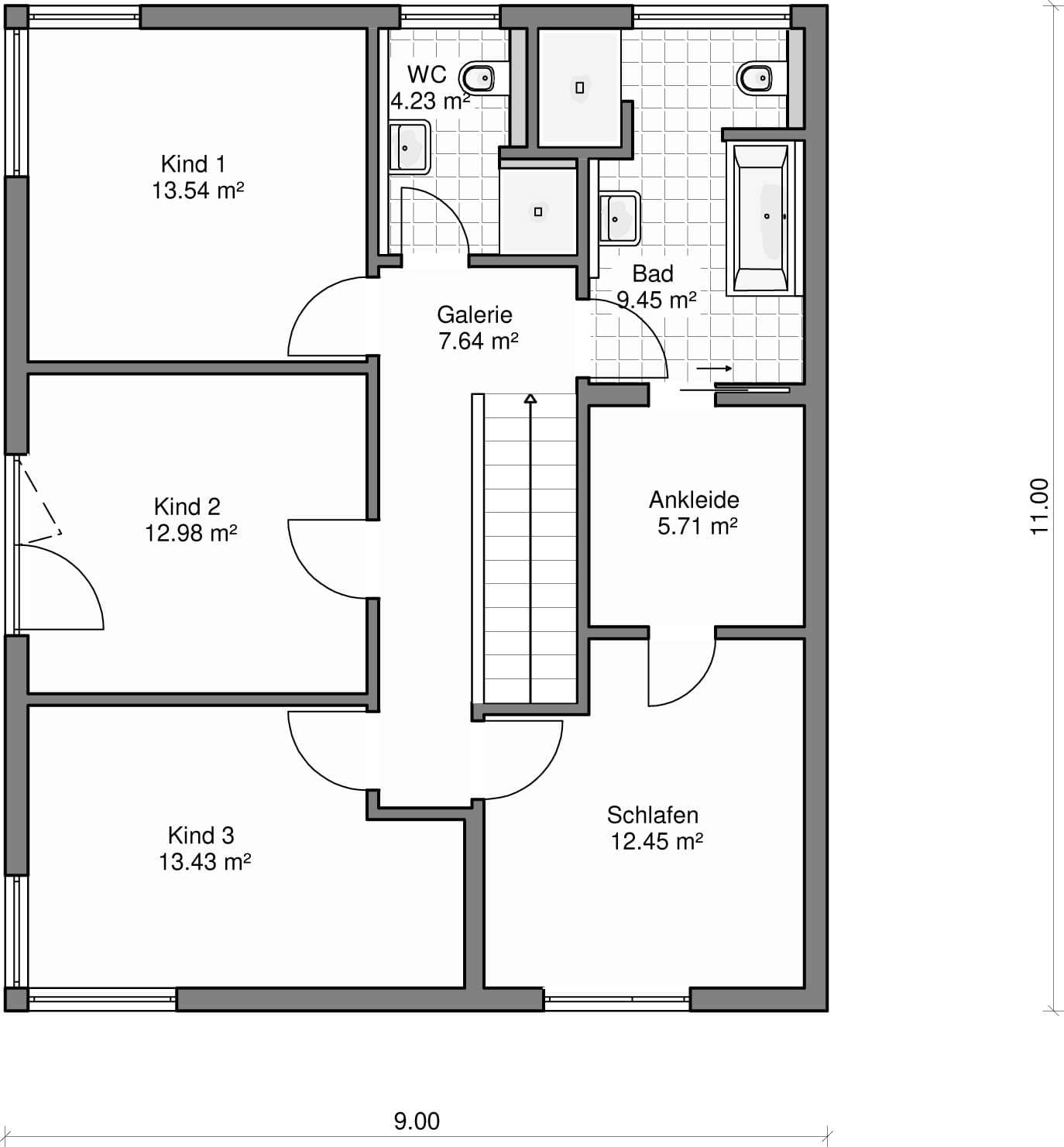
Grundriss

no description
Homestory 384 Grundriss (EG)
no description
Homestory 384 Grundriss (DG)

Unser Team vor Ort

Frank KlingnerFachberater*in bei Lehner Haus
no description
Wir beraten Sie gerne!Arrow Icon

Kataloge

Lehner Haus: Hauskatalog
Lehner Haus

Lehner Haus: Hauskatalog


House and TreeParksHouse and PinMusterhausHouse on HandAnbieter