1. AnbieterArrow Icon
  2. Lehner HausArrow Icon
  3. Homestory 382
Slide 1
Slide 2
Slide 3
no description
Lehner HausHomestory 382
homeStadtvillen
livingArea163 m²
energyStandardEffizienzhaus 55
Preis anfragen
Katalog bestellen

Homestory 382

Ein Unikat nach Wunsch. Frei geplant. Individuelle Architektur

„Ich bin im eigenen Haus meiner Eltern aufgewachsen“, sagt der Bauherr, „und deshalb war es für mich selbstverständlich, dass irgendwann ein Eigenheim gebaut wird, keine Frage.“ Gemeinsam mit seiner Lebensgefährtin skizzierte er einen ersten Grundriss und entwickelte seine Ideen. „Wir wollten zum Beispiel einen begehbaren Kleiderschrank haben, bodentiefe Fenster und einen offenen Wohn-Ess-Bereich. Außerdem sollte die Optik stimmen, ein Walmdach schwebte uns vor und die Form einer Stadtvilla. Das Grund-stück sollte optimal ausgenutzt werden. Und wir wollten Eigenleistungen erbringen“, berichtet der Bauherr.

Hausdaten

Hausart Icon
HausartEinfamilienhaus
Bauweise Icon
BauweiseHolz-Tafelbau
Anzahl Räume Icon
Anzahl Räume6
Baustil Icon
BaustilStadtvillen
Fassade Icon
FassadePutz
Außenmaße Icon
Außenmaße100 m x 85 m
Wohnfläche Icon
Wohnfläche163 m²
Dachform Icon
DachformWalm-/Zeltdach
Energiestandard Icon
EnergiestandardEffizienzhaus 55
Immobilientyp Icon
ImmobilientypKundenhaus
Dachneigung Icon
Dachneigung23°
Hauseigenschaften Icon
HauseigenschaftenTerasse
Heizungsart Icon
HeizungsartWärmepumpe (Luft, Wasser, oder beides)
Pfeil nach unten linksWir schaffen Platz für Ihre Träume

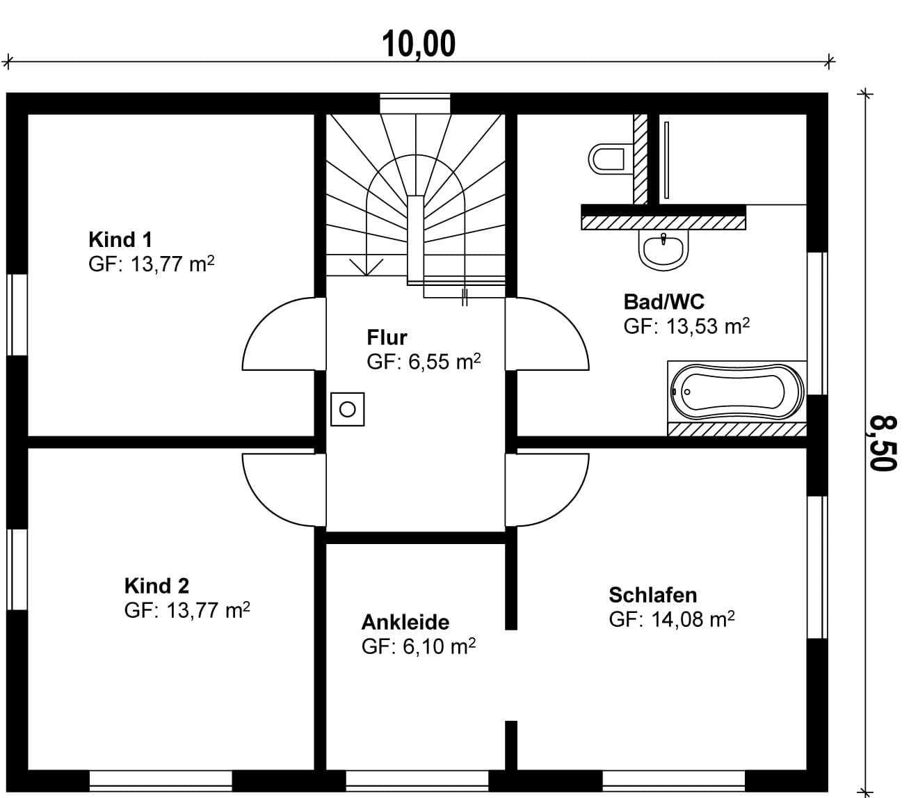
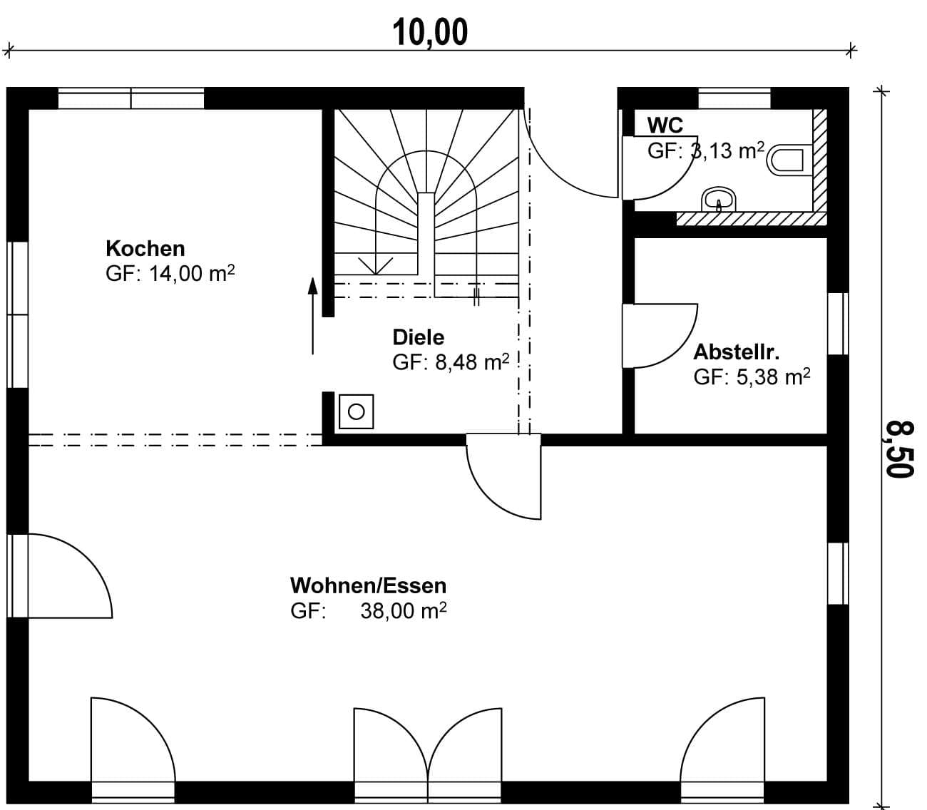
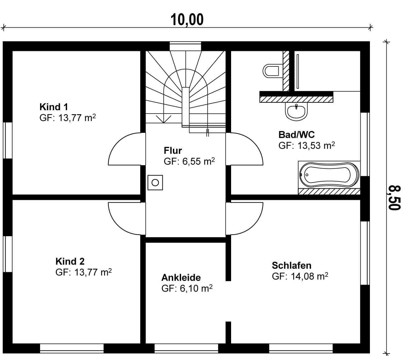
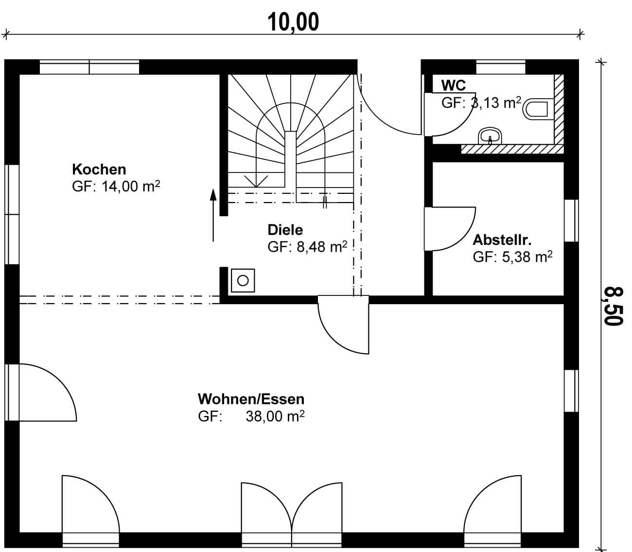
Grundriss

no description
Homestory 382 Grundriss (EG)
no description
Homestory 382 Grundriss (DG)

Kataloge

Lehner Haus: Hauskatalog
Lehner Haus

Lehner Haus: Hauskatalog


House and TreeParksHouse and PinMusterhausHouse on HandAnbieter