1. AnbieterArrow Icon
  2. Lehner HausArrow Icon
  3. Homestory 381
Slide 1
Slide 2
Slide 3
no description
Lehner HausHomestory 381
homeBungalow
livingArea120 m²
energyStandardEffizienzhaus 55
Preis anfragen
Katalog bestellen

Homestory 381

Lehner Haus GmbH

Das klassische Holzhaus. Eine Ebene als gemütliches Zuhause.

Die Tradition des klassischen Holzhauses ist Jahrtausende alt. Heute wird es wegen seiner Beliebtheit in vielen Formen mit hochmodernen Lösungen für die Energieeffizienz und Steuerungen der Haustechnik gebaut. Viel Sympathie erfährt zum Beispiel die hier realisierte solidere Bauform. Es ist als barrierefreies Zuhause für den Ruhestand von einem Ehepaar selbst geplant und mit Lehner Haus gebaut worden.

Hausdaten

Hausart Icon
HausartEinfamilienhaus
Bauweise Icon
BauweiseHolz-Tafelbau
Anzahl Räume Icon
Anzahl Räume9
Baustil Icon
BaustilBungalow
Fassade Icon
FassadeHolz
Außenmaße Icon
Außenmaße18 m x 8 m
Wohnfläche Icon
Wohnfläche120 m²
Dachform Icon
DachformSattel-/Giebeldach
Energiestandard Icon
EnergiestandardEffizienzhaus 55
Immobilientyp Icon
ImmobilientypKundenhaus
Hauseigenschaften Icon
HauseigenschaftenTerasse
Heizungsart Icon
HeizungsartWärmepumpe (Luft, Wasser, oder beides)
Pfeil nach unten linksWir schaffen Platz für Ihre Träume

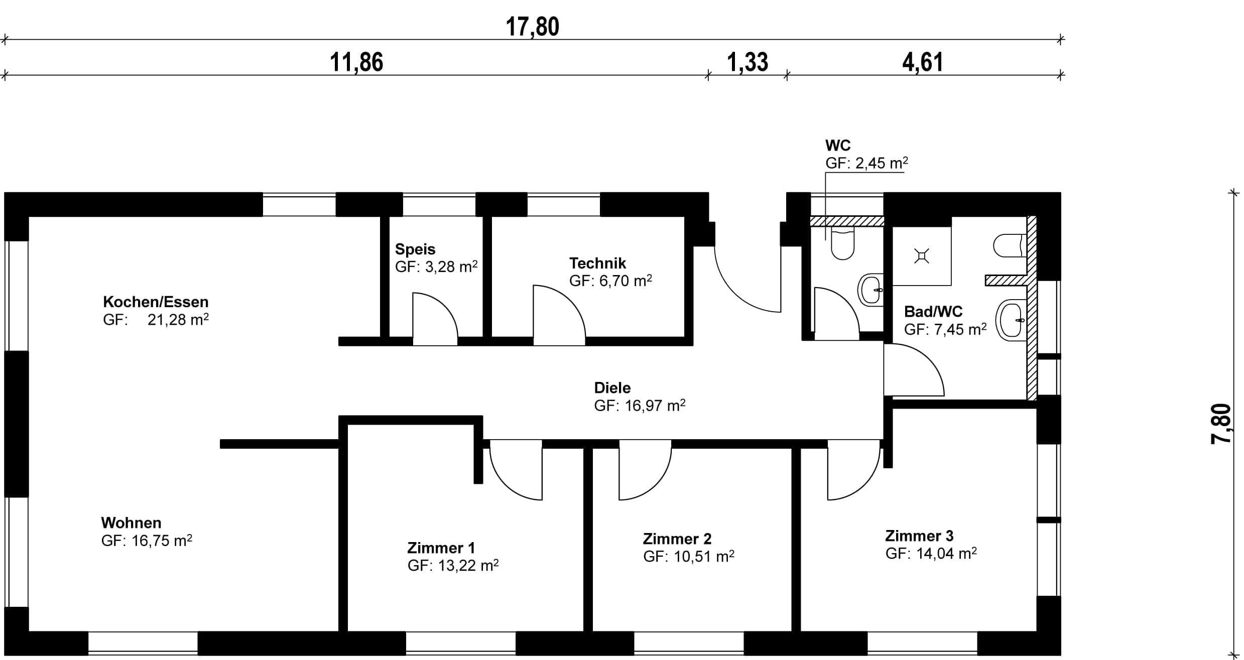
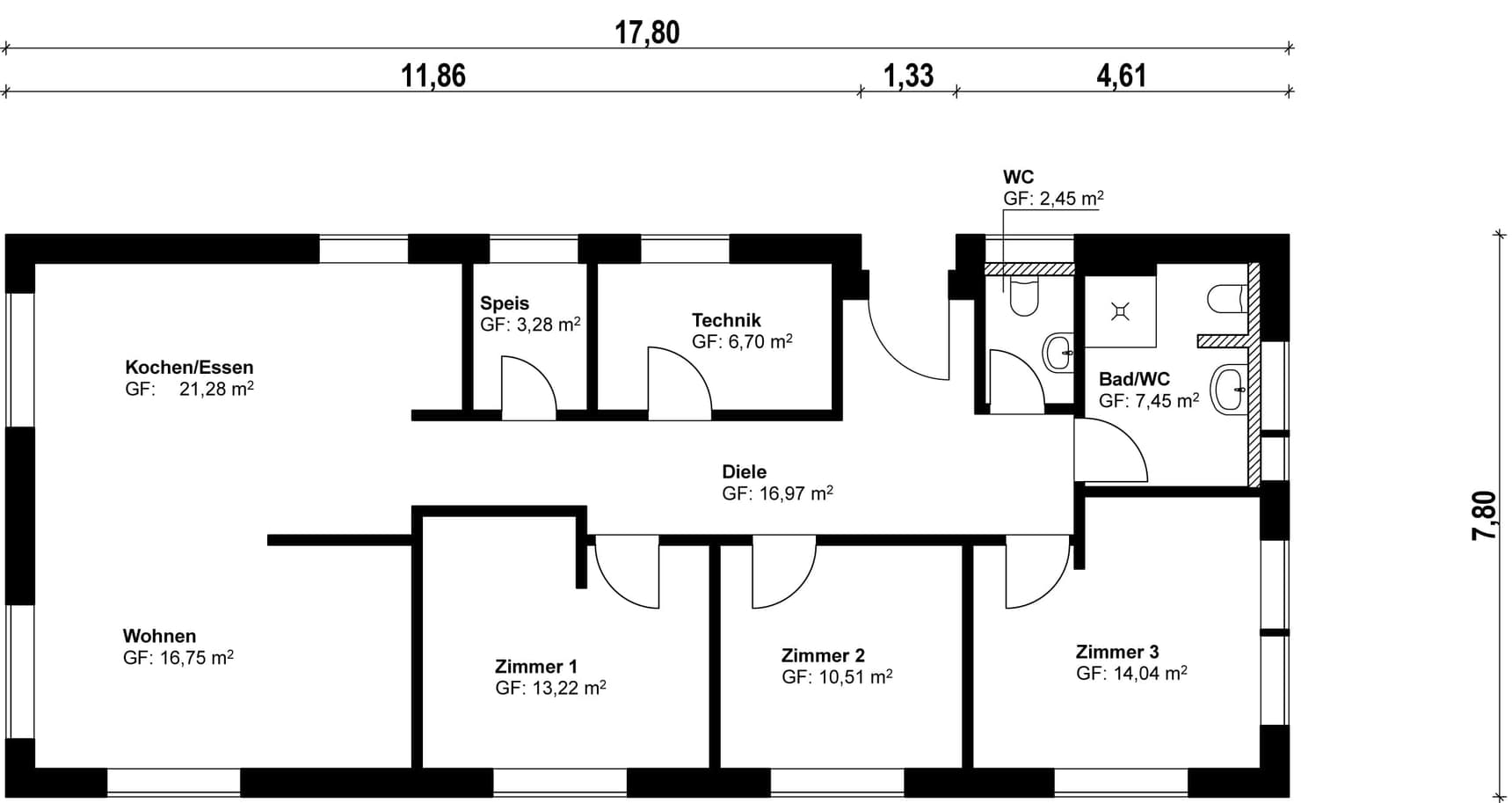
Grundriss

no description
Homestory 381 Grundriss (EG)

Unser Team vor Ort

Manuela DürrFachberater*in bei Lehner Haus
no description
Wir beraten Sie gerne!Arrow Icon

Kataloge

Lehner Haus: Hauskatalog
Lehner Haus

Lehner Haus: Hauskatalog


House and TreeParksHouse and PinMusterhausHouse on HandAnbieter