1. AnbieterArrow Icon
  2. Lehner HausArrow Icon
  3. Homestory 361
Slide 1
Slide 2
Slide 3
Slide 4
Slide 5
no description
Lehner HausHomestory 361
homeStadtvillen
livingArea280 m²
energyStandardEffizienzhaus 55
Preis anfragen
Katalog bestellen

Homestory 361

Lehner Haus GmbH

Die klassische Stadtvilla: Modern. Energieeffizient. Und mit Stil.

Die Bauherren wussten, warum es ein Lehner Haus sein sollte. Das Paar lebte in der Einliegerwohnung einer Stadtvilla von Lehner. Sie haben vorher zugesehen, wie diese Villa ausgebaut wurde, überzeugten sich von der Qualität des Handwerks und später vom erstklassigen Wohngefühl. Als das Ehepaar ein eigenes Zuhause für die Familie wollte, stand fest, mit wem sie es bauen würden. Eine Homestory der besonderen Art.

Hausdaten

Hausart Icon
HausartEinfamilienhaus
Bauweise Icon
BauweiseHolz-Tafelbau
Anzahl Räume Icon
Anzahl Räume9
Baustil Icon
BaustilStadtvillen
Fassade Icon
FassadePutz
Außenmaße Icon
Außenmaße10 m x 11 m
Wohnfläche Icon
Wohnfläche280 m²
Dachform Icon
DachformWalm-/Zeltdach
Energiestandard Icon
EnergiestandardEffizienzhaus 55
Immobilientyp Icon
ImmobilientypKundenhaus
Dachneigung Icon
Dachneigung23°
Hauseigenschaften Icon
HauseigenschaftenTerasse
Heizungsart Icon
HeizungsartWärmepumpe (Luft, Wasser, oder beides)
Pfeil nach unten linksWir schaffen Platz für Ihre Träume

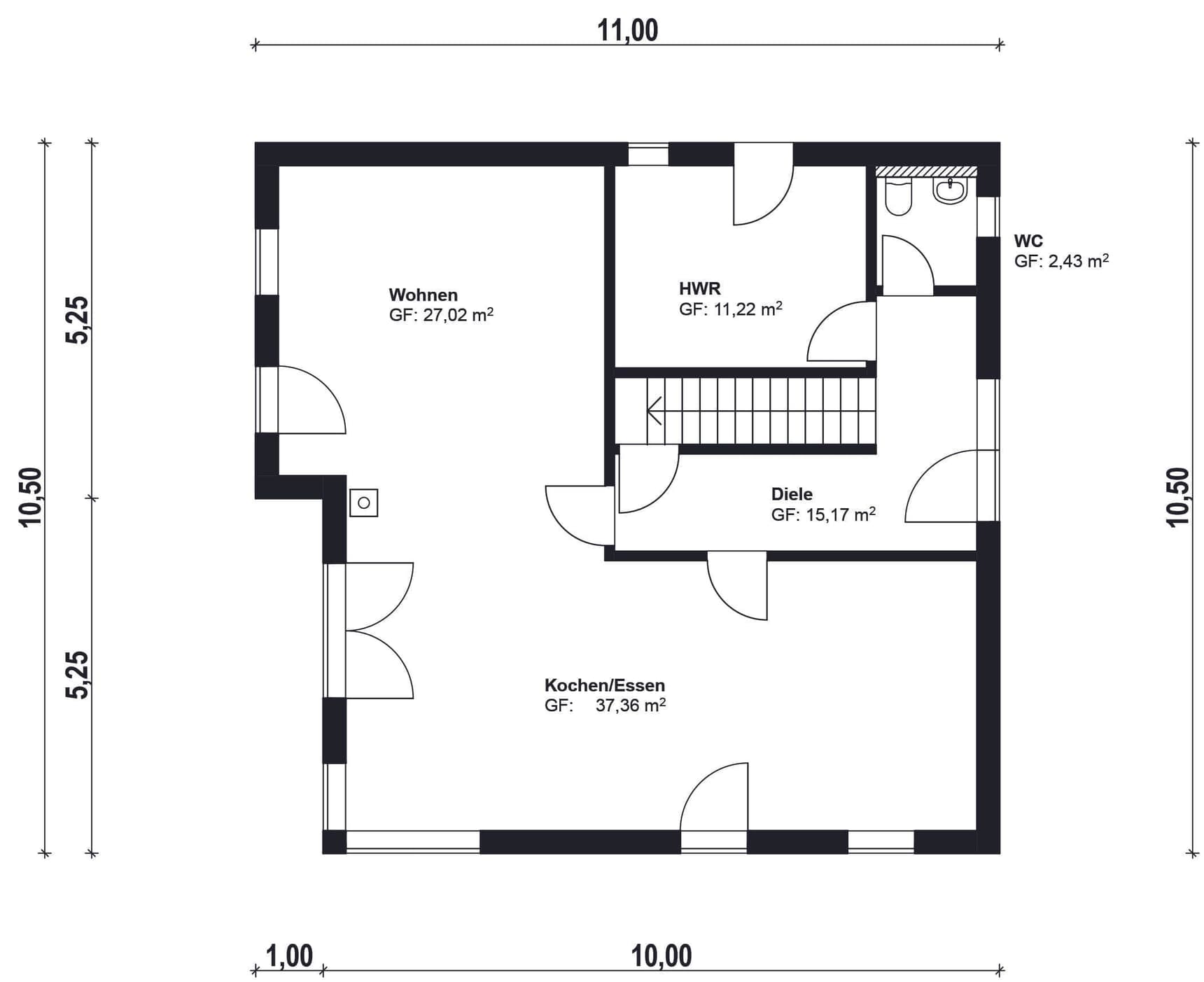
Grundriss

no description
Homestory 361 Grundriss (EG)

Unser Team vor Ort

Manuela DürrFachberater*in bei Lehner Haus
no description
Wir beraten Sie gerne!Arrow Icon
Franziska PaulusFachberater*in bei Lehner Haus
no description

Kataloge

Lehner Haus: Hauskatalog
Lehner Haus

Lehner Haus: Hauskatalog


House and TreeParksHouse and PinMusterhausHouse on HandAnbieter