1. AnbieterArrow Icon
  2. Lehner HausArrow Icon
  3. Homestory 343
Slide 1
Slide 2
Slide 3
Slide 4
no description
Lehner HausHomestory 343
homeKlassische Familienhäuser
livingArea300 m²
energyStandardEffizienzhaus 55
Preis anfragen
Katalog bestellen

Homestory 343

Lehner Haus GmbH

Doppelhaus im Grünen: Zwei Brüder verwirklichen sich einen Traum

Eine hohe Qualität zu einem attraktiven Preis – Lehner Haus stellt hohe Anforderungen an seine Handwerksarbeit. Und die kann das schwäbische Unternehmen auch erfüllen. Qualität bedeutet hier nicht nur erstklassige Materialien und perfekte Bauausführung, sondern auch auf eine solide Planung, welche alle Wünsche der Bauherren berücksichtigt. Bei Lehner Haus stehen die Qualität und ein schönes Wohnen im Fokus.

Hausdaten

Hausart Icon
HausartDoppelhaus
Bauweise Icon
BauweiseHolz-Tafelbau
Anzahl Räume Icon
Anzahl Räume11
Baustil Icon
BaustilKlassische Familienhäuser
Fassade Icon
FassadePutz
Außenmaße Icon
Außenmaße110 m x 80 m
Wohnfläche Icon
Wohnfläche300 m²
Dachform Icon
DachformSattel-/Giebeldach
Energiestandard Icon
EnergiestandardEffizienzhaus 55
Immobilientyp Icon
ImmobilientypKundenhaus
Dachneigung Icon
Dachneigung35°
Hauseigenschaften Icon
HauseigenschaftenErker
Heizungsart Icon
HeizungsartWärmepumpe (Luft, Wasser, oder beides)
Pfeil nach unten linksWir schaffen Platz für Ihre Träume

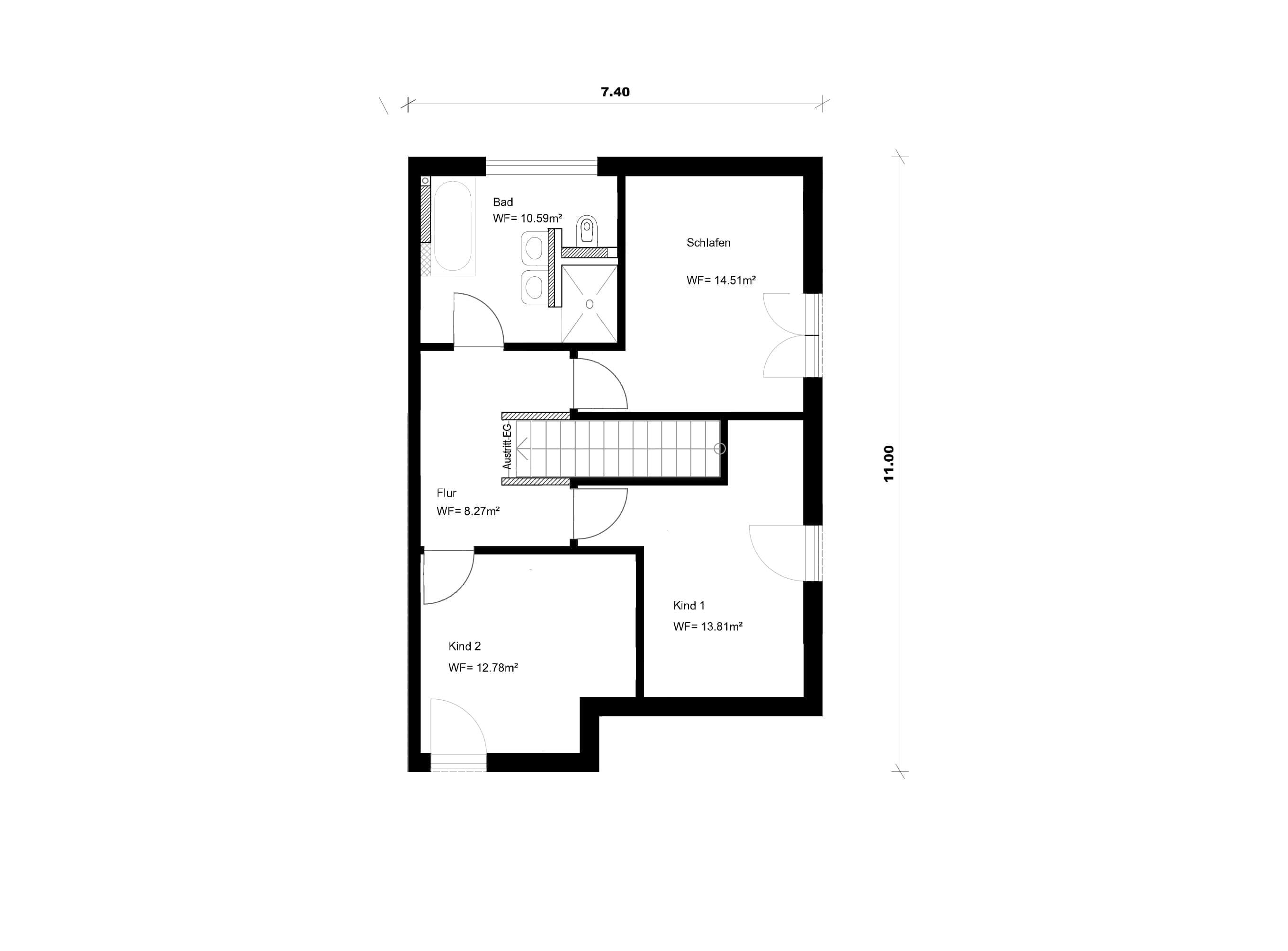
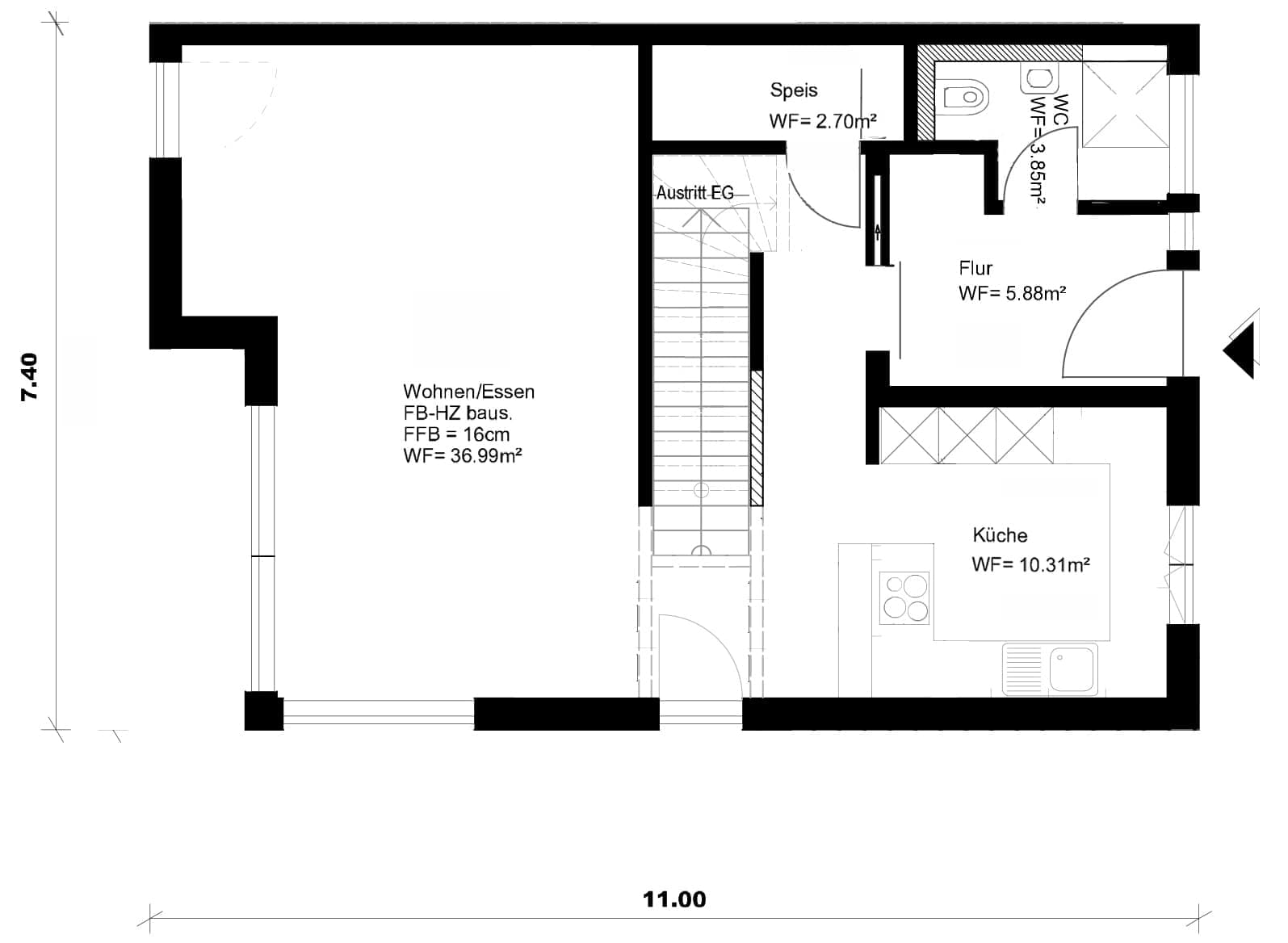
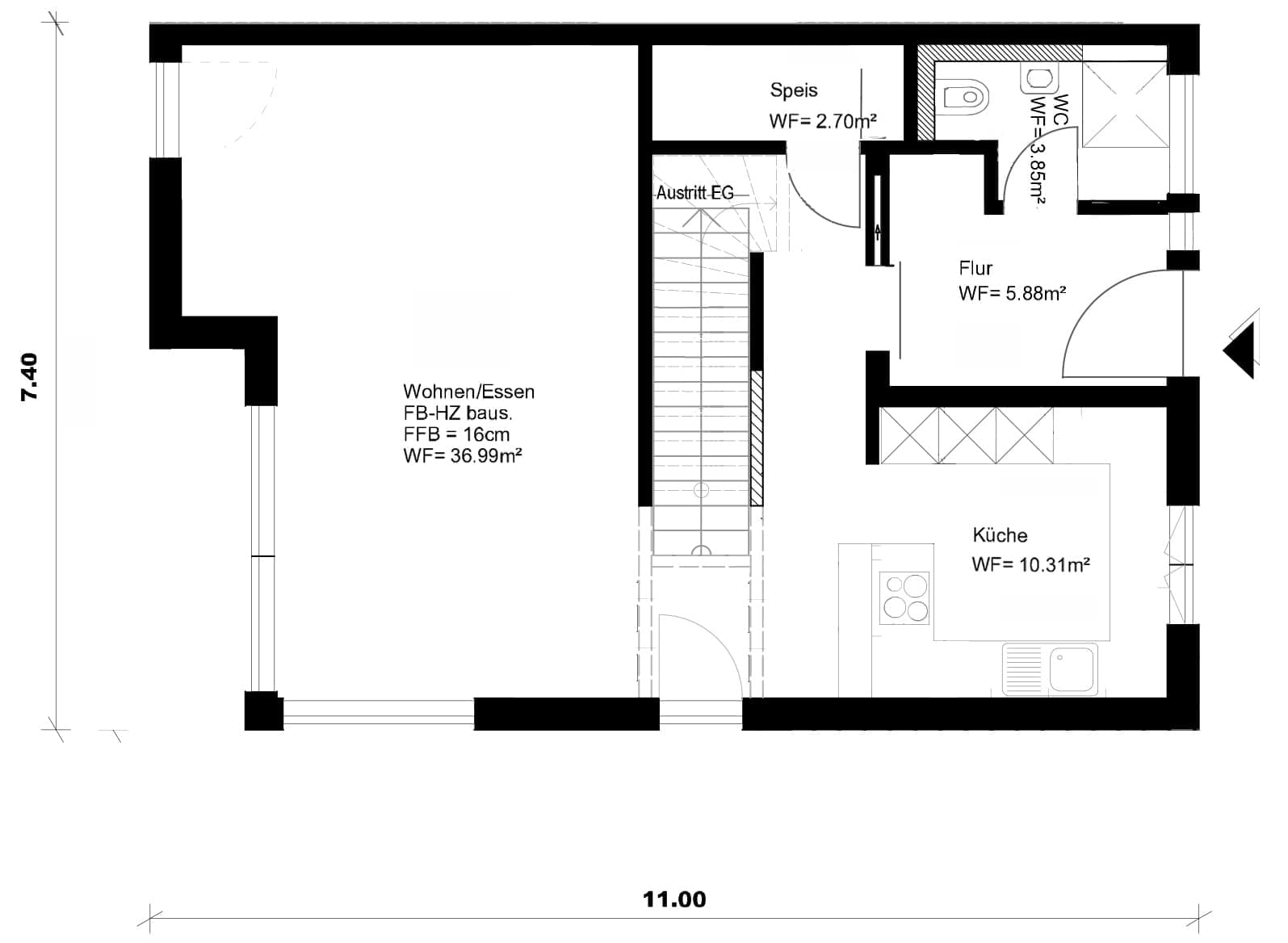
Grundriss

no description
Homestory 343 Grundriss (EG)
no description
Homestory 343 Grundriss (DG)

Unser Team vor Ort

Franziska PaulusFachberater*in bei Lehner Haus
no description
Wir beraten Sie gerne!Arrow Icon
Manuela DürrFachberater*in bei Lehner Haus
no description

Kataloge

Lehner Haus: Hauskatalog
Lehner Haus

Lehner Haus: Hauskatalog


House and TreeParksHouse and PinMusterhausHouse on HandAnbieter