1. AnbieterArrow Icon
  2. Lehner HausArrow Icon
  3. Homestory 342
Slide 1
Slide 2
Slide 3
Slide 4
no description
Lehner HausHomestory 342
homeStadtvillen
livingArea160 m²
energyStandardEffizienzhaus 55
Preis anfragen
Katalog bestellen

Homestory 342

Lehner Haus GmbH

Einfamilienhaus mit Einliegerwohnung. Energieeffizient & Ökologisch

Wenn man sich verändern möchte und die Kosten für Mieten sowie teure Energien endlich deutlich senken will, dann ist der Bau eines eigenen Hauses die einzige und tatsächlich eine relevante Alternative. Mit einer durchdachten, ökologisch ausgerichteten Haustechnologie spart man eine Menge Geld und lebt sehr gesund. Der moderne Holzfertigbau von Lehner ist dabei für alle individuellen Architektur-Konzepte offen.

Hausdaten

Hausart Icon
HausartEinfamilienhaus
Bauweise Icon
BauweiseHolz-Tafelbau
Baustil Icon
BaustilStadtvillen
Fassade Icon
FassadePutz
Außenmaße Icon
Außenmaße140 m x 90 m
Wohnfläche Icon
Wohnfläche160 m²
Dachform Icon
DachformSattel-/Giebeldach
Energiestandard Icon
EnergiestandardEffizienzhaus 55
Immobilientyp Icon
ImmobilientypKundenhaus
Dachneigung Icon
Dachneigung32°
Hauseigenschaften Icon
HauseigenschaftenErker
Heizungsart Icon
HeizungsartGas-Brennwertheizung
Pfeil nach unten linksWir schaffen Platz für Ihre Träume

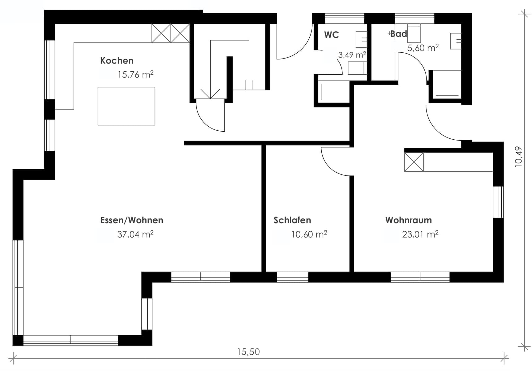
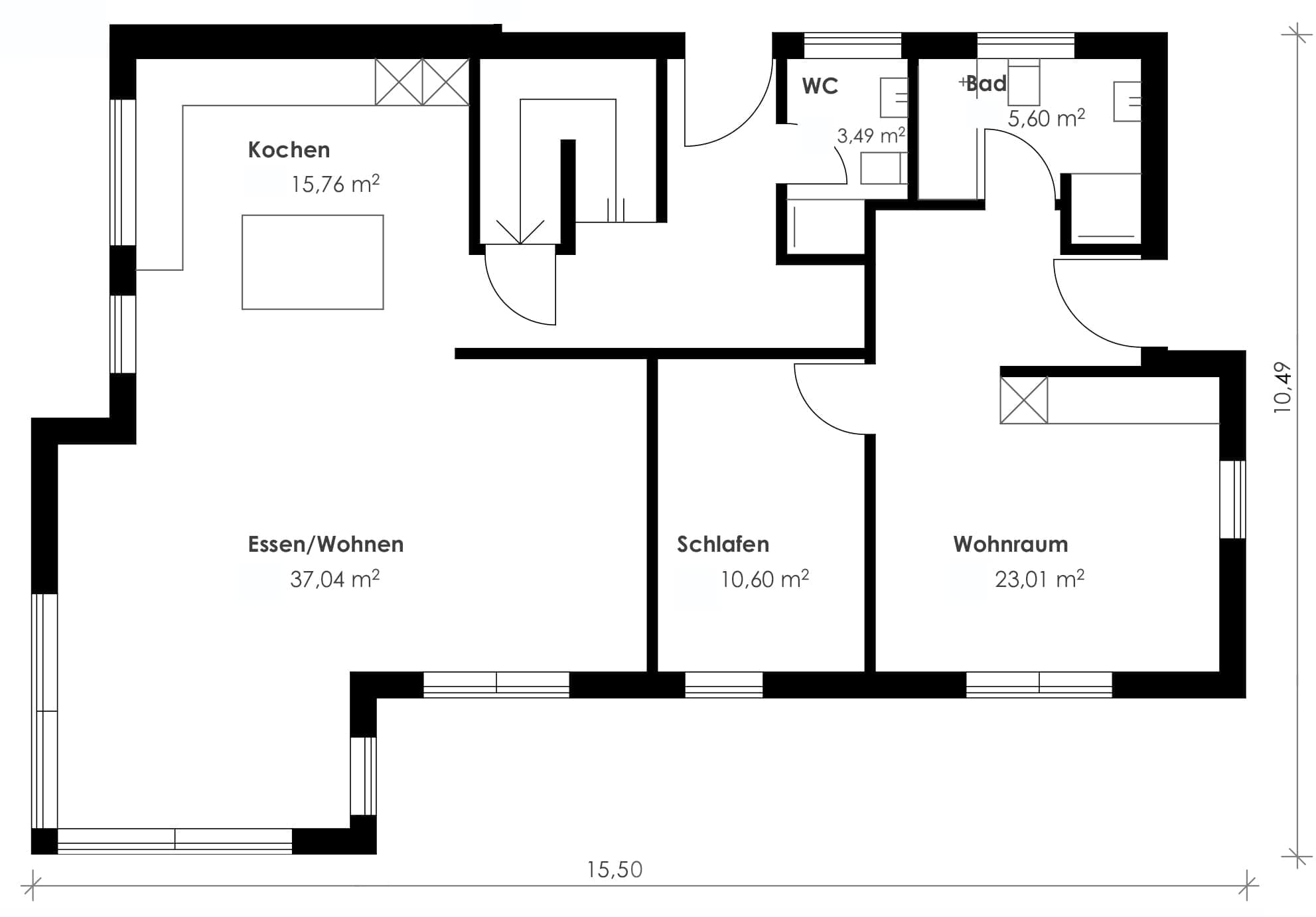
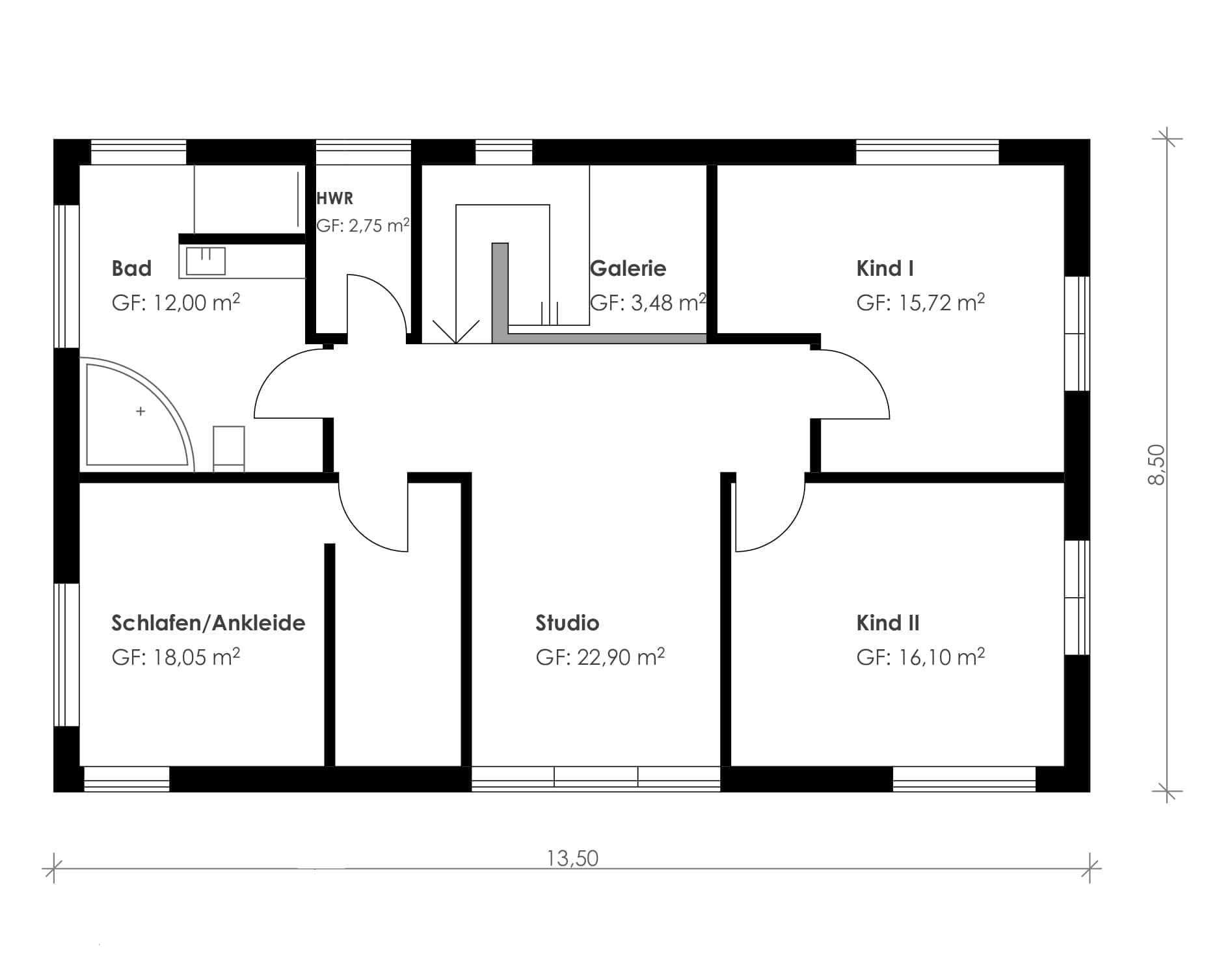
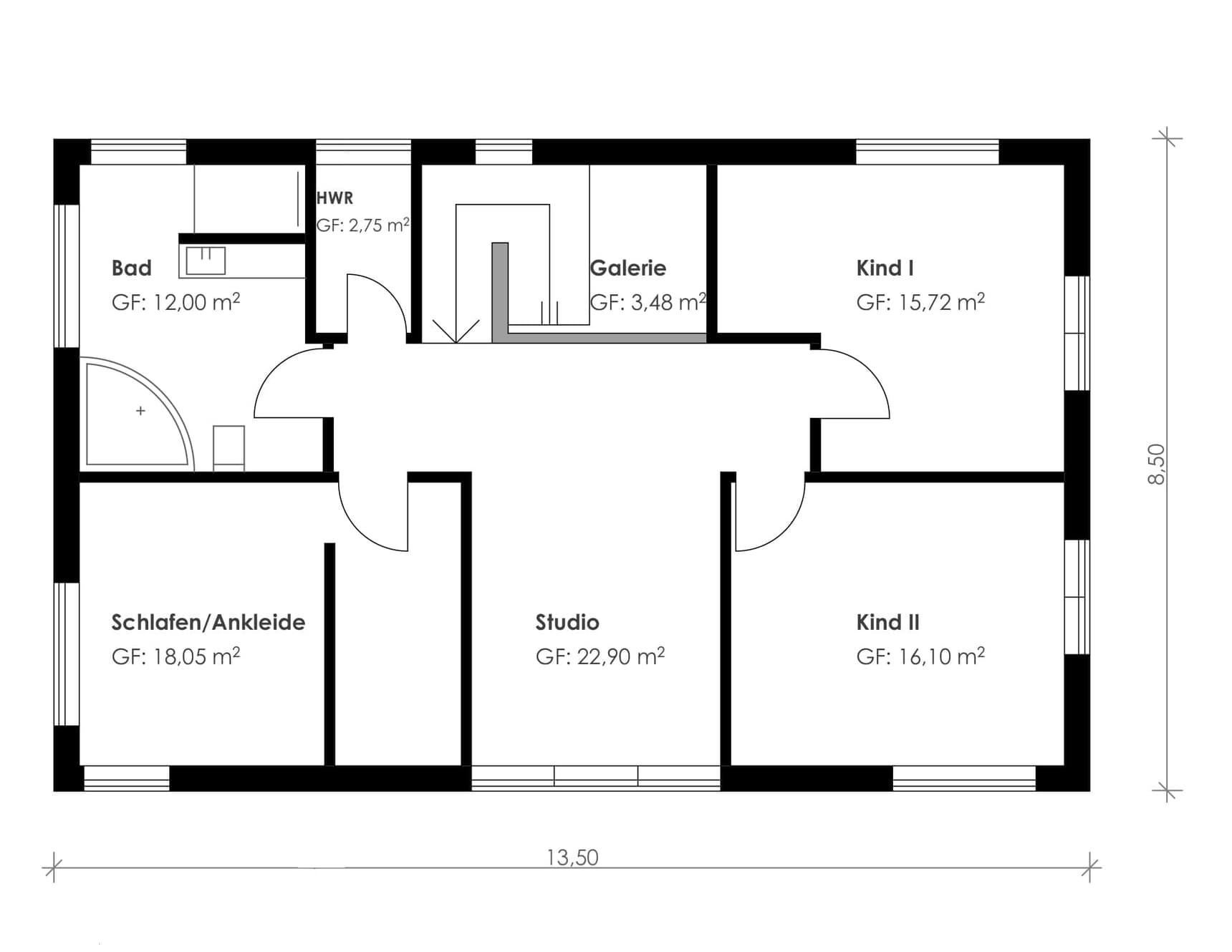
Grundriss

no description
Homestory 342 Grundriss (Keller)
no description
Homestory 342 Grundriss (EG)
no description
Homestory 342 Grundriss (DG)

Unser Team vor Ort

Manuela DürrFachberater*in bei Lehner Haus
no description
Wir beraten Sie gerne!Arrow Icon

Kataloge

Lehner Haus: Hauskatalog
Lehner Haus

Lehner Haus: Hauskatalog


House and TreeParksHouse and PinMusterhausHouse on HandAnbieter