1. AnbieterArrow Icon
  2. Lehner HausArrow Icon
  3. Homestory 324
Slide 1
Slide 2
Slide 3
Slide 4
no description
Lehner HausHomestory 324
homeKlassische Familienhäuser
livingArea210 m²
energyStandardEffizienzhaus 55
Preis anfragen
Katalog bestellen

Homestory 324

Das solide Familienhaus: sparsam, ökonomisch & ökologisch

Nicht selten kommen der Gedanke und auch der feste Wunsch ein eigenes Haus zu bauen auf, wenn es einen konkreten Anlass gibt, eine bisherige Wohnung oder ein Mietshaus zu verlassen. Dann plant man gern bisweilen träumerisch und bald realistisch, bis endlich die beste Idee vor Augen steht. Nun soll es schnell gehen, das Haus soll möglichst bald stehen. Am schnellsten geht solides Bauen mit einem Holzfertigbauer.

Hausdaten

Hausart Icon
HausartEinfamilienhaus
Bauweise Icon
BauweiseHolz-Tafelbau
Anzahl Räume Icon
Anzahl Räume7
Baustil Icon
BaustilKlassische Familienhäuser
Fassade Icon
FassadePutz
Außenmaße Icon
Außenmaße11 m x 8 m
Wohnfläche Icon
Wohnfläche210 m²
Dachform Icon
DachformSattel-/Giebeldach
Energiestandard Icon
EnergiestandardEffizienzhaus 55
Immobilientyp Icon
ImmobilientypKundenhaus
Dachneigung Icon
Dachneigung35°
Hauseigenschaften Icon
HauseigenschaftenGästezimmer
Hausdämmstoff Icon
HausdämmstoffHolzfaser- und Zellulosedämmstoffe
Heizungsart Icon
HeizungsartWärmepumpe (Luft, Wasser, oder beides)
Pfeil nach unten linksWir schaffen Platz für Ihre Träume

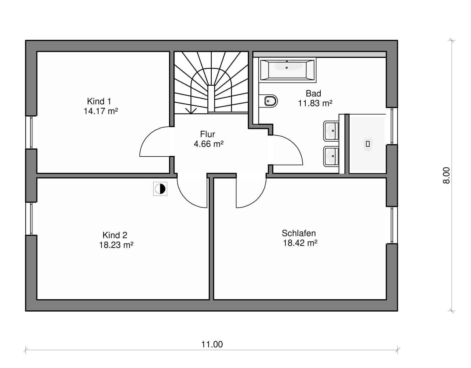
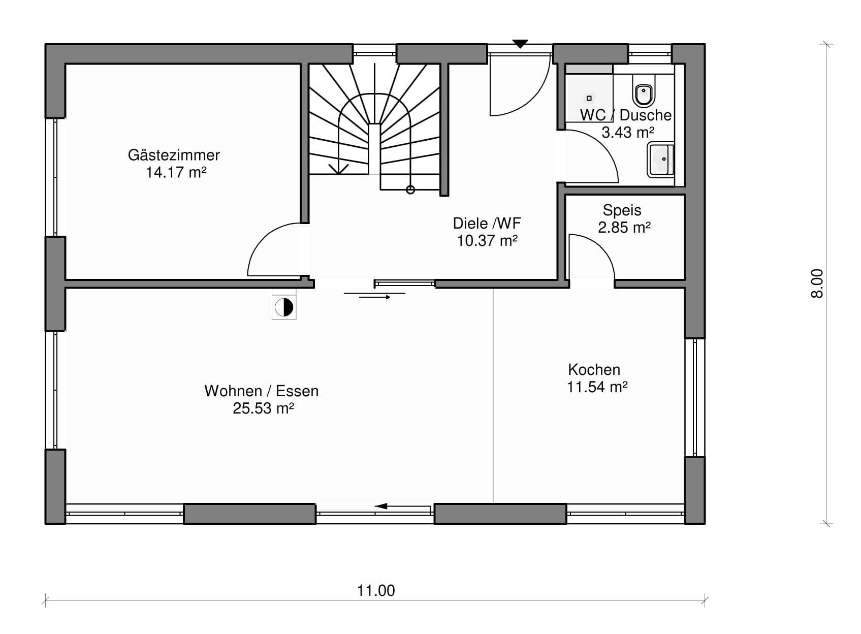
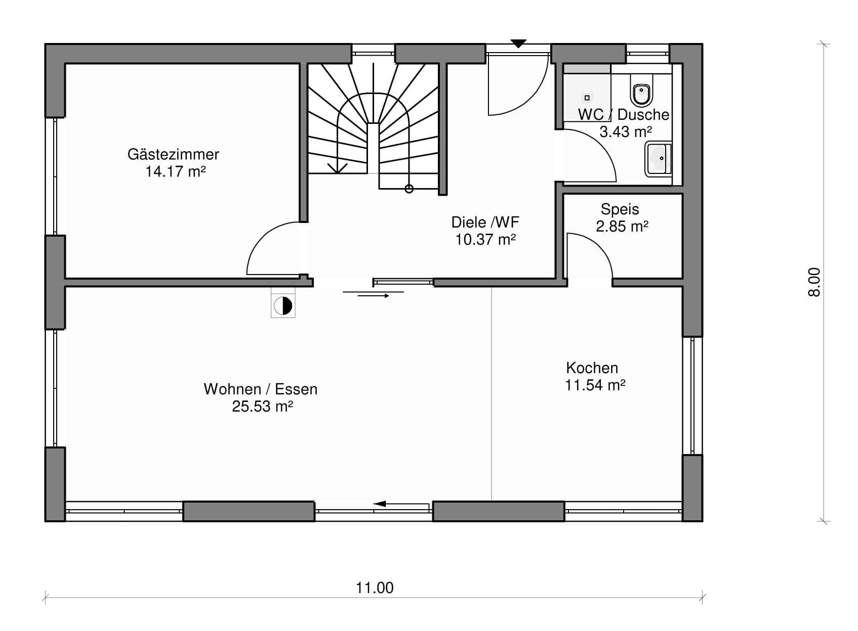
Grundriss

no description
Homestory 324 Grundriss (EG)
no description
Homestory 324 Grundriss (DG)

Kataloge

Lehner Haus: Hauskatalog
Lehner Haus

Lehner Haus: Hauskatalog


House and TreeParksHouse and PinMusterhausHouse on HandAnbieter