1. AnbieterArrow Icon
  2. Lehner HausArrow Icon
  3. Homestory 314
Slide 1
Slide 2
Slide 3
Slide 4
no description
Lehner HausHomestory 314
homeKubushäuser im Bauhausstil
livingArea200 m²
energyStandardEffizienzhaus 55
Preis anfragen
Katalog bestellen

Homestory 314

Lehner Haus GmbH

Individuell geplanter energieeffizienter Kubus mit Einliegerwohnung

„Wir haben das alles alleine geplant und dabei auch selbst gezeichnet“, sagt der Bauherr. „Natürlich wurde unser Vorschlag nochmals geprüft und leicht überarbeitet - wegen der Statik und anderer baulicher Anforderungen. Aber die Statik stimmte. Auch unsere Ideen und alle anderen Ausführungen des Entwurfs sind beinahe komplett erhalten geblieben. Wir konnten ganz nach Wunsch bauen.“ - Ihre Ideen für die Innenarchitektur fanden die Bauherren unter anderem im Musterhaus von Lehner in Ulm. Ihnen gefielen zum Beispiel die Galerie und die Treppe aus lasierter Eiche. Im oberen Stockwerk planten sie einen Rundgang von Zimmer zu Zimmer und für das Bad fand man gemeinsam mit Lehner eine „T-Lösung“. Des Weiteren gab es Wünsche wie Barrierefreiheit im gesamten Haus, versenkte Licht-Spots in nahezu allen Räumen oder ein Glasgeländer an der Galerie.

Hausdaten

Hausart Icon
HausartEinfamilienhaus
Bauweise Icon
BauweiseHolz-Tafelbau
Anzahl Räume Icon
Anzahl Räume11
Baustil Icon
BaustilKubushäuser im Bauhausstil
Fassade Icon
FassadePutz
Außenmaße Icon
Außenmaße12 m x 9 m
Wohnfläche Icon
Wohnfläche200 m²
Dachform Icon
DachformFlachdach
Energiestandard Icon
EnergiestandardEffizienzhaus 55
Immobilientyp Icon
ImmobilientypKundenhaus
Hauseigenschaften Icon
HauseigenschaftenEinliegerwohnung
Heizungsart Icon
HeizungsartWärmepumpe (Luft, Wasser, oder beides)
Pfeil nach unten linksWir schaffen Platz für Ihre Träume

Grundriss

no description
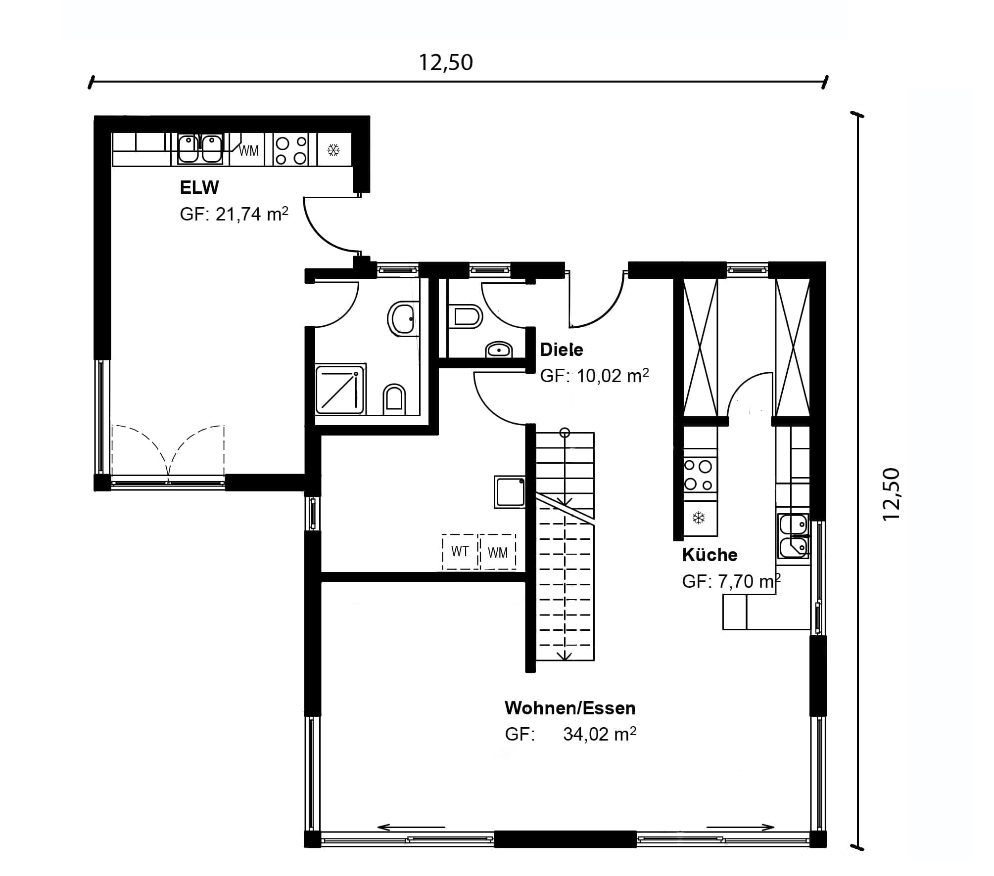
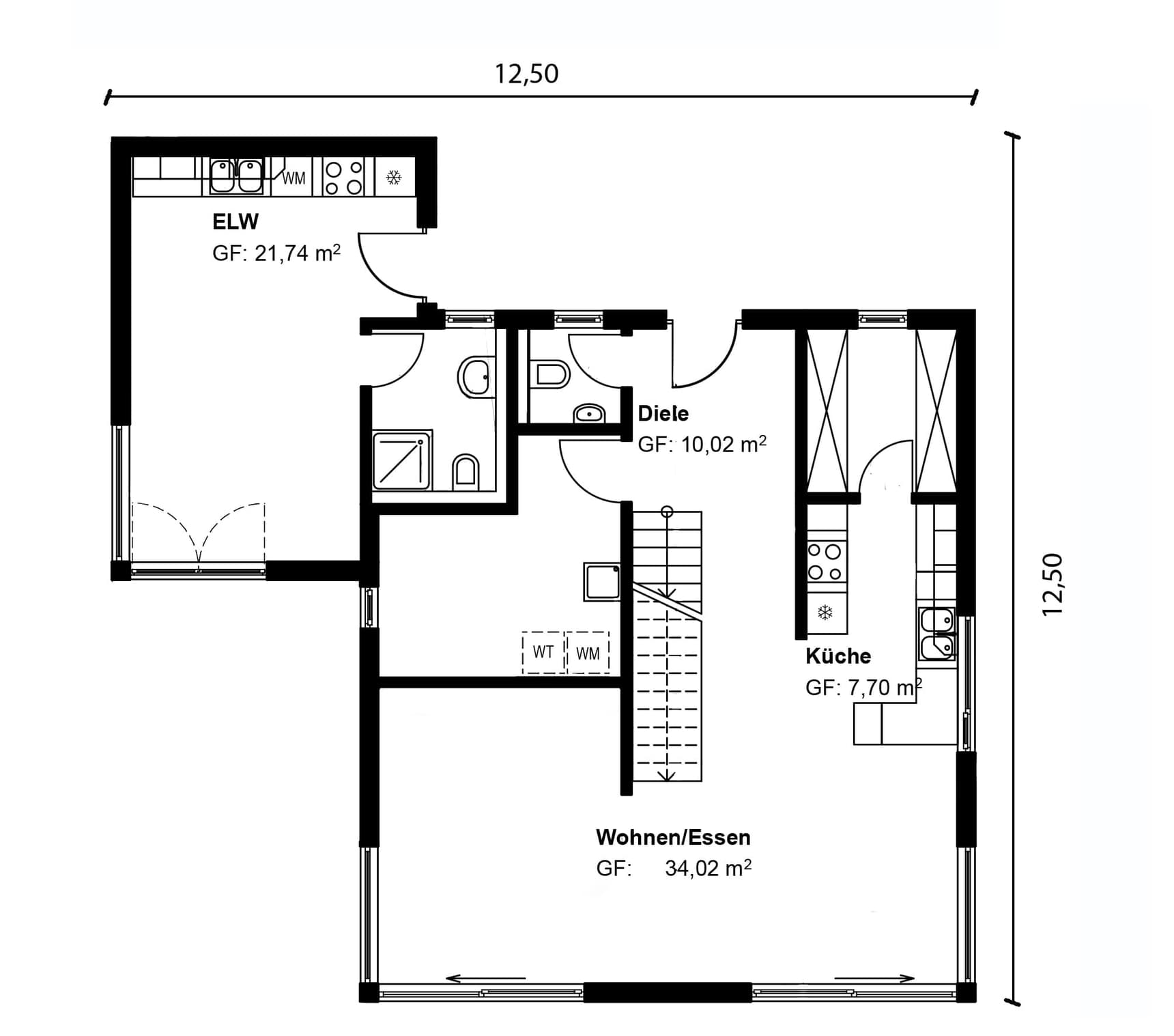
Homestory 314 Grundriss (EG)Wohnfläche EG: 100 m²
no description
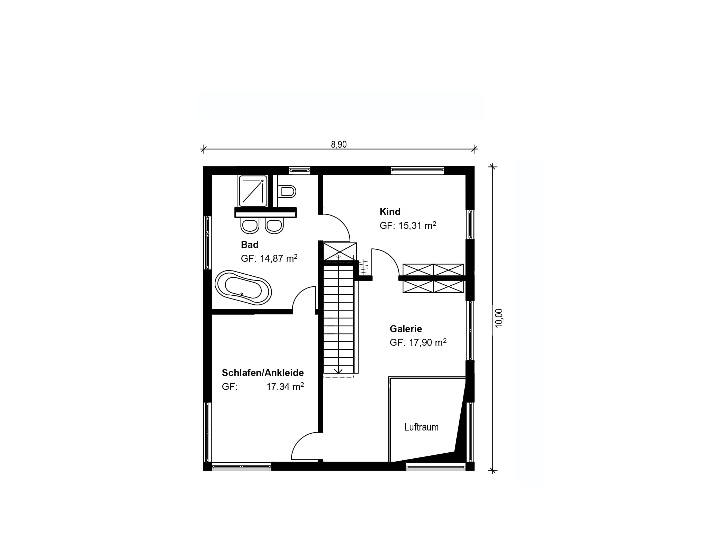
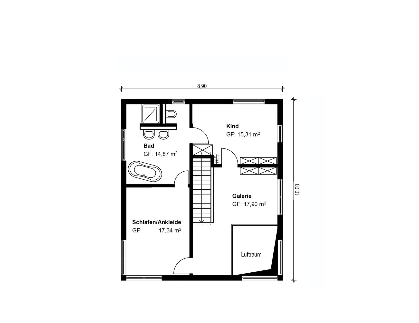
Homestory 314 Grundriss (OG)Wohnfläche OG: 100 m²

Unser Team vor Ort

Manuela DürrFachberater*in bei Lehner Haus
no description
Wir beraten Sie gerne!Arrow Icon

Kataloge

Lehner Haus: Hauskatalog
Lehner Haus

Lehner Haus: Hauskatalog


House and TreeParksHouse and PinHäuser liveHouse on HandAnbieter