1. AnbieterArrow Icon
  2. Lehner HausArrow Icon
  3. Homestory 308
Slide 1
Slide 2
Slide 3
Slide 4
Slide 5
Slide 6
no description
Lehner HausHomestory 308
homeFachwerkhäuser
energyStandardEffizienzhaus 55
Preis anfragen
Katalog bestellen

Homestory 308

Klassisch, zeitlos, schön. Individuelle Konstruktion aus Holz & Glas

Holzständergerüst mit Fachwerk - das alte Konzept inklusive der modernen Elemente für ein sparsames, energieeffizientes Wohnen. Die Sonne wandert ums Haus, eine Wärmepumpe speist im Winter die Fußbodenheizung, ein großer Kamin bringt dazu wohlige Wärme. Eine gut ausgeklügelte Isolation von Wänden, Türen und Dach sorgt für große Effizienz und gleichzeitig für ein gesundes Raumklima. Zu jeder Jahreszeit.

Hausdaten

Hausart Icon
HausartEinfamilienhaus
Bauweise Icon
BauweiseHolz-Tafelbau
Baustil Icon
BaustilFachwerkhäuser
Dachform Icon
DachformSattel-/Giebeldach
Energiestandard Icon
EnergiestandardEffizienzhaus 55
Immobilientyp Icon
ImmobilientypKundenhaus
Heizungsart Icon
HeizungsartWärmepumpe (Luft, Wasser, oder beides)
Pfeil nach unten linksWir schaffen Platz für Ihre Träume

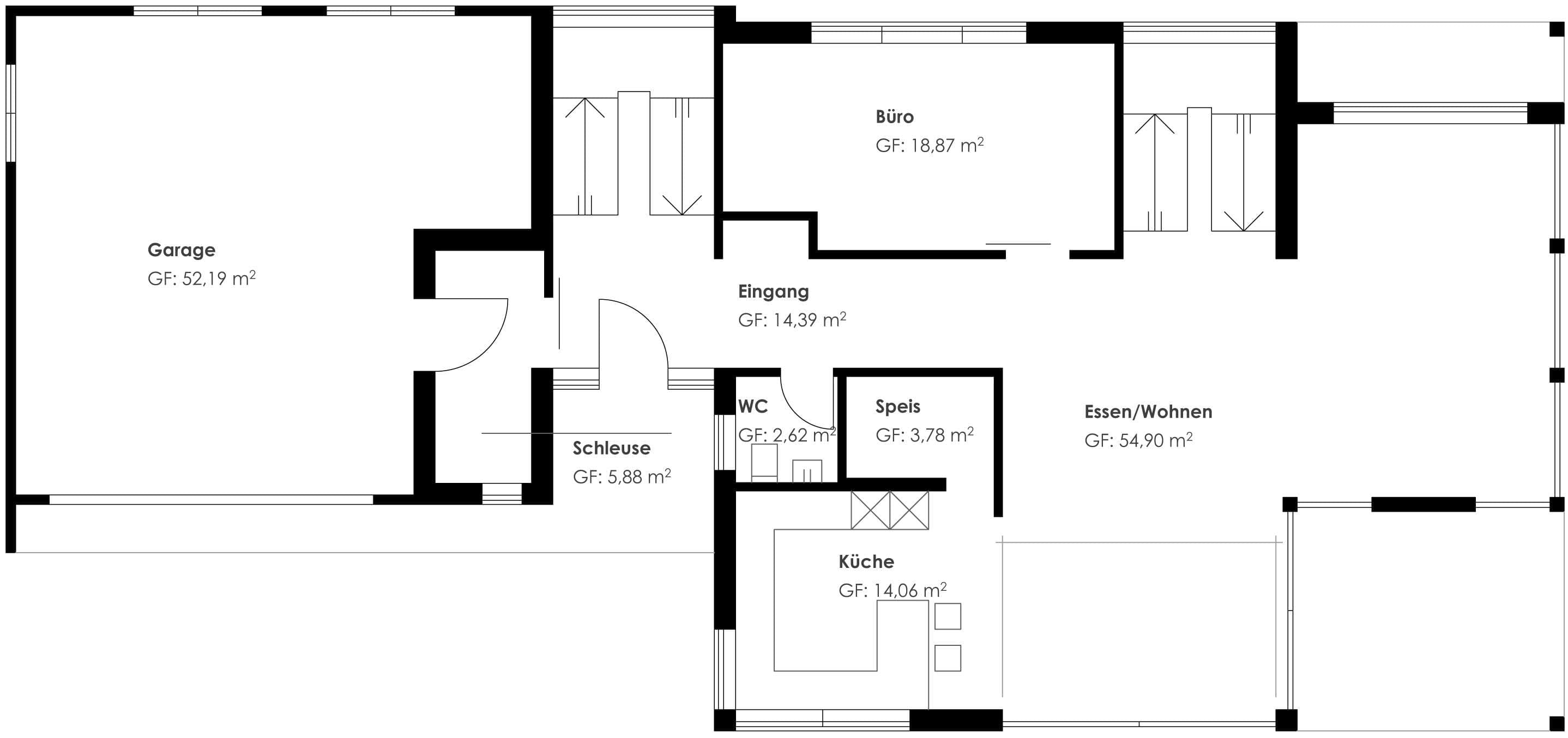
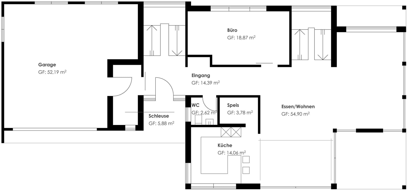
Grundriss

no description
Homestory 308 Grundriss (EG)
no description
Homestory 308 Grundriss (DG)

Kataloge

Lehner Haus: Hauskatalog
Lehner Haus

Lehner Haus: Hauskatalog


House and TreeParksHouse and PinMusterhausHouse on HandAnbieter