1. AnbieterArrow Icon
  2. Lehner HausArrow Icon
  3. Homestory 276
Slide 1
Slide 2
Slide 3
Slide 4
no description
Lehner HausHomestory 276
homeStadtvillen
livingArea137 m²
energyStandardEffizienzhaus 55
Preis anfragen
Katalog bestellen

Homestory 276

Großes, sparsames Haus im Bauhausstil für die ganze Familie

Die Familie brauchte mehr Räume, eine größere Wohnung für die Erwachsenen und die Kinder. Schnell sollte es gehen und möglichst unkompliziert. Die Bauherren wollten sich aus beruflichen Gründen so wenig wie möglich mit dem Planen und Bauen beschäftigen. Ein befreundeter Architekt, der für Lehner schon aktiv gewesen war, übernahm die erste Planung und empfahl das Generalunternehmen für den Holzfertigbau.

Hausdaten

Hausart Icon
HausartEinfamilienhaus
Bauweise Icon
BauweiseHolz-Tafelbau
Anzahl Räume Icon
Anzahl Räume6
Baustil Icon
BaustilStadtvillen
Fassade Icon
FassadePutz
Außenmaße Icon
Außenmaße12 m x 8 m
Wohnfläche Icon
Wohnfläche137 m²
Dachform Icon
DachformFlachdach
Energiestandard Icon
EnergiestandardEffizienzhaus 55
Immobilientyp Icon
ImmobilientypKundenhaus
Hauseigenschaften Icon
HauseigenschaftenTerasse
Hausdämmstoff Icon
HausdämmstoffHolzfaser- und Zellulosedämmstoffe
Heizungsart Icon
HeizungsartWärmepumpe (Luft, Wasser, oder beides)
Pfeil nach unten linksWir schaffen Platz für Ihre Träume

Grundriss

no description
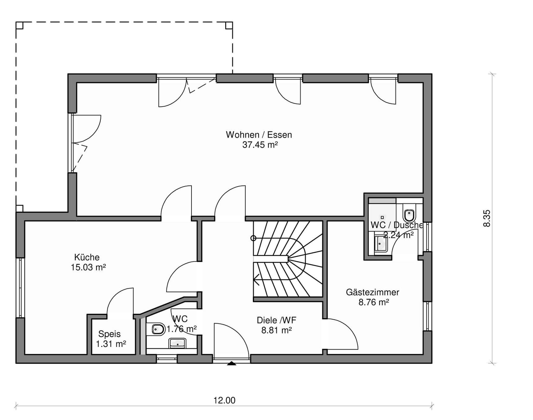
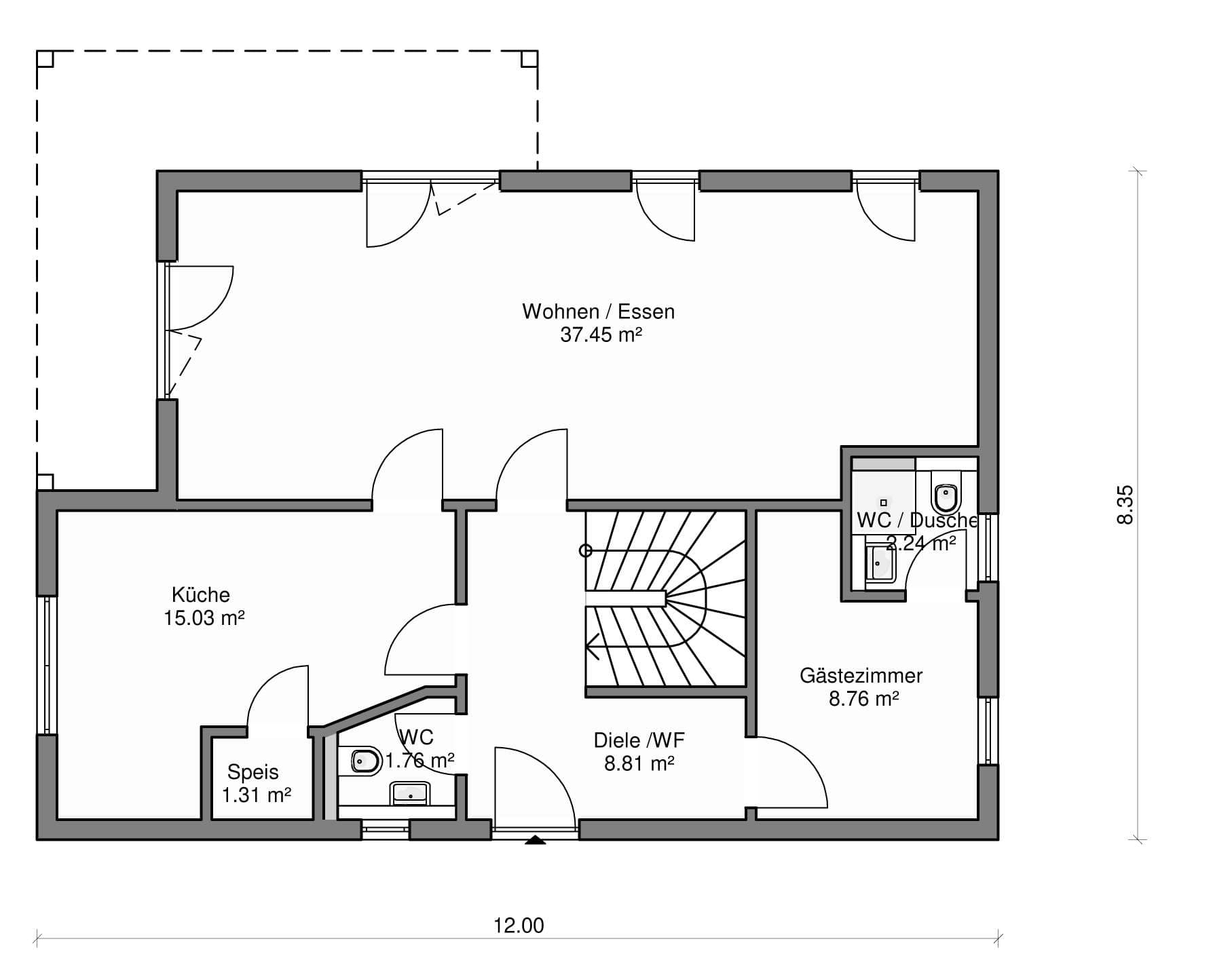
Homestory 276 Grundriss (EG)Wohnfläche EG: 73 m²
no description
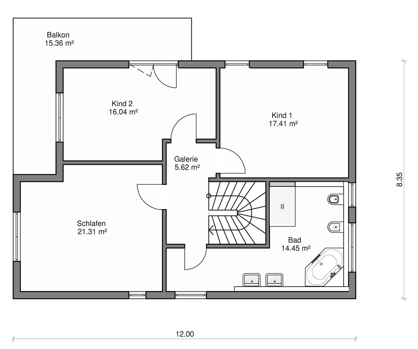
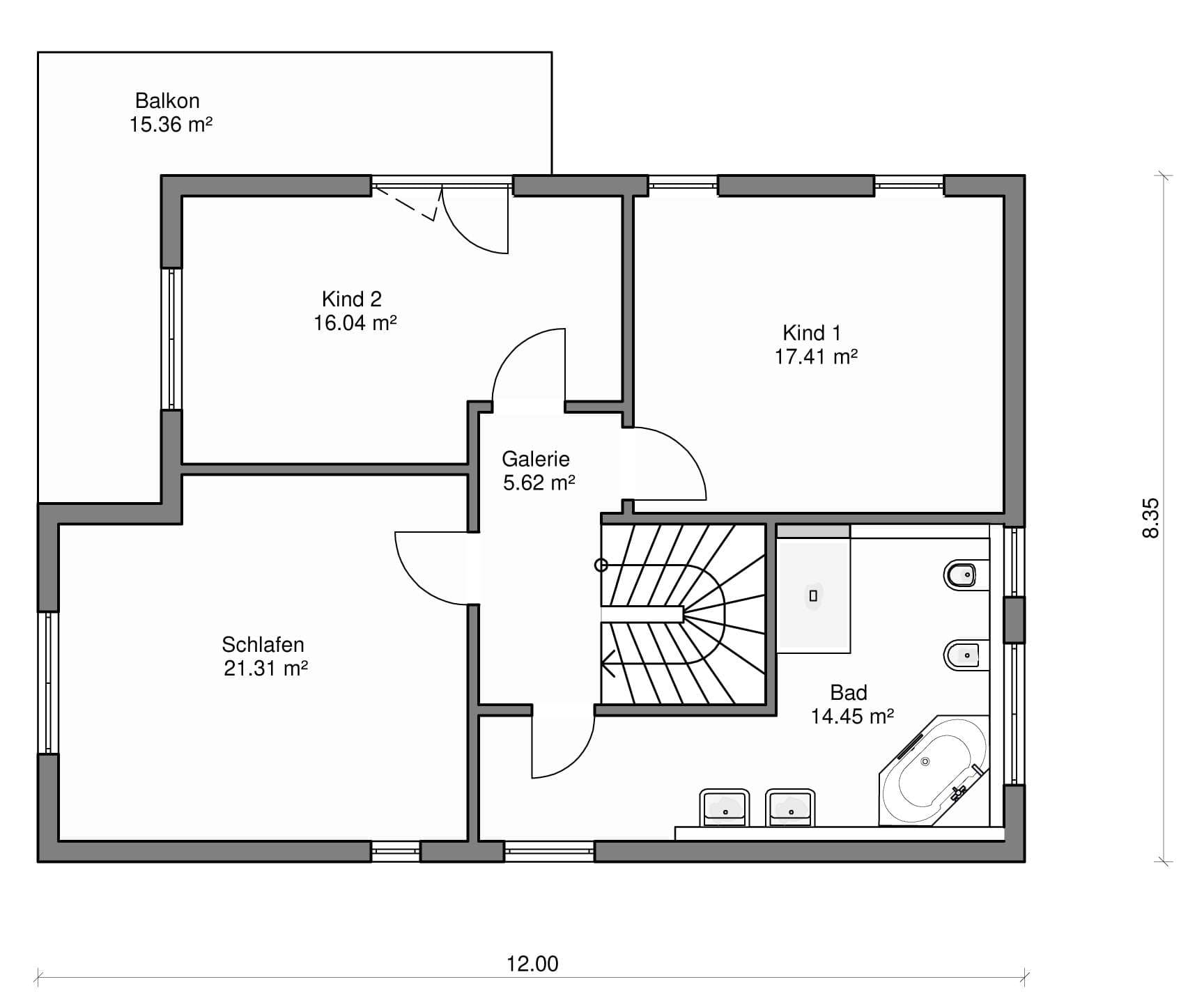
Homestory 276 Grundriss (OG)Wohnfläche OG: 64 m²

Unser Team vor Ort

Paul NischFachberater*in bei Lehner Haus
no description
Wir beraten Sie gerne!Arrow Icon

Kataloge

Lehner Haus: Hauskatalog
Lehner Haus

Lehner Haus: Hauskatalog


House and TreeParksHouse and PinMusterhausHouse on HandAnbieter